Скачать Типовой проект 902-2-286 Альбом II. Технологическая, строительная и электротехническая частиДата актуализации: 10.08.2017 Типовой проект 902-2-286
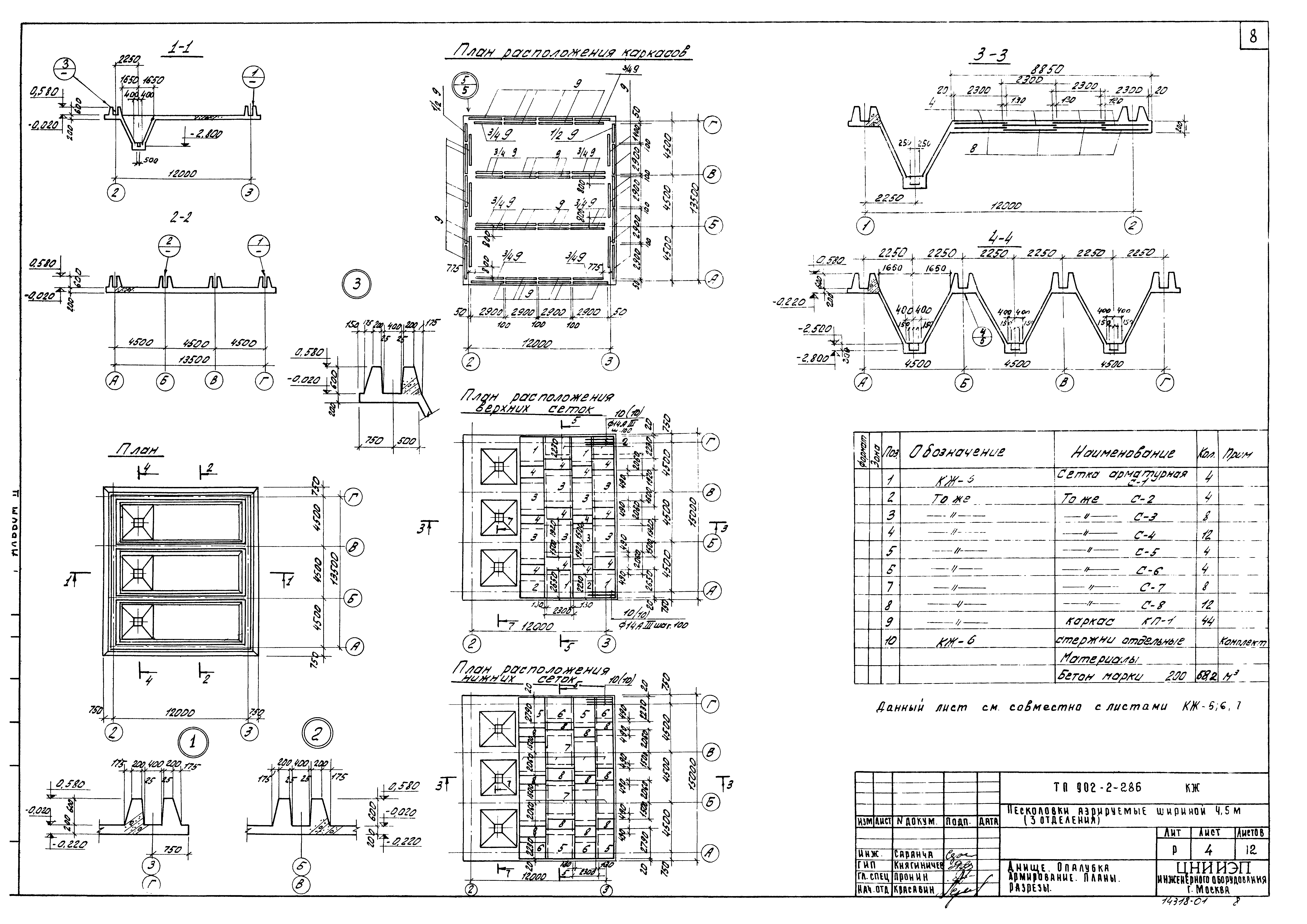
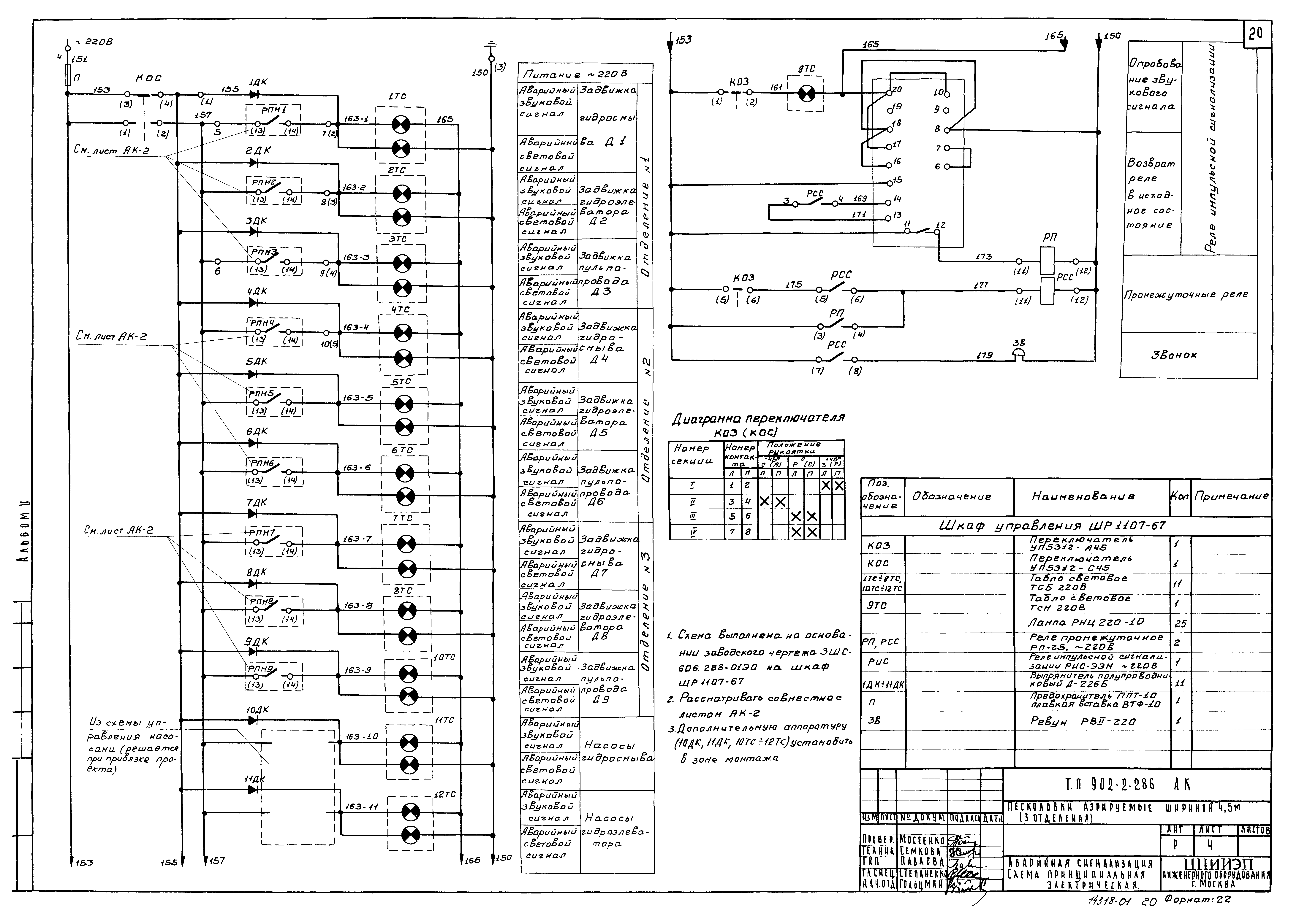
Альбом II. Технологическая, строительная и электротехническая частиОбозначение: | Типовой проект 902-2-286 | Обозначение англ: | 902-2-286 | Статус: | действует | Название рус.: | Альбом II. Технологическая, строительная и электротехническая части | Дата добавления в базу: | 01.09.2013 | Дата актуализации: | 05.05.2017 | Оглавление: | ТП 902-2-286-КГ-1 Заглавный лист ТП 902-2-286-КГ-2 План. Разрезы. Детали трубопроводов ТП 902-2-286-КГ-3 Схемы ТП 902-2-286-КЖ-1 Сводные спецификации ТП 902-2-286-КЖ-2 Общий вид. План. Разрез 1-1. Узлы 1,2 ТП 902-2-286-КЖ-3 Общий вид. Разрез 2-2. Узлы 3-11 ТП 902-2-286-КЖ-4 Днище. Опалубка. Армирование. Планы. Разрезы ТП 902-2-286-КЖ-5 Днище. Армирование. Узлы ТП 902-2-286-КЖ-6 Днище. Армирование. Сетки и каркас ТП 902-2-286-КЖ-7 Днище. Армирование бункера. Ведомость стержней ТП 902-2-286-КЖ-8 Участок монолитный УМ-1 ТП 902-2-286-КЖ-9 Участок монолитный УМ-2 ТП 902-2-286-КЖ-10 Лотки монолитные ЛТМ-1,ЛТМ-2,УМ-3 ТП 902-2-286-КЖ-11 Балка БМ-1. Опалубка панелей, плит СПМ-1. Изделия закладные ТП 902-2-286-КЖ-12 Вставка ТП 902-2-286-АК-1 Питание электрооборудования. Схема принципиальная электрическая ТП 902-2-286-АК-2 Задвижки песколовок Д1(Д2-Д9). Схема принципиальная электрическая (Лист 1) ТП 902-2-286-АК-3 Задвижки песколовок Д1(Д2-Д9). Схема принципиальная электрическая (Лист 2) ТП 902-2-286-АК-4 Аварийная сигнализация. Схема принципиальная электрическая ТП 902-2-286-АК-5 Шкафы РТ30-69 №1,2. Общий вид ТП 902-2-286-АК-6 Шкаф РТ30-69 №1. Схема соединений (Лист 1) ТП 902-2-286-АК-7 Шкаф РТ30-69 №1. Схема соединений (Лист 2) ТП 902-2-286-АК-8 Шкаф РТ30-69 №2. Схема соединений (Лист 1) ТП 902-2-286-АК-9 Шкаф РТ30-69 №2. Схема соединений (Лист 2) ТП 902-2-286-АК-10 Схема подключения электрооборудования ТП 902-2-286-АК-11 Кабельный журнал ТП 902-2-286-АК-12 Опросные листы и попанельная спецификация шкафов ШР1107-67 и РТ30-69 | Разработан: | ЦНИИЭП иженерного оборудования
| Утверждён: | 22.07.1974 Госгражданстрой (Gosgrazhdanstroy 164)
| Расположен в: |
|
                           
|