Информационная система
«Ёшкин Кот»

Скачать базу одним архивом
Скачать обновления
История создания базы
Карта сайта

Скачать Типовой проект 901-7-5.84 Альбом II. Технологическая и санитарно-техническая части. Вариант обеззараживания питьевых вод

Дата актуализации: 10.08.2017

Типовой проект 901-7-5.84

Альбом II. Технологическая и санитарно-техническая части. Вариант обеззараживания питьевых вод

Обозначение: Типовой проект 901-7-5.84
Обозначение англ: 901-7-5.84
Статус:действует
Название рус.:Альбом II. Технологическая и санитарно-техническая части. Вариант обеззараживания питьевых вод
Дата добавления в базу:01.09.2013
Дата актуализации:05.05.2017
Оглавление:ТП 901-7-5.84 Содержание альбома
ТП 901-7-5.84-ТХ Технологическая часть
ТП 901-7-5.84-ТХ-1 Общие данные
ТП 901-7-5.84-ТХ-2 Вариант подачи газообразного хлора. Принципиальная схема
ТП 901-7-5.84-ТХ-3 Вариант подачи хлорной воды. Принципиальная схема
ТП 901-7-5.84-ТХ-4 Планы с расстановкой оборудования. Разрез 1-1
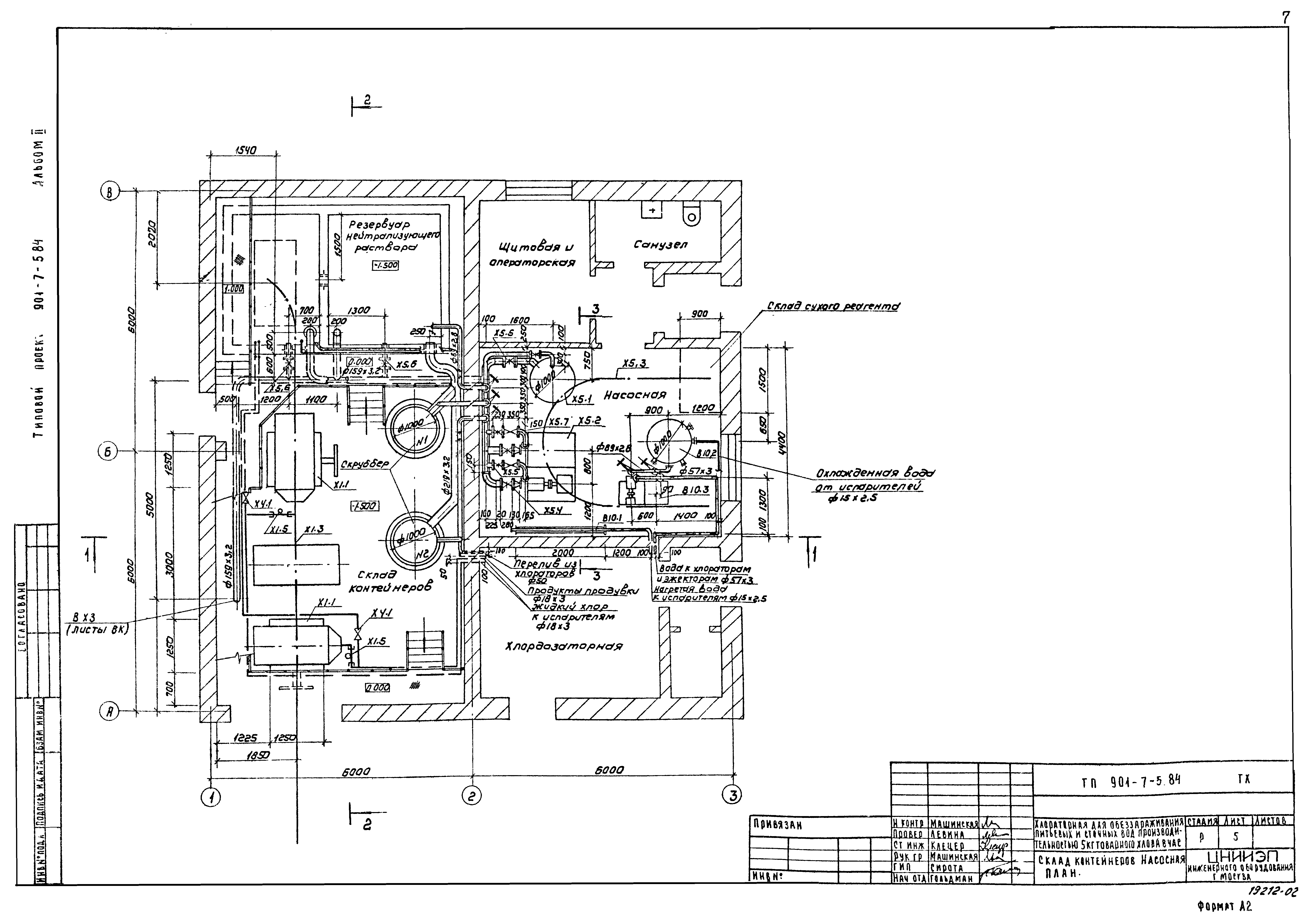
ТП 901-7-5.84-ТХ-5 Склад контейнеров. Насосная. План
ТП 901-7-5.84-ТХ-6 Склад контейнеров. Насосная. Разрезы 1-1;2-2;3-3
ТП 901-7-5.84-ТХ-7 Вариант подачи газообразного хлора. Хлордозаторная. План. Разрез 1-1
ТП 901-7-5.84-ТХ-8 Вариант подачи хлорной воды. Хлордозаторная. План на отм. 0.000
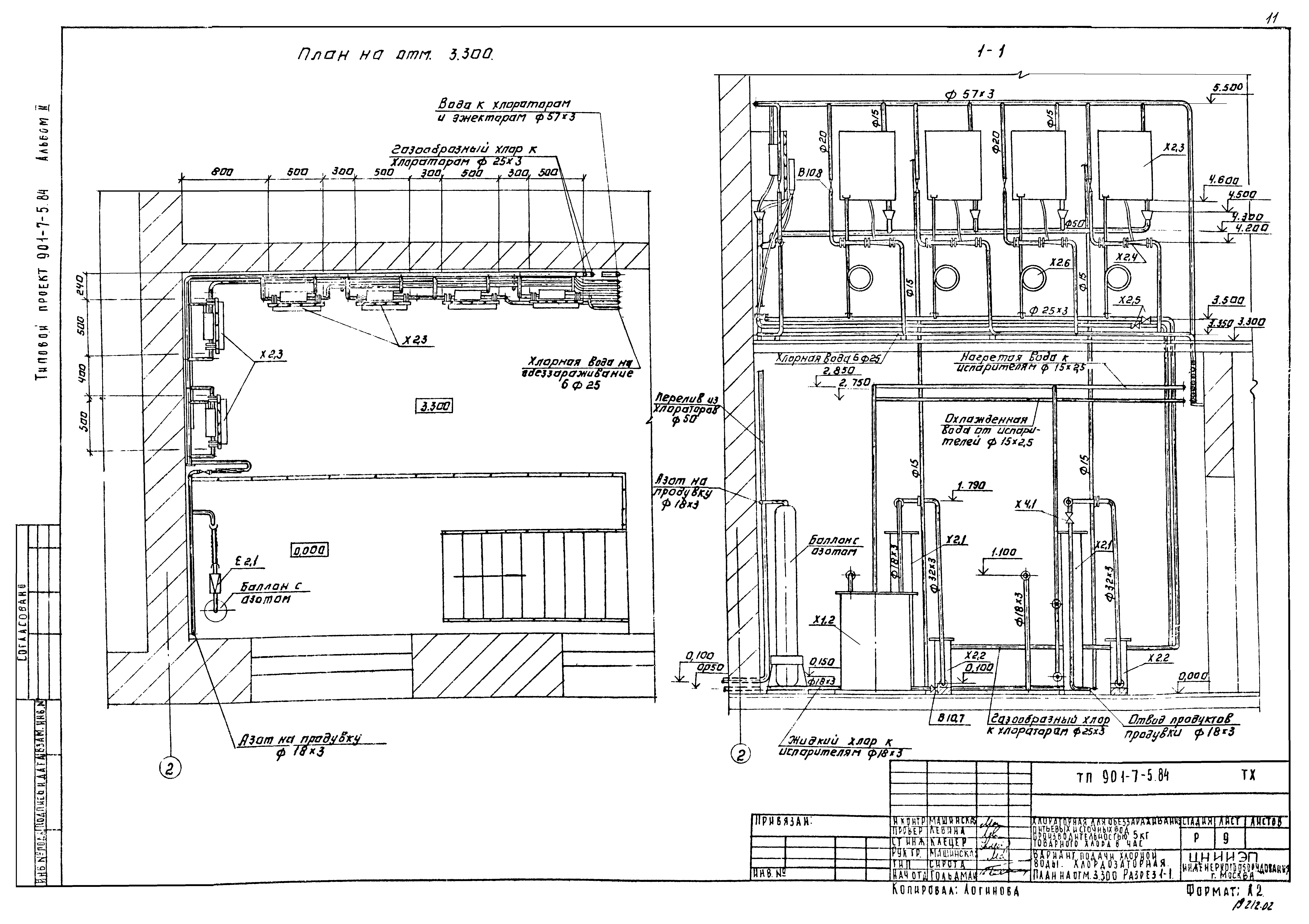
ТП 901-7-5.84-ТХ-9 Вариант подачи хлорной воды. Хлордозаторная. План на отм. 3.300. Разрез 1-1
ТП 901-7-5.84-ТХ-10 Схемы Х1;Х2;Х3;Х4
ТП 901-7-5.84-ТХ-11 Схемы В10;Х4;Е2
ТП 901-7-5.84-ТХ-12 Схема Х5.
ТП 901-7-5.84-ВК Внутренний водопровод и канализация
ТП 901-7-5.84-ВК-1 Общие данные
ТП 901-7-5.84-ВК-2 План. Схемы В1;Х1;Х3;ТО
ТП 901-7-5.84-ОВ Отопление и вентиляция
ТП 901-7-5.84-ОВ-1 Общие данные
ТП 901-7-5.84-ОВ-2 Планы на отм. 0.000 и 3.300
ТП 901-7-5.84-ОВ-3 Схемы систем вентиляции П1;П2;В1;В2;В3;В4 отопления
ТП 901-7-5.84-ОВ-4 Установка систем П1;П2;В1;В2;В3;В4. Схема системы теплоснабжения
ТП 901-7-5.84-ОВН Переходы
Разработан: ЦНИИЭП иженерного оборудования
Утверждён:27.12.1979 Госгражданстрой (Gosgrazhdanstroy 279)
Расположен в:Техническая документация Строительство Справочные документы Типовые строительные конструкции, изделия и узлы Общероссийский строительный каталог Промышленные предприятия, здания и сооружения Здания и сооружения санитарно-технические Водоснабжение Сооружения и установки по обеззараживанию воды Реагентное хозяйство для станций очистки
Типовой проект 901-7-5.84Типовой проект 901-7-5.84Типовой проект 901-7-5.84Типовой проект 901-7-5.84Типовой проект 901-7-5.84Типовой проект 901-7-5.84Типовой проект 901-7-5.84Типовой проект 901-7-5.84Типовой проект 901-7-5.84Типовой проект 901-7-5.84Типовой проект 901-7-5.84Типовой проект 901-7-5.84Типовой проект 901-7-5.84Типовой проект 901-7-5.84Типовой проект 901-7-5.84Типовой проект 901-7-5.84Типовой проект 901-7-5.84Типовой проект 901-7-5.84Типовой проект 901-7-5.84Типовой проект 901-7-5.84Типовой проект 901-7-5.84Типовой проект 901-7-5.84Типовой проект 901-7-5.84

© 2013 Ёшкин Кот :-) Карта сайта