Информационная система
«Ёшкин Кот»

Скачать базу одним архивом
Скачать обновления
История создания базы
Карта сайта

Скачать Типовой проект 901-1-87.87 Альбом IV. Индустриальные изделия

Дата актуализации: 10.08.2017

Типовой проект 901-1-87.87

Альбом IV. Индустриальные изделия

Обозначение: Типовой проект 901-1-87.87
Обозначение англ: 901-1-87.87
Статус:не определен законодательством
Название рус.:Альбом IV. Индустриальные изделия
Дата добавления в базу:01.09.2013
Дата актуализации:05.05.2017
Дата введения:28.08.1987
Оглавление:ТП 901-1-87.87-КЖИ-ТТ Технические требования
ТП 901-1-87.87-КЖИ-П20-3б-1 Плита перекрытия П20-3б-1;П14-3б-1;П14д-3б-1
ТП 901-1-87.87-КЖИ-П20-3б-1 СБ Плита перекрытия П20-3б-1;П14-3б-1;П14д-3б-1. Сборочный чертеж
ТП 901-1-87.87-КЖИ-ПГ-2АтVIТ-1 Плита ПГ-2АтVIТ-1
ТП 901-1-87.87-КЖИ-ПВ4-2АтVIТ-1 Плита ПВ4-2АтVIТ-1;ПВ4-2АтVIТ-2;ПВ10-2АтVIТ-1
ТП 901-1-87.87-КЖИ-ПЖ1-2-1 Плита ПЖ1-2-1;ПЖ1-2-2
ТП 901-1-87.87-КЖИ-1БСД9-5АVТ-1 Балка 1БСД9-5АVТ-1
ТП 901-1-87.87-КЖИ-1БСД9-5АVТ-2 Балка 1БСД9-5АVТ-2
ТП 901-1-87.87-КЖИ-ПС60 Панель стеновая ПС (надземная часть)
ТП 901-1-87.87-КЖИ-ПС60 СБ Панель стеновая ПС (надземная часть). Сборочный чертеж
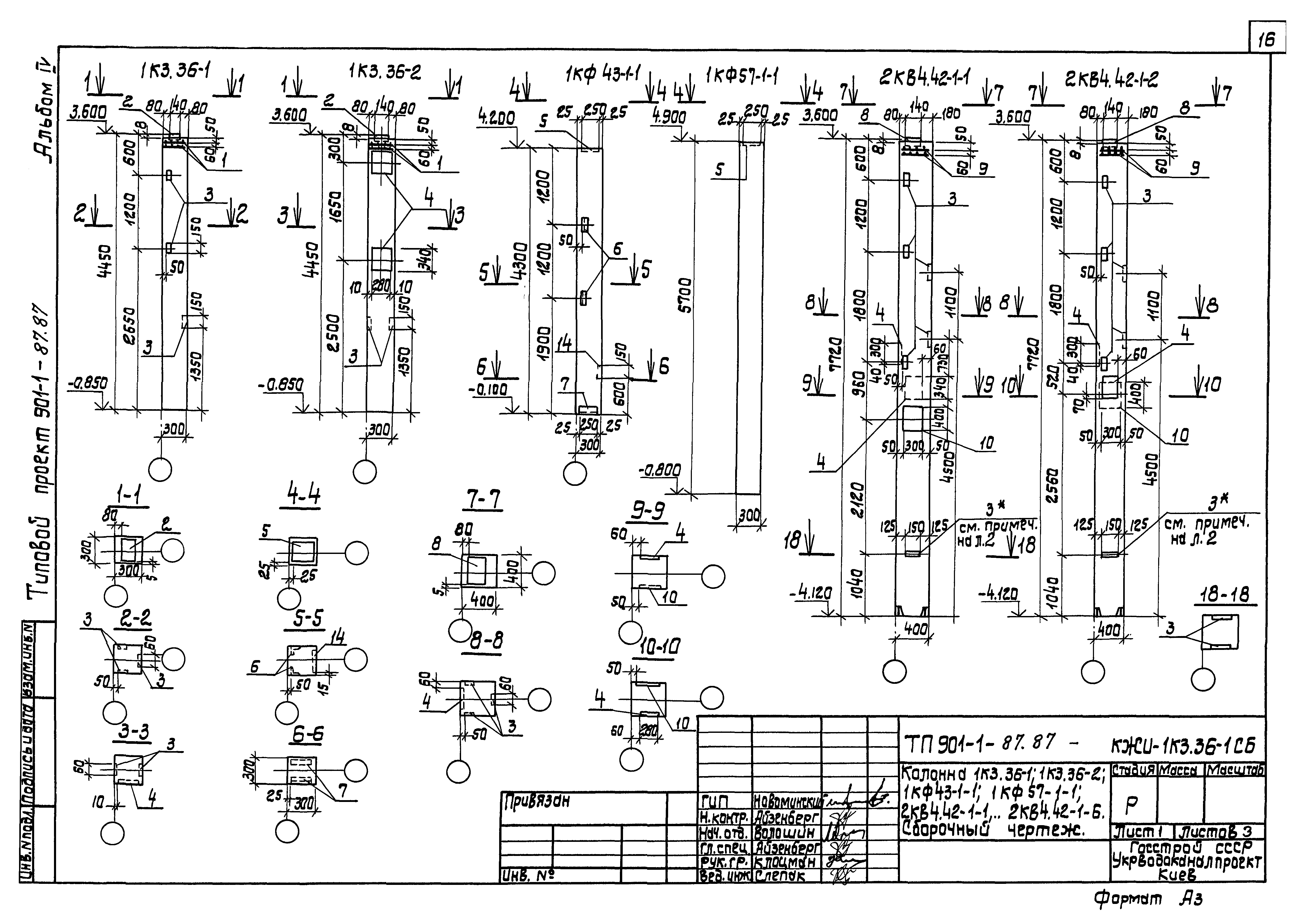
ТП 901-1-87.87-КЖИ-1К3.36-1 Колонна 1К3.36-1;1К3.36-2;1КФ43-1-1;1КФ57-1-1;2КВ4.42-1-1...2КВ4.42-1-6
ТП 901-1-87.87-КЖИ-1К3.36-1 СБ Колонна 1К3.36-1;1К3.36-2;1КФ43-1-1;1КФ57-1-1;2КВ4.42-1-1...2КВ4.42-1-6. Сборочный чертеж
ТП 901-1-87.87-КЖИ-ПК30.6,5-л Панель карнизная ПК30.6,5-л
ТП 901-1-87.87-КЖИ-ПК5.6,5-л Панель карнизная ПК5.6,5-л
ТП 901-1-87.87-КЖИ-2ПП25-8-1 Перемычка 2ПП25-8-1;2ПП25-8-2
ТП 901-1-87.87-КЖИ-ПС2А-54-К1 Панель стеновая ПС2А-54-К1...ПС2А-54-К3
ТП 901-1-87.87-КЖИ-ПС2А-54-К1 СБ Панель стеновая ПС2А-54-К1...ПС2А-54-К3. Сборочный чертеж
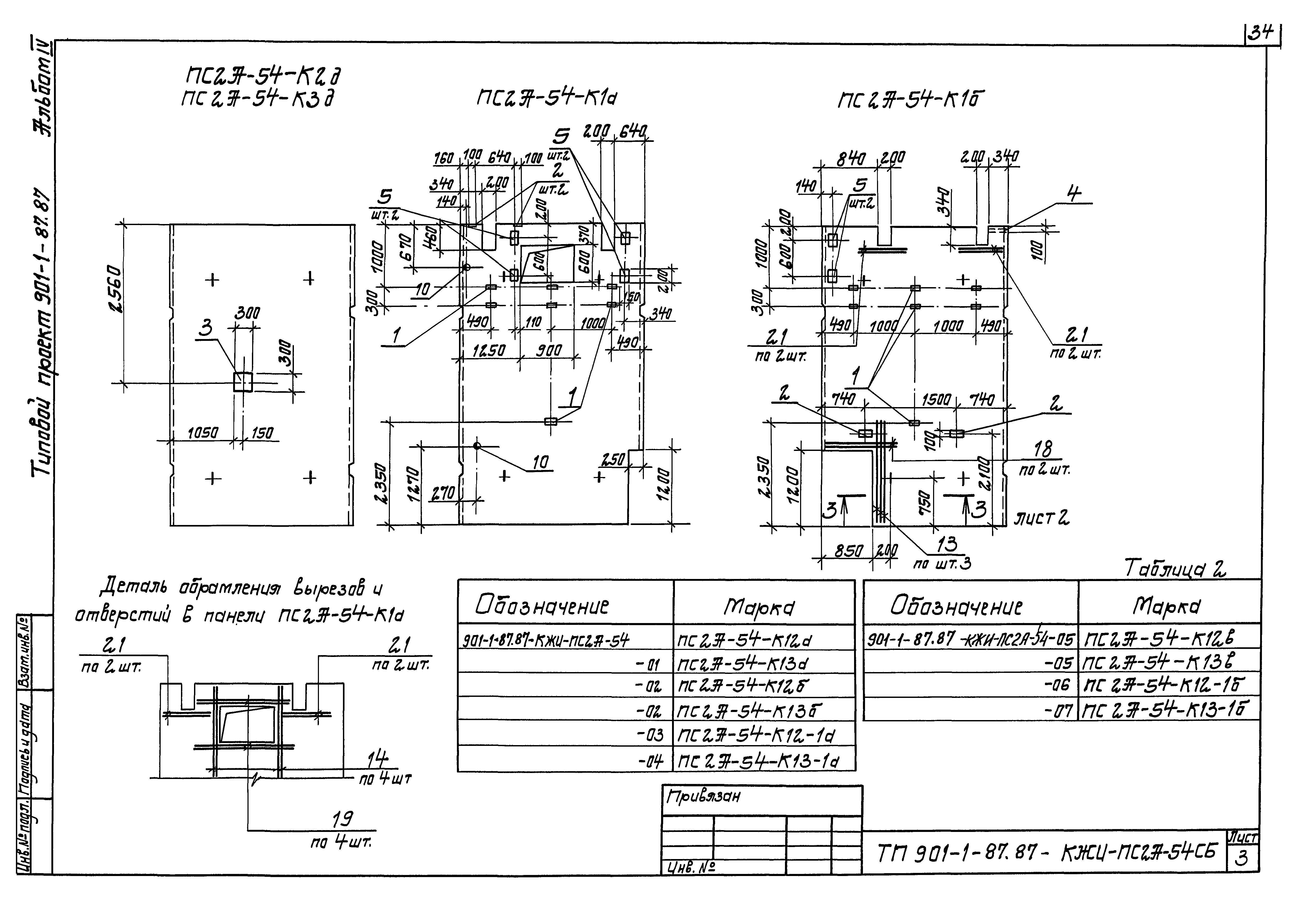
ТП 901-1-87.87-КЖИ-ПС2А-54-К12 Панель стеновая ПС2А-54-К12...ПС2А-54-К13-1
ТП 901-1-87.87-КЖИ-ПС2А-54-К12СБ Панель стеновая ПС2А-54-К12...ПС2А-54-К13-1. Сборочный чертеж
ТП 901-1-87.87-КЖИ-ПС2А-54 Панель стеновая ПС2А-54 с дополнительными закладными изделиями
ТП 901-1-87.87-КЖИ-ПС2А-54 СБ Панель стеновая ПС2А-54 с дополнительными закладными изделиями. Сборочный чертеж
ТП 901-1-87.87-КЖИ-КР1 Каркас плоский КР1...КР3
ТП 901-1-87.87-КЖИ-КР1 СБ Каркас плоский КР1...КР3. Сборочный чертеж
ТП 901-1-87.87-КЖИ-КР4 Каркас плоский КР4
ТП 901-1-87.87-КЖИ-КР5 Каркас плоский КР5
ТП 901-1-87.87-КЖИ-КР6 Каркас плоский КР6
ТП 901-1-87.87-КЖИ-МН1 Изделие закладное МН1
ТП 901-1-87.87-КЖИ-МН2 Изделие закладное МН2
ТП 901-1-87.87-КЖИ-МН3 Изделие закладное МН3
ТП 901-1-87.87-КЖИ-МН4 Изделие закладное МН4
ТП 901-1-87.87-КЖИ-МН5 Изделие закладное МН5
ТП 901-1-87.87-КЖИ-МН6 Изделие закладное МН6;МН7
ТП 901-1-87.87-КЖИ-МН6 СБ Изделие закладное МН6;МН7. Сборочный чертеж
ТП 901-1-87.87-КЖИ-МН8 Изделие закладное МН8
ТП 901-1-87.87-КЖИ-МН9 Изделие закладное МН9
ТП 901-1-87.87-КЖИ-МН10 Изделие закладное МН10
ТП 901-1-87.87-КЖИ-МН5 Изделие соединительное МС5;МС6
ТП 901-1-87.87-КЖИ-МС1 Изделие соединительное МС1
ТП 901-1-87.87-КЖИ-МС2 Изделие соединительное МС2
ТП 901-1-87.87-КЖИ-МС3 Изделие соединительное МС3
ТП 901-1-87.87-КЖИ-МС4 Изделие соединительное МС4
ТП 901-1-87.87-КЖИ-МС8 Изделие соединительное МС8
ТП 901-1-87.87-КЖИ-МС9 Изделие соединительное МС9
ТП 901-1-87.87-КЖИ-МС7 Изделие соединительное МС7, МС10...МС12
ТП 901-1-87.87-КЖИ-МС7 СБ Изделие соединительное МС7, МС10...МС12. Сборочный чертеж
ТП 901-1-87.87-КЖИ-РМ1 Решетка РМ1
ТП 901-1-87.87-КЖИ-РМ2 Решетка РМ2
ТП 901-1-87.87-КЖИ-МН11 Изделие закладное МН11
Разработан: Укрводоканалпроект
Утверждён:28.08.1987 Госстрой СССР (Государственный комитет Совета Министров СССР по делам строительства) (USSR Gosstroy 57)
Расположен в:Техническая документация Строительство Справочные документы Типовые строительные конструкции, изделия и узлы Общероссийский строительный каталог Промышленные предприятия, здания и сооружения Здания и сооружения санитарно-технические Водоснабжение Насосные станции Насосные станции водопроводные
Заменяет собой:
  • Типовой проект 901-2-13/80
Типовой проект 901-1-87.87Типовой проект 901-1-87.87Типовой проект 901-1-87.87Типовой проект 901-1-87.87Типовой проект 901-1-87.87Типовой проект 901-1-87.87Типовой проект 901-1-87.87Типовой проект 901-1-87.87Типовой проект 901-1-87.87Типовой проект 901-1-87.87Типовой проект 901-1-87.87Типовой проект 901-1-87.87Типовой проект 901-1-87.87Типовой проект 901-1-87.87Типовой проект 901-1-87.87Типовой проект 901-1-87.87Типовой проект 901-1-87.87Типовой проект 901-1-87.87Типовой проект 901-1-87.87Типовой проект 901-1-87.87Типовой проект 901-1-87.87Типовой проект 901-1-87.87Типовой проект 901-1-87.87Типовой проект 901-1-87.87Типовой проект 901-1-87.87Типовой проект 901-1-87.87Типовой проект 901-1-87.87Типовой проект 901-1-87.87Типовой проект 901-1-87.87Типовой проект 901-1-87.87Типовой проект 901-1-87.87Типовой проект 901-1-87.87Типовой проект 901-1-87.87Типовой проект 901-1-87.87Типовой проект 901-1-87.87Типовой проект 901-1-87.87Типовой проект 901-1-87.87Типовой проект 901-1-87.87Типовой проект 901-1-87.87Типовой проект 901-1-87.87Типовой проект 901-1-87.87Типовой проект 901-1-87.87Типовой проект 901-1-87.87Типовой проект 901-1-87.87Типовой проект 901-1-87.87Типовой проект 901-1-87.87Типовой проект 901-1-87.87Типовой проект 901-1-87.87Типовой проект 901-1-87.87Типовой проект 901-1-87.87

© 2013 Ёшкин Кот :-) Карта сайта