| ||||||||||||||||||||||||
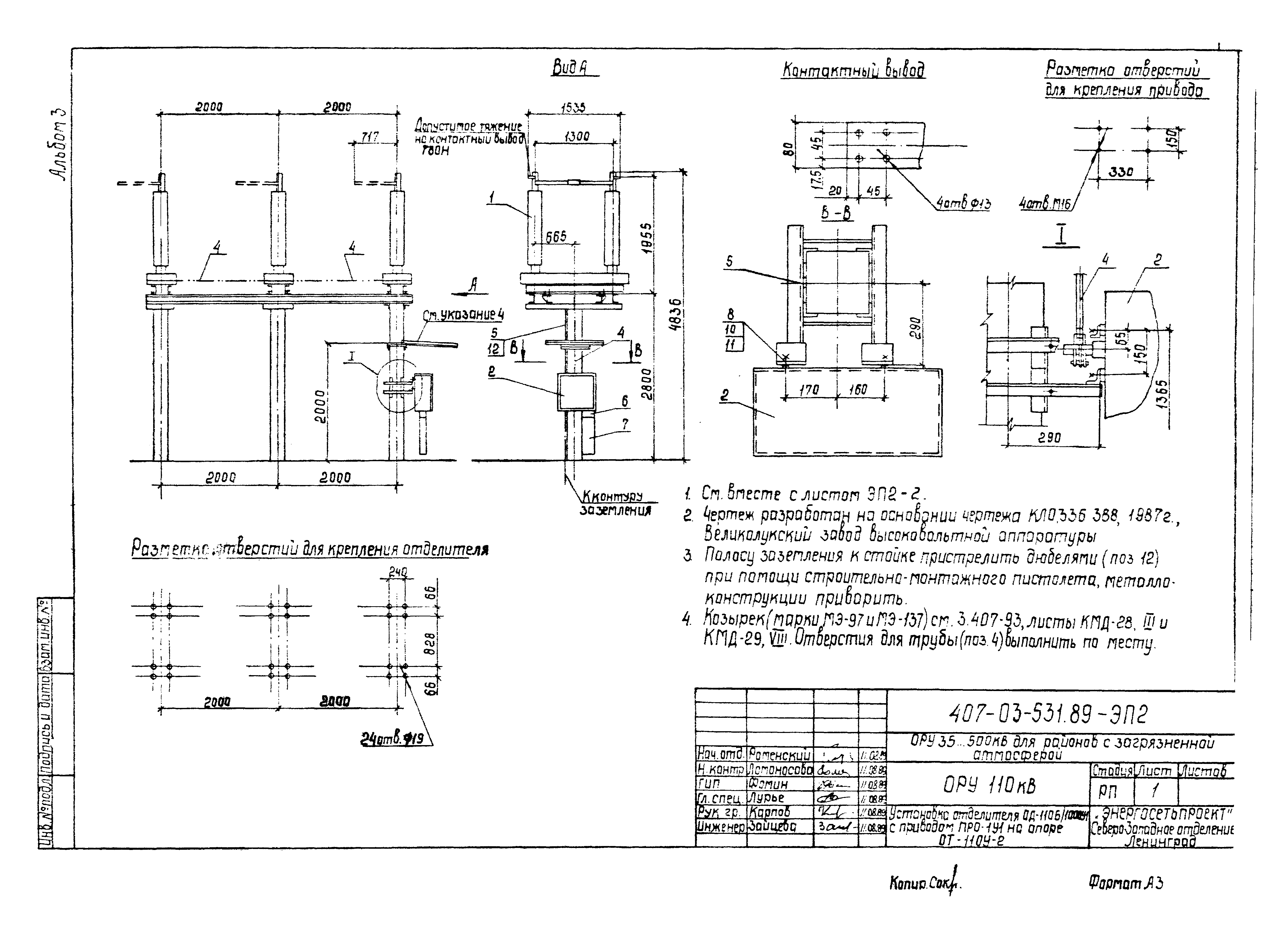
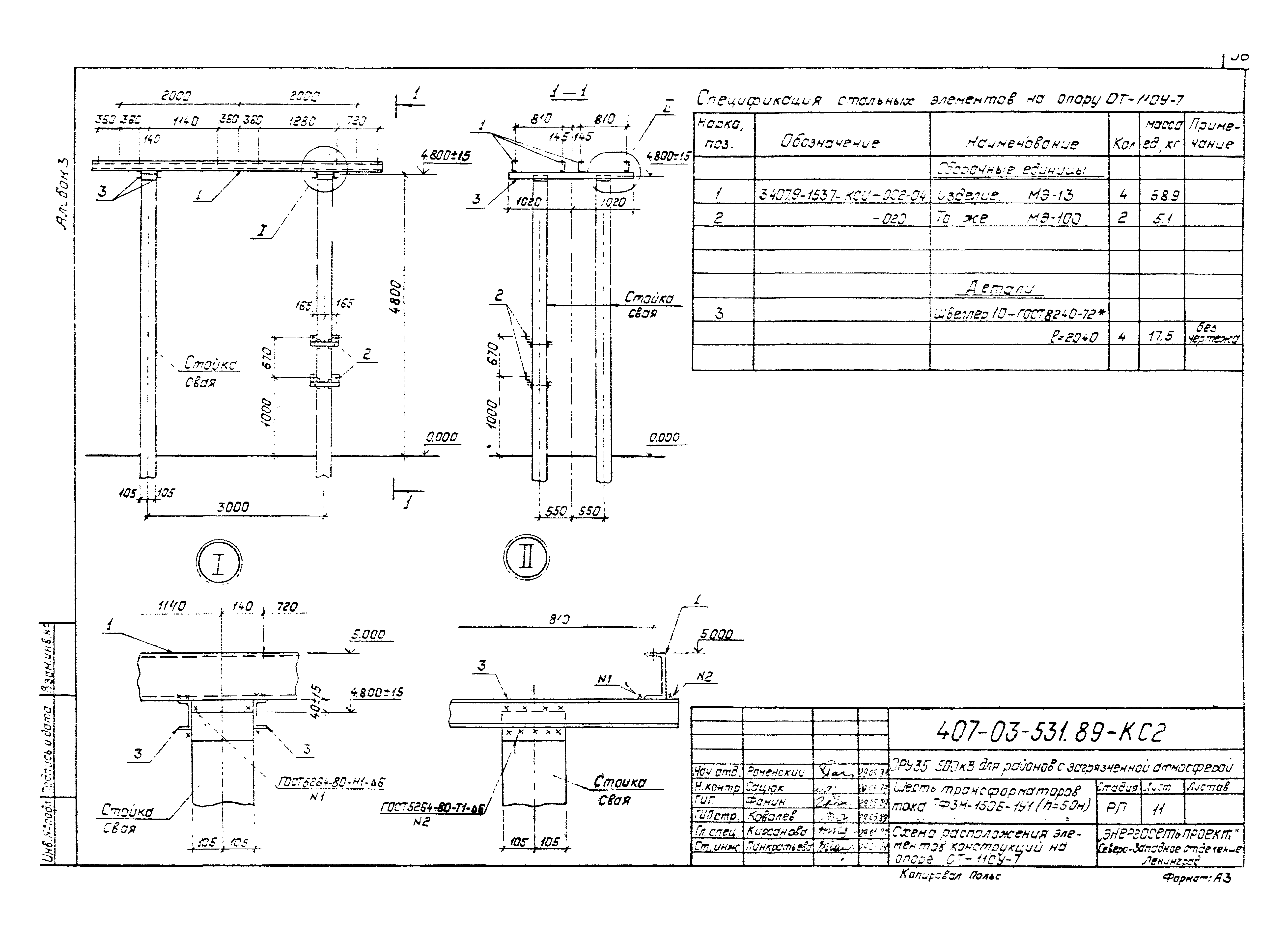
Скачать Типовые материалы для проектирования 407-03-531.89 Альбом 3. ОРУ 110 кВ. Электротехнические чертежи. Строительные чертежиДата актуализации: 10.08.2017
|
| Обозначение: | Типовые материалы для проектирования 407-03-531.89 |
| Обозначение англ: | 407-03-531.89 |
| Статус: | cправочные материалы, мп, тпр |
| Название рус.: | Альбом 3. ОРУ 110 кВ. Электротехнические чертежи. Строительные чертежи |
| Дата добавления в базу: | 01.09.2013 |
| Дата актуализации: | 05.05.2017 |
| Дата введения: | 05.10.1989 |
| Разработан: | Северо-западное отделение института Энергосетьпроект |
| Утверждён: | 05.10.1989 Энергосетьпроект (Energosetproject 37) |
| Расположен в: |





































































