Информационная система
«Ёшкин Кот»

Скачать базу одним архивом
Скачать обновления
История создания базы
Карта сайта

Скачать Типовой проект 902-1-53 Альбом I. Технологические решения. Строительные решения. Электротехнические решения

Дата актуализации: 10.08.2017

Типовой проект 902-1-53

Альбом I. Технологические решения. Строительные решения. Электротехнические решения

Обозначение: Типовой проект 902-1-53
Обозначение англ: 902-1-53
Статус:не действует
Название рус.:Альбом I. Технологические решения. Строительные решения. Электротехнические решения
Дата добавления в базу:01.09.2013
Дата актуализации:05.05.2017
Оглавление:ТП 902-1-53 Содержание альбома
ТП 902-1-53-МК Технологические решения (МК)
ТП 902-1-53-МК-1 Общие данные. Ведомость чертежей основного комплекта. Пояснительная записка (начало)
ТП 902-1-53-МК-2 Общие данные. Пояснительная записка (окончание). Свободная спецификация
ТП 902-1-53-МК-3 План, разрез 1-1 с насосами ЦМК-16-27. Спецификация
ТП 902-1-53-МК-4 План, разрез 1-1 с насосами 2.59ЦК-16-6. Спецификация
ТП 902-1-53-КЖ Строительные решения (КЖ)
ТП 902-1-53-КЖ-1 Общие данные (начало)
ТП 902-1-53-КЖ-2 Общие данные (продолжение)
ТП 902-1-53-КЖ-3 Общие данные (окончание)
ТП 902-1-53-КЖ-4 Насосная станция. Планы и разрез (в сухих и мокрых грунтах)
ТП 902-1-53-КЖ-5 Камера отключения и колодец с арматурой. Планы и разрезы. Детали
ТП 902-1-53-КЖ-6 Насосная станция. Монтажно-маркировочные схемы при Нкол.=3.000;4.000 и 5.000 м
ТП 902-1-53-КЖ-7 Приемный резервуар. Опалубочный чертеж. Бортик на отм. 0.650;0.550;0.450. Фундаменты под оборудование
ТП 902-1-53-КЖ-8 Приемный резервуар. Стены и днище. Армирование
ТП 902-1-53-КЖ-9 Плита П1. Опалубочный чертеж и армирование
ТП 902-1-53-КЖ-10 Плита ПМ1. Опалубочный чертеж и армирование
ТП 902-1-53-КЖ-11 Стеновые кольца КЦ-15-9А и КЦ-20-6А. Опалубочный чертеж и армирование
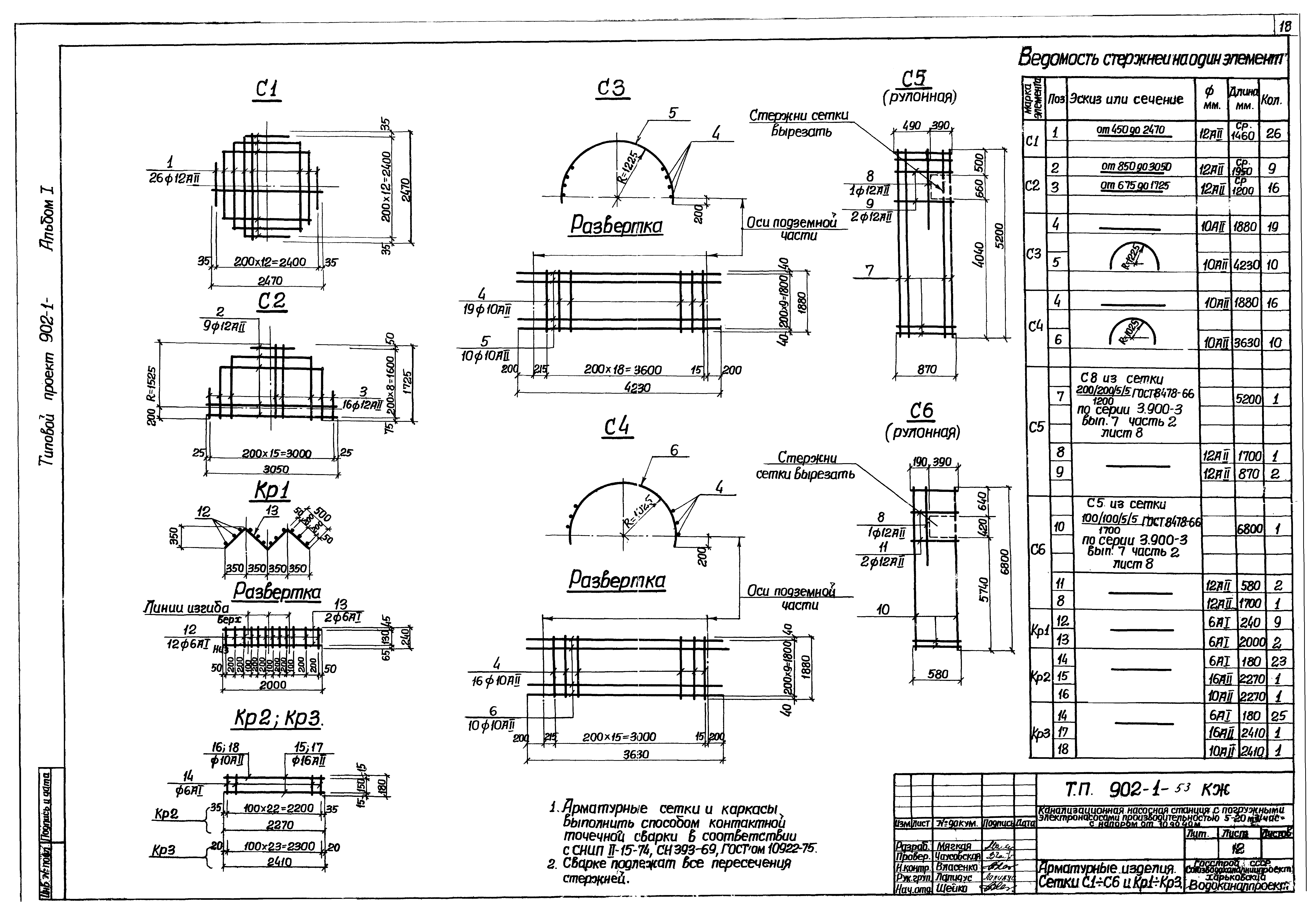
ТП 902-1-53-КЖ-12 Арматурные изделия. Сетки С1-С6 и КР1-КР3
ТП 902-1-53-КЖ-13 Изделия закладные и соединительные
ТП 902-1-53-ЭО Электрические решения (ЭО)
ТП 902-1-53-ЭО-1 Общие данные (начало)
ТП 902-1-53-ЭО-2 Общие данные (окончание)
ТП 902-1-53-ЭО-3 Схема электрическая принципиальная управления насосами
ТП 902-1-53-ЭО-4 Схема подключения и план расположения электрооборудования. Прокладка кабелей. Установка датчиков уровня
Разработан: Харьковский Водоканалпроект
Утверждён:21.03.1980 СоюзводоканалНИИпроект (SoyuzvodokanalNIIproject 83)
Расположен в:Техническая документация Строительство Справочные документы Типовые строительные конструкции, изделия и узлы Общероссийский строительный каталог Промышленные предприятия, здания и сооружения Здания и сооружения санитарно-технические Канализация Станции насосные Станции насосные для перекачки бытовых сточных вод
Заменяет собой:
Типовой проект 902-1-53Типовой проект 902-1-53Типовой проект 902-1-53Типовой проект 902-1-53Типовой проект 902-1-53Типовой проект 902-1-53Типовой проект 902-1-53Типовой проект 902-1-53Типовой проект 902-1-53Типовой проект 902-1-53Типовой проект 902-1-53Типовой проект 902-1-53Типовой проект 902-1-53Типовой проект 902-1-53Типовой проект 902-1-53Типовой проект 902-1-53Типовой проект 902-1-53Типовой проект 902-1-53Типовой проект 902-1-53Типовой проект 902-1-53Типовой проект 902-1-53Типовой проект 902-1-53Типовой проект 902-1-53

© 2013 Ёшкин Кот :-) Карта сайта