| ||||||||||||||||||||||||
Скачать Типовые проектные решения 704-05-18 Альбом I. Пояснительная записка. Чертежи технологические, электротехнические, строительные, КИП и автоматикиДата актуализации: 10.08.2017
|
| Обозначение: | Типовые проектные решения 704-05-18 |
| Обозначение англ: | 704-05-18 |
| Статус: | cправочные материалы, мп, тпр |
| Название рус.: | Альбом I. Пояснительная записка. Чертежи технологические, электротехнические, строительные, КИП и автоматики |
| Дата добавления в базу: | 01.09.2013 |
| Дата актуализации: | 05.05.2017 |
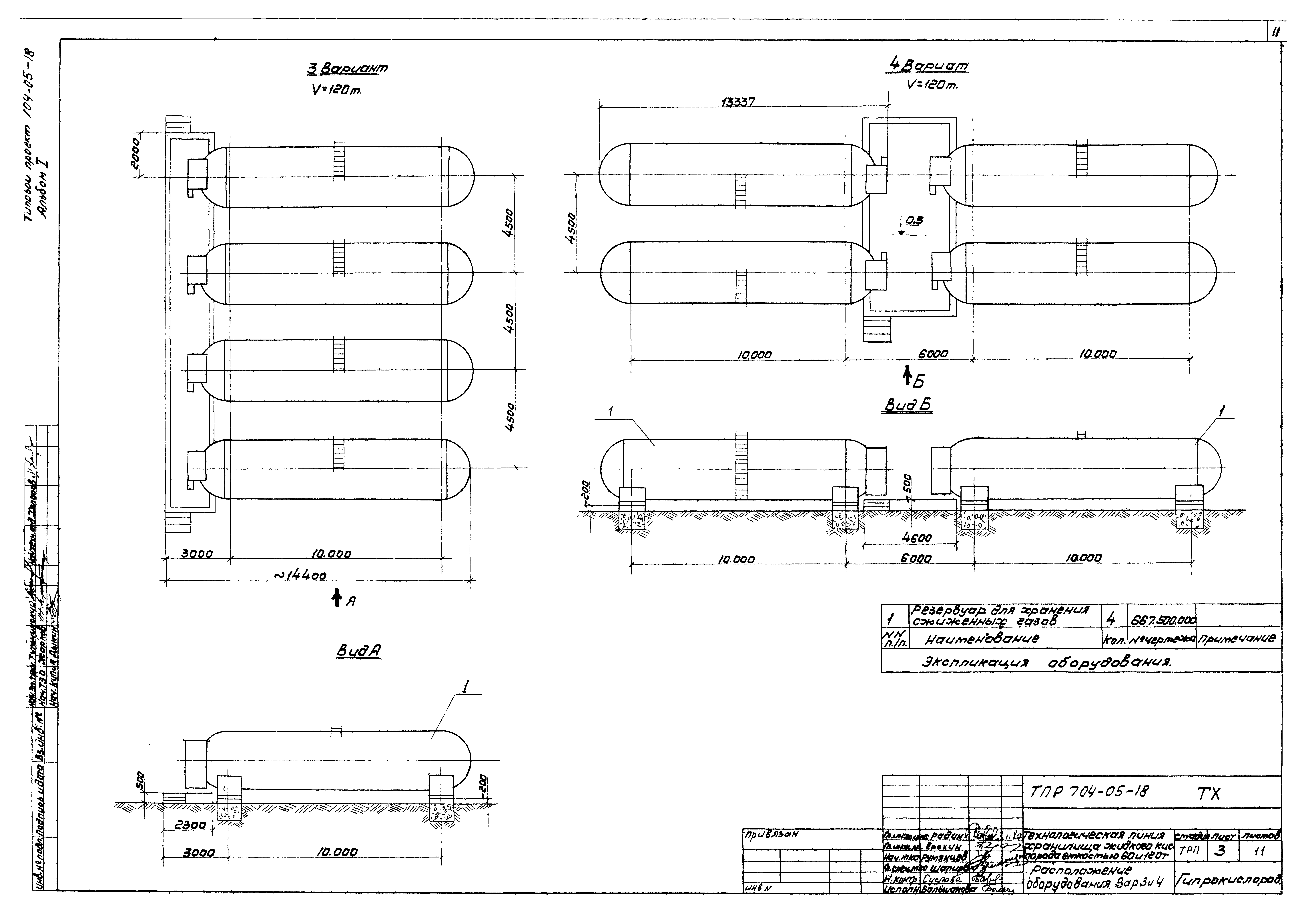
| Оглавление: | ТП 704-05-18 Технологическая часть ТП 704-05-18-ПЗ-1 Содержание альбома ТП 704-05-18-ПЗ-2 Пояснительная записка (начало) ТП 704-05-18-ПЗ-3 Пояснительная записка (продолжение) ТП 704-05-18-ПЗ-4 Пояснительная записка (продолжение) ТП 704-05-18-ПЗ-5 Пояснительная записка (продолжение) ТП 704-05-18-ПЗ-6 Пояснительная записка (окончание) ТП 704-05-18-ГП-1 Схема генплана ТП 704-05-18-ТХ-1 Общие данные ТП 704-05-18-ТХ-2 Расположение оборудования. Вар. 1 и 2 ТП 704-05-18-ТХ-3 Расположение оборудования. Вар. 3 и 4 ТП 704-05-18-ТХ-4 Монтажно-технологическая схема (налив из ж.д. емкости) ТП 704-05-18-ТХ-5 Монтажно-технологическая схема (налив из автомобильной емкости) ТП 704-05-18-ТХ-6 Монтажно-технологическая схема (слив в автомобильную емкость АГУ-2М и транспортную емкость) ТП 704-05-18-ТХ-7 Монтажно-технологическая схема (слив в ГХК) ТП 704-05-18-ТХ-8 Монтажно-технологическая схема (слив в СГУ) ТП 704-05-18-ТХ-9 Схема соединения емкостей ТП 704-05-18-ТХ-10 Вариант 1,2. План, узлы, спецификация и объем изоляционного материала ТП 704-05-18-ТХ-11 Вариант 3,4. План, узлы, спецификация и объем изоляционного материала ТП 704-05-18-ЭЛ Электротехническая часть ТП 704-05-18-ЭЛ-1 Молниезащита и защита от статического электричеств 1 и 2 вариант ТП 704-05-18-ЭЛ-2 Молниезащита и защита от статического электричеств 3 и 4 вариант ТП 704-05-18-КЖ Строительная часть ТП 704-05-18-КЖ-1 Схема расположения фундаментов, спецификация элементов ФОМ1. Узел "А". Вар.1 ТП 704-05-18-КЖ-2 Схема расположения фундаментов, спецификация элементов ФОМ1. Узел "А". Вар.2 ТП 704-05-18-КЖ-3 Схема расположения фундаментов, спецификация элементов ФОМ1. Узел "А". Вар.3 ТП 704-05-18-КЖ-4 Схема расположения фундаментов, спецификация элементов ФОМ1. Узел "А". Вар.4 |
| Разработан: | Госхимпроект Гипрокислород Минхимнефтепрома СССР |
| Утверждён: | 15.02.1982 Минхимпром (47/4-532) |
| Расположен в: |

























