| ||||||||||||||||||||||||||
Скачать Шифр 1484 Выпуск 0-1. Трубы для железных дорог. Материалы для проектированияДата актуализации: 10.08.2017
|
| Обозначение: | Шифр 1484 |
| Обозначение англ: | 1484 |
| Статус: | не определен законодательством |
| Название рус.: | Выпуск 0-1. Трубы для железных дорог. Материалы для проектирования |
| Дата добавления в базу: | 01.09.2013 |
| Дата актуализации: | 05.05.2017 |
| Дата введения: | 30.05.2002 |
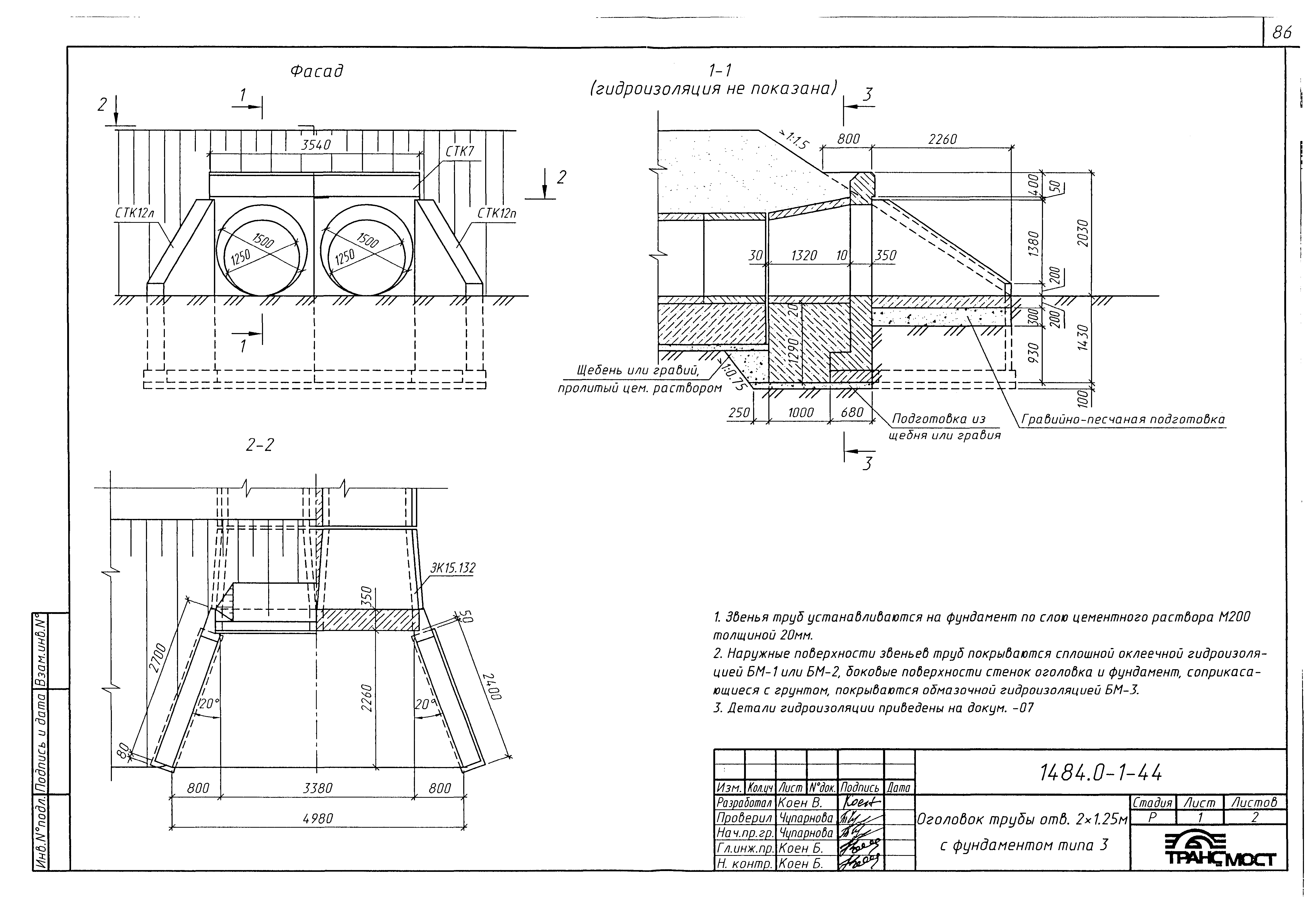
| Оглавление: | 1484.0-1-ПЗ Пояснительная записка 1484.0-1-01 Расчетный лист звеньев труб 1484.0-1-02 Расчетный лист звеньев труб на скальном основании и свайном фундаменте 1484.0-1-03 Расчетный лист звеньев труб в период производства работ 1484.0-1-04 Гидравлические расчеты 1484.0-1-05 Типы оснований и фундаментов и условия их применения 1484.0-1-06 Графики давлений на грунт 1484.0-1-07 Детали устройства гидроизоляции 1484.0-1-08 Схема засыпки трубы 1484.0-1-09 Номенклатура блоков 1484.0-1-10 Укрепление монолитным бетоном 1484.0-1-11 Укрепление блоками П-1 1484.0-1-12 Конструкция конца укрепления 1484.0-1-13 Укрепление каменной наброской 1484.0-1-14 Ведомость объемов работ на 1 п.м средней части труб 1484.0-1-15 Ведомость объемов работ на оголовок 1484.0-1-16 Средняя часть трубы отв. 1.0;2х1.0;3х1.0 м с фундаментом типа 1 1484.0-1-17 Средняя часть трубы отв. 1.25;2х1.25;3х1.25 м с фундаментом типа 1 1484.0-1-18 Средняя часть трубы отв. 1.5;2х1.5;3х1.5 м с фундаментом типа 1 1484.0-1-19 Средняя часть трубы отв. 2.0;2х2.0;3х2.0 м с фундаментом типа 1 1484.0-1-20 Средняя часть трубы отв. 1.0;2х1.0;3х1.0 м с фундаментом типа 2 1484.0-1-21 Средняя часть трубы отв. 1.25;2х1.25;3х1.25 м с фундаментом типа 2 1484.0-1-22 Средняя часть трубы отв. 1.5;2х1.5;3х1.5 м с фундаментом типа 2 1484.0-1-23 Средняя часть трубы отв. 2.0;2х2.0;3х2.0 м с фундаментом типа 2 1484.0-1-24 Средняя часть трубы отв. 1.0;2х1.0;3х1.0 м с фундаментом типа 3 1484.0-1-25 Средняя часть трубы отв. 1.25;2х1.25;3х1.25 м с фундаментом типа 3 1484.0-1-26 Средняя часть трубы отв. 1.5;2х1.5;3х1.5 м с фундаментом типа 3 1484.0-1-27 Средняя часть трубы отв. 2.0;2х2.0;3х2.0 м с фундаментом типа 3 1484.0-1-28 Оголовки трубы отв. 1.0 м с фундаментом типа 1 и 2 1484.0-1-29 Оголовки трубы отв. 2.0 м с фундаментом типа 1 и 2 1484.0-1-30 Оголовки трубы отв. 3.0 м с фундаментом типа 1 и 2 1484.0-1-31 Оголовки трубы отв. 1.25 м с фундаментом типа 1 и 2 1484.0-1-32 Оголовки трубы отв. 2х1.25 м с фундаментом типа 1 и 2 1484.0-1-33 Оголовки трубы отв. 3х1.25 м с фундаментом типа 1 и 2 1484.0-1-34 Оголовки трубы отв. 1.5 м с фундаментом типа 1 и 2 1484.0-1-35 Оголовки трубы отв. 2х1.5 м с фундаментом типа 1 и 2 1484.0-1-36 Оголовки трубы отв. 3х1.5 м с фундаментом типа 1 и 2 1484.0-1-37 Оголовки трубы отв. 2.0 м с фундаментом типа 1 и 2 1484.0-1-38 Оголовки трубы отв. 2х2.0 м с фундаментом типа 1 и 2 1484.0-1-39 Оголовки трубы отв. 3х2.0 м с фундаментом типа 1 и 2 1484.0-1-40 Оголовок трубы отв. 1.0 м с фундаментом типа 3 1484.0-1-41 Оголовок трубы отв. 2х1.0 м с фундаментом типа 3 1484.0-1-42 Оголовок трубы отв. 3х1.0 м с фундаментом типа 3 1484.0-1-43 Оголовок трубы отв. 1.25 м с фундаментом типа 3 1484.0-1-44 Оголовок трубы отв. 2х1.25 м с фундаментом типа 3 1484.0-1-45 Оголовок трубы отв. 3х1.25 м с фундаментом типа 3 1484.0-1-46 Оголовок трубы отв. 1.5 м с фундаментом типа 3 1484.0-1-47 Оголовок трубы отв. 2х1.5 м с фундаментом типа 3 1484.0-1-48 Оголовок трубы отв. 3х1.5 м с фундаментом типа 3 1484.0-1-49 Оголовок трубы отв. 2.0 м с фундаментом типа 3 1484.0-1-50 Оголовок трубы отв. 2х2.0 м с фундаментом типа 3 1484.0-1-51 Оголовок трубы отв. 3х2.0 м с фундаментом типа 3 1484.0-1-52 Пример конструкции оголовка трубы отв. 1.5 м с фундаментом типа 1 и 2 при глубине промерзания 2.0 м 1484.0-1-53 Пример конструкции оголовка трубы отв. 1.5 м с фундаментом типа 3 при глубине промерзания 2.0 м 1484.0-1-54 Пример конструкции трубы отв. 1.5 м с фундаментом типа 1 1484.0-1-55 Пример конструкции трубы отв. 1.25 м с фундаментом типа 2 1484.0-1-56 Пример конструкции трубы отв. 2х1.0 м с фундаментом типа 3 |
| Разработан: | ОАО Трансмост |
| Утверждён: | 23.04.2002 МПС России |
| Расположен в: |















































































































