Скачать Типовой проект 902-2-268 Альбом IV. Узлы и детали, монолитные участки стен. Камеры распределения илаДата актуализации: 10.08.2017 Типовой проект 902-2-268
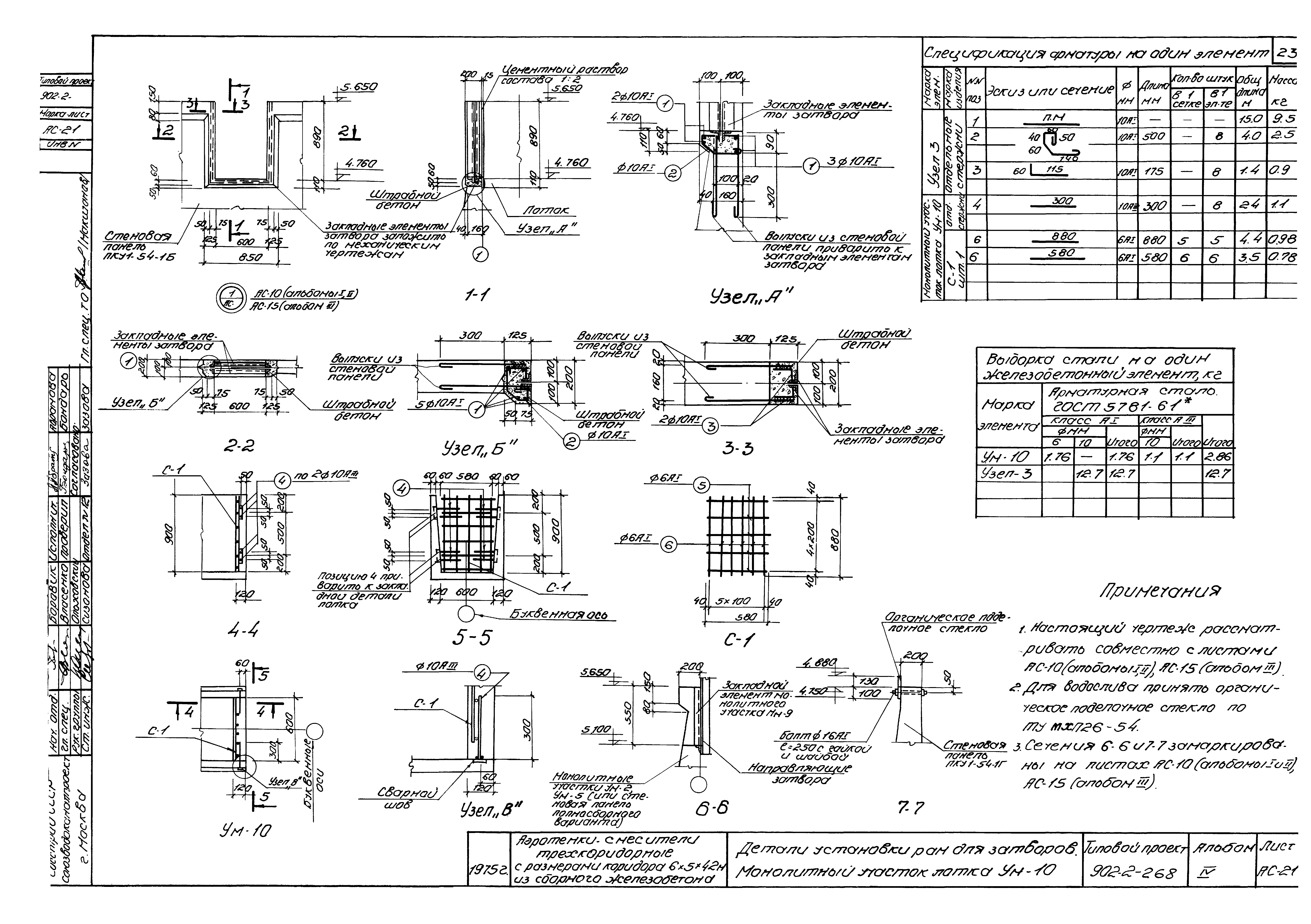
Альбом IV. Узлы и детали, монолитные участки стен. Камеры распределения илаОбозначение: | Типовой проект 902-2-268 | Обозначение англ: | 902-2-268 | Статус: | не действует | Название рус.: | Альбом IV. Узлы и детали, монолитные участки стен. Камеры распределения ила | Дата добавления в базу: | 01.09.2013 | Дата актуализации: | 05.05.2017 | Оглавление: | ТП 902-2-268-ПЗ-1 Содержание альбома ТП 902-2-268-АС-1 Детали разрезов. Типы деформационных швов ТП 902-2-268-АС-2 Опалубочный чертеж днища. Сечения 1-1÷8-8 ТП 902-2-268-АС-3 Опалубочный чертеж днища. Сечение 9-9, узел 1. Спецификация закладных марок на аэротенк ТП 902-2-268-АС-4 Стыки и деформационные швы в стенах и перегородках ТП 902-2-268-АС-5 Детали опирания лотков и плит ходовых мостиков ТП 902-2-268-АС-6 Сечения и детали фильтросных каналов ТП 902-2-268-АС-7 Монолитные участки стен УМ-1,УМ-2. Опалубочный чертеж ТП 902-2-268-АС-8 Монолитные участки стен УМ-3,УМ-4. Опалубочный чертеж ТП 902-2-268-АС-9 Монолитные участки стен УМ-5,УМ-6,УМ-7. Опалубочный чертеж ТП 902-2-268-АС-10 Монолитные участки стен УМ-8,УМ-9. Опалубочный чертеж ТП 902-2-268-АС-11 Монолитные участки стен УМ-1,УМ-4. Армирование ТП 902-2-268-АС-12 Монолитные участки стен УМ-1,УМ-4. Армирование и спецификация арматуры ТП 902-2-268-АС-13 Монолитные участки стен УМ-2. Армирование и спецификация арматуры ТП 902-2-268-АС-14 Монолитные участки стен УМ-3. Армирование и спецификация арматуры ТП 902-2-268-АС-15 Монолитные участки стен УМ-5. Армирование ТП 902-2-268-АС-16 Монолитные участки стен УМ-5. Армирование и спецификация арматуры ТП 902-2-268-АС-17 Монолитные участки стен УМ-6. Армирование и спецификация арматуры ТП 902-2-268-АС-18 Монолитные участки стен УМ-7. Армирование и спецификация арматуры ТП 902-2-268-АС-19 Монолитные участки стен УМ-8,УМ-9. Армирование ТП 902-2-268-АС-20 Монолитные участки стен УМ-8,УМ-9. Армирование и спецификация арматуры ТП 902-2-268-АС-21 Монолитные участок лотка УМ-10. Детали установки рам для затворов ТП 902-2-268-АС-22 Монолитные железобетонные торцы каналов для пористых пластин ТП 902-2-268-АС-23 Камера распределения ила №1. Опалубочный чертеж ТП 902-2-268-АС-24 Камера распределения ила №1. Армирование днища ТП 902-2-268-АС-25 Камера распределения ила №1. Армирование стен ТП 902-2-268-АС-26 Камера распределения ила №1. Сетки С-1÷С-10 ТП 902-2-268-АС-27 Камера распределения ила №1. Спецификация арматуры ТП 902-2-268-АС-28 Камера распределения ила №2. Опалубочный чертеж ТП 902-2-268-АС-29 Камера распределения ила №2. Армирование днища ТП 902-2-268-АС-30 Камера распределения ила №2. Армирование стен ТП 902-2-268-АС-31 Камера распределения ила №2. Сетки С-1÷С-10 ТП 902-2-268-АС-32 Камера распределения ила №2. Спецификация арматуры ТП 902-2-268-АС-33 Вариант с полносборными стенами и гибкими сопряжениями стеновых панелей в углах. Узлы 1-4 | Разработан: | Союзводоканалпроект ЦНИИпромзданий
| Утверждён: | 09.12.1975 Главпромстройпроект Госстроя СССР
| Расположен в: |
|
                                  
|