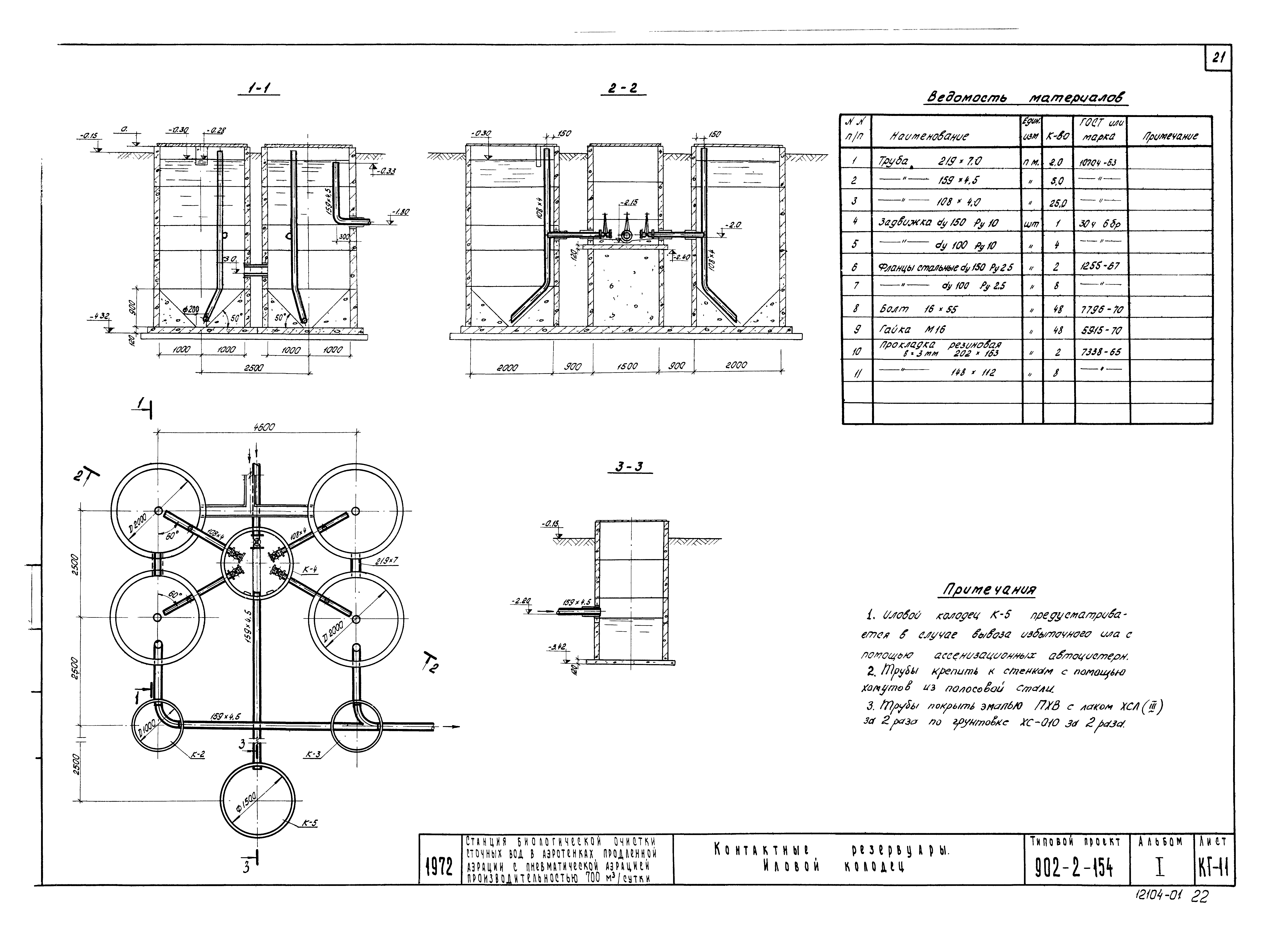
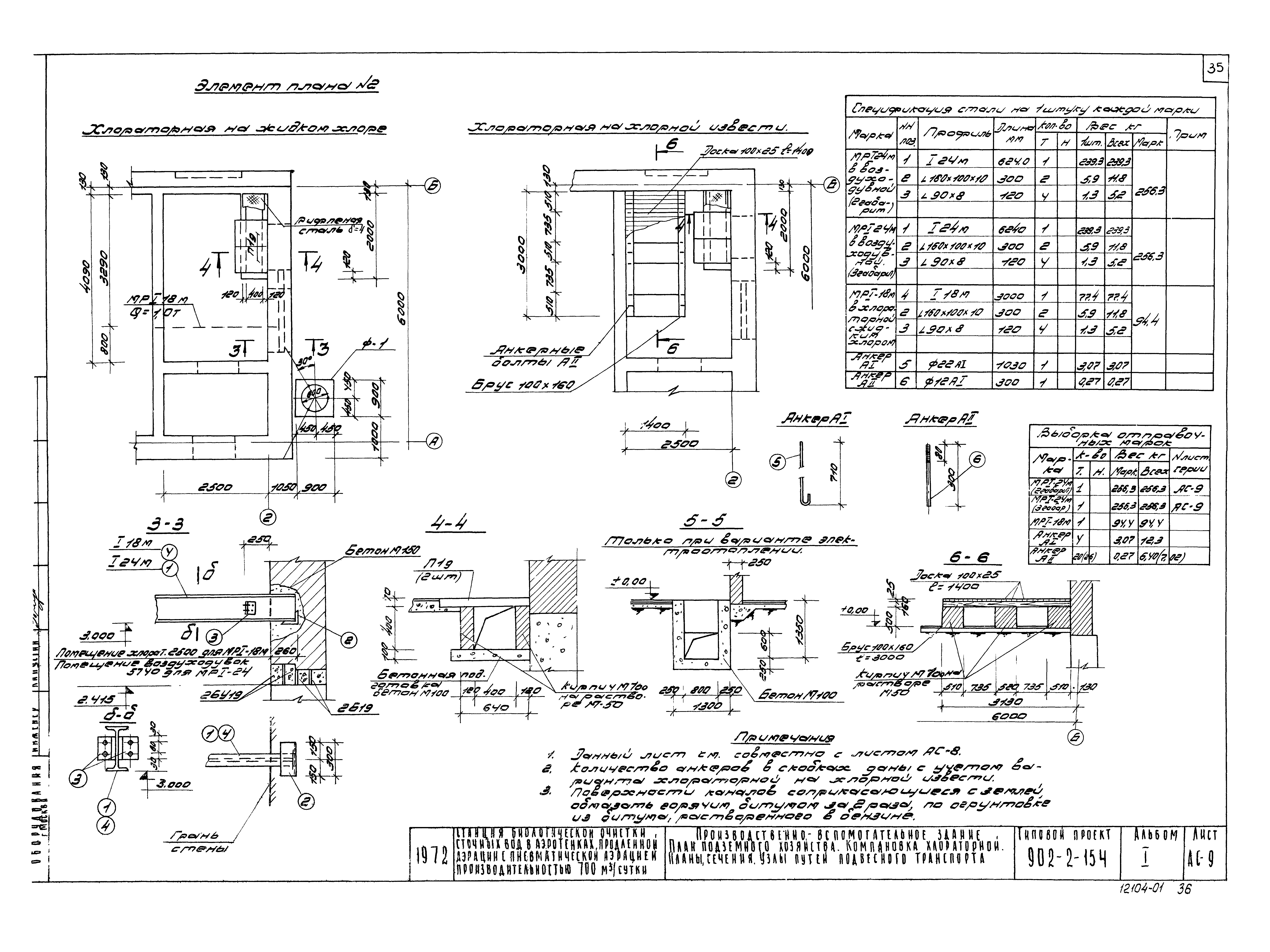
Скачать Типовой проект 902-2-191 Альбом I. Общая пояснительная записка. Генплан, коммуникации зданий и вспомогательные сооружения (из ТП 902-2-154)Дата актуализации: 10.08.2017 Типовой проект 902-2-191
Альбом I. Общая пояснительная записка. Генплан, коммуникации зданий и вспомогательные сооружения (из ТП 902-2-154)Обозначение: | Типовой проект 902-2-191 | Обозначение англ: | 902-2-191 | Статус: | заменен | Название рус.: | Альбом I. Общая пояснительная записка. Генплан, коммуникации зданий и вспомогательные сооружения (из ТП 902-2-154) | Дата добавления в базу: | 01.09.2013 | Дата актуализации: | 05.05.2017 | Дата введения: | 01.08.1982 | Разработан: | ЦНИИЭП иженерного оборудования
| Утверждён: | 30.10.1972 Госгражданстрой (Gosgrazhdanstroy 212)
| Расположен в: |
|
                                                         
|