Информационная система
«Ёшкин Кот»

Скачать базу одним архивом
Скачать обновления
История создания базы
Карта сайта

Скачать Типовой проект 902-2-221 Альбом III. Нестандартизированное оборудование

Дата актуализации: 10.08.2017

Типовой проект 902-2-221

Альбом III. Нестандартизированное оборудование

Обозначение: Типовой проект 902-2-221
Обозначение англ: 902-2-221
Статус:не действует
Название рус.:Альбом III. Нестандартизированное оборудование
Дата добавления в базу:01.09.2013
Дата актуализации:05.05.2017
Оглавление:ТП 902-2-221 Содержание альбома
ТП 902-2-221-ОС-0000000ВС Ведомость спецификаций
ТП 902-2-221-ОС-0000000ВП Ведомость покупных деталей
ТП 902-2-221-ОС-0000000 Спецификация на общий вид
ТП 902-2-221-ОС-0000000СБ Общий вид
ТП 902-2-221-ОС-ТУ Технические условия
ТП 902-2-221-ОС-0100000 Спецификация на бадью
ТП 902-2-221-ОС-0100000СБ Сборочный чертеж на бадью
ТП 902-2-221-ОС-0101000ВС Спецификация на ванну
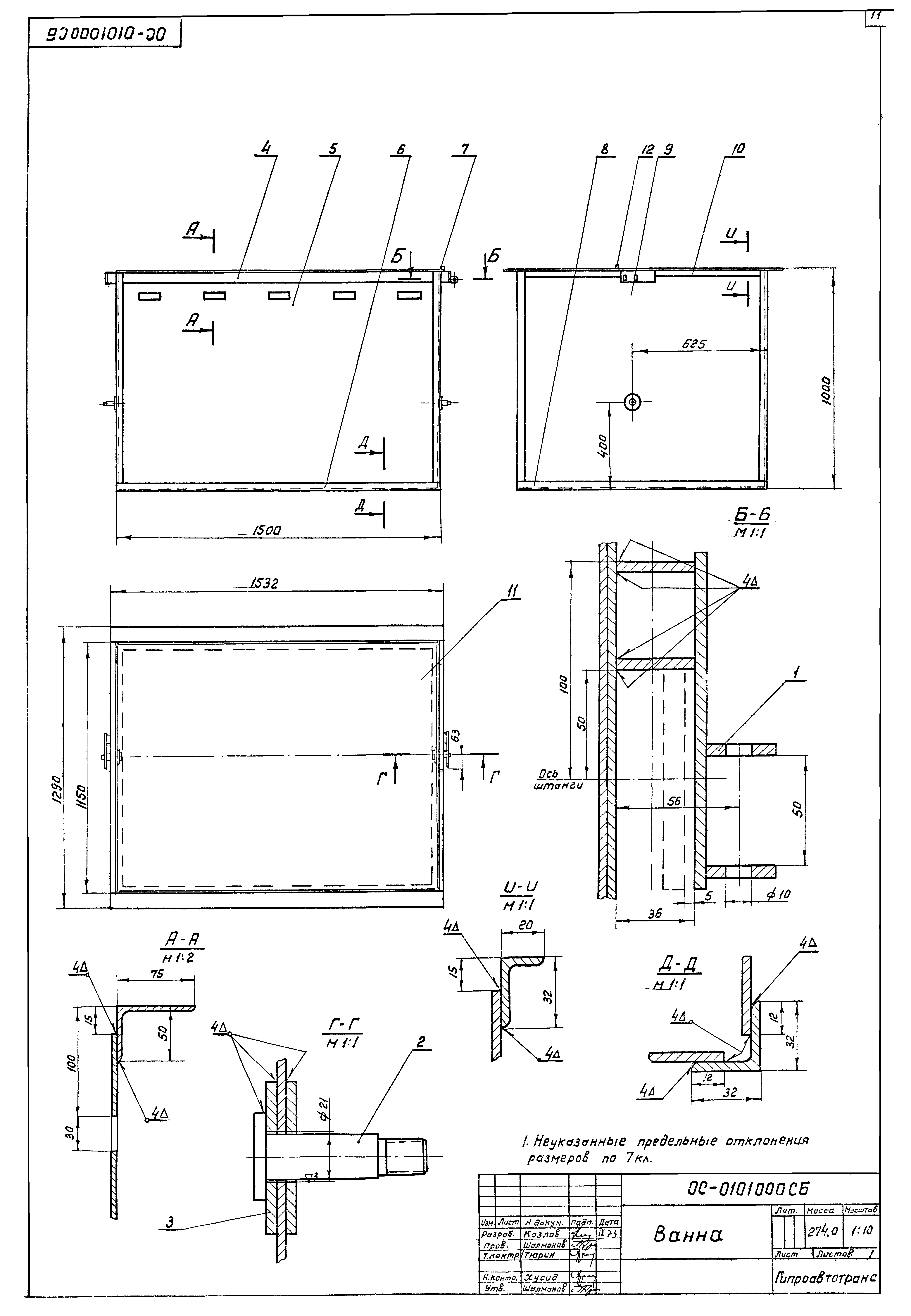
ТП 902-2-221-ОС-0101000СБ Сборочный чертеж ванны
ТП 902-2-221-ОС-0101100 Спецификация на кронштейн
ТП 902-2-221-ОС-0101100СБ Чертеж кронштейна
ТП 902-2-221-ОС-0101101 Чертеж щеки
ТП 902-2-221-ОС-0101102 Чертеж ребра
ТП 902-2-221-ОС-0101001 Чертеж оси
ТП 902-2-221-ОС-0101002 Чертеж прокладки
ТП 902-2-221-ОС-0101003 Чертеж уголка верхнего
ТП 902-2-221-ОС-0101004 Чертеж листа бокового
ТП 902-2-221-ОС-0101005 Чертеж уголка нижнего
ТП 902-2-221-ОС-0101007 Чертеж уголка
ТП 902-2-221-ОС-0101009 Чертеж уголка
ТП 902-2-221-ОС-0102000 Спецификация на коромысло
ТП 902-2-221-ОС-0102000СБ Сборочный чертеж коромысла
ТП 902-2-221-ОС-0102001 Чертеж оси коромысла
ТП 902-2-221-ОС-0102002 Чертеж полки
ТП 902-2-221-ОС-0103000 Спецификация штанги в сборе
ТП 902-2-221-ОС-0103000СБ Сборочный чертеж штанги в сборе
ТП 902-2-221 Содержание альбома
ТП 902-2-221-ОС-0103001 Чертеж штанги
ТП 902-2-221-ОС-0103002 Чертеж втулки
ТП 902-2-221-ОС-0104000 Спецификация запора
ТП 902-2-221-ОС-0104000СБ Сборочный чертеж запора
ТП 902-2-221-ОС-0104001 Чертеж рычага
ТП 902-2-221-ОС-0104002 Чертеж оси
ТП 902-2-221-ОС-0100001 Чертеж пружины
ТП 902-2-221-ОС-0200000 Спецификация шибера
ТП 902-2-221-ОС-0200000СБ Сборочный чертеж шибера
ТП 902-2-221-ОС-0200001 Чертеж плиты
ТП 902-2-221-ОС-0200002 Чертеж ручки
ТП 902-2-221-ОС-РЭ Руководство по эксплуатации
ТП 902-2-221-ОС-ПС Паспорт
Разработан: Гипроавтотранс
Утверждён:01.04.1974 Минавтотранс РСФСР (Russian Federation Minavtotrans 37)
Расположен в:Техническая документация Строительство Справочные документы Типовые строительные конструкции, изделия и узлы Общероссийский строительный каталог Промышленные предприятия, здания и сооружения Здания и сооружения санитарно-технические Канализация Сооружения для очистки производственных сточных вод Сооружения для очистки сточных вод от мойки автомобилей
Типовой проект 902-2-221Типовой проект 902-2-221Типовой проект 902-2-221Типовой проект 902-2-221Типовой проект 902-2-221Типовой проект 902-2-221Типовой проект 902-2-221Типовой проект 902-2-221Типовой проект 902-2-221Типовой проект 902-2-221Типовой проект 902-2-221Типовой проект 902-2-221Типовой проект 902-2-221Типовой проект 902-2-221Типовой проект 902-2-221Типовой проект 902-2-221Типовой проект 902-2-221Типовой проект 902-2-221Типовой проект 902-2-221Типовой проект 902-2-221Типовой проект 902-2-221Типовой проект 902-2-221

© 2013 Ёшкин Кот :-) Карта сайта