Информационная система
«Ёшкин Кот»

Скачать базу одним архивом
Скачать обновления
История создания базы
Карта сайта

Скачать Типовой проект 902-2-221 Альбом I. Пояснительная записка. Технологические чертежи. Архитектурно-строительные чертежи

Дата актуализации: 10.08.2017

Типовой проект 902-2-221

Альбом I. Пояснительная записка. Технологические чертежи. Архитектурно-строительные чертежи

Обозначение: Типовой проект 902-2-221
Обозначение англ: 902-2-221
Статус:не действует
Название рус.:Альбом I. Пояснительная записка. Технологические чертежи. Архитектурно-строительные чертежи
Дата добавления в базу:01.09.2013
Дата актуализации:05.05.2017
Оглавление:ТП 902-2-221 Содержание альбома. Общая часть
ТП 902-2-221-ТХ-1 Заглавный лист. Пояснительная записка
ТП 902-2-221-ТХ-2 Пояснительная записка (окончание)
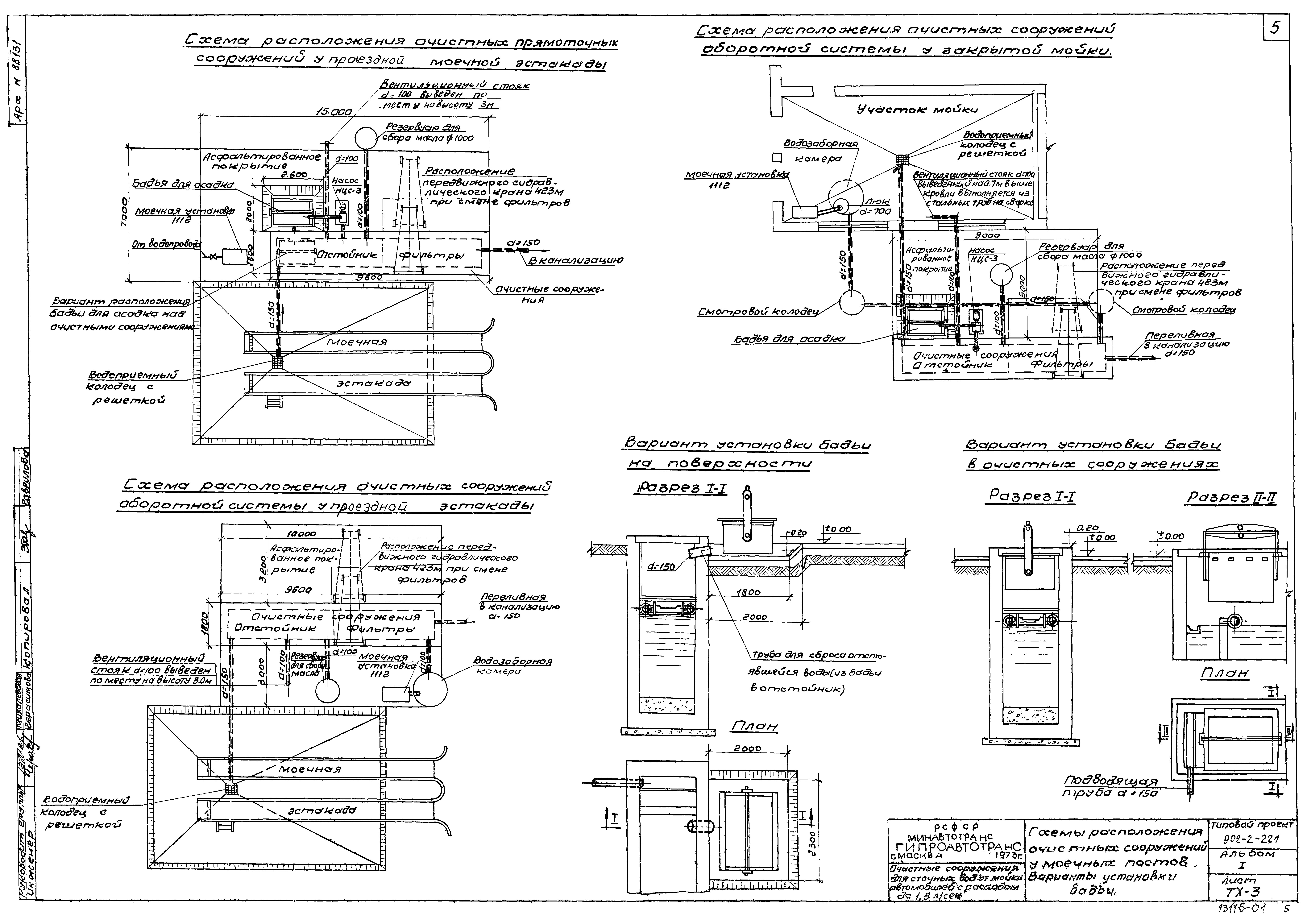
ТП 902-2-221-ТХ-3 Схемы расположения очистных сооружений у моечных постов. Варианты установки бадьи
ТП 902-2-221-ТХ-4 Оборудование очистных сооружений с расходом 1.5л/сек. Планы. Разрезы. Детали
ТП 902-2-221-ТХ-5 Спецификация. Заказная спецификация
ТП 902-2-221-АС-1 Заглавный лист
ТП 902-2-221-АС-2 Опалубочный чертеж. План очистных сооружений. Разрез 1-1
ТП 902-2-221-АС-3 Планы раскладки сеток каркасов. Разрезы 1-1;2-2 (армирование)
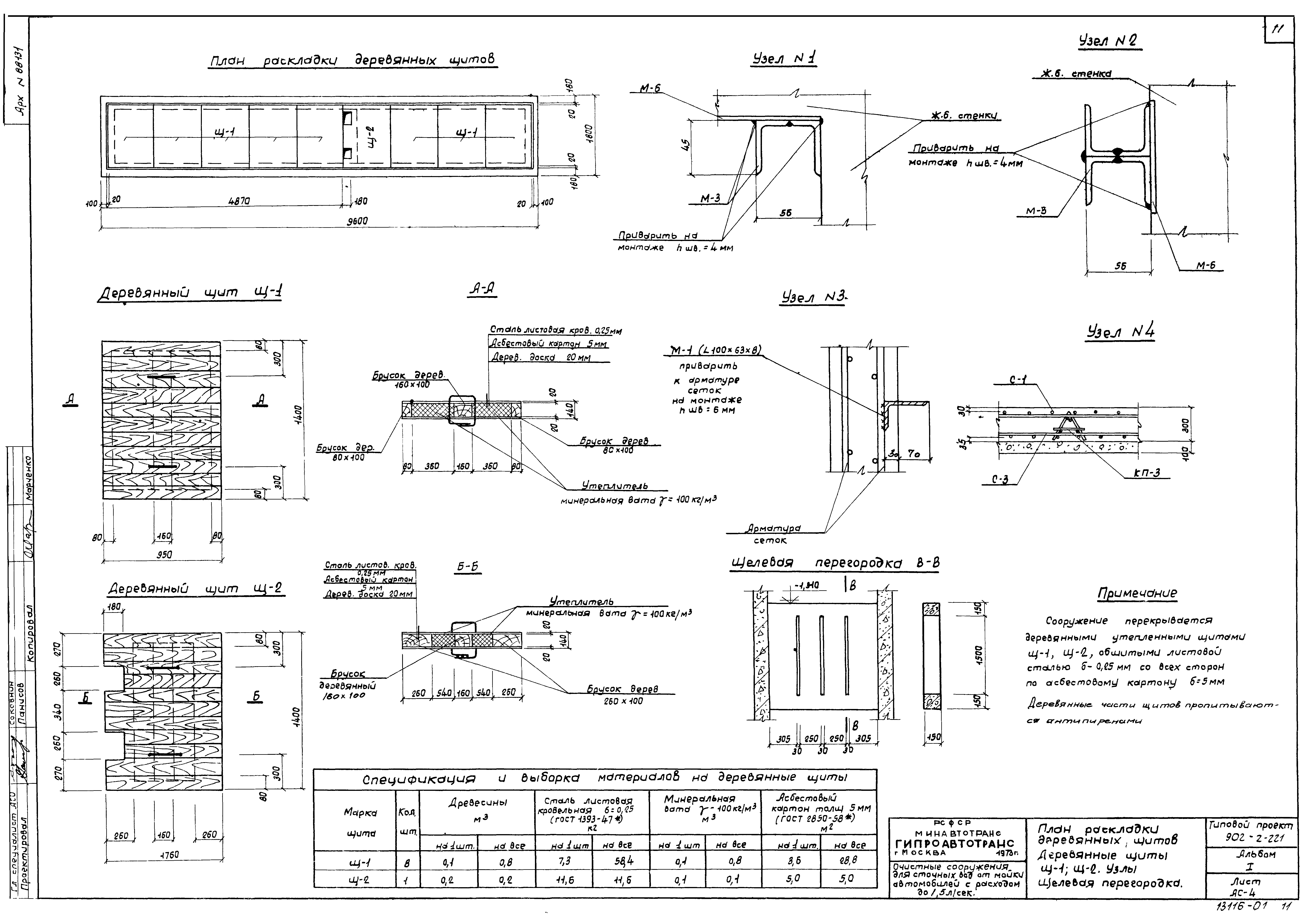
ТП 902-2-221-АС-4 Планы раскладки деревянных щитов. Деревянные щиты Щ-1;Щ-2. Узлы. Щелевая перегородка
ТП 902-2-221-АС-5 Арматурные сетки С-1÷С-10 к листу АС-3
ТП 902-2-221-АС-6 Пространственные каркасы КП-1÷КП-3. Каркасы К-1÷К-5 к листу АС-3
ТП 902-2-221-АС-7 Закладные элементы М-1÷М-6. Площадки обслуживания
ТП 902-2-221-АС-8 Водозаборная камера; резервуар для сбора масла. Деревянные щиты Щ-3;Щ-4
ТП 902-2-221-АС-9 Арматурные сетки и каркасы к листу АС-8. Закладные элементы М-7÷М-9
Разработан: Гипроавтотранс
Утверждён:01.04.1974 Минавтотранс РСФСР (Russian Federation Minavtotrans 37)
Расположен в:Техническая документация Строительство Справочные документы Типовые строительные конструкции, изделия и узлы Общероссийский строительный каталог Промышленные предприятия, здания и сооружения Здания и сооружения санитарно-технические Канализация Сооружения для очистки производственных сточных вод Сооружения для очистки сточных вод от мойки автомобилей
Типовой проект 902-2-221Типовой проект 902-2-221Типовой проект 902-2-221Типовой проект 902-2-221Типовой проект 902-2-221Типовой проект 902-2-221Типовой проект 902-2-221Типовой проект 902-2-221Типовой проект 902-2-221Типовой проект 902-2-221Типовой проект 902-2-221Типовой проект 902-2-221Типовой проект 902-2-221Типовой проект 902-2-221Типовой проект 902-2-221Типовой проект 902-2-221Типовой проект 902-2-221

© 2013 Ёшкин Кот :-) Карта сайта