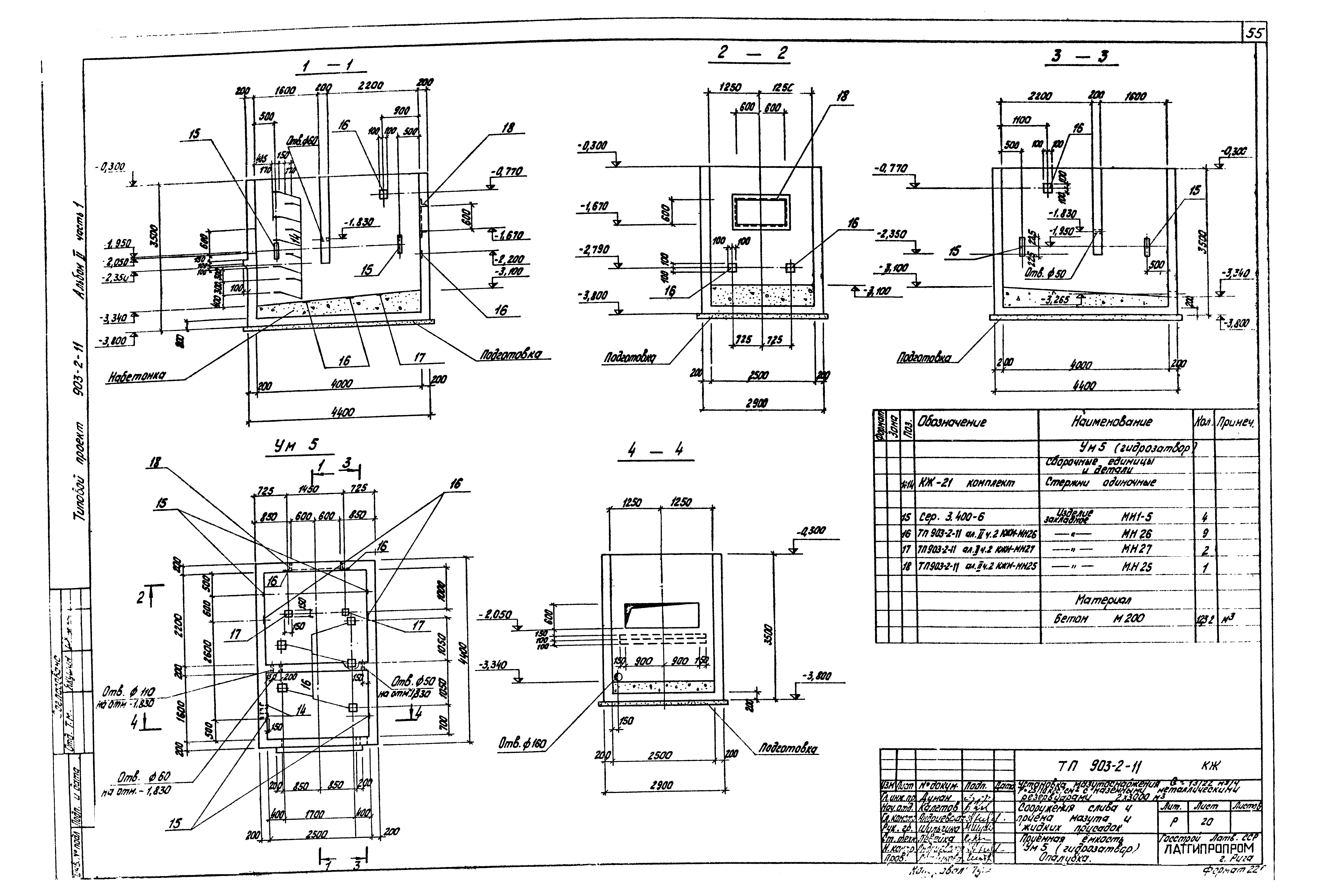
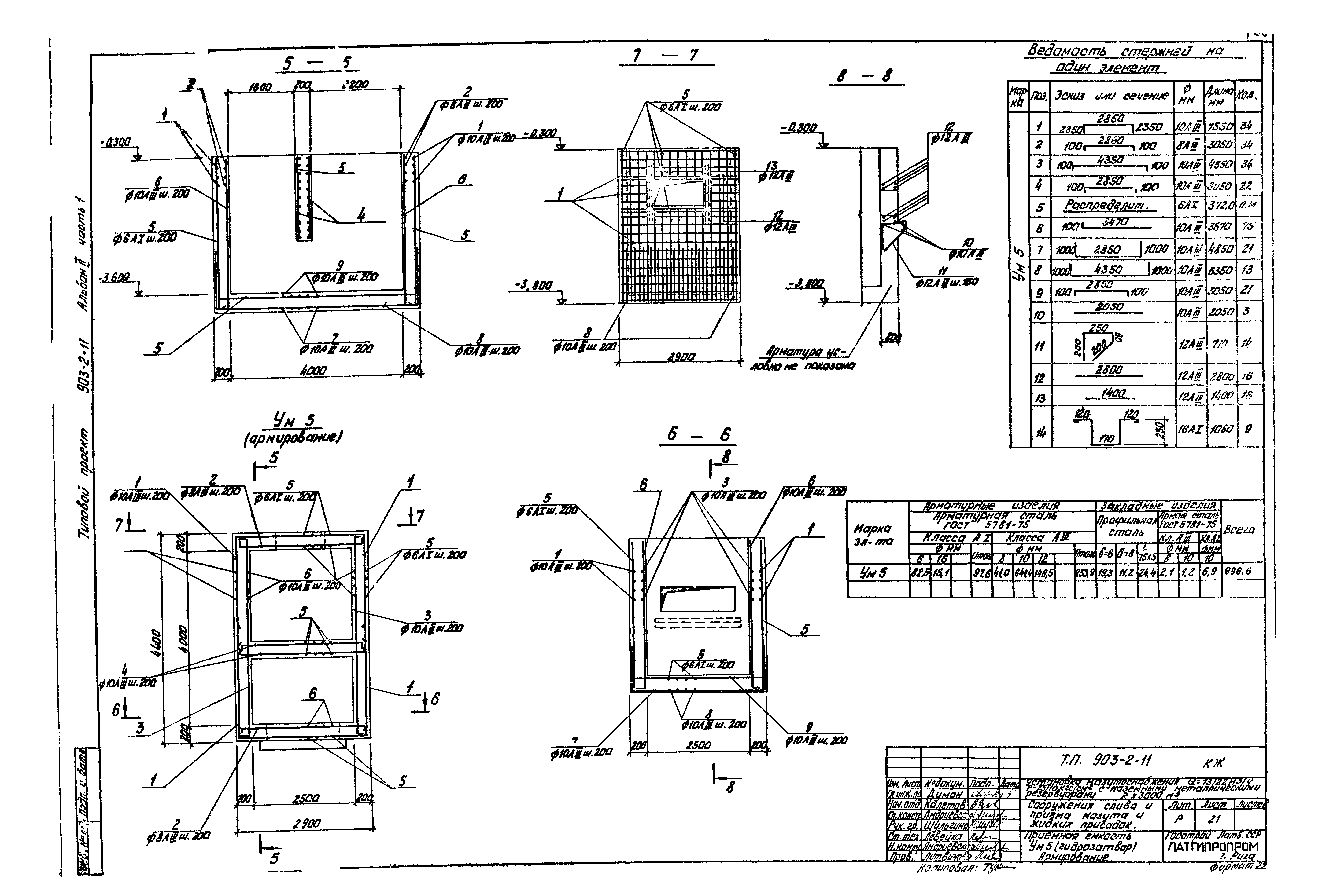
Скачать Типовой проект 903-2-14 Альбом II. Часть 1. Сооружения слива и приема мазута и жидких присадок. Части: тепломеханическая, архитектурно-строительная, автоматизация, электротехническая (из ТП 903-2-11)Дата актуализации: 10.08.2017 Типовой проект 903-2-14
Альбом II. Часть 1. Сооружения слива и приема мазута и жидких присадок. Части: тепломеханическая, архитектурно-строительная, автоматизация, электротехническая (из ТП 903-2-11)Обозначение: | Типовой проект 903-2-14 | Обозначение англ: | 903-2-14 | Статус: | не действует | Название рус.: | Альбом II. Часть 1. Сооружения слива и приема мазута и жидких присадок. Части: тепломеханическая, архитектурно-строительная, автоматизация, электротехническая (из ТП 903-2-11) | Дата добавления в базу: | 01.09.2013 | Дата актуализации: | 05.05.2017 | Разработан: | Латгипропром
| Утверждён: | 16.11.1978 Госстрой Латвийской ССР (290)
| Расположен в: |
|
                                                                         
|