Информационная система
«Ёшкин Кот»

Скачать базу одним архивом
Скачать обновления
История создания базы
Карта сайта

Скачать Типовой проект 903-1-224.86 Альбом 5.7. Топливоподача. Приемное устройство. Галерея № 2. Архитектурно-строительная часть

Дата актуализации: 10.08.2017

Типовой проект 903-1-224.86

Альбом 5.7. Топливоподача. Приемное устройство. Галерея № 2. Архитектурно-строительная часть

Обозначение: Типовой проект 903-1-224.86
Обозначение англ: 903-1-224.86
Статус:действует
Название рус.:Альбом 5.7. Топливоподача. Приемное устройство. Галерея № 2. Архитектурно-строительная часть
Дата добавления в базу:01.09.2013
Дата актуализации:05.05.2017
Оглавление:ТП 903-1-224.86-АР4 Архитектурно-строительное решение АР4
ТП 903-1-224.86-АР4-1 Приемное устройство. Общие данные (начало)
ТП 903-1-224.86-АР4-2 Приемное устройство. Общие данные (продолжение)
ТП 903-1-224.86-АР4-3 Приемное устройство. Общие данные (окончание). Узел 1
ТП 903-1-224.86-АР4-4 Приемное устройство. План на отм. 0.000; фрагмент 1; фрагмент плана на отм. 8.700
ТП 903-1-224.86-АР4-5 Приемное устройство. Планы на отм. -10.800; -8.200;-7.900;-5.400;-3.400
ТП 903-1-224.86-АР4-6 Приемное устройство. Разрезы 1-1;2-2;3-3. Узлы 2,3,4,5
ТП 903-1-224.86-АР4-7 Приемное устройство. Фасады 1-5;5-1;Г-А;А-Г
ТП 903-1-224.86-АР4-8 Приемное устройство. Фрагмент 2. Узлы 6-13;А-А
ТП 903-1-224.86-КЖ4 Конструкции железобетонные КЖ4
ТП 903-1-224.86-КЖ4-1 Приемное устройство. Общие данные (начало)
ТП 903-1-224.86-КЖ4-2 Приемное устройство. Общие данные (продолжение)
ТП 903-1-224.86-КЖ4-3 Приемное устройство. Общие данные (окончание). Узел 1
ТП 903-1-224.86-КЖ4-4 Приемное устройство. Схема расположения фундаментов
ТП 903-1-224.86-КЖ4-5 Приемное устройство. Фундаменты ФМ1,ФМ2. Опалубка и армирование
ТП 903-1-224.86-КЖ4-6 Приемное устройство. Пандус. Схема расположения фундаментов. Элемент 1
ТП 903-1-224.86-КЖ4-7 Приемное устройство. Маркировочная схема маневрового устройства МУ-12М2. Фундаменты ФОМ1-ФОМ3
ТП 903-1-224.86-КЖ4-8 Приемное устройство. Маневровое устройство МУ-12М2. Фундаменты ФОМ4-ФОМ6
ТП 903-1-224.86-КЖ4-9 Приемное устройство. Приямок ПРм1. План на отм. -8.300;-10.900
ТП 903-1-224.86-КЖ4-10 Приемное устройство. ПРМ1. Разрезы 1-1÷4-4
ТП 903-1-224.86-КЖ4-11 Приемное устройство. Раскладка нижних сеток днища ПРм1. Узел Б
ТП 903-1-224.86-КЖ4-12 Приемное устройство. Раскладка верхних сеток днища ПРм1
ТП 903-1-224.86-КЖ4-13 Приемное устройство. Армирование днища ПРм1. Разрезы 5-5,6-6. Раскладка сеток днища на отм. -3.500
ТП 903-1-224.86-КЖ4-14 Приемное устройство. Армирование днища ПРм1. Разрезы 7-7,8-8. Узел "А"
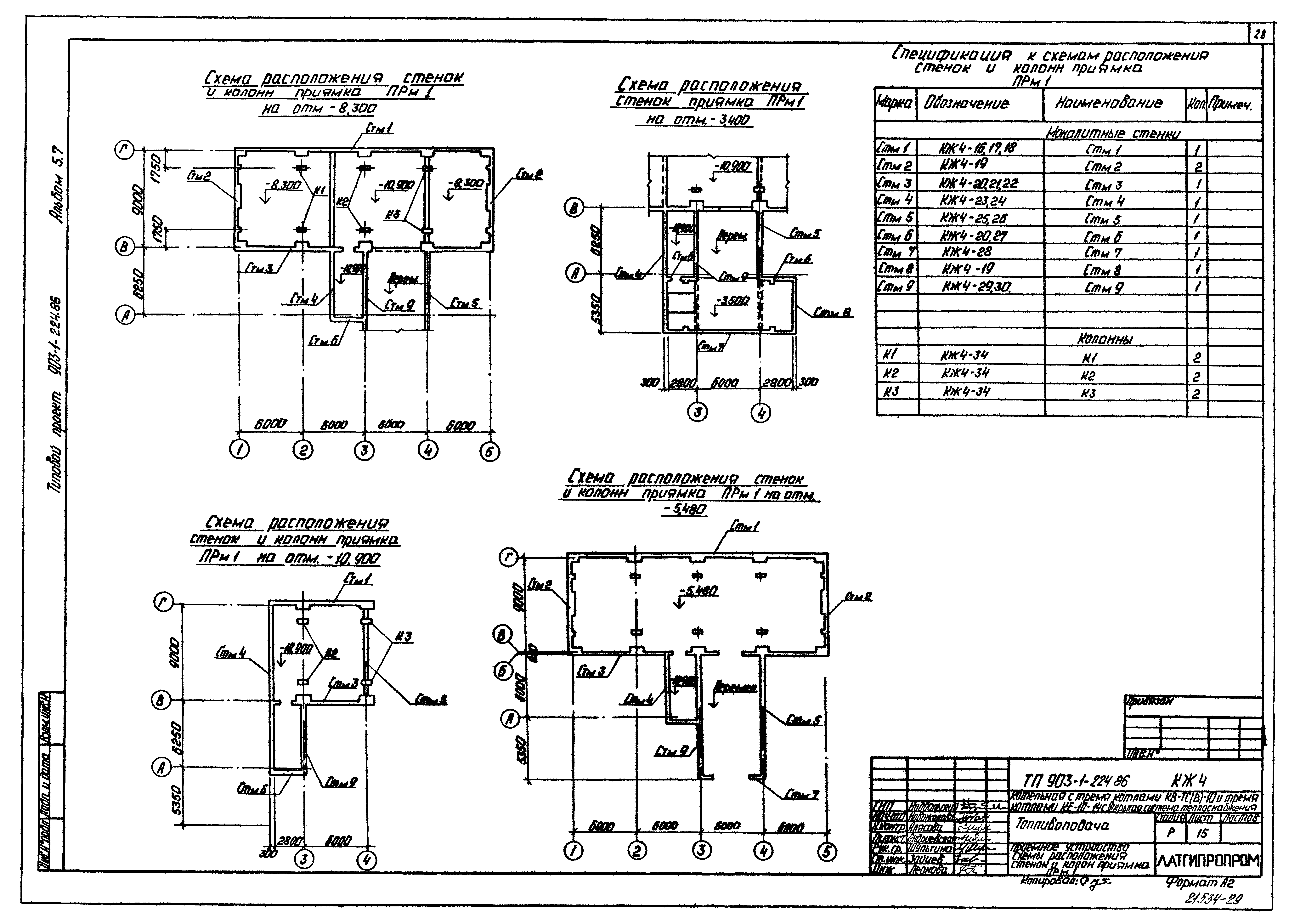
ТП 903-1-224.86-КЖ4-15 Приемное устройство. Схемы расположения стенок и колонн приямка ПРм1
ТП 903-1-224.86-КЖ4-16 Приемное устройство. Стенка Стм1. Раскладка наружных и внутренних сеток. Сечение В-В
ТП 903-1-224.86-КЖ4-17 Приемное устройство. Стенка Стм1. Разрезы А-А;В-В. Сечения а-а;б-б;в-в;г-г
ТП 903-1-224.86-КЖ4-18 Приемное устройство. Стенка Стм1,Стм3. Сечения д-д,е-е. Стенка Стм2. Узлы В,Г
ТП 903-1-224.86-КЖ4-19 Приемное устройство. Стенки Стм2,Стм8. Раскладка сеток
ТП 903-1-224.86-КЖ4-20 Приемное устройство. Стенки Стм3,Стм6
ТП 903-1-224.86-КЖ4-21 Приемное устройство. Стенка Стм3. Раскладка наружных и внутренних стенок
ТП 903-1-224.86-КЖ4-22 Приемное устройство. Стенка Стм3. Разрезы Г-Г÷Е-Е
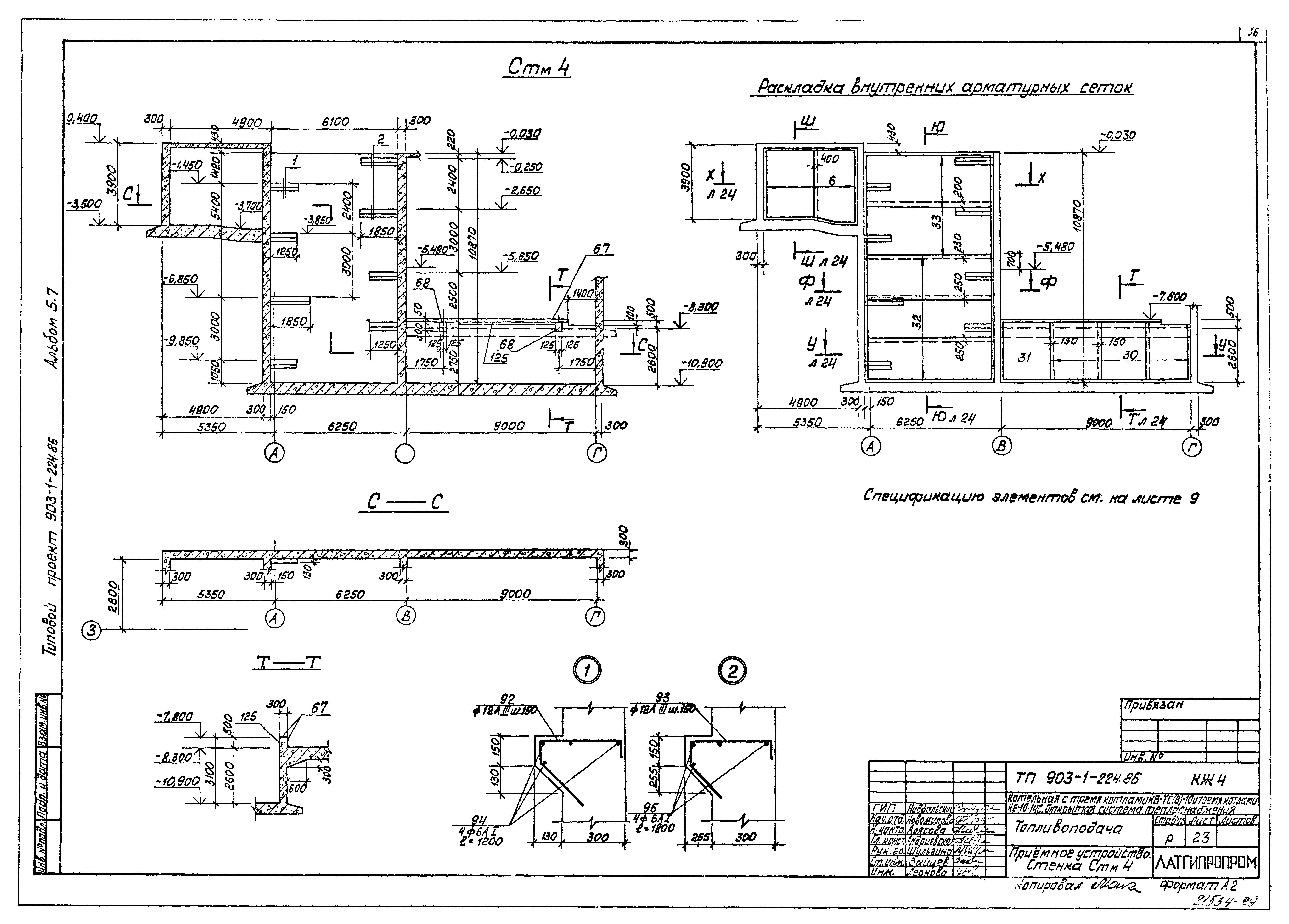
ТП 903-1-224.86-КЖ4-23 Приемное устройство. Стенка Стм4
ТП 903-1-224.86-КЖ4-24 Приемное устройство. Стенка Стм4. Раскладка наружных арматурных сеток. Разрезы
ТП 903-1-224.86-КЖ4-25 Приемное устройство. Стенка Стм5
ТП 903-1-224.86-КЖ4-26 Приемное устройство. Стенка Стм5. Раскладка наружных сеток. Разрезы
ТП 903-1-224.86-КЖ4-27 Приемное устройство. Стенка Стм6. Раскладка сеток. Разрезы. Узел "Д"
ТП 903-1-224.86-КЖ4-28 Приемное устройство. Стенка Стм7. Раскладка сеток. Разрезы. Узел
ТП 903-1-224.86-КЖ4-29 Приемное устройство. Стенка Стм9. Опалубка и армирования
ТП 903-1-224.86-КЖ4-30 Приемное устройство. Стенка Стм9. Разрезы 13-13÷16-16. Узлы 3,4
ТП 903-1-224.86-КЖ4-31 Приемное устройство. ПРм1. Элементы 1,2. Ведомость деталей
ТП 903-1-224.86-КЖ4-32 Приемное устройство. ПРм1. Спецификация элементов (продолжение). Фундамент ФОМ7
ТП 903-1-224.86-КЖ4-33 Приемное устройство. ПРм1. Спецификация элементов (продолжение). Ведомость расхода стали
ТП 903-1-224.86-КЖ4-34 Приемное устройство. Колонны монолитные К1,К2,К3
ТП 903-1-224.86-КЖ4-35 Приемное устройство. Раскладка нижних сеток ПРм1. Спецификация элементов (вариант с грунтовыми водами)
ТП 903-1-224.86-КЖ4-36 Приемное устройство. Приямок ПРм1. Спецификация элементов (продолжение). (вариант с грунтовыми водами)
ТП 903-1-224.86-КЖ4-37 Приемное устройство. Спецификация элементов на приямок ПРм1 (окончание). Ведомость расхода стали. Детали гидроизоляции (вариант с грунтовыми водами)
ТП 903-1-224.86-КЖ4-38 Приемное устройство. Схема расположения перекрытия на отм. -0.030
ТП 903-1-224.86-КЖ4-39 Приемное устройство. Разрезы 1-1÷6-6
ТП 903-1-224.86-КЖ4-40 Приемное устройство. Пм1. Раскладка верхних и нижних сеток. Разрез 7-7
ТП 903-1-224.86-КЖ4-41 Приемное устройство. Бм1,Бм1а. Опалубка и армирование
ТП 903-1-224.86-КЖ4-42 Приемное устройство. Бм2. Опалубка и армирование
ТП 903-1-224.86-КЖ4-43 Приемное устройство. Бм3-БМ8,БМ22. Опалубка и армирование
ТП 903-1-224.86-КЖ4-44 Приемное устройство. Бм9-БМ11. Опалубка и армирование
ТП 903-1-224.86-КЖ4-45 Приемное устройство. Бм12. Опалубка и армирование. Разрезы "12-12"÷"16-16"
ТП 903-1-224.86-КЖ4-46 Приемное устройство. Схема расположения перекрытия на отм. -3.500. БМ13-БМ15. Опалубка и армирование
ТП 903-1-224.86-КЖ4-47 Приемное устройство. Схема расположения перекрытия на отм. -5.480
ТП 903-1-224.86-КЖ4-48 Приемное устройство. ПМ3. Схема раскладки нижних и верхних сеток
ТП 903-1-224.86-КЖ4-49 Приемное устройство. ПМ3. Разрезы "1-1"÷"5-5"
ТП 903-1-224.86-КЖ4-50 Приемное устройство. БМ16-БМ20. Опалубка и армирование
ТП 903-1-224.86-КЖ4-51 Приемное устройство. БМ121. Опалубка и армирование. БМ1-БМ5. Спецификация
ТП 903-1-224.86-КЖ4-52 Приемное устройство. Разрез "8-8". БМ5-БМ13. Спецификация
ТП 903-1-224.86-КЖ4-53 Приемное устройство. БМ14-БМ22. Спецификация
ТП 903-1-224.86-КЖ4-54 Приемное устройство. Схема расположения колонн и балок перекрытия. Разрезы 1-1,2-2,3-3
ТП 903-1-224.86-КЖ4-55 Приемное устройство. Схемы расположения стеновых панелей
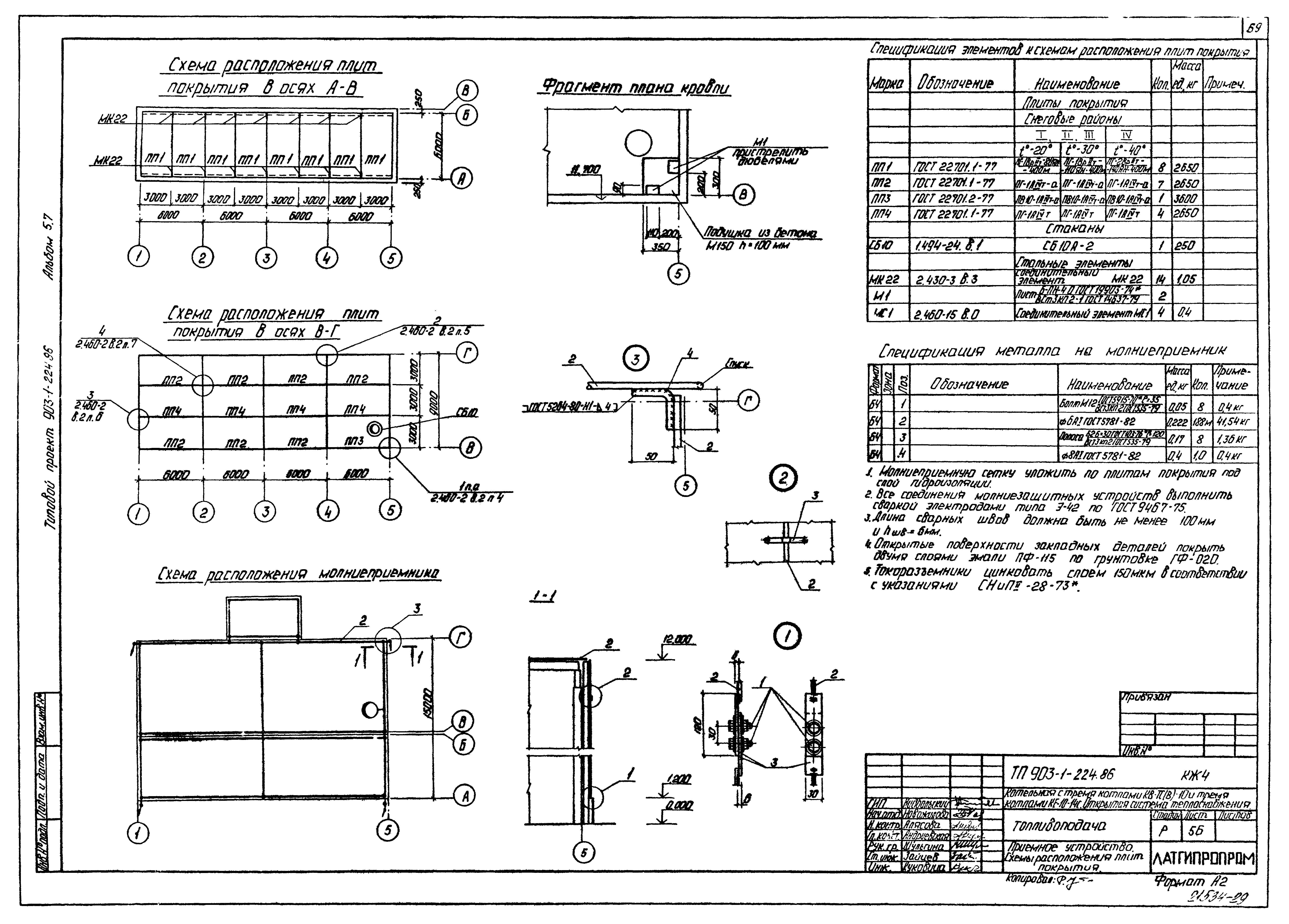
ТП 903-1-224.86-КЖ4-56 Приемное устройство. Схемы расположения плит покрытия
ТП 903-1-224.86-КМ4 Конструкции металлические КМ4
ТП 903-1-224.86-КМ4-1 Приемное устройство. Общие данные (начало)
ТП 903-1-224.86-КМ4-2 Приемное устройство. Общие данные (окончание)
ТП 903-1-224.86-КМ4-3 Приемное устройство. Техническая спецификация стали для специализированных заводов
ТП 903-1-224.86-КМ4-4 Приемное устройство. Схема расположения путей подвесного транспорта
ТП 903-1-224.86-КМ4-5 Приемное устройство. Схема расположения балок, связей и прогонов. Колонна К-2
ТП 903-1-224.86-КМ4-6 Приемное устройство. Площадки ПМ-1,ПМ-2,ПМ-3. Лестница С-1
ТП 903-1-224.86-КМ4-7 Приемное устройство. Площадки ПМ-4,ПМ-5. Лестницы ЛМ-1÷ЛМ-4
ТП 903-1-224.86-КМ4-8 Приемное устройство. Схема бункеров в осях 1-5 и В-Г
ТП 903-1-224.86-КМ4-9 Приемное устройство. Схема бункеров в осях 3-4 и А. Схема расположения опор под трубопроводы
ТП 903-1-224.86-КМ4-10 Приемное устройство. Схема решеток бункеров
ТП 903-1-224.86-АР5 Архитектурно-строительное решение АР5
ТП 903-1-224.86-АР5-1 Галерея №2. Общие данные (начало)
ТП 903-1-224.86-АР5-2 Галерея №2. Общие данные (окончание)
ТП 903-1-224.86-АР5-3 Галерея №2. План галереи №2. Разрезы 1-1;2-2. Узел 1,2
ТП 903-1-224.86-АР5-4 Галерея №2. Фасады 3/1-3/5;3/5-3/1
ТП 903-1-224.86-КЖ5 Конструкции железобетонные КЖ5
ТП 903-1-224.86-КЖ5-1 Галерея №2. Общие данные
ТП 903-1-224.86-КЖ5-2 Галерея №2. Схема расположения фундаментов. Элемент плана 1. Разрезы
ТП 903-1-224.86-КЖ5-3 Галерея №2. Схема расположения колонн и ферм. Пм1. Опалубка и армирование. Разрезы "3-3"-"9-9"
ТП 903-1-224.86-КЖ5-4 Галерея №2. Схема расположения плит перекрытий галереи. Пм3. Опалубка и армирование
ТП 903-1-224.86-КЖ5-5 Галерея №2. Пм2,Фм1,Фм2. Опалубка и армирование
ТП 903-1-224.86-КЖ5-6 Галерея №2. Фм3,Фм4. Опалубка и армирование
ТП 903-1-224.86-КЖ5-7 Галерея №2. Схема расположения стеновых панелей в осях 3-А и А-3 и плит покрытия
ТП 903-1-224.86-КМ5 Конструкции металлические КМ5
ТП 903-1-224.86-КМ5-1 Галерея №2. Общие данные (начало)
ТП 903-1-224.86-КМ5-2 Галерея №2. Общие данные (продолжение)
ТП 903-1-224.86-КМ5-3 Галерея №2. Общие данные (окончание)
ТП 903-1-224.86-КМ5-4 Галерея №2. План балок кровли, пола и связей по верхним и нижним поясам ферм
ТП 903-1-224.86-КМ5-5 Галерея №2. Схема Ф1,Ф2,ОП1,ОП2, фахверка, покрытия навеса для бульдозеров
Разработан: Латгипропром
Утверждён:20.05.1986 Госстрой СССР (Государственный комитет Совета Министров СССР по делам строительства) (USSR Gosstroy А4-29)
Расположен в:Техническая документация Строительство Справочные документы Типовые строительные конструкции, изделия и узлы Общероссийский строительный каталог Промышленные предприятия, здания и сооружения Здания и сооружения санитарно-технические Теплоснабжение Котельные установки Открытые системы теплоснабжения Топливо - каменные и бурые угли
Заменяет собой:
  • Типовой проект 903-1-148
Типовой проект 903-1-224.86Типовой проект 903-1-224.86Типовой проект 903-1-224.86Типовой проект 903-1-224.86Типовой проект 903-1-224.86Типовой проект 903-1-224.86Типовой проект 903-1-224.86Типовой проект 903-1-224.86Типовой проект 903-1-224.86Типовой проект 903-1-224.86Типовой проект 903-1-224.86Типовой проект 903-1-224.86Типовой проект 903-1-224.86Типовой проект 903-1-224.86Типовой проект 903-1-224.86Типовой проект 903-1-224.86Типовой проект 903-1-224.86Типовой проект 903-1-224.86Типовой проект 903-1-224.86Типовой проект 903-1-224.86Типовой проект 903-1-224.86Типовой проект 903-1-224.86Типовой проект 903-1-224.86Типовой проект 903-1-224.86Типовой проект 903-1-224.86Типовой проект 903-1-224.86Типовой проект 903-1-224.86Типовой проект 903-1-224.86Типовой проект 903-1-224.86Типовой проект 903-1-224.86Типовой проект 903-1-224.86Типовой проект 903-1-224.86Типовой проект 903-1-224.86Типовой проект 903-1-224.86Типовой проект 903-1-224.86Типовой проект 903-1-224.86Типовой проект 903-1-224.86Типовой проект 903-1-224.86Типовой проект 903-1-224.86Типовой проект 903-1-224.86Типовой проект 903-1-224.86Типовой проект 903-1-224.86Типовой проект 903-1-224.86Типовой проект 903-1-224.86Типовой проект 903-1-224.86Типовой проект 903-1-224.86Типовой проект 903-1-224.86Типовой проект 903-1-224.86Типовой проект 903-1-224.86Типовой проект 903-1-224.86Типовой проект 903-1-224.86Типовой проект 903-1-224.86Типовой проект 903-1-224.86Типовой проект 903-1-224.86Типовой проект 903-1-224.86Типовой проект 903-1-224.86Типовой проект 903-1-224.86Типовой проект 903-1-224.86Типовой проект 903-1-224.86Типовой проект 903-1-224.86Типовой проект 903-1-224.86Типовой проект 903-1-224.86Типовой проект 903-1-224.86Типовой проект 903-1-224.86Типовой проект 903-1-224.86Типовой проект 903-1-224.86Типовой проект 903-1-224.86Типовой проект 903-1-224.86Типовой проект 903-1-224.86Типовой проект 903-1-224.86Типовой проект 903-1-224.86Типовой проект 903-1-224.86Типовой проект 903-1-224.86Типовой проект 903-1-224.86Типовой проект 903-1-224.86Типовой проект 903-1-224.86Типовой проект 903-1-224.86Типовой проект 903-1-224.86Типовой проект 903-1-224.86Типовой проект 903-1-224.86Типовой проект 903-1-224.86Типовой проект 903-1-224.86Типовой проект 903-1-224.86Типовой проект 903-1-224.86Типовой проект 903-1-224.86Типовой проект 903-1-224.86Типовой проект 903-1-224.86Типовой проект 903-1-224.86Типовой проект 903-1-224.86Типовой проект 903-1-224.86Типовой проект 903-1-224.86Типовой проект 903-1-224.86Типовой проект 903-1-224.86Типовой проект 903-1-224.86Типовой проект 903-1-224.86Типовой проект 903-1-224.86Типовой проект 903-1-224.86

© 2013 Ёшкин Кот :-) Карта сайта