| ||||||||||||||||||||||||||||||
Скачать Шифр М8.22-1/2010 Волма-плиты. Конструкции с применением гипсовых пазогребневых плит. Часть 1. Материалы для проектирования и строительстваДата актуализации: 10.08.2017
|
| Обозначение: | Шифр М8.22-1/2010 |
| Обозначение англ: | М8.22-1/2010 |
| Статус: | не определен законодательством |
| Название рус.: | "Волма-плиты". Конструкции с применением гипсовых пазогребневых плит. Часть 1. Материалы для проектирования и строительства |
| Дата добавления в базу: | 01.09.2013 |
| Дата актуализации: | 05.05.2017 |
| Дата введения: | 01.05.2010 |
| Область применения: | Альбом включает материалы для проектирования и рабочие чертежи узлов конструкций из гипсовых пазогребных плит толщиной 80 мм для перегородок и облицовки внутренних стен зданий различного назначения |
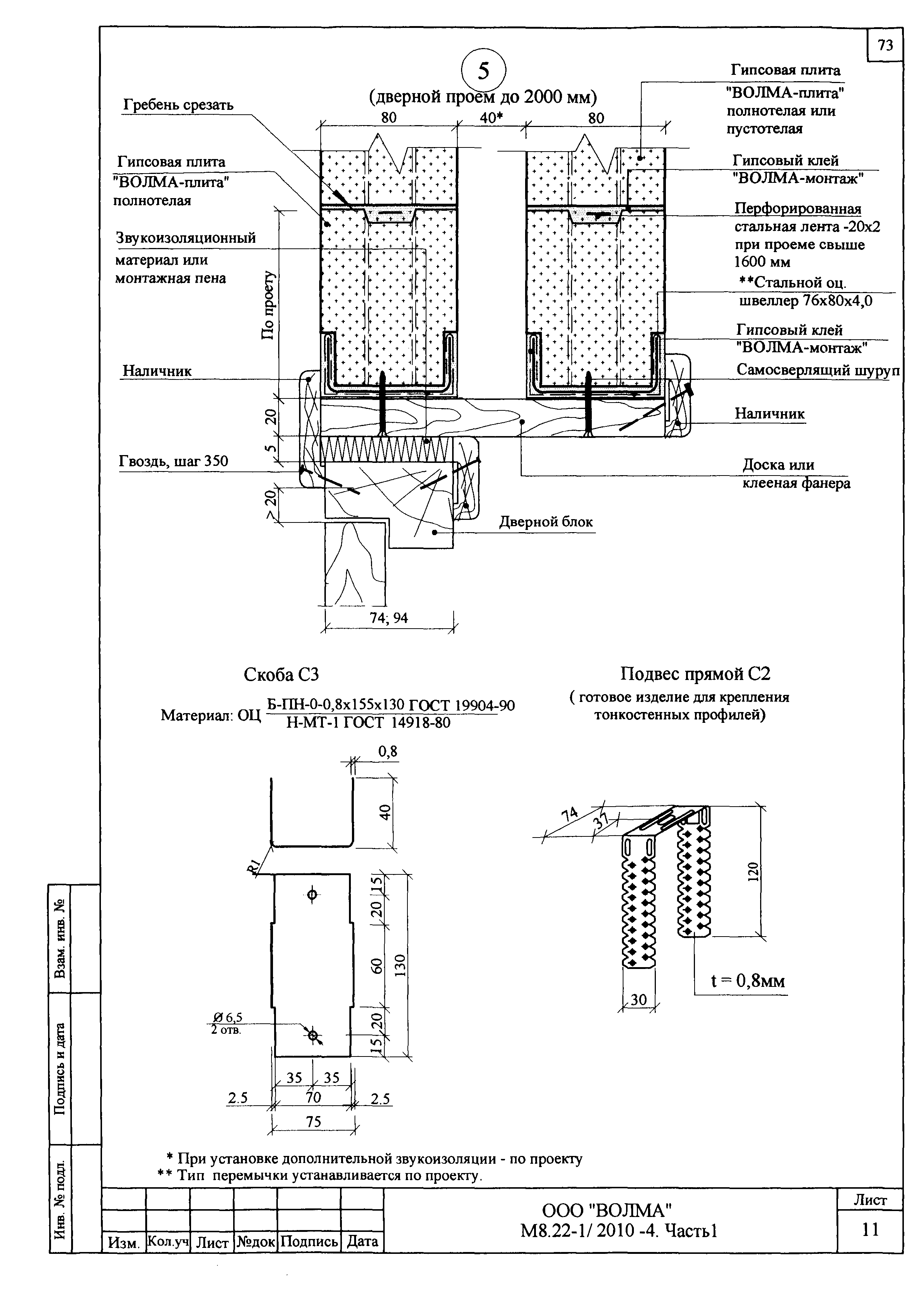
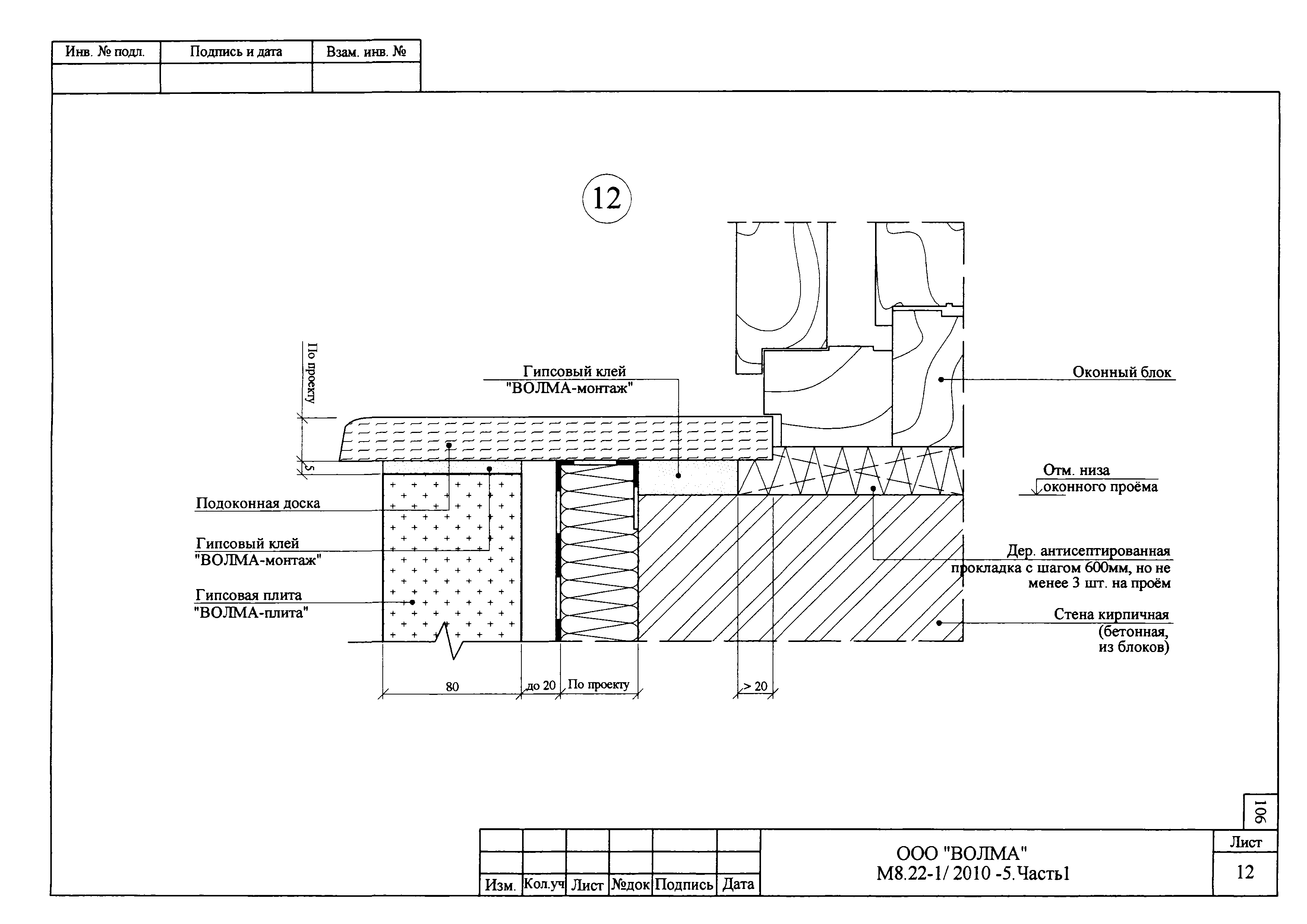
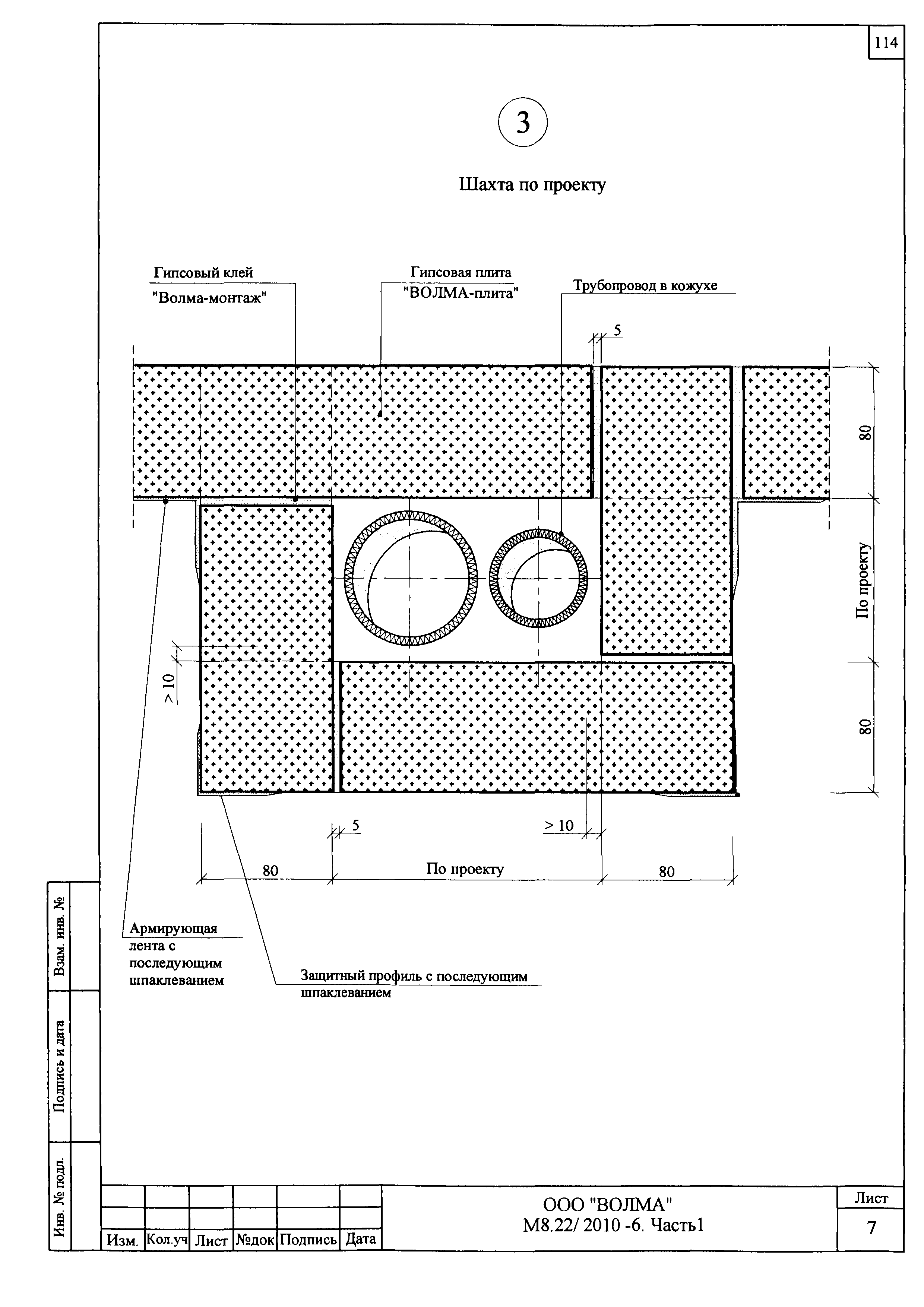
| Оглавление: | М8.22-1/2010-ПЗ. Часть 1 Пояснительная записка М8.22-1/2010-ПЗ. Часть 1 1. Область применения М8.22-1/2010-ПЗ. Часть 1 2. Применяемые материалы и изделия М8.22-1/2010-ПЗ. Часть 1 3. Конструкции перегородок М8.22-1/2010-ПЗ. Часть 1 4. Внутренняя облицовка ограждающих конструкций М8.22-1/2010-ПЗ. Часть 1 5. Технология монтажа М8.22-1/2010-ПЗ. Часть 1 6. Монтаж слаботочной проводки и инженерных коммуникаций М8.22-1/2010-ПЗ. Часть 1 7. Отделка поверхностей конструкций из гипсовых пазогребневых плит М8.22-1/2010-ПЗ. Часть 1 8. Основные правила техники безопасности при производстве работ М8.22-1/2010-ПЗ. Часть 1 9. Транспортирование и хранение материалов и изделий М8.22-1/2010-ПЗ. Часть 1 10. Основные правила технической эксплуатации конструкций М8.22-1/2010-ПЗ. Часть 1 11. Приемка смонтированных конструкций М8.22-1/2010 Графический материал М8.22-1/2010-1. Часть 1 Схема перегородок М8.22-1/2010-2. Часть 1 Жесткое присоединение перегородок. Узлы М8.22-1/2010-3. Часть 1 Эластичное присоединение перегородок. Узлы М8.22-1/2010-4. Часть 1 Устройство дверных проемов М8.22-1/2010-5. Часть 1 Внутренняя облицовка наружных стен М8.22-1/2010-6. Часть 1 Устройство коммуникаций в перегородках М8.22-1/2010. Часть 1 Инструменты |
| Разработан: | ОАО ЦНИИпромзданий |
| Утверждён: | 01.05.2010 ОАО ЦНИИпромзданий (TsNIIpromzdaniy OAO ) |
| Расположен в: | |
| Заменяет собой: |
|


























































































































