Информационная система
«Ёшкин Кот»

Скачать базу одним архивом
Скачать обновления
История создания базы
Карта сайта

Скачать Типовой проект 902-1-99.85 Альбом II. Технологические решения. Внутренний водопровод и канализация. Отопление и вентиляция

Дата актуализации: 10.08.2017

Типовой проект 902-1-99.85

Альбом II. Технологические решения. Внутренний водопровод и канализация. Отопление и вентиляция

Обозначение: Типовой проект 902-1-99.85
Обозначение англ: 902-1-99.85
Статус:не действует
Название рус.:Альбом II. Технологические решения. Внутренний водопровод и канализация. Отопление и вентиляция
Дата добавления в базу:01.09.2013
Дата актуализации:05.05.2017
Дата введения:18.09.1985
Оглавление:ТП 902-1-99.85 Содержание альбома II
ТП 902-1-99.85-НК Основной комплект марки НК
ТП 902-1-99.85-НК-1 Общие данные
ТП 902-1-99.85-НК-2 План на отм. 0.000
ТП 902-1-99.85-НК-3 План
ТП 902-1-99.85-НК-4 Разрез 1-1
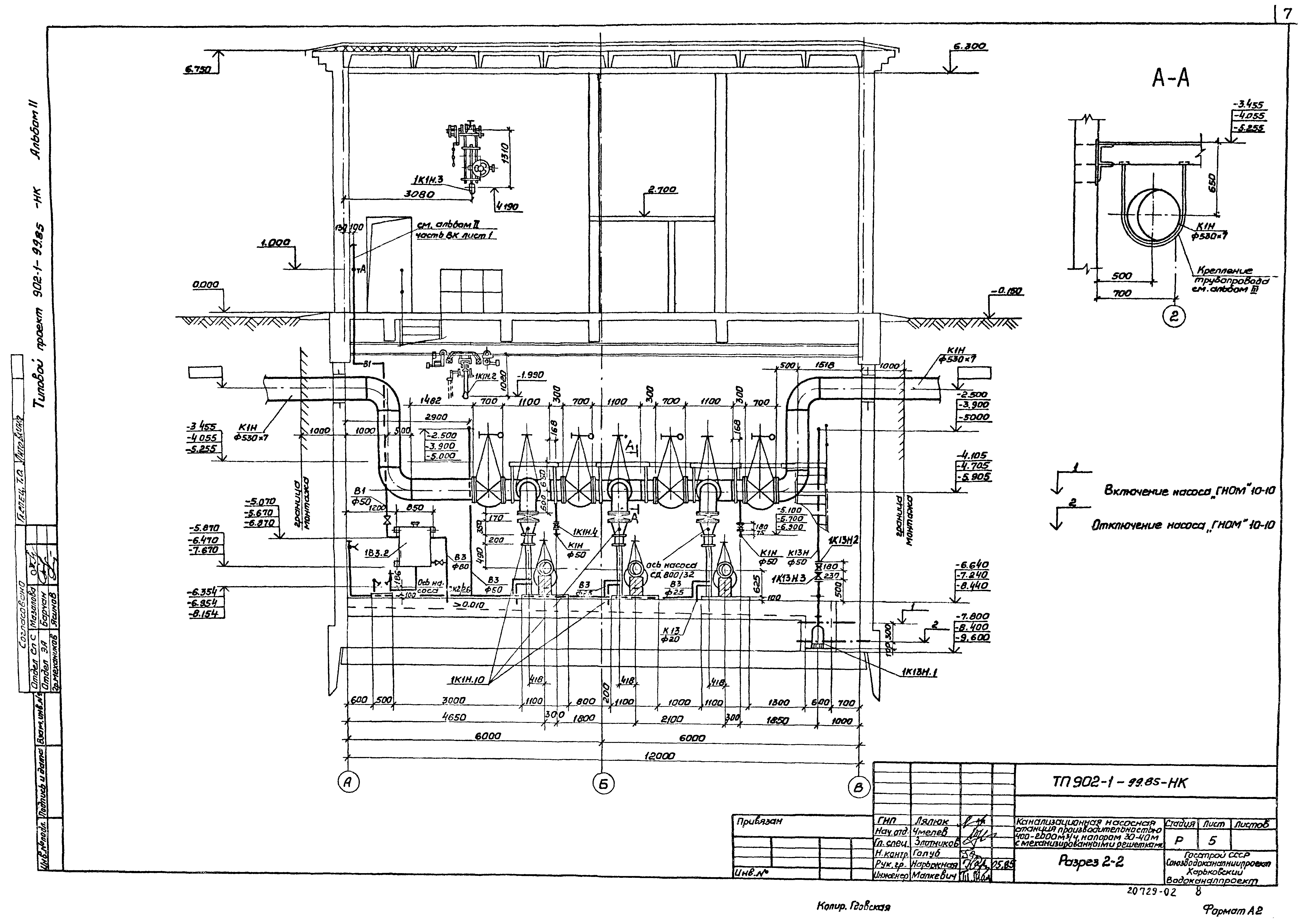
ТП 902-1-99.85-НК-5 Разрез 2-2
ТП 902-1-99.85-НК-6 План приемного резервуара. Разрез 3-3
ТП 902-1-99.85-НК-7 Схема системы 1К1Н
ТП 902-1-99.85-НК-8 План на отм. □. Схема систем 1В3,1К13,1К13Н
ТП 902-1-99.85-НКН1 Эскизные чертежи общих видов нетиповых конструкций системы канализации
ТП 902-1-99.85-НКН2 Решетка ремонтная. Чертеж общего вида
ТП 902-1-99.85-НКН3 Шандор. Чертеж общего вида
ТП 902-1-99.85-НКН4 Лоток загрузочный. Чертеж общего вида
ТП 902-1-99.85-НКН5 Устройство отборное с разделительной мембраной для манометра. Чертеж общего вида
ТП 902-1-99.85-НКН6 Патрубок. Чертеж общего вида
ТП 902-1-99.85-НКН7 Патрубок монтажный. Чертеж общего вида
ТП 902-1-99.85-ВК Основной комплект марки ВК
ТП 902-1-99.85-ВК-1 Общие данные. План. Схемы систем В1,Т3,К1. Водомерный узел
ТП 902-1-99.85-ОВ Основной комплект марки ОВ
ТП 902-1-99.85-ОВ-1 Общие данные
ТП 902-1-99.85-ОВ-2 Планы на отм. 0.000;2.700 подземной части. Разрез 1-1
ТП 902-1-99.85-ОВ-3 Схемы систем отопления, теплоснабжения водоподогревателя и установки П1. Узел управления. Схемы систем П1.1Р;ВЕ1
ТП 902-1-99.85-ОВ-4 Схемы систем П2;В1.1Р;В2.2Р;В5;ВЕ2;В4. Отсос. Элемент изоляции
ТП 902-1-99.85-ОВ-5 Установки систем П1.1Р;П2
ТП 902-1-99.85-ОВ-6 Установки систем В1.1Р;В2.2Р;В4;В5
ТП 902-1-99.85-ОВН Эскизные чертежи общих видов нетиповых конструкций системы отопления и вентиляции
ТП 902-1-99.85-ОВН1 Лючок с заглушкой. Чертеж общего вида
ТП 902-1-99.85-ОВН2 Рама для крепления калорифера. Чертеж общего вида
ТП 902-1-99.85-ОВН3 Грязевик. Чертеж общего вида
ТП 902-1-99.85-ОВН4 Расширитель. Чертеж общего вида
ТП 902-1-99.85-ОВН5 Вставка редукционная. Чертеж общего вида
ТП 902-1-99.85-ОВН6 Зонт. Чертеж общего вида
Разработан: Харьковский Водоканалпроект
Утверждён:21.06.1985 Госстрой СССР (Государственный комитет Совета Министров СССР по делам строительства) (USSR Gosstroy А4-23)
Расположен в:Техническая документация Строительство Справочные документы Типовые строительные конструкции, изделия и узлы Общероссийский строительный каталог Промышленные предприятия, здания и сооружения Здания и сооружения санитарно-технические Канализация Станции насосные Станции насосные для перекачки бытовых сточных вод
Типовой проект 902-1-99.85Типовой проект 902-1-99.85Типовой проект 902-1-99.85Типовой проект 902-1-99.85Типовой проект 902-1-99.85Типовой проект 902-1-99.85Типовой проект 902-1-99.85Типовой проект 902-1-99.85Типовой проект 902-1-99.85Типовой проект 902-1-99.85Типовой проект 902-1-99.85Типовой проект 902-1-99.85Типовой проект 902-1-99.85Типовой проект 902-1-99.85Типовой проект 902-1-99.85Типовой проект 902-1-99.85Типовой проект 902-1-99.85Типовой проект 902-1-99.85Типовой проект 902-1-99.85Типовой проект 902-1-99.85Типовой проект 902-1-99.85Типовой проект 902-1-99.85Типовой проект 902-1-99.85Типовой проект 902-1-99.85

© 2013 Ёшкин Кот :-) Карта сайта