Информационная система
«Ёшкин Кот»

Скачать базу одним архивом
Скачать обновления
История создания базы
Карта сайта

Скачать Типовой проект 902-1-141.88 Альбом 3. Надземная часть. Общие чертежи. Архитектурные решения. Конструкции железобетонные. Конструкции металлические. Изделия (из ТП 902-1-137.88)

Дата актуализации: 10.08.2017

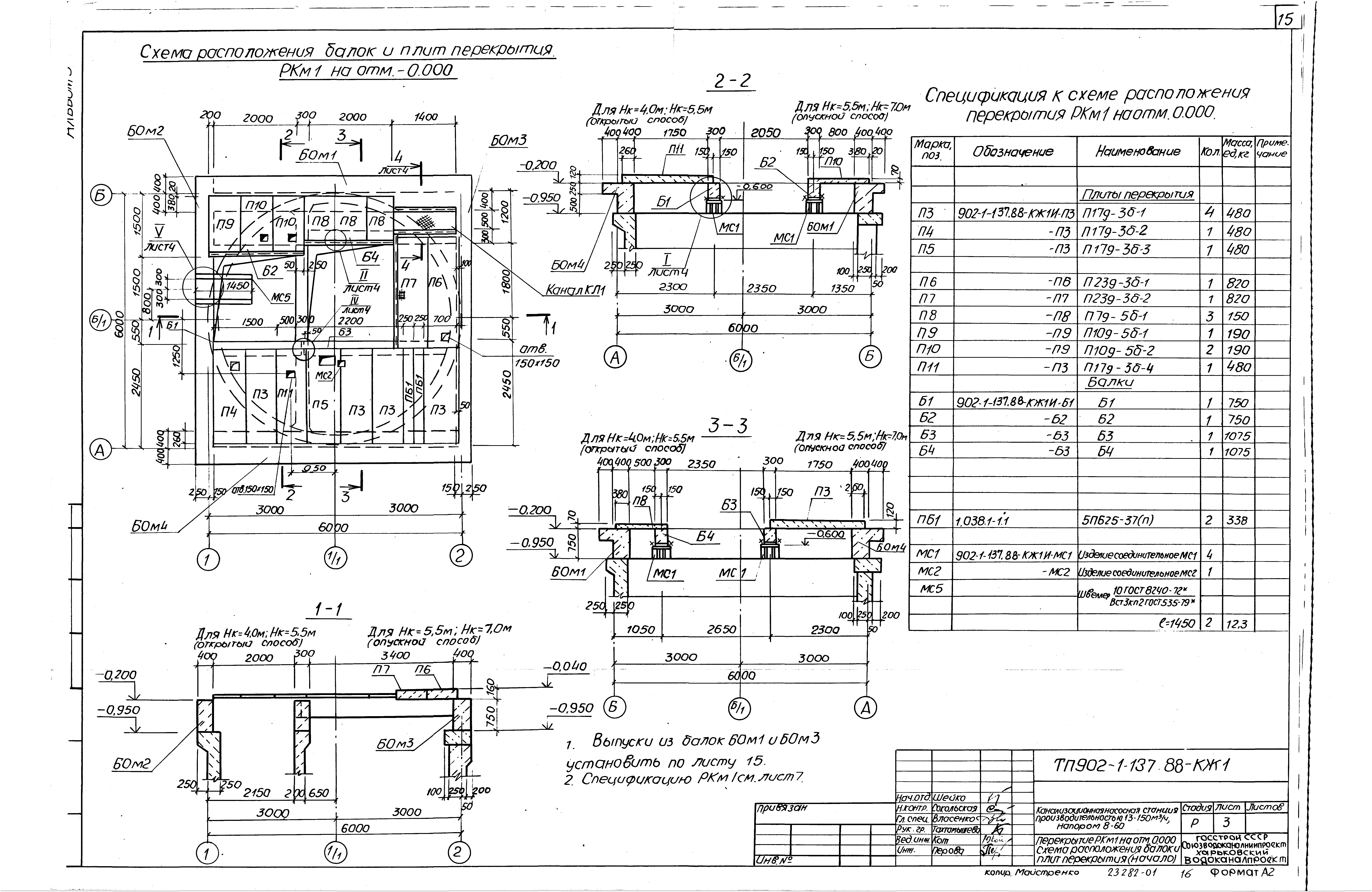
Типовой проект 902-1-141.88

Альбом 3. Надземная часть. Общие чертежи. Архитектурные решения. Конструкции железобетонные. Конструкции металлические. Изделия (из ТП 902-1-137.88)

Обозначение: Типовой проект 902-1-141.88
Обозначение англ: 902-1-141.88
Статус:не определен законодательством
Название рус.:Альбом 3. Надземная часть. Общие чертежи. Архитектурные решения. Конструкции железобетонные. Конструкции металлические. Изделия (из ТП 902-1-137.88)
Дата добавления в базу:01.09.2013
Дата актуализации:05.05.2017
Дата введения:19.07.1988
Разработан: Харьковский Водоканалпроект
Утверждён:19.07.1988 Госстрой СССР (Государственный комитет Совета Министров СССР по делам строительства) (USSR Gosstroy 46)
Издан: ЦИТП Госстроя СССР (CITP, Gosstroy (USSR) 1988 г. )
Расположен в:Техническая документация Строительство Справочные документы Типовые строительные конструкции, изделия и узлы Общероссийский строительный каталог Промышленные предприятия, здания и сооружения Здания и сооружения санитарно-технические Канализация Станции насосные Станции насосные для перекачки бытовых сточных вод
Типовой проект 902-1-141.88Типовой проект 902-1-141.88Типовой проект 902-1-141.88Типовой проект 902-1-141.88Типовой проект 902-1-141.88Типовой проект 902-1-141.88Типовой проект 902-1-141.88Типовой проект 902-1-141.88Типовой проект 902-1-141.88Типовой проект 902-1-141.88Типовой проект 902-1-141.88Типовой проект 902-1-141.88Типовой проект 902-1-141.88Типовой проект 902-1-141.88Типовой проект 902-1-141.88Типовой проект 902-1-141.88Типовой проект 902-1-141.88Типовой проект 902-1-141.88Типовой проект 902-1-141.88Типовой проект 902-1-141.88Типовой проект 902-1-141.88Типовой проект 902-1-141.88Типовой проект 902-1-141.88Типовой проект 902-1-141.88Типовой проект 902-1-141.88Типовой проект 902-1-141.88Типовой проект 902-1-141.88Типовой проект 902-1-141.88Типовой проект 902-1-141.88Типовой проект 902-1-141.88Типовой проект 902-1-141.88Типовой проект 902-1-141.88Типовой проект 902-1-141.88Типовой проект 902-1-141.88Типовой проект 902-1-141.88Типовой проект 902-1-141.88Типовой проект 902-1-141.88Типовой проект 902-1-141.88Типовой проект 902-1-141.88Типовой проект 902-1-141.88Типовой проект 902-1-141.88Типовой проект 902-1-141.88Типовой проект 902-1-141.88Типовой проект 902-1-141.88Типовой проект 902-1-141.88Типовой проект 902-1-141.88

© 2013 Ёшкин Кот :-) Карта сайта