Информационная система
«Ёшкин Кот»

Скачать базу одним архивом
Скачать обновления
История создания базы
Карта сайта

Скачать Типовой проект 903-1-211.84 Альбом IV. Архитектурно-строительная часть

Дата актуализации: 10.08.2017

Типовой проект 903-1-211.84

Альбом IV. Архитектурно-строительная часть

Обозначение: Типовой проект 903-1-211.84
Обозначение англ: 903-1-211.84
Статус:заменен
Название рус.:Альбом IV. Архитектурно-строительная часть
Дата добавления в базу:01.09.2013
Дата актуализации:05.05.2017
Дата введения:01.01.1990
Оглавление:ТП 903-1-211.84 Содержание альбома
ТП 903-1-211.84-ПЗ Пояснительная записка
ТП 903-1-211.84 Схема генплана М1:500
ТП 903-1-211.84-АР Архитектурно-строительные решения марки АР
ТП 903-1-211.84-АР-1 Общие данные (начало)
ТП 903-1-211.84-АР-2 Общие данные (окончание)
ТП 903-1-211.84-АР-3 Планы на отм. 0.000;4.800. Фрагмент 1. План расположения отверстий в перегородках в осях 1-2/А В
ТП 903-1-211.84-АР-4 Разрезы 1-1;2-2. Планы полов и кровли
ТП 903-1-211.84-АР-5 Фасады
ТП 903-1-211.84-АР-6 Узлы
ТП 903-1-211.84-КЖ Конструкции железобетонные марки КЖ
ТП 903-1-211.84-КЖ-1 Общие данные (начало)
ТП 903-1-211.84-КЖ-2 Общие данные (окончание)
ТП 903-1-211.84-КЖ-3 Схема расположения элементов фундаментов. Узел 1
ТП 903-1-211.84-КЖ-4 Фундаменты здания. Узлы 2-5
ТП 903-1-211.84-КЖ-5 Фундаменты здания. Узлы 6-10
ТП 903-1-211.84-КЖ-6 Таблица усилий на фундаменты ФМ1-ФМ3;ФМ1;ФМ2
ТП 903-1-211.84-КЖ-7 Фундаменты ФМ1-ФМ3
ТП 903-1-211.84-КЖ-8 Схема расположения элементов подземного хозяйства и закладных изделий в полах на отм 0.000 и 3.270
ТП 903-1-211.84-КЖ-9 Спецификация к схеме расположения элементов подземного хозяйства и закладных изделий в полах
ТП 903-1-211.84-КЖ-10 Узлы 1;2 и сечения к листу КЖ-8
ТП 903-1-211.84-КЖ-11 Схемы расположения элементов покрытия канала и элементов охлаждающего колодца
ТП 903-1-211.84-КЖ-12 Фундаменты под оборудование ФОМ1;ФОМ2;ФОМ4
ТП 903-1-211.84-КЖ-13 Фундаменты под оборудование ФОМ3;ФОМ5;ФОМ7;ФОМ1. Опорная подушка ОПМ1
ТП 903-1-211.84-КЖ-14 Приямки ПРМ1;ПРМ2. Подземный резервуар РМ1. Опалубочный чертеж
ТП 903-1-211.84-КЖ-15 Подземный резервуар РМ1. Армирование
ТП 903-1-211.84-КЖ-16 Монолитные участки лотка УМ1;УМ2. Опалубка
ТП 903-1-211.84-КЖ-17 Монолитные участки лотка УМ1;УМ2. Армирование
ТП 903-1-211.84-КЖ-18 Приемное устройство ПРМ3. Опалубочный чертеж
ТП 903-1-211.84-КЖ-19 Приемное устройство ПРМ3. Схемы армирования стен и днища. Монолитный участок перекрытия РКМ1. Опалубка
ТП 903-1-211.84-КЖ-20 Приемное устройство ПРМ3. Монолитный участок перекрытия РКМ1. Армирование
ТП 903-1-211.84-КЖ-21 Схемы расположения элементов каркаса, покрытия и перекрытия на отм. 3.220
ТП 903-1-211.84-КЖ-22 Сечения и узлы к листу КЖ-21
ТП 903-1-211.84-КЖ-23 Спецификация к схемам расположения элементов каркаса, покрытия и перекрытия на отм. 3.220
ТП 903-1-211.84-КЖ-24 Схемы расположения стеновых панелей
ТП 903-1-211.84-КЖ-25 Фрагменты 1-6 к листу КЖ-24
ТП 903-1-211.84-КЖ-26 Спецификация к схемам расположения стеновых панелей (начало)
ТП 903-1-211.84-КЖ-27 Спецификация к схемам расположения стеновых панелей (окончание)
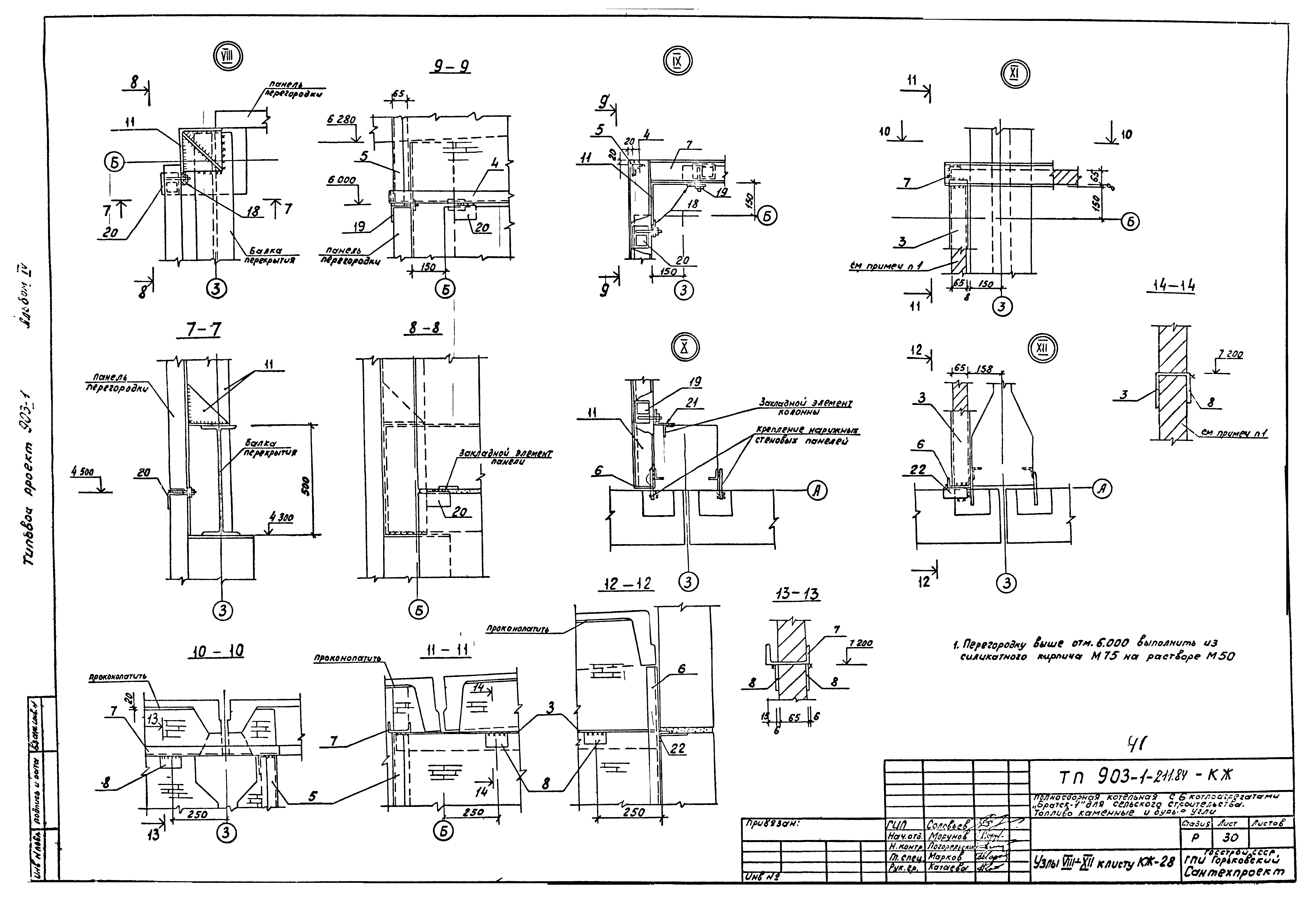
ТП 903-1-211.84-КЖ-28 Схема расположения панелей перегородок. Разрезы 1-1÷5-5
ТП 903-1-211.84-КЖ-29 Узлы 1-7 к листу КЖ-28
ТП 903-1-211.84-КЖ-30 Узлы 8-12 к листу КЖ-28
ТП 903-1-211.84-КЖ-31 Газоходы
ТП 903-1-211.84-КМ Конструкции металлические марки КМ
ТП 903-1-211.84-КМ-1 Общие данные (начало)
ТП 903-1-211.84-КМ-2 Общие данные (продолжение). Техническая спецификация металла
ТП 903-1-211.84-КМ-3 Общие данные (продолжение). Техническая спецификация металла
ТП 903-1-211.84-КМ-4 Общие данные (продолжение). Техническая спецификация металла на лестницы и ограждения
ТП 903-1-211.84-КМ-5 Общие данные (продолжение). Техническая спецификация металла на сетчатые перегородки
ТП 903-1-211.84-КМ-6 Общие данные (окончание). Ведомость металлоконструкций по видам профилей
ТП 903-1-211.84-КМ-7 Схема расположения балок перекрытий на отм. 3.000 и 4.800
ТП 903-1-211.84-КМ-8 Узлы 2-9 к листу КМ-7
ТП 903-1-211.84-КМ-9 Схема расположения элементов площадки на отм. 2.900
ТП 903-1-211.84-КМ-10 Узлы 10-15
ТП 903-1-211.84-КМ-11 Вертикальная связь СВ1. Схема расположения элементов рамы ворот. Схема расположения элементов торцевого фахверка по оси 1
ТП 903-1-211.84-КМ-12 Узлы 16-20
ТП 903-1-211.84-КМ-13 Схема расположения путей подвесного транспорта
ТП 903-1-211.84-КМ-14 Схема расположения балок для крепления трубопроводов. Разрезы 1-1;2-2;3-3
ТП 903-1-211.84-КМ-15 Схема расположения балок для крепления трубопроводов. Разрезы 4-4;5-5;6-6;7-7;8-8. Узлы 24-27
ТП 903-1-211.84-КМ-16 Схема щитов сетчатого ограждения на отм. 0.000. Схема ограждения площадок на отм. 2.900;3.250;4.800. Лестница Л1
ТП 903-1-211.84-КМ-17 Схема расположения балок и щитов перекрытия лотка золошлакоудаления. Схема опоры натяжного устройства
ТП 903-1-211.84-КМ-18 Бункер топливоподачи. Схемы расположения элементов опоры
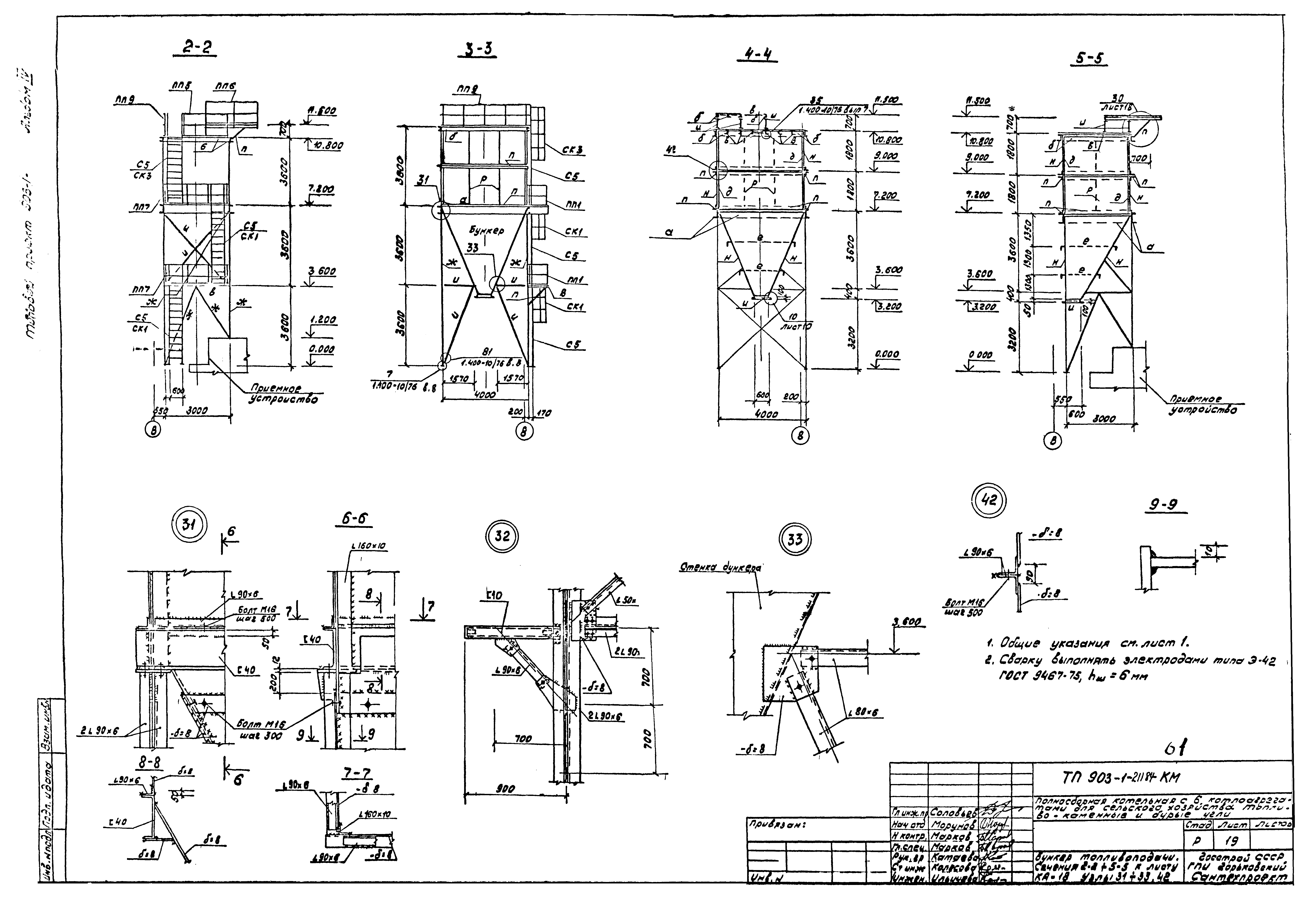
ТП 903-1-211.84-КМ-19 Бункер топливоподачи. Сечения 2-2÷5-5 к листу КМ-18. Узлы 31-33
ТП 903-1-211.84-КМ-20 Опора под деаэратор
ТП 903-1-211.84-КМ-21 Узлы 34-37 к листу КМ-20
ТП 903-1-211.84-КМ-22 Схема расположения площадки, лестниц, ограждения приемного устройства. Схема бункера приемного устройства
Разработан: Горьковский Сантехпроект
Утверждён:11.03.1984 Министерство сельского хозяйства СССР (USSR Ministry of Agriculture 10-3Г)
Расположен в:Техническая документация Строительство Справочные документы Типовые строительные конструкции, изделия и узлы Общероссийский строительный каталог Промышленные предприятия, здания и сооружения Здания и сооружения санитарно-технические Теплоснабжение Котельные установки Котельные для объектов сельского хозяйства Топливо - каменные и бурые угли
Чем заменён:
Типовой проект 903-1-211.84Типовой проект 903-1-211.84Типовой проект 903-1-211.84Типовой проект 903-1-211.84Типовой проект 903-1-211.84Типовой проект 903-1-211.84Типовой проект 903-1-211.84Типовой проект 903-1-211.84Типовой проект 903-1-211.84Типовой проект 903-1-211.84Типовой проект 903-1-211.84Типовой проект 903-1-211.84Типовой проект 903-1-211.84Типовой проект 903-1-211.84Типовой проект 903-1-211.84Типовой проект 903-1-211.84Типовой проект 903-1-211.84Типовой проект 903-1-211.84Типовой проект 903-1-211.84Типовой проект 903-1-211.84Типовой проект 903-1-211.84Типовой проект 903-1-211.84Типовой проект 903-1-211.84Типовой проект 903-1-211.84Типовой проект 903-1-211.84Типовой проект 903-1-211.84Типовой проект 903-1-211.84Типовой проект 903-1-211.84Типовой проект 903-1-211.84Типовой проект 903-1-211.84Типовой проект 903-1-211.84Типовой проект 903-1-211.84Типовой проект 903-1-211.84Типовой проект 903-1-211.84Типовой проект 903-1-211.84Типовой проект 903-1-211.84Типовой проект 903-1-211.84Типовой проект 903-1-211.84Типовой проект 903-1-211.84Типовой проект 903-1-211.84Типовой проект 903-1-211.84Типовой проект 903-1-211.84Типовой проект 903-1-211.84Типовой проект 903-1-211.84Типовой проект 903-1-211.84Типовой проект 903-1-211.84Типовой проект 903-1-211.84Типовой проект 903-1-211.84Типовой проект 903-1-211.84Типовой проект 903-1-211.84Типовой проект 903-1-211.84Типовой проект 903-1-211.84Типовой проект 903-1-211.84Типовой проект 903-1-211.84Типовой проект 903-1-211.84Типовой проект 903-1-211.84Типовой проект 903-1-211.84Типовой проект 903-1-211.84Типовой проект 903-1-211.84Типовой проект 903-1-211.84Типовой проект 903-1-211.84Типовой проект 903-1-211.84Типовой проект 903-1-211.84

© 2013 Ёшкин Кот :-) Карта сайта