Информационная система
«Ёшкин Кот»

Скачать базу одним архивом
Скачать обновления
История создания базы
Карта сайта

Скачать Типовой проект 903-1-211.84 Альбом II. Тепломеханическая часть. Топливоподача и шлакозолоудаление

Дата актуализации: 10.08.2017

Типовой проект 903-1-211.84

Альбом II. Тепломеханическая часть. Топливоподача и шлакозолоудаление

Обозначение: Типовой проект 903-1-211.84
Обозначение англ: 903-1-211.84
Статус:заменен
Название рус.:Альбом II. Тепломеханическая часть. Топливоподача и шлакозолоудаление
Дата добавления в базу:01.09.2013
Дата актуализации:05.05.2017
Дата введения:01.01.1990
Оглавление:ТП 903-1-211.84-ТП Чертежи марки ТП
ТП 903-1-211.84-ТП-1 Общие данные
ТП 903-1-211.84-ТП-2 Компоновка оборудования. План - вид сверху. Разрезы 1-1,2-2
ТП 903-1-211.84-ТП-3 Компоновка оборудования. Разрез 3-3. Вид по А
ТП 903-1-211.84-ТП-4 Установка затвора на бункере угля. Сводная спецификация
ТП 903-1-211.84-ТП-5 Подвеска типа 1. Подвеска типа 2
ТП 903-1-211.84-ЗШ Чертежи марки ЗШ
ТП 903-1-211.84-ЗШ-1 Общие данные
ТП 903-1-211.84-ЗШ-2 План на отм. 0.000. Разрез 1-1
ТП 903-1-211.84-ЗШ-3 Разрезы 2-2;3-3. План на отм. 4.800
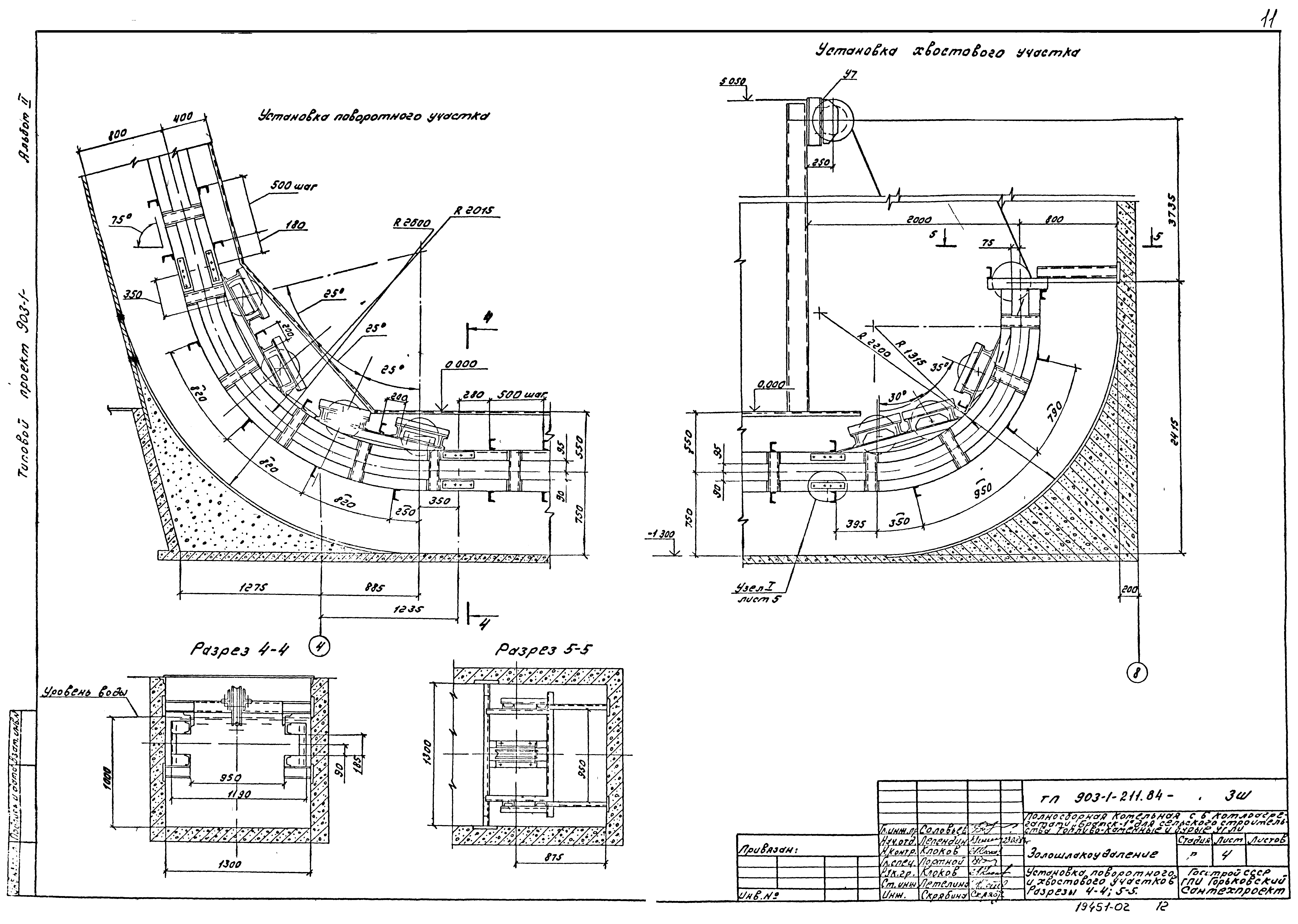
ТП 903-1-211.84-ЗШ-4 Установка поворотного и хвостового участков. Разрезы 4-4;5-5
ТП 903-1-211.84-ЗШ-5 Разрез 6-6. Вид по М. Узел 1. Аварийная система золошлакоудаления
ТП 903-1-211.84-ЗШ-6 Схема разводки троса
Разработан: Горьковский Сантехпроект
Утверждён:11.03.1984 Министерство сельского хозяйства СССР (USSR Ministry of Agriculture 10-3Г)
Расположен в:Техническая документация Строительство Справочные документы Типовые строительные конструкции, изделия и узлы Общероссийский строительный каталог Промышленные предприятия, здания и сооружения Здания и сооружения санитарно-технические Теплоснабжение Котельные установки Котельные для объектов сельского хозяйства Топливо - каменные и бурые угли
Чем заменён:
Типовой проект 903-1-211.84Типовой проект 903-1-211.84Типовой проект 903-1-211.84Типовой проект 903-1-211.84Типовой проект 903-1-211.84Типовой проект 903-1-211.84Типовой проект 903-1-211.84Типовой проект 903-1-211.84Типовой проект 903-1-211.84Типовой проект 903-1-211.84Типовой проект 903-1-211.84Типовой проект 903-1-211.84Типовой проект 903-1-211.84Типовой проект 903-1-211.84Типовой проект 903-1-211.84

© 2013 Ёшкин Кот :-) Карта сайта