Информационная система
«Ёшкин Кот»

Скачать базу одним архивом
Скачать обновления
История создания базы
Карта сайта

Скачать Типовой проект 902-2-401.86 Альбом V. Строительные изделия

Дата актуализации: 10.08.2017

Типовой проект 902-2-401.86

Альбом V. Строительные изделия

Обозначение: Типовой проект 902-2-401.86
Обозначение англ: 902-2-401.86
Статус:заменен
Название рус.:Альбом V. Строительные изделия
Дата добавления в базу:01.09.2013
Дата актуализации:05.05.2017
Дата введения:01.10.1987
Оглавление:ТП 902-2-401.86 Титульный лист
ТП 902-2-401.86 Содержание альбома
ТП 902-2-401.86-КЖИ.000.ТУ Технические условия
ТП 902-2-401.86-КЖИ.010 Колонна К1
ТП 902-2-401.86-КЖИ.020 Колонна К2
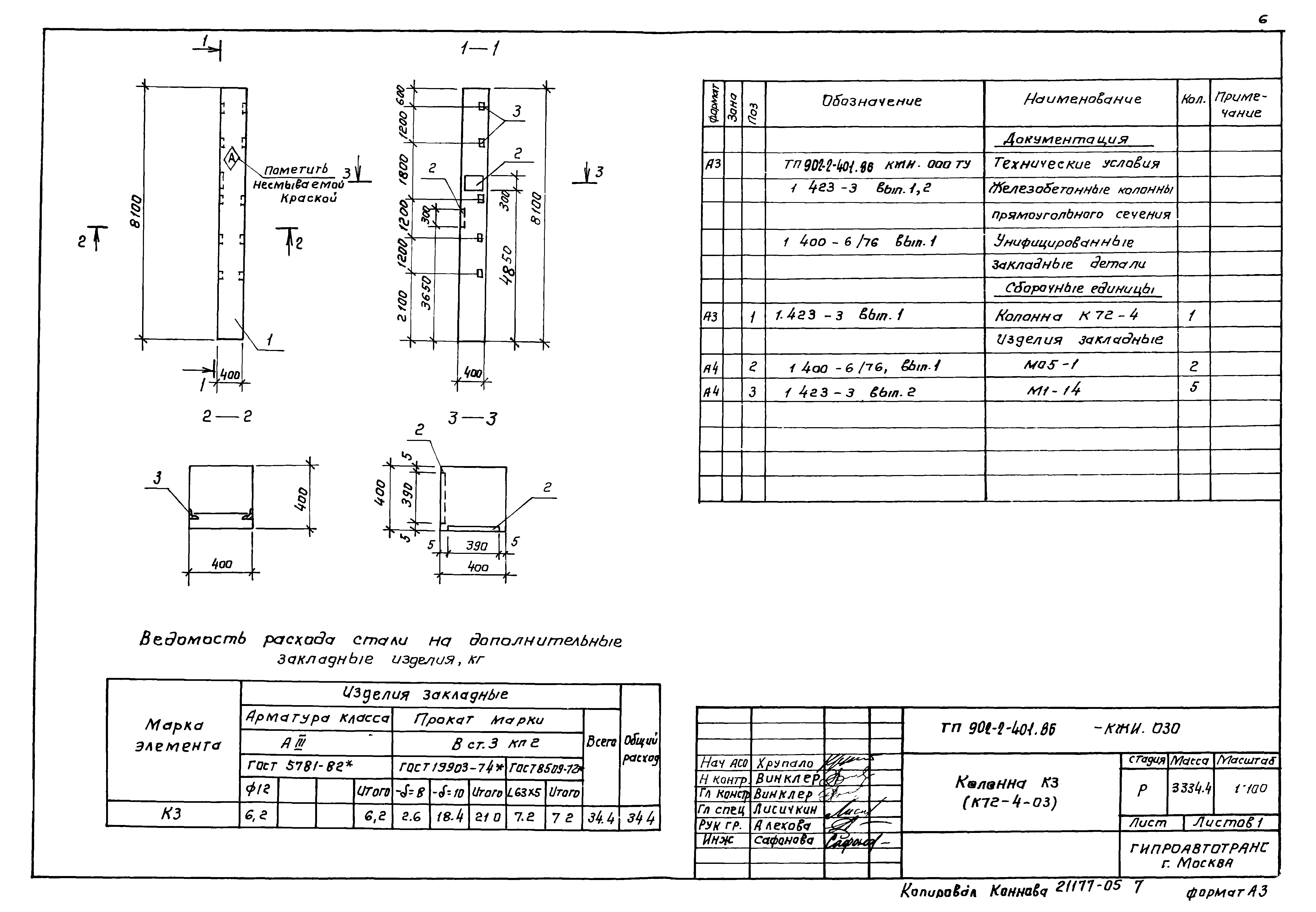
ТП 902-2-401.86-КЖИ.030 Колонна К3
ТП 902-2-401.86-КЖИ.040 Колонна К4
ТП 902-2-401.86-КЖИ.050 Колонна К5
ТП 902-2-401.86-КЖИ.060 Колонна К6
ТП 902-2-401.86-КЖИ.070 Колонна К7
ТП 902-2-401.86-КЖИ.080 Колонна К8
ТП 902-2-401.86-КЖИ.090 Колонна К9
ТП 902-2-401.86-КЖИ.100 Балки Б1,Б2,Б3
ТП 902-2-401.86-КЖИ.100 СБ Балки Б1,Б2,Б3. Сборочный чертеж
ТП 902-2-401.86-КЖИ.110 Плиты П2,П3,П4
ТП 902-2-401.86-КЖИ.120 Плиты П6,П7
ТП 902-2-401.86-КЖИ.130 Плиты П8,П9,П10
ТП 902-2-401.86-КЖИ.140 Панель ПС15
ТП 902-2-401.86-КЖИ.150 Панель ПС19
ТП 902-2-401.86-КЖИ.160 Панель ПС20
ТП 902-2-401.86-КЖИ.170 Рамки РМ1,РМ2
ТП 902-2-401.86-КЖИ.170 СБ Рамки РМ1,РМ2. Сборочный чертеж
ТП 902-2-401.86-КЖИ.180 Изделие закладное МН1
ТП 902-2-401.86-КЖИ.190 Изделие закладное МН2
ТП 902-2-401.86-КЖИ.200 Изделие закладное МН3
ТП 902-2-401.86-КЖИ.210 Изделие закладное МН4
ТП 902-2-401.86-КЖИ.220 Изделие закладное МН5
ТП 902-2-401.86-КЖИ.230 Изделие закладное МН6
ТП 902-2-401.86-КЖИ.240 Каркасы КР1,КР2
ТП 902-2-401.86-КЖИ.250 Сетка С1
ТП 902-2-401.86-КЖИ.260 Сетка С2
ТП 902-2-401.86-КЖИ.270 Насадка НС1
ТП 902-2-401.86-КЖИ.280 Щит ЩС1
ТП 902-2-401.86-КЖИ.290 Каркас деревянный КРД1
Разработан: Гипроавтотранс
Утверждён:27.03.1985 Минавтотранс РСФСР (Russian Federation Minavtotrans 55)
Расположен в:Техническая документация Строительство Справочные документы Типовые строительные конструкции, изделия и узлы Общероссийский строительный каталог Промышленные предприятия, здания и сооружения Здания и сооружения санитарно-технические Канализация Сооружения для очистки производственных сточных вод Сооружения для очистки сточных вод от мойки автомобилей
Чем заменён:
Типовой проект 902-2-401.86Типовой проект 902-2-401.86Типовой проект 902-2-401.86Типовой проект 902-2-401.86Типовой проект 902-2-401.86Типовой проект 902-2-401.86Типовой проект 902-2-401.86Типовой проект 902-2-401.86Типовой проект 902-2-401.86Типовой проект 902-2-401.86Типовой проект 902-2-401.86Типовой проект 902-2-401.86Типовой проект 902-2-401.86Типовой проект 902-2-401.86Типовой проект 902-2-401.86Типовой проект 902-2-401.86Типовой проект 902-2-401.86Типовой проект 902-2-401.86Типовой проект 902-2-401.86Типовой проект 902-2-401.86Типовой проект 902-2-401.86Типовой проект 902-2-401.86Типовой проект 902-2-401.86Типовой проект 902-2-401.86Типовой проект 902-2-401.86Типовой проект 902-2-401.86Типовой проект 902-2-401.86Типовой проект 902-2-401.86Типовой проект 902-2-401.86Типовой проект 902-2-401.86

© 2013 Ёшкин Кот :-) Карта сайта