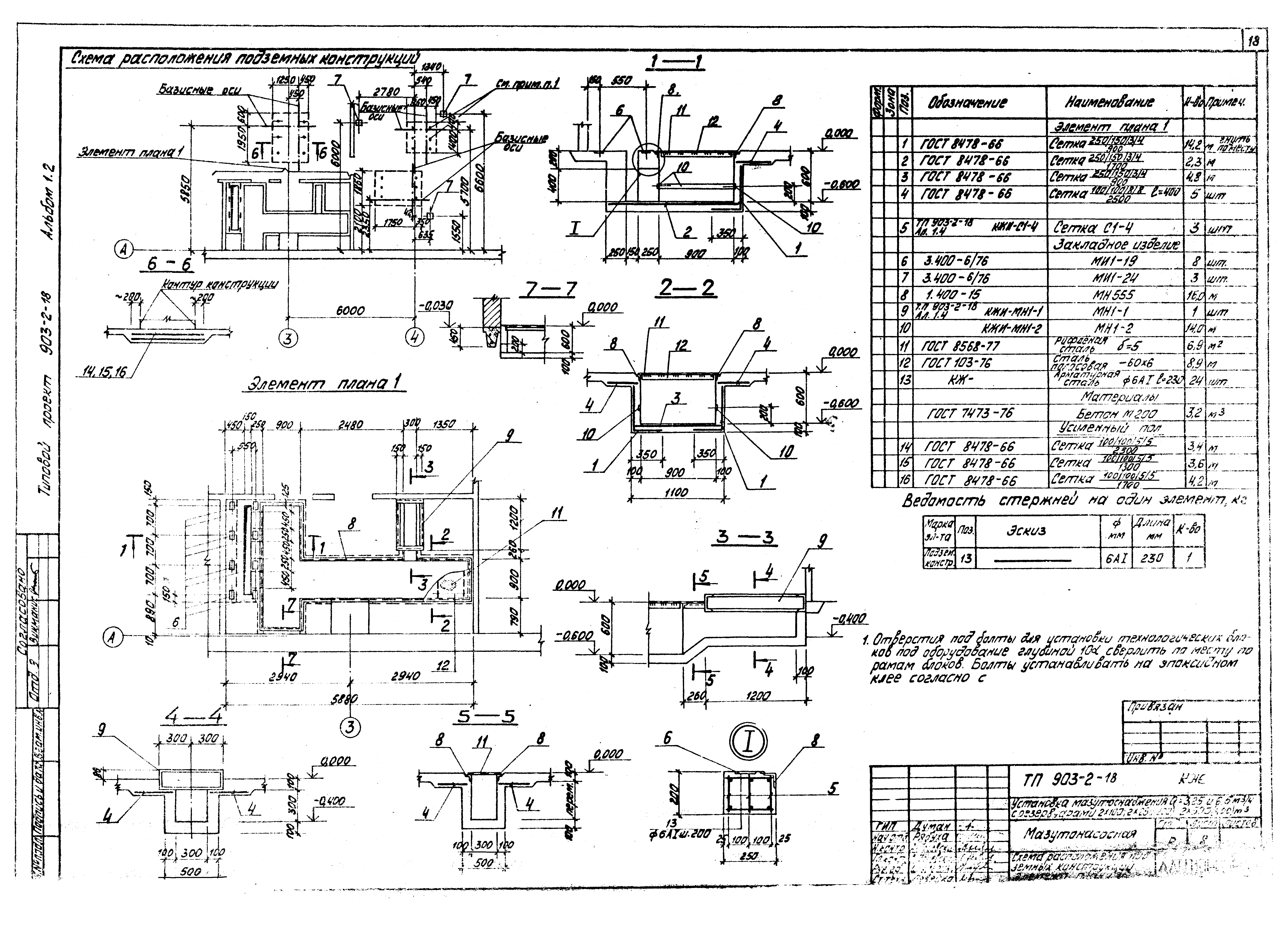
Скачать Типовой проект 903-2-18 Альбом 1.2. Мазутонасосная. Архитектурно-строительная частьДата актуализации: 10.08.2017 Типовой проект 903-2-18
Альбом 1.2. Мазутонасосная. Архитектурно-строительная частьОбозначение: | Типовой проект 903-2-18 | Обозначение англ: | 903-2-18 | Статус: | заменен | Название рус.: | Альбом 1.2. Мазутонасосная. Архитектурно-строительная часть | Дата добавления в базу: | 01.09.2013 | Дата актуализации: | 05.05.2017 | Дата введения: | 01.02.1987 | Разработан: | Латгипропром
| Утверждён: | 21.10.1981 Латгипропром (227)
| Расположен в: |
| Заменяет собой: | | Чем заменён: | - Типовой проект 903-2-25.86 «Установка мазутоснабжения Q = 3,25 и 6,5 куб. м/ч с железобетонными резервуарами 2х100; 2х250; 2х500 куб. м. Железнодорожный слив»
|
                                          
|