Информационная система
«Ёшкин Кот»

Скачать базу одним архивом
Скачать обновления
История создания базы
Карта сайта

Скачать Типовой проект 902-5-36.86 Альбом II. Технологическая и санитарно-техническая части

Дата актуализации: 10.08.2017

Типовой проект 902-5-36.86

Альбом II. Технологическая и санитарно-техническая части

Обозначение: Типовой проект 902-5-36.86
Обозначение англ: 902-5-36.86
Статус:не определен законодательством
Название рус.:Альбом II. Технологическая и санитарно-техническая части
Дата добавления в базу:01.09.2013
Дата актуализации:05.05.2017
Дата введения:05.06.1986
Оглавление:ТП 902-5-36.86 Содержание альбома
ТП 902-5-36.86 ТХ Технологическая часть
ТП 902-5-36.86 ТХ-1 Общие данные
ТП 902-5-36.86 ТХ-2 Пример размещения корпуса обезвоживания осадка на генплане станции биологической очистки сточных вод Q=200тыс.м³/сут
ТП 902-5-36.86 ТХ-3 Принципиальная технологическая схема
ТП 902-5-36.86 ТХ-4 План на отм. 4.200. Экспликация оборудования
ТП 902-5-36.86 ТХ-5 Планы на отм. 4.800;0.000;7.200;-3.000. Разрезы 1-1;2-2;3-3. Экспликация помещений
ТП 902-5-36.86 ТХ-6 План на отм. 0.000 в осях А-Н, 5-10
ТП 902-5-36.86 ТХ-7 План на отм. 4.200 в осях А-Н, 6-11
ТП 902-5-36.86 ТХ-8 План на отм. 4.800;7.200 в осях А-Б, 5-9
ТП 902-5-36.86 ТХ-9 План на отм. 0.000 в осях А-Н, 9-18
ТП 902-5-36.86 ТХ-10 План на отм. 4.200 в осях А-Н, 9-17
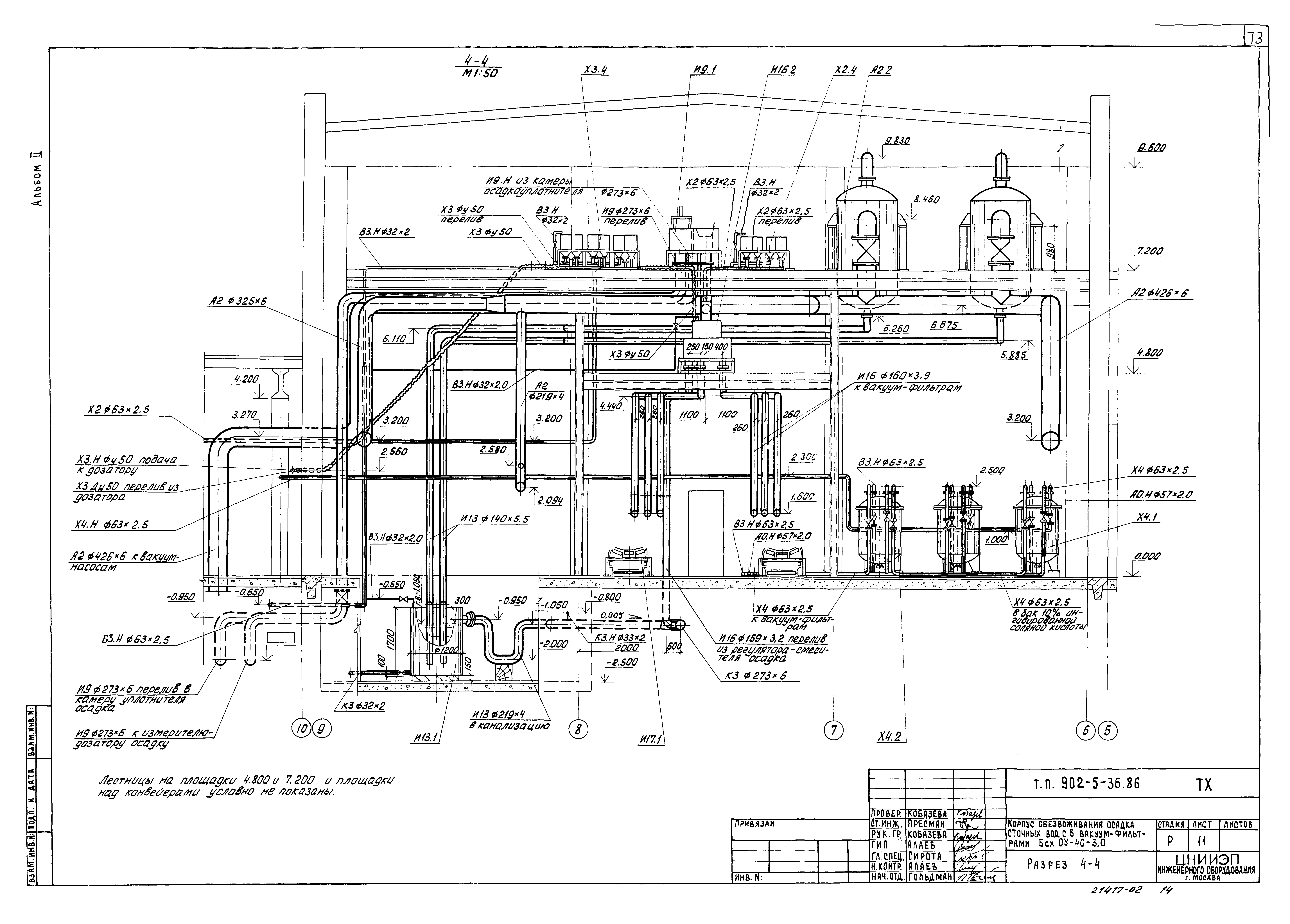
ТП 902-5-36.86 ТХ-11 Разрез 4-4
ТП 902-5-36.86 ТХ-12 Разрез 5-5
ТП 902-5-36.86 ТХ-13 Разрезы 6-6;7-7;8-8;9-9
ТП 902-5-36.86 ТХ-14 Разрезы 10-10;11-11;12-12
ТП 902-5-36.86 ТХ-15 Технологическая обвязка вакуум-фильтра БСХОУ-40-3.0
ТП 902-5-36.86 ТХ-16 Технологическая обвязка вакуум-фильтра БСХОУ-40-3.0. Вид А
ТП 902-5-36.86 ТХ-17 Технологическая обвязка вакуум-фильтра БСХОУ-40-3.0. План на отм. 0.000
ТП 902-5-36.86 ТХ-18 Схема И9,И16
ТП 902-5-36.86 ТХ-19 Схема А2
ТП 902-5-36.86 ТХ-20 Схема АО
ТП 902-5-36.86 ТХ-21 Схема Х2
ТП 902-5-36.86 ТХ-22 Схема Х3
ТП 902-5-36.86 ТХ-23 Схема Х4
ТП 902-5-36.86 ТХ-24 Схема В3
ТП 902-5-36.86 ТХ-25 Схема И13,К3
ТП 902-5-36.86 ТХ-26 Линия транспорта обезвоженного осадка. Общий вид
ТП 902-5-36.86 ТХ-27 Линия транспорта обезвоженного осадка. Выносные элементы. Разрезы
ТП 902-5-36.86 ТХ-28 Линия транспорта обезвоженного осадка. Выносные элементы. Разрез
ТП 902-5-36.86 ОВ Санитарно-техническая часть. Отопление и вентиляция
ТП 902-5-36.86 ОВ-1 Общие данные
ТП 902-5-36.86 ОВ-2 План на отм. -2.700;-3.000;0.000;3.600
ТП 902-5-36.86 ОВ-3 Схема системы отопления. Схемы систем П1;В1-В8;ВЕ1-ВЕ5. Узел управления
ТП 902-5-36.86 ОВ-4 Установка системы П1. Схема системы теплоснабжения
ТП 902-5-36.86 ОВ-5 Установка систем В4;В5;В6
ТП 902-5-36.86 ОВН-1 Конфузор
ТП 902-5-36.86 ОВН-2 Переход
ТП 902-5-36.86 ОВН-3 Воздуховод из асбестоцементных листов. Узлы соединения
ТП 902-5-36.86 ОВН-4 Конструкция изоляции перехода
ТП 902-5-36.86 ОВН-5 Конструкция изоляции трубопроводов
ТП 902-5-36.86 ВК Водопровод и канализация
ТП 902-5-36.86 ВК-1 Общие данные
ТП 902-5-36.86 ВК-2 План на отм. 0.000
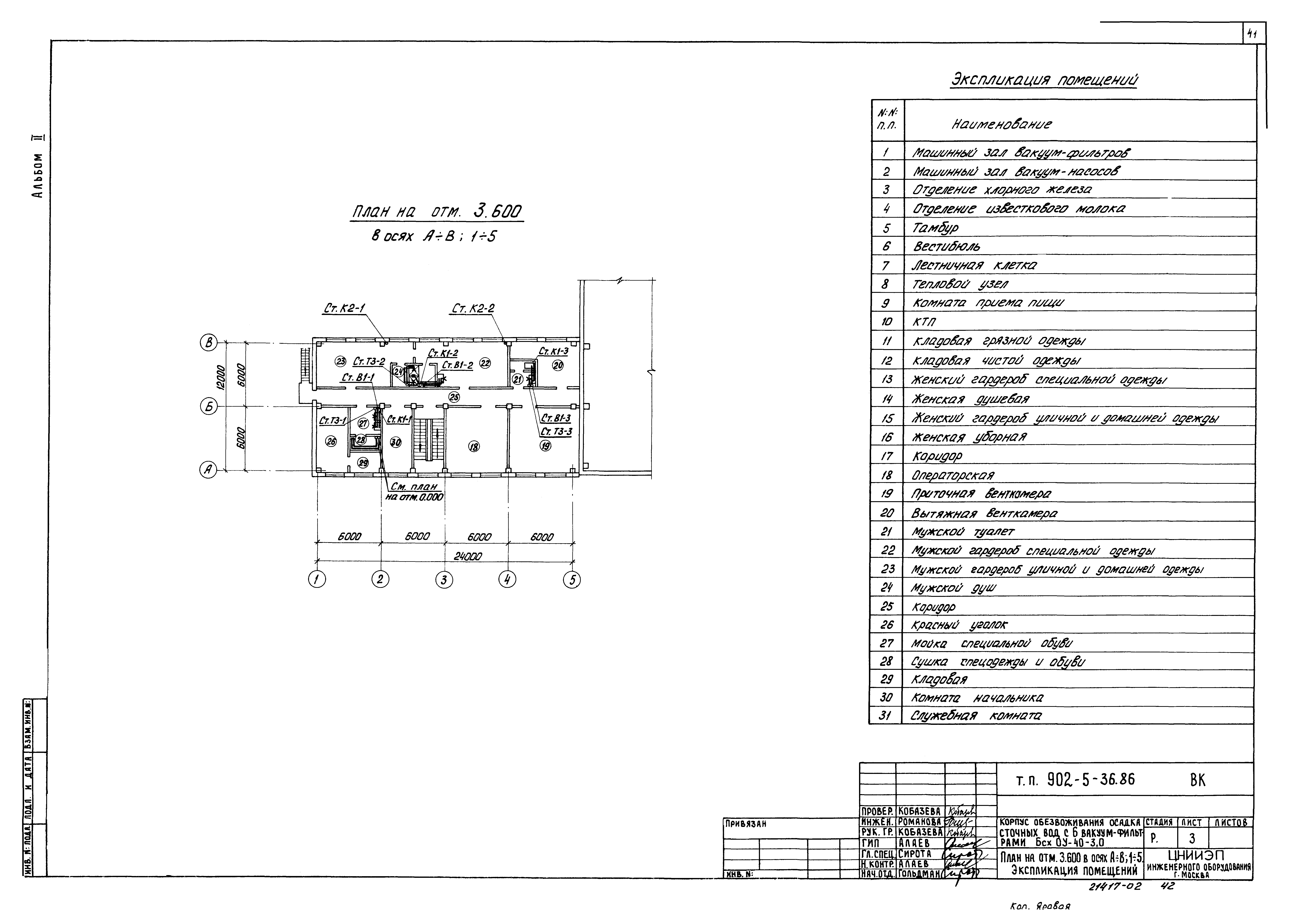
ТП 902-5-36.86 ВК-3 План на отм. 3.600 в осях А-В;1-5. Экспликация помещений
ТП 902-5-36.86 ВК-4 План кровли
ТП 902-5-36.86 ВК-5 Схема В1
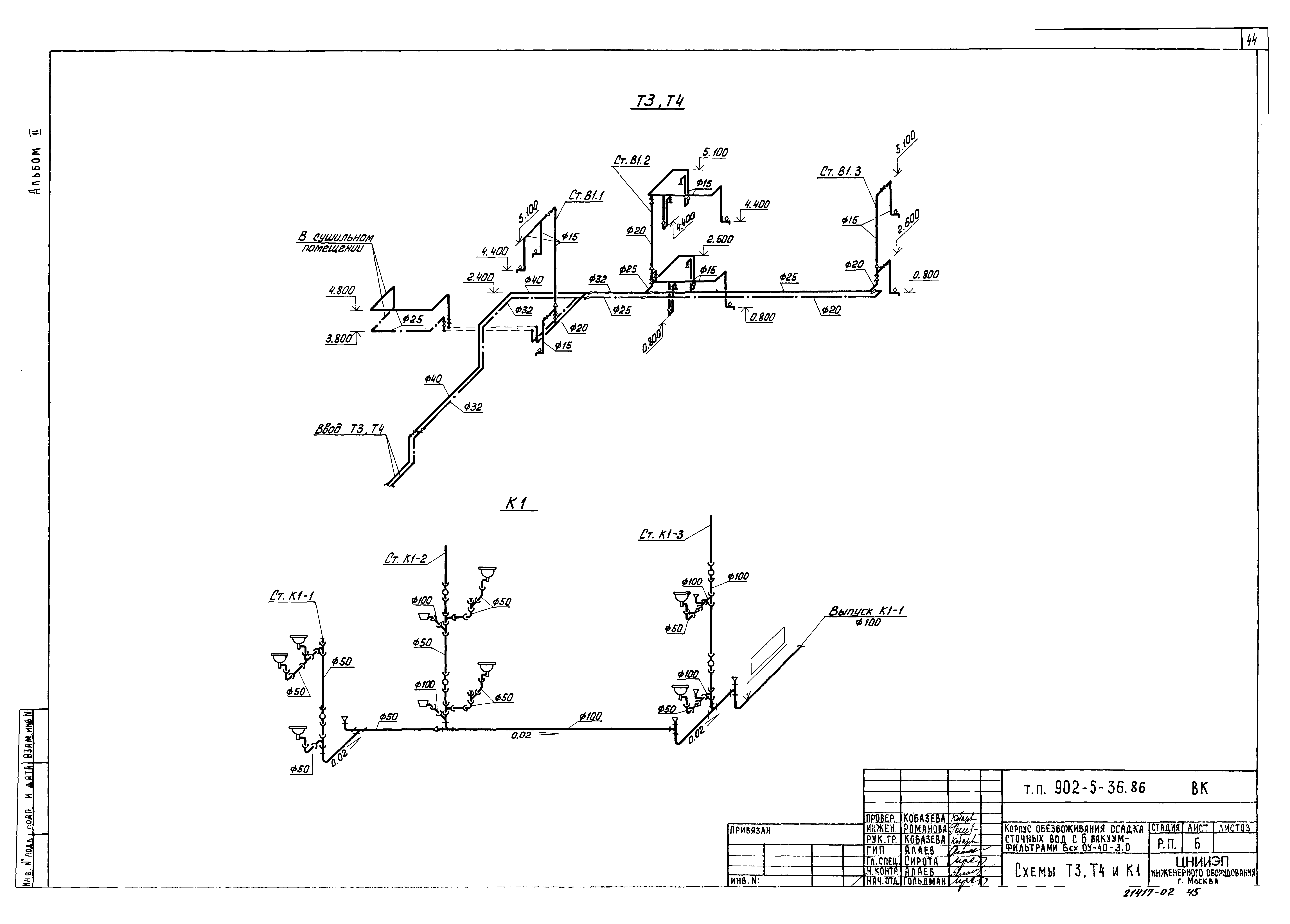
ТП 902-5-36.86 ВК-6 Схемы Т3;Т4 и К1
ТП 902-5-36.86 ВК-7 Схема К2
Разработан: ЦНИИЭП иженерного оборудования
Утверждён:14.03.1986 Госгражданстрой (Gosgrazhdanstroy 88)
Расположен в:Техническая документация Строительство Справочные документы Типовые строительные конструкции, изделия и узлы Общероссийский строительный каталог Промышленные предприятия, здания и сооружения Здания и сооружения санитарно-технические Канализация Сооружения для очистки производственных сточных вод Сооружения для обработки осадка
Типовой проект 902-5-36.86Типовой проект 902-5-36.86Типовой проект 902-5-36.86Типовой проект 902-5-36.86Типовой проект 902-5-36.86Типовой проект 902-5-36.86Типовой проект 902-5-36.86Типовой проект 902-5-36.86Типовой проект 902-5-36.86Типовой проект 902-5-36.86Типовой проект 902-5-36.86Типовой проект 902-5-36.86Типовой проект 902-5-36.86Типовой проект 902-5-36.86Типовой проект 902-5-36.86Типовой проект 902-5-36.86Типовой проект 902-5-36.86Типовой проект 902-5-36.86Типовой проект 902-5-36.86Типовой проект 902-5-36.86Типовой проект 902-5-36.86Типовой проект 902-5-36.86Типовой проект 902-5-36.86Типовой проект 902-5-36.86Типовой проект 902-5-36.86Типовой проект 902-5-36.86Типовой проект 902-5-36.86Типовой проект 902-5-36.86Типовой проект 902-5-36.86Типовой проект 902-5-36.86Типовой проект 902-5-36.86Типовой проект 902-5-36.86Типовой проект 902-5-36.86Типовой проект 902-5-36.86Типовой проект 902-5-36.86Типовой проект 902-5-36.86Типовой проект 902-5-36.86Типовой проект 902-5-36.86Типовой проект 902-5-36.86Типовой проект 902-5-36.86Типовой проект 902-5-36.86Типовой проект 902-5-36.86Типовой проект 902-5-36.86Типовой проект 902-5-36.86Типовой проект 902-5-36.86Типовой проект 902-5-36.86Типовой проект 902-5-36.86

© 2013 Ёшкин Кот :-) Карта сайта