Информационная система
«Ёшкин Кот»

Скачать базу одним архивом
Скачать обновления
История создания базы
Карта сайта

Скачать Типовой проект 903-1-244.87 Альбом 6. Генеральный план. Архитектурные решения. Конструкции железобетонные

Дата актуализации: 10.08.2017

Типовой проект 903-1-244.87

Альбом 6. Генеральный план. Архитектурные решения. Конструкции железобетонные

Обозначение: Типовой проект 903-1-244.87
Обозначение англ: 903-1-244.87
Статус:не определен законодательством
Название рус.:Альбом 6. Генеральный план. Архитектурные решения. Конструкции железобетонные
Дата добавления в базу:01.09.2013
Дата актуализации:05.05.2017
Дата введения:17.04.1987
Оглавление:ТП 903-1-244.87 Содержание альбома
ТП 903-1-244.87 ГП Генеральный план марки ГП
ТП 903-1-244.87 ГП-1 Схема генплана М1:500
ТП 903-1-244.87 АР Архитектурные решения марки АР
ТП 903-1-244.87 АР-1 Общие данные (начало)
ТП 903-1-244.87 АР-2 Общие данные (окончание)
ТП 903-1-244.87 АР-3 Спецификации перемычек, гипсокартонных перегородок, элементов заполнения проемов. Ведомость отделки помещений
ТП 903-1-244.87 АР-4 План на отм. 0.000. Разрезы 1-1;2-2
ТП 903-1-244.87 АР-5 План на отм. 3.600. Разрезы 3-3;4-4. Фрагмент 1
ТП 903-1-244.87 АР-6 Фасады 1-12;12-1;Г-А;А-Г. Схемы заполнения оконных проемов
ТП 903-1-244.87 АР-7 Планы полов на отм 0.000;3.600. План кровли. Экспликация полов. Схема расположения элементов сборной перегородки
ТП 903-1-244.87 АР-8 Схема устройства утолщенной подготовки пола и расположения изделий в полу
ТП 903-1-244.87 АР-9 Сечения 1-1÷13-13. Узлы 1;2
ТП 903-1-244.87 АР-10 Схемы расположения стеновых панелей-карт
ТП 903-1-244.87 АР-11 Схемы расположения стеновых панелей-карт
ТП 903-1-244.87 АР-12 Сечения 1-1÷5-5. Узлы 1-4 к листу 10,11
ТП 903-1-244.87 АР-13 Панели-карты К1-К6
ТП 903-1-244.87 АР-14 Панели-карты К7-К10
ТП 903-1-244.87 АР-15 Панели-карты К11-К16
ТП 903-1-244.87 АР-16 Панели-карты К17-К19
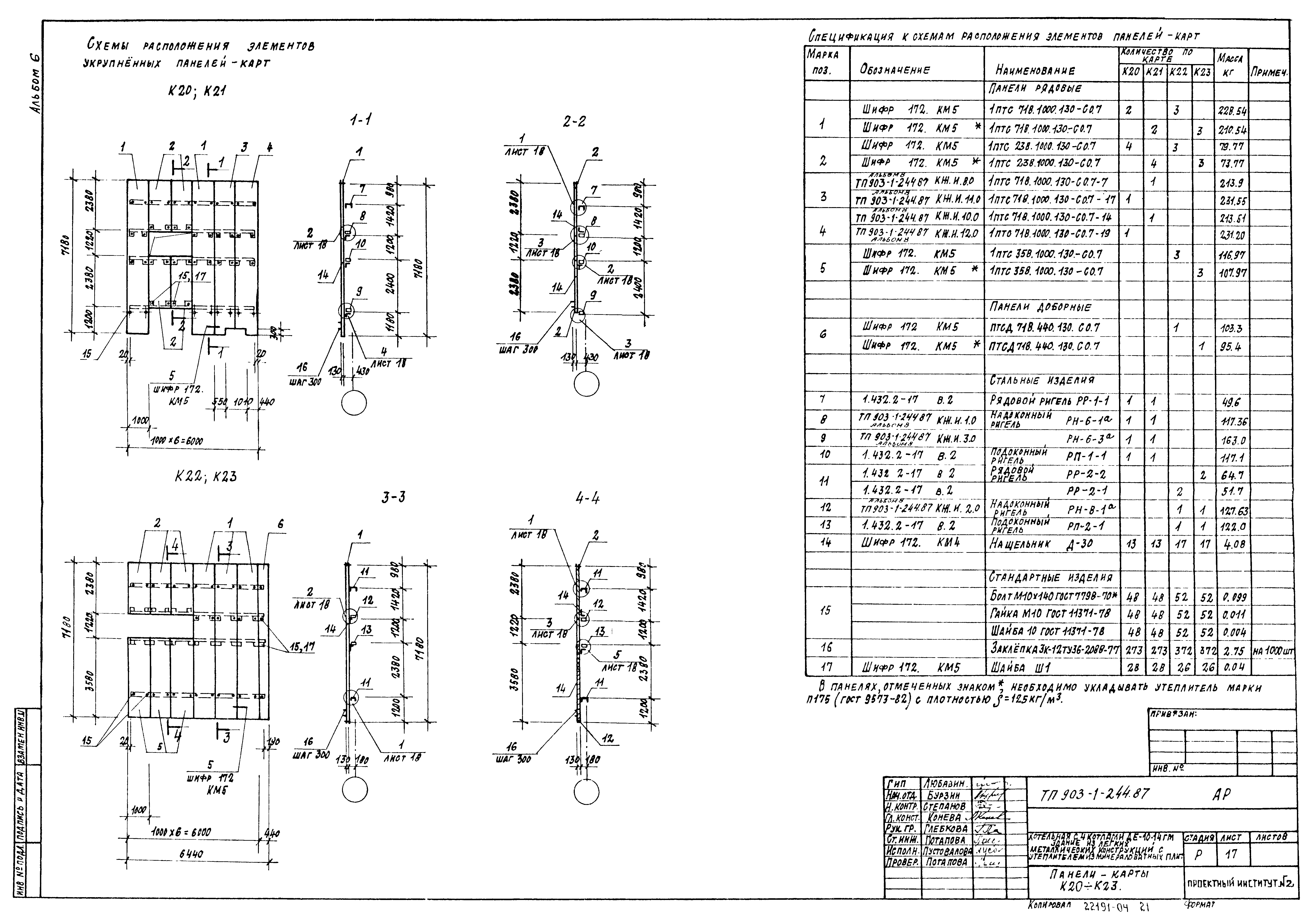
ТП 903-1-244.87 АР-17 Панели-карты К20-К23
ТП 903-1-244.87 АР-18 Панели-карты К24,К25. Узлы 1-5 к листам 13-19
ТП 903-1-244.87 АР-19 Панели-карты К26-К36
ТП 903-1-244.87 АР-20 Сводная спецификация изделий и материалов стен
ТП 903-1-244.87 АР-21 Сводная спецификация изделий и материалов стен
ТП 903-1-244.87 АР-22 План с отверстиями в перегородках на отм. 0.000. Фрагмент 2. Узел 3
ТП 903-1-244.87 АР-23 Узлы 4-11. Жалюзийная решетка ВЖ-1
ТП 903-1-244.87 АР-24 Узлы 12-20. Жалюзийная решетка ВЖ-2
ТП 903-1-244.87 АР-25 Узлы 21-29
ТП 903-1-244.87 АР-26 Спецификации фасонных и крепежных элементов окон. Спецификация элементов окон
ТП 903-1-244.87 АР-27 Спецификация элементов к узлам, замаркированным на листах марки АР
ТП 903-1-244.87 АР-28 Спецификация к узлам, элементов тамбура, сборной перегородки
ТП 903-1-244.87 АР-29 Бункер мокрого хранения соли. План на отм. 0.000. Разрез 1-1. Фасады. План кровли. Схема заполнения оконного проема ОК-7
ТП 903-1-244.87 АР-30 Бункер мокрого хранения соли. Узлы 30-32. Крышка бункера
ТП 903-1-244.87 КЖ Конструкции железобетонные марки КЖ
ТП 903-1-244.87 КЖ-1 Общие данные
ТП 903-1-244.87 КЖ-2 Схема расположения элементов фундаментов
ТП 903-1-244.87 КЖ-3 Спецификация к схеме расположения элементов фундаментов
ТП 903-1-244.87 КЖ-4 Узлы 1-4
ТП 903-1-244.87 КЖ-5 Фрагменты 1,2
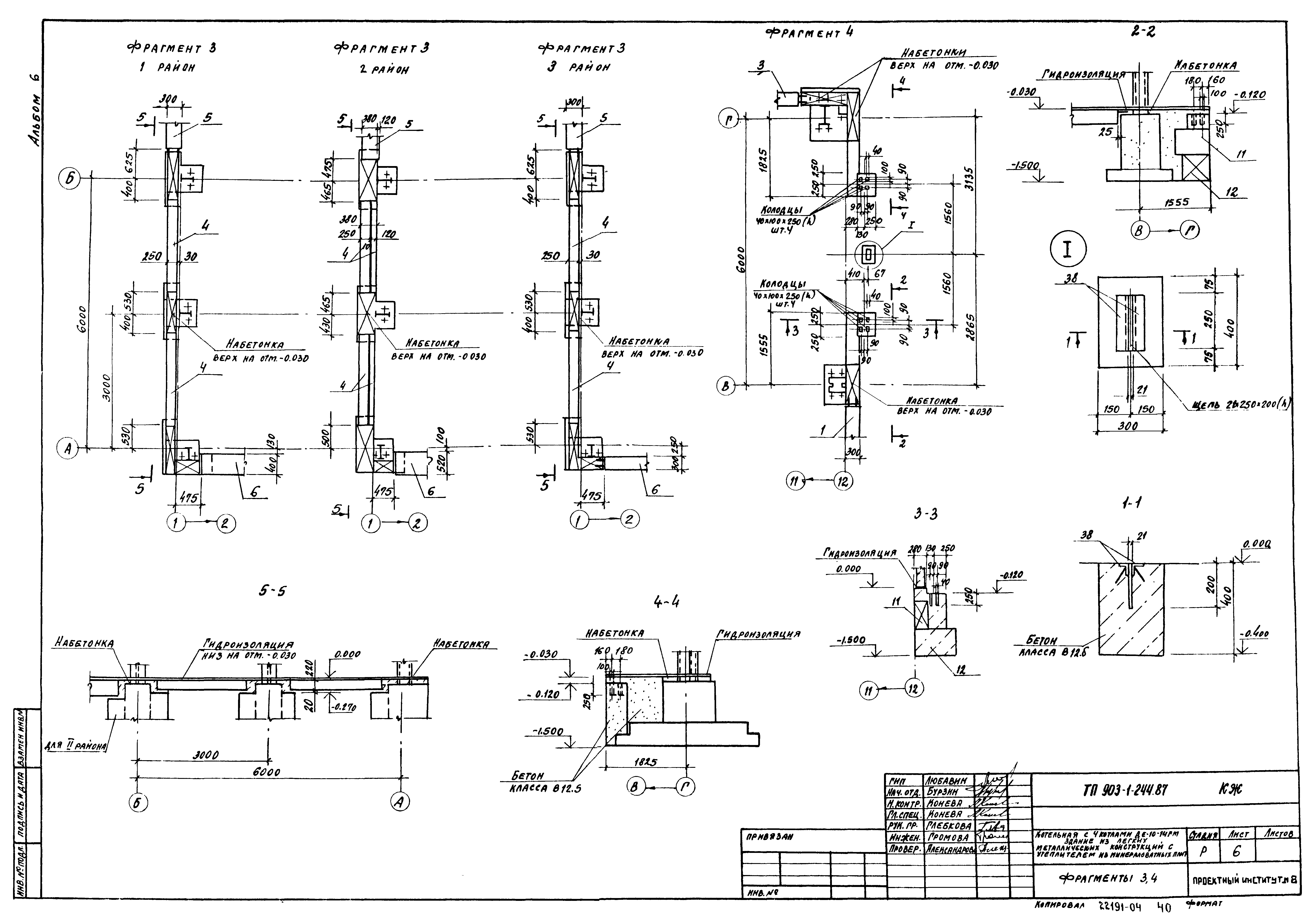
ТП 903-1-244.87 КЖ-6 Фрагменты 3,4
ТП 903-1-244.87 КЖ-7 Фундаменты ФМ1,ФМ2
ТП 903-1-244.87 КЖ-8 Фундаменты ФМ3,ФМ3а;ФМ4
ТП 903-1-244.87 КЖ-9 Фундаменты ФМ5,ФМ6
ТП 903-1-244.87 КЖ-10 Фундаменты ФМ7,ФМ7а;ФМ7б;ФМ8;ФМ9
ТП 903-1-244.87 КЖ-11 Фундаменты ФМ10-ФМ14
ТП 903-1-244.87 КЖ-12 Фундаменты ФМ10-ФМ14
ТП 903-1-244.87 КЖ-13 Схема расположения фундаментов под оборудование, каналов и приямков
ТП 903-1-244.87 КЖ-14 Фрагмент 1
ТП 903-1-244.87 КЖ-15 Фрагмент 1. Сечения 1-1÷8-8
ТП 903-1-244.87 КЖ-16 Фрагмент 1. Схема расположения щитов. Сечения 9-9,10-10. Узел 1. Балки БМ1
ТП 903-1-244.87 КЖ-17 Фрагмент 2. Приямок ПР1
ТП 903-1-244.87 КЖ-18 Фрагмент 3
ТП 903-1-244.87 КЖ-19 Фрагмент 3. Сечения 1-1÷5-5. Фундаменты под оборудование ФОМ1,ФОМ1а,ФОМ2
ТП 903-1-244.87 КЖ-20 Фундаменты под оборудование ФОМ3-ФОМ6
ТП 903-1-244.87 КЖ-21 Фрагмент 4. Сечения 1-1÷4-4
ТП 903-1-244.87 КЖ-22 Фрагмент 4. Сечения 5-5÷12-12
ТП 903-1-244.87 КЖ-23 Фундаменты под оборудование ФОМ7-ФОм9. Неподвижная опора НО1
ТП 903-1-244.87 КЖ-24 Схема расположения газоходов. Сечение 1-1
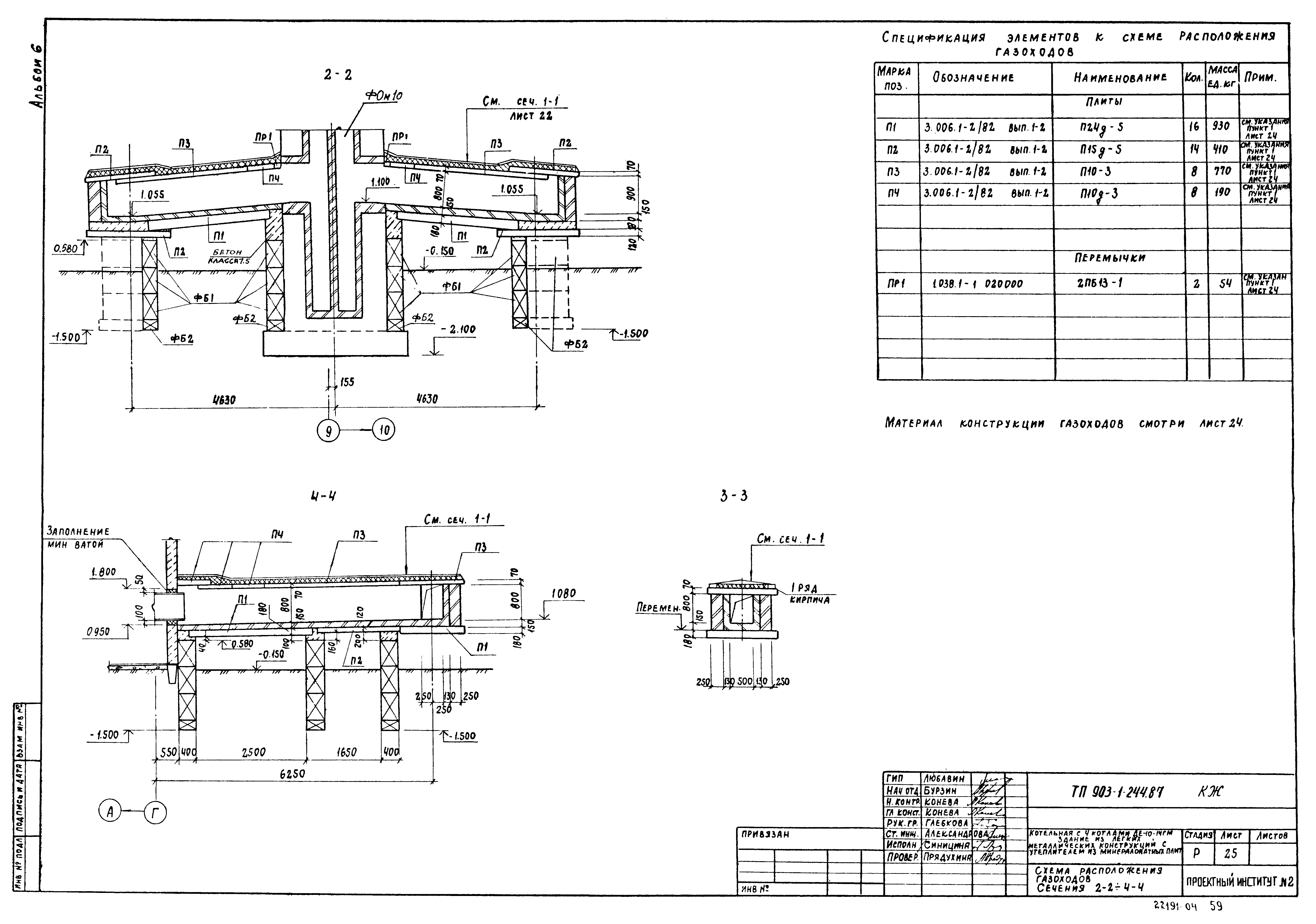
ТП 903-1-244.87 КЖ-25 Схема расположения газоходов. Сечения 2-2÷4-4
ТП 903-1-244.87 КЖ-26 Фундамент под дымовую трубу ФОМ10
ТП 903-1-244.87 КЖ-27 Продувочный колодец
ТП 903-1-244.87 КЖ-28 Монолитное перекрытие на отм. 3.600. ПМ1,ПМ2
ТП 903-1-244.87 КЖ-29 Монолитное перекрытие на отм. 3.600. Сечения 1-1÷6-6
ТП 903-1-244.87 КЖ-30 Схема расположения элементов лестниц в осях 1-2. Узлы 1-3
ТП 903-1-244.87 КЖ-31 Схема расположения стеновых панелей. Спецификация
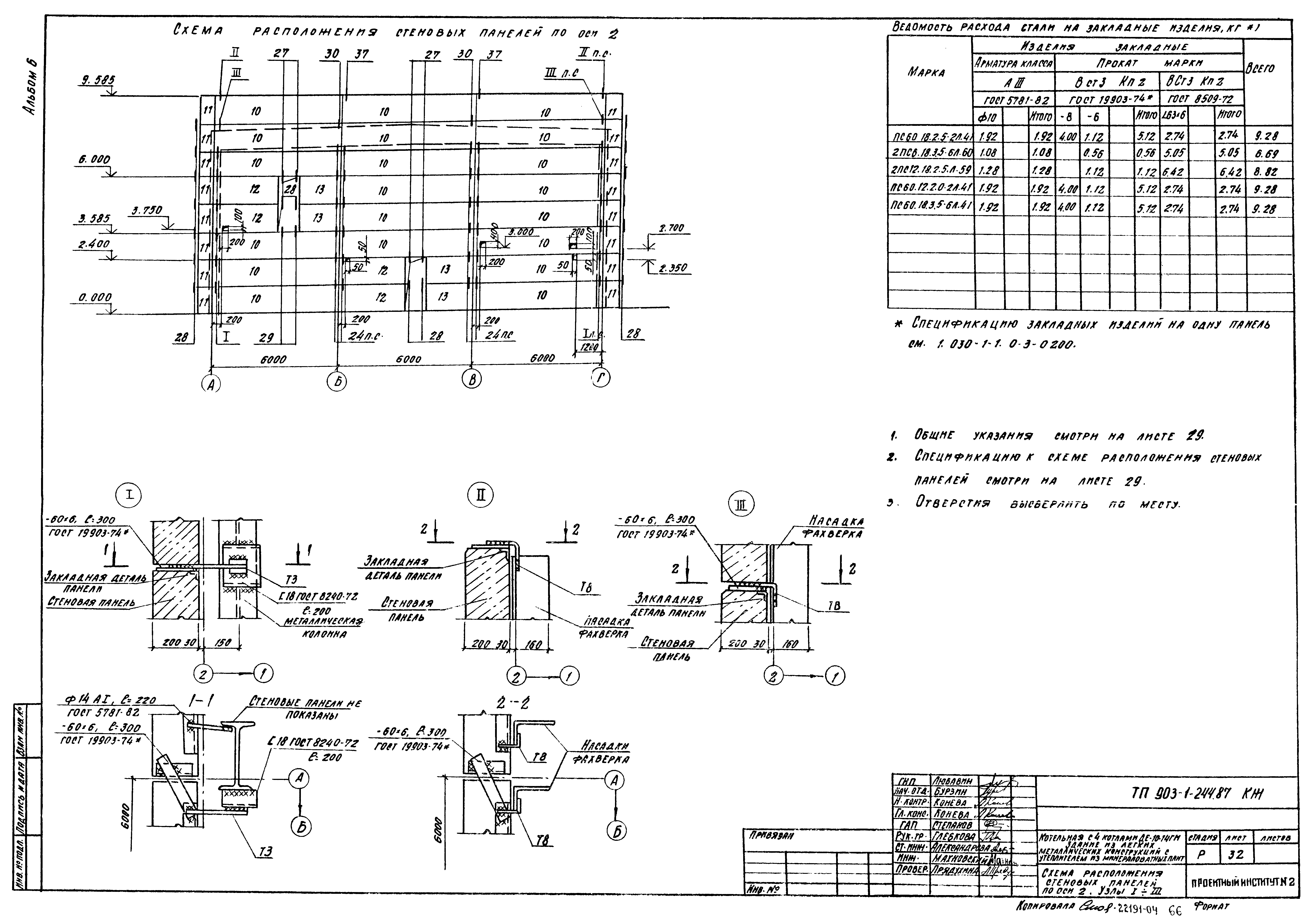
ТП 903-1-244.87 КЖ-32 Схема расположения стеновых панелей по оси 2. Узлы 1-3
ТП 903-1-244.87 КЖ-33 Схема заземляющего контура здания-котельной. Узлы 1-8
ТП 903-1-244.87 КЖ-34 Бункер мокрого хранения соли. Схемы расположения стеновых блоков и плит покрытия
ТП 903-1-244.87 КЖ-35 Бункер мокрого хранения соли. Плита монолитная ПМ3. Пояс железобетонный ПЖ1
Разработан: Проектный институт №2
Утверждён:17.04.1987 Госстрой СССР (Государственный комитет Совета Министров СССР по делам строительства) (USSR Gosstroy А4-43)
Расположен в:Техническая документация Строительство Справочные документы Типовые строительные конструкции, изделия и узлы Общероссийский строительный каталог Промышленные предприятия, здания и сооружения Здания и сооружения санитарно-технические Теплоснабжение Котельные установки Закрытые системы теплоснабжения Топливо - газ, резерв - мазут
Типовой проект 903-1-244.87Типовой проект 903-1-244.87Типовой проект 903-1-244.87Типовой проект 903-1-244.87Типовой проект 903-1-244.87Типовой проект 903-1-244.87Типовой проект 903-1-244.87Типовой проект 903-1-244.87Типовой проект 903-1-244.87Типовой проект 903-1-244.87Типовой проект 903-1-244.87Типовой проект 903-1-244.87Типовой проект 903-1-244.87Типовой проект 903-1-244.87Типовой проект 903-1-244.87Типовой проект 903-1-244.87Типовой проект 903-1-244.87Типовой проект 903-1-244.87Типовой проект 903-1-244.87Типовой проект 903-1-244.87Типовой проект 903-1-244.87Типовой проект 903-1-244.87Типовой проект 903-1-244.87Типовой проект 903-1-244.87Типовой проект 903-1-244.87Типовой проект 903-1-244.87Типовой проект 903-1-244.87Типовой проект 903-1-244.87Типовой проект 903-1-244.87Типовой проект 903-1-244.87Типовой проект 903-1-244.87Типовой проект 903-1-244.87Типовой проект 903-1-244.87Типовой проект 903-1-244.87Типовой проект 903-1-244.87Типовой проект 903-1-244.87Типовой проект 903-1-244.87Типовой проект 903-1-244.87Типовой проект 903-1-244.87Типовой проект 903-1-244.87Типовой проект 903-1-244.87Типовой проект 903-1-244.87Типовой проект 903-1-244.87Типовой проект 903-1-244.87Типовой проект 903-1-244.87Типовой проект 903-1-244.87Типовой проект 903-1-244.87Типовой проект 903-1-244.87Типовой проект 903-1-244.87Типовой проект 903-1-244.87Типовой проект 903-1-244.87Типовой проект 903-1-244.87Типовой проект 903-1-244.87Типовой проект 903-1-244.87Типовой проект 903-1-244.87Типовой проект 903-1-244.87Типовой проект 903-1-244.87Типовой проект 903-1-244.87Типовой проект 903-1-244.87Типовой проект 903-1-244.87Типовой проект 903-1-244.87Типовой проект 903-1-244.87Типовой проект 903-1-244.87Типовой проект 903-1-244.87Типовой проект 903-1-244.87Типовой проект 903-1-244.87Типовой проект 903-1-244.87Типовой проект 903-1-244.87Типовой проект 903-1-244.87Типовой проект 903-1-244.87

© 2013 Ёшкин Кот :-) Карта сайта