Информационная система
«Ёшкин Кот»

Скачать базу одним архивом
Скачать обновления
История создания базы
Карта сайта

Скачать Типовой проект 903-1-244.87 Альбом 2. Тепломеханические решения

Дата актуализации: 10.08.2017

Типовой проект 903-1-244.87

Альбом 2. Тепломеханические решения

Обозначение: Типовой проект 903-1-244.87
Обозначение англ: 903-1-244.87
Статус:не определен законодательством
Название рус.:Альбом 2. Тепломеханические решения
Дата добавления в базу:01.09.2013
Дата актуализации:05.05.2017
Дата введения:17.04.1987
Оглавление:ТП 903-1-244.87 Содержание альбома
ТП 903-1-244.87 ТМ Чертежи марки ТМ
ТП 903-1-244.87 ТМ-1 Общие данные (начало)
ТП 903-1-244.87 ТМ-2 Общие данные (продолжение)
ТП 903-1-244.87 ТМ-3 Общие данные (продолжение)
ТП 903-1-244.87 ТМ-4 Общие данные (продолжение)
ТП 903-1-244.87 ТМ-5 Общие данные (продолжение)
ТП 903-1-244.87 ТМ-6 Общие данные (продолжение)
ТП 903-1-244.87 ТМ-7 Общие данные (окончание)
ТП 903-1-244.87 ТМ-8 Компоновка. План-вид сверху
ТП 903-1-244.87 ТМ-9 Компоновка. Разрезы 1-1;2-2;3-3
ТП 903-1-244.87 ТМ-10 Газоходы котлоагрегата. План. Разрезы 1-1;2-2;3-3. Узел
ТП 903-1-244.87 ТМ-11 Воздуховоды котлоагрегата. План. Разрезы 1-1;2-2
ТП 903-1-244.87 ТМ-12 Блок-аккумулятор V=200м³
ТП 903-1-244.87 ТМ-13 Блок холодильника проб К10
ТП 903-1-244.87 ТМ-14 Блок горячего водоснабжения К20. Схема блока. Спецификация
ТП 903-1-244.87 ТМ-15 Блок горячего водоснабжения К20. План-вид сверху. План на отм. 0.000. Разрезы 1-1;2-2;3-3;4-4;5-5;6-6
ТП 903-1-244.87 ТМ-16 Блок горячего водоснабжения К20. Металлоконструкция
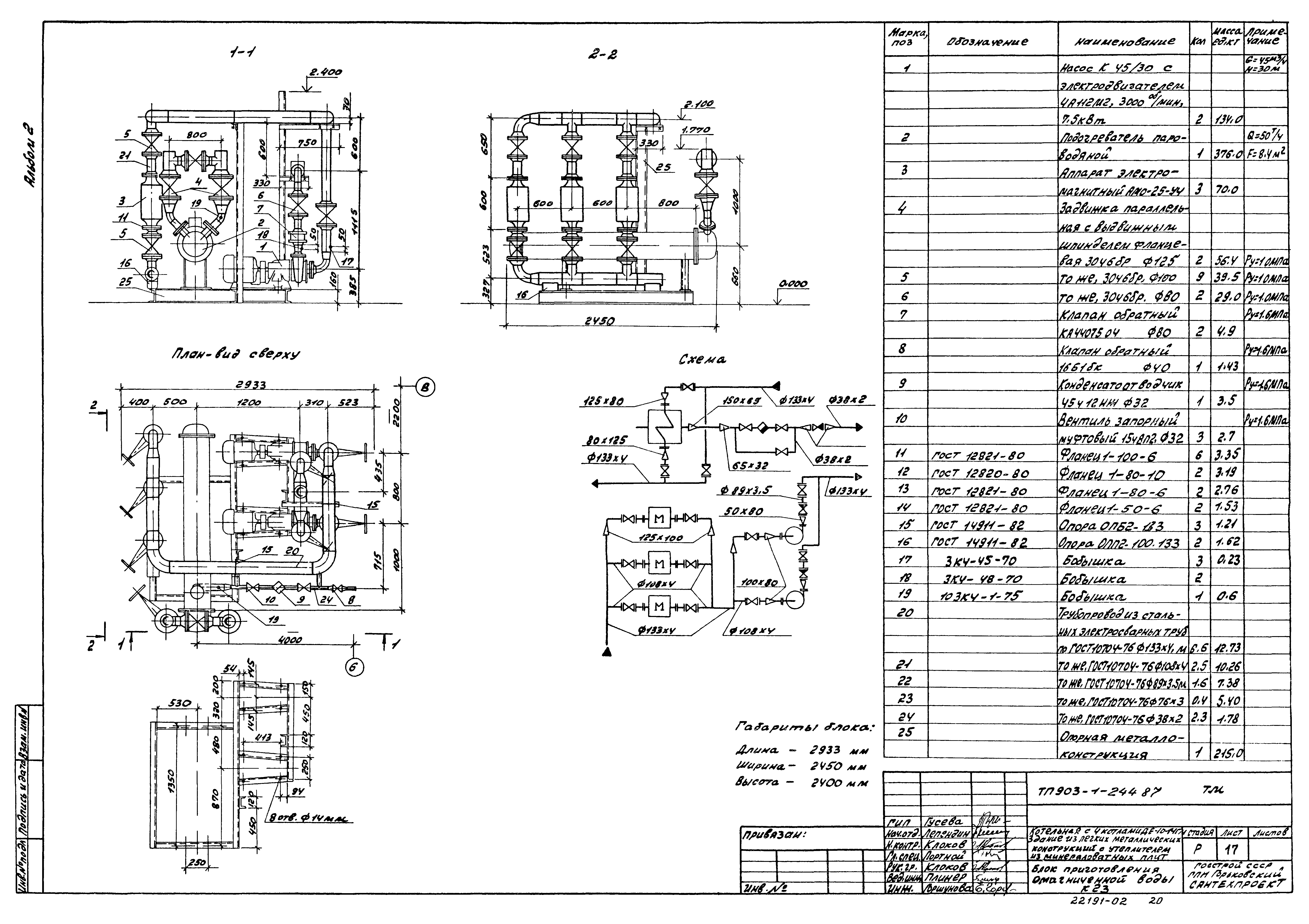
ТП 903-1-244.87 ТМ-17 Блок приготовления омагниченной воды К23
ТП 903-1-244.87 ТМ-18 Типы креплений оборудования
ТП 903-1-244.87 ТМ-19 Схема трубопроводов
ТП 903-1-244.87 ТМ-20 Трубопроводы пара, питательной, сетевой воды. План-вид сверху. Разрезы 1-1;2-2
ТП 903-1-244.87 ТМ-21 Трубопроводы пара питательной, сетевой воды. Разрезы 3-3;4-4;5-5. Спецификация (начало)
ТП 903-1-244.87 ТМ-22 Трубопроводы пара питательной, сетевой воды. Разрезы 3-3;4-4;5-5. Спецификация (продолжение)
ТП 903-1-244.87 ТМ-23 Трубопроводы пара питательной, сетевой воды. Разрезы 3-3;4-4;5-5. Спецификация (окончание)
ТП 903-1-244.87 ТМ-24 Трубопроводы горячего водоснабжения, конденсата, омагниченной воды, сливные. План-вид сверху
ТП 903-1-244.87 ТМ-25 Трубопроводы горячего водоснабжения, конденсата, омагниченной воды, сливные. Разрезы 1-1;2-2;3-3;4-4;5-5;6-6;7-7
ТП 903-1-244.87 ТМ-26 Трубопроводы горячего водоснабжения, конденсата, омагниченной воды, сливные. План наружных трубопроводов. Разрезы 1-1;2-2;3-3. Сечения а-а;б-б
ТП 903-1-244.87 ТМ-27 Трубопроводы горячего водоснабжения, конденсата, омагниченной воды, сливные. Спецификация (начало)
ТП 903-1-244.87 ТМ-28 Трубопроводы горячего водоснабжения, конденсата, омагниченной воды, сливные. Спецификация (продолжение)
ТП 903-1-244.87 ТМ-29 Трубопроводы горячего водоснабжения, конденсата, омагниченной воды, сливные. Спецификация (продолжение)
ТП 903-1-244.87 ТМ-30 Трубопроводы горячего водоснабжения, конденсата, омагниченной воды, сливные. Спецификация (окончание)
ТП 903-1-244.87 ТМ-31 Схема трубопроводов котлоагрегата
ТП 903-1-244.87 ТМ-32 Трубопроводы котлоагрегата. План. Разрезы 1-1;2-2;3-3;4-4
ТП 903-1-244.87 ТМ-33 Трубопроводы котлоагрегата. Разрезы 5-5;6-6
ТП 903-1-244.87 ТМ-34 Спецификация трубопроводов котлоагрегата (начало)
ТП 903-1-244.87 ТМ-35 Спецификация трубопроводов котлоагрегата (окончание)
ТП 903-1-244.87 ТМ-36 Площадка для окон К35
ТП 903-1-244.87 ТМН Чертежи марки ТМН
ТП 903-1-244.87 ТМН1 Содержание
ТП 903-1-244.87 МСН1 Изоляция паромазутопроводов
ТП 903-1-244.87 ТМН2 Изоляция дымососа ВДН-10
ТП 903-1-244.87 ТМН3 Изоляция цилиндрической части горизонтального деаэраторного бака δ=100мм
ТП 903-1-244.87 ТМН4 Изоляция цилиндрической части бака-аккумулятора δ=100мм
ТП 903-1-244.87 ТМН5 Изоляция днищ цилиндрических аппаратов δ=100мм
ТП 903-1-244.87 ТМН6 Изоляция теплоутилизатора и газоходов прямоугольного сечения δ=100мм
Разработан: Горьковский Сантехпроект
Утверждён:17.04.1987 Госстрой СССР (Государственный комитет Совета Министров СССР по делам строительства) (USSR Gosstroy А4-43)
Расположен в:Техническая документация Строительство Справочные документы Типовые строительные конструкции, изделия и узлы Общероссийский строительный каталог Промышленные предприятия, здания и сооружения Здания и сооружения санитарно-технические Теплоснабжение Котельные установки Закрытые системы теплоснабжения Топливо - газ, резерв - мазут
Типовой проект 903-1-244.87Типовой проект 903-1-244.87Типовой проект 903-1-244.87Типовой проект 903-1-244.87Типовой проект 903-1-244.87Типовой проект 903-1-244.87Типовой проект 903-1-244.87Типовой проект 903-1-244.87Типовой проект 903-1-244.87Типовой проект 903-1-244.87Типовой проект 903-1-244.87Типовой проект 903-1-244.87Типовой проект 903-1-244.87Типовой проект 903-1-244.87Типовой проект 903-1-244.87Типовой проект 903-1-244.87Типовой проект 903-1-244.87Типовой проект 903-1-244.87Типовой проект 903-1-244.87Типовой проект 903-1-244.87Типовой проект 903-1-244.87Типовой проект 903-1-244.87Типовой проект 903-1-244.87Типовой проект 903-1-244.87Типовой проект 903-1-244.87Типовой проект 903-1-244.87Типовой проект 903-1-244.87Типовой проект 903-1-244.87Типовой проект 903-1-244.87Типовой проект 903-1-244.87Типовой проект 903-1-244.87Типовой проект 903-1-244.87Типовой проект 903-1-244.87Типовой проект 903-1-244.87Типовой проект 903-1-244.87Типовой проект 903-1-244.87Типовой проект 903-1-244.87Типовой проект 903-1-244.87Типовой проект 903-1-244.87Типовой проект 903-1-244.87Типовой проект 903-1-244.87Типовой проект 903-1-244.87

© 2013 Ёшкин Кот :-) Карта сайта