| ||||||||||||||||||||||||||
Скачать Шифр М24.40/2003 Скатные кровли из черепицы Braas с теплоизоляцией мансард из изделий Ursa. Материалы для проектирования и рабочие чертежи узловДата актуализации: 10.08.2017
|
| Обозначение: | Шифр М24.40/2003 |
| Обозначение англ: | М24.40/2003 |
| Статус: | не определен законодательством |
| Название рус.: | Скатные кровли из черепицы "Braas" с теплоизоляцией мансард из изделий "Ursa". Материалы для проектирования и рабочие чертежи узлов |
| Дата добавления в базу: | 01.09.2013 |
| Дата актуализации: | 05.05.2017 |
| Дата введения: | 06.04.2004 |
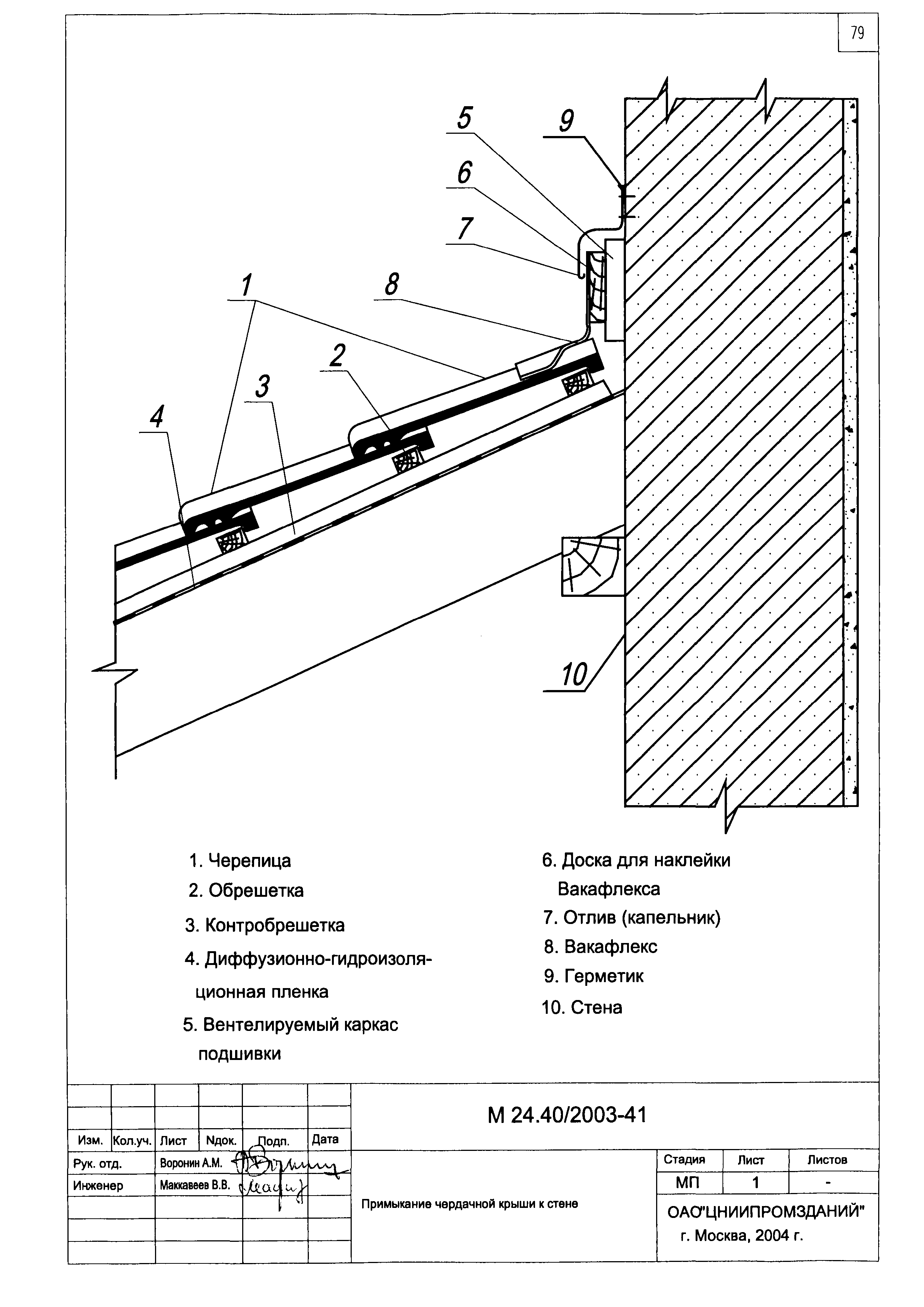
| Оглавление: | М24.40/2003 Сертификат соответствия М24.40/2003-П Предисловие М24.40/2003-ПЗ Пояснительная записка М24.40/2003-ПЗ 1. Общие положения М24.40/2003-ПЗ 2. Применяемые материалы М24.40/2003-ПЗ 2.1. Кровельные изделия М24.40/2003-ПЗ а) Черепица цементно-песчаная М24.40/2003-ПЗ б) Вентиляционные изделия М24.40/2003-ПЗ г) Комплектующие изделия из ПВХ и других материалов М24.40/2003-ПЗ 2.2. Теплоизоляция М24.40/2003-ПЗ 2.3. Пароизоляция М24.40/2003-ПЗ 2.4 Защитные и диффузионно-гидроизоляционные пленки М24.40/2003-ПЗ 2.5 Соединительные элементы М24.40/2003-ПЗ 2.6 Уплотнительная лента М24.40/2003-ПЗ 3. Требования к элементам крыши М24.40/2003-ПЗ 3.1. Несущие элементы М24.40/2003-ПЗ а) Поперечное сечение элементов М24.40/2003-ПЗ б) Уклоны кровли М24.40/2003-ПЗ в) Расчет шага обрешетки и длин кровли из цементно-песчаной черепицы М24.40/2003-ПЗ г) Расчет шага обрешетки (длины ската) и длины кровли из керамической черепицы М24.40/2003-ПЗ 3.2. Нормы тепло- и парозащиты. Толщина теплоизоляции М24.40/2003-ПЗ 3.3. Определение параметров вентиляции М24.40/2003-ПЗ а) Карнизный участок М24.40/2003-ПЗ б) Конек М24.40/2003-ПЗ в) Параметры вентиляции М24.40/2003-ПЗ 4. Конструктивные решения крыши М24.40/2003-ПЗ 5. Устройство крыши М24.40/2003-ПЗ 5.1. Узлы и детали М24.40/2003-ПЗ а) Карнизный свес М24.40/2003-ПЗ б) Фронтонный свес М24.40/2003-ПЗ в) Конек крыши М24.40/2003-ПЗ г) Хребет крыши М24.40/2003-ПЗ д) Ендова крыши М24.40/2003-ПЗ е) Примыкание крыши к выступающим над нею конструкциям М24.40/2003-ПЗ 5.2. Особенности устройства кровли на конической поверхности М24.40/2003-ПЗ 5.3. Система водостока М24.40/2003-1 Карниз мансардной крыши с ограждением и снегозадержанием М24.40/2003-2 Карниз мансардной крыши с двумя вентиляционными зазорами М24.40/2003-3 Карниз крыши с одним вентиляционным зазором М24.40/2003-4 Карниз крыши с одним вентиляционным зазором М24.40/2003-5 Карниз крыши с выносом и двумя вентиляционными зазорами М24.40/2003-6 Карниз крыши с выносом и одним вентиляционным зазором М24.40/2003-7 Карниз крыши с выносом, одним вентиляционным зазором и подшивкой свеса М24.40/2003-8 Карниз крыши с выносом и водоизоляционным ковром (крыша с уклоном 10... 16°) М24.40/2003-9 Карниз чердачной крыши М24.40/2003-10 Карниз чердачной крыши М24.40/2003-11 Фронтонный свес крыши без выноса и с лобовой доской М24.40/2003-12 Фронтонный свес крыши без выноса и с боковой цементно-песчаной черепицей М24.40/2003-13 Фронтонный свес крыши без выноса стропил с боковой облегченной черепицей М24.40/2003-14 Фронтонный свес крыши без выноса и с водоизоляционным ковром М24.40/2003-15 Фронтонный свес крыши с парапетом М24.40/2003-16 Фронтонный свес крыши с выносом и лобовой доской М24.40/2003-17 Фронтонный свес крыши с выносом и боковой цементно-песчаной черепицей М24.40/2003-18 Фронтонный свес крыши с выносом и боковой облегченной черепицей М24.40/2003-19 Фронтонный свес крыши с выносом и водоизоляционным ковром М24.40/2003-20 Конек чердачной крыши М24.40/2003-21 Конек чердачной крыши с диффузионно-гидроизоляционной пленкой М24.40/2003-22 Конек чердачной крыши с диффузионно-гидроизоляционной пленкой М24.40/2003-23 Конек чердачной крыши с диффузионно-гидроизоляционной пленкой М24.40/2003-24 Конек мансардной крыши с двумя вентиляционными зазорами М24.40/2003-25 Конек мансардной крыши с одним вентиляционным зазором М24.40/2003-26 Конек мансардной крыши с одним вентиляционным зазором М24.40/2003-27 Конек мансардной крыши с водоизоляционным ковром М24.40/2003-28 Конек чердачной крыши с вентиляционным элементом в диффузионно-гидроизоляционной пленке М24.40/2003-29 Конек мансардной крыши с вентиляционным элементом в диффузионно-гидроизоляционной пленке М24.40/2003-30 Хребет мансардной крыши М24.40/2003-31 Хребет мансардной крыши с водоизоляционным ковром М24.40/2003-32 Хребет мансардной крыши М24.40/2003-33 Хребет чердачной крыши М24.40/2003-34 Ендова черепичной кровли чердака М24.40/2003-35 Ендова мансардной крыши с диффузионно-гидроизоляционной пленкой М24.40/2003-36 Ендова мансардной крыши с ветрозащитной диффузионно-гидроизоляционной пленкой М24.40/2003-37 Ендова мансардной крыши с водоизоляционным ковром М24.40/2003-38 Примыкание крыши к печной трубе М24.40/2003-39 Примыкание крыши к трубе М24.40/2003-40 Примыкание крыши к стене (уклон кровли от стены) М24.40/2003-41 Примыкание чердачной крыши к стене М24.40/2003-42 Примыкание крыши к окну М24.40/2003-43 Примыкание крыши к стене (уклон кровли вдоль стены) М24.40/2003-44 Примыкание чердачной крыши к стене (уклон кровли вдоль стены) М24.40/2003-45 Примыкание скатной мансардной крыши к ее плоской части М24.40/2003-Р Расчет парозащиты крыши мансарды Приложение 1. Сертификаты соответствия Приложение 2. Сертификаты пожарной безопасности Приложение 3. Санитарно-эпидемиологические заключения |
| Разработан: | ЦНИИпромзданий |
| Утверждён: | 06.04.2004 ЦНИИ промзданий (TsNII promzdaniy ) |
| Расположен в: |



































































































