Информационная система
«Ёшкин Кот»

Скачать базу одним архивом
Скачать обновления
История создания базы
Карта сайта

Скачать Типовой проект 902-1-106.86 Альбом 5. Строительные решения. Подземная часть

Дата актуализации: 10.08.2017

Типовой проект 902-1-106.86

Альбом 5. Строительные решения. Подземная часть

Обозначение: Типовой проект 902-1-106.86
Обозначение англ: 902-1-106.86
Статус:не определен законодательством
Название рус.:Альбом 5. Строительные решения. Подземная часть
Дата добавления в базу:01.09.2013
Дата актуализации:05.05.2017
Дата введения:01.03.1987
Оглавление:ТП 902-1-105.86 Содержание альбома
ТП 902-1-105.86-КЖ Основной комплект марки КЖ
ТП 902-1-105.86-КЖ Общие данные
ТП 902-1-105.86-КЖ Планы на отм. ±0.000;-4.600;-8.600;-11.500
ТП 902-1-105.86-КЖ Разрезы 1-1;2-2;3-3
ТП 902-1-105.86-КЖ Схема расположения опорных блоков и форшахты
ТП 902-1-105.86-КЖ Схема расположения элементов подзнмной части
ТП 902-1-105.86-КЖ Схема расположения стеновых панелей
ТП 902-1-105.86-КЖ Схема расположения стеновых панелей. Узлы
ТП 902-1-105.86-КЖ Плита ПДм1. (Выпуски)
ТП 902-1-105.86-КЖ Плита ПДм1. План по Б-Б. Армирование. План расположения каркасов
ТП 902-1-105.86-КЖ Плита ПДм1. План по А-А. Армирование
ТП 902-1-105.86-КЖ Плита ПДм1. Фрагмент 1. Армирование. Разрез 3-3
ТП 902-1-105.86-КЖ Плита ПДм1. Схема расположения анкеров
ТП 902-1-105.86-КЖ Плита ПДм1. Узел установки детали МН. Зумпф
ТП 902-1-105.86-КЖ Разделительная стенка СТм1. Планы по А-А;Б-Б
ТП 902-1-105.86-КЖ Разделительная стенка СТм1. Разрезы 1-1÷4-4
ТП 902-1-105.86-КЖ Разделительная стенка СТм1. Армирование
ТП 902-1-105.86-КЖ Разделительная стенка СТм1. Разрезы 1-1÷4-4
ТП 902-1-105.86-КЖ Разделительная стенка СТм1. Ведомость расхода стали на элемент. Ведомость деталей. Спецификация
ТП 902-1-105.86-КЖ Обвязочное кольцо ОКм1. Опалубочно-арматурный чертеж
ТП 902-1-105.86-КЖ РКм2. Опалубочный чертеж
ТП 902-1-105.86-КЖ РКм2. Плита Пм1. Балка Бм1. Армирование
ТП 902-1-105.86-КЖ РКм3. Опалубочный чертеж
ТП 902-1-105.86-КЖ РКм3. Опалубочный чертеж. Разрезы 1-1÷5-5
ТП 902-1-105.86-КЖ РКм3. Плита Пм1. Армирование
ТП 902-1-105.86-КЖ РКм3. Балки Бм1-Бм6. Армирование
ТП 902-1-105.86-КЖ РКм3. Балка ОБм1. Армирование. Спецификация (начало)
ТП 902-1-105.86-КЖ РКм3. Ведомость расхода стали на элемент. Спецификация (окончание)
ТП 902-1-105.86-КЖ Схема расположения лотка
ТП 902-1-105.86-КЖ ЛТм1. Армирование
ТП 902-1-105.86-КЖ Лоток. Балки Бм1;Бм2. Армирование
ТП 902-1-105.86-КЖ РКм4. Опалубочный чертеж
ТП 902-1-105.86-КЖ РКм4. Опалубочный чертеж. Разрезы 1-1÷3-3
ТП 902-1-105.86-КЖ РКм4. Плита Пм1. Армирование
ТП 902-1-105.86-КЖ РКм4. Балки Бм1-Бм5. Армирование
ТП 902-1-105.86-КЖ РКм4. Балки Бм6-Бм13. Армирование
ТП 902-1-105.86-КЖ РКм4. Балка ОБм1. Спецификация (начало)
ТП 902-1-105.86-КЖ РКм4. Балка ОБм1. Спецификация (продолжение)
ТП 902-1-105.86-КЖ РКм4. Балка ОБм1. Спецификация (окончание)
ТП 902-1-105.86-КЖ Схема расположения колонн и фундаментов под оборудование
ТП 902-1-105.86-КЖ Колонны Км1-Км3. Армирование
ТП 902-1-105.86-КЖ Колонны Км4;4а;4б;Км5;Км6. Армирование
ТП 902-1-105.86-КЖ Колонны Км7-Км10. Армирование
ТП 902-1-105.86-КЖ Колонна Км11. Армирование
ТП 902-1-105.86-КЖ Схемы расположения опор под трубопроводы на отм. 8.600 и 11.500
ТП 902-1-105.86-КМ Основной комплект марки КМ
ТП 902-1-105.86-КМ Общие данные
ТП 902-1-105.86-КМ Техническая спецификация металла
ТП 902-1-105.86-КМ Схемы расположения металлических площадок, лестниц, ограждений и стоек. Разрезы 1-1;2-2
ТП 902-1-105.86-КМ Разрезы 3-3÷8-8,17-17,18-18. Узел 1
ТП 902-1-105.86-КМ Разрезы 9-9÷16-16
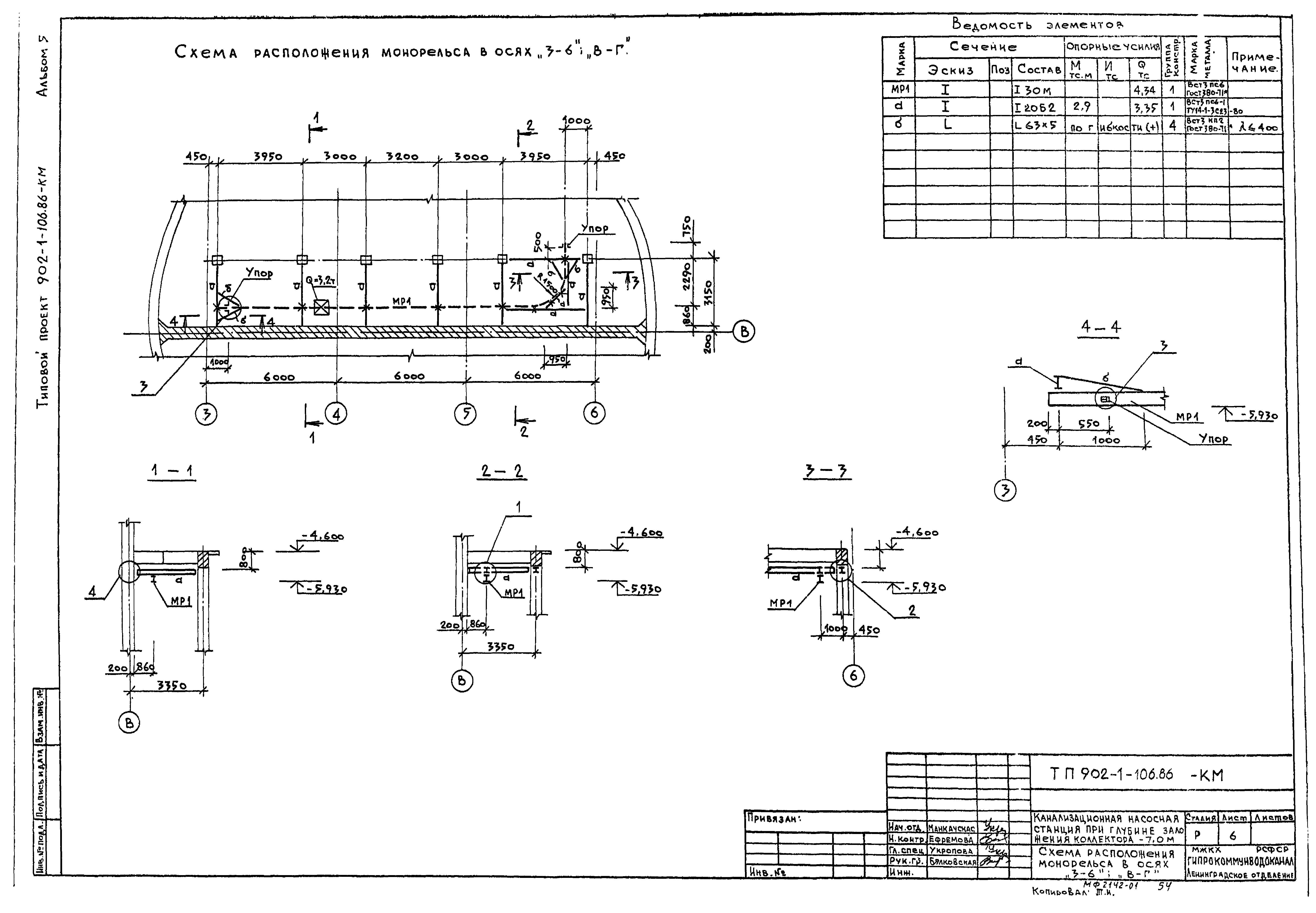
ТП 902-1-105.86-КМ Схема расположения монорельса в осях "3-6";"В-Г"
ТП 902-1-105.86-КМ Монорельс, узлы
Разработан: Ленинградское отделение Гипрокоммунводоканала
Утверждён:27.10.1986 МЖКХ РСФСР (462)
Расположен в:Техническая документация Строительство Справочные документы Типовые строительные конструкции, изделия и узлы Общероссийский строительный каталог Промышленные предприятия, здания и сооружения Здания и сооружения санитарно-технические Канализация Станции насосные Станции насосные для перекачки бытовых сточных вод
Типовой проект 902-1-106.86Типовой проект 902-1-106.86Типовой проект 902-1-106.86Типовой проект 902-1-106.86Типовой проект 902-1-106.86Типовой проект 902-1-106.86Типовой проект 902-1-106.86Типовой проект 902-1-106.86Типовой проект 902-1-106.86Типовой проект 902-1-106.86Типовой проект 902-1-106.86Типовой проект 902-1-106.86Типовой проект 902-1-106.86Типовой проект 902-1-106.86Типовой проект 902-1-106.86Типовой проект 902-1-106.86Типовой проект 902-1-106.86Типовой проект 902-1-106.86Типовой проект 902-1-106.86Типовой проект 902-1-106.86Типовой проект 902-1-106.86Типовой проект 902-1-106.86Типовой проект 902-1-106.86Типовой проект 902-1-106.86Типовой проект 902-1-106.86Типовой проект 902-1-106.86Типовой проект 902-1-106.86Типовой проект 902-1-106.86Типовой проект 902-1-106.86Типовой проект 902-1-106.86Типовой проект 902-1-106.86Типовой проект 902-1-106.86Типовой проект 902-1-106.86Типовой проект 902-1-106.86Типовой проект 902-1-106.86Типовой проект 902-1-106.86Типовой проект 902-1-106.86Типовой проект 902-1-106.86Типовой проект 902-1-106.86Типовой проект 902-1-106.86Типовой проект 902-1-106.86Типовой проект 902-1-106.86Типовой проект 902-1-106.86Типовой проект 902-1-106.86Типовой проект 902-1-106.86Типовой проект 902-1-106.86Типовой проект 902-1-106.86Типовой проект 902-1-106.86Типовой проект 902-1-106.86Типовой проект 902-1-106.86Типовой проект 902-1-106.86Типовой проект 902-1-106.86Типовой проект 902-1-106.86Типовой проект 902-1-106.86Типовой проект 902-1-106.86Типовой проект 902-1-106.86

© 2013 Ёшкин Кот :-) Карта сайта