Информационная система
«Ёшкин Кот»

Скачать базу одним архивом
Скачать обновления
История создания базы
Карта сайта

Скачать Типовой проект 902-1-106.86 Альбом 3. Часть 1. Архитектурно-строительные решения. Надземная часть. Вариант - сборные железобетонные конструкции (из ТП 902-1-104.86)

Дата актуализации: 10.08.2017

Типовой проект 902-1-106.86

Альбом 3. Часть 1. Архитектурно-строительные решения. Надземная часть. Вариант - сборные железобетонные конструкции (из ТП 902-1-104.86)

Обозначение: Типовой проект 902-1-106.86
Обозначение англ: 902-1-106.86
Статус:не определен законодательством
Название рус.:Альбом 3. Часть 1. Архитектурно-строительные решения. Надземная часть. Вариант - сборные железобетонные конструкции (из ТП 902-1-104.86)
Дата добавления в базу:01.09.2013
Дата актуализации:05.05.2017
Дата введения:01.03.1987
Оглавление:ТП 902-1-104.86 Содержание альбома
ТП 902-1-104.86-АР Основной комплект марки АР
ТП 902-1-104.86-АР Общие данные (начало)
ТП 902-1-104.86-АР Общие данные (окончание)
ТП 902-1-104.86-АР План на отм. 0.000
ТП 902-1-104.86-АР Фрагменты плана 1-9. Узел 8
ТП 902-1-104.86-АР Разрезы 1-1;2-2. Узлы 1-5
ТП 902-1-104.86-АР Фасады 1-8;В-1;Д-А;А-Д
ТП 902-1-104.86-АР План полов на отм. 0.000. План отверстий на отм. 0.000. План кровли вентшахты 1.2. Узлы 6,7
ТП 902-1-104.86-АР Схема расположения сборных перегородок
ТП 902-1-104.86-КЖ Основной комплект марки КЖ
ТП 902-1-104.86-КЖ Общие данные
ТП 902-1-104.86-КЖ Схемы расположения ростверков и свай
ТП 902-1-104.86-КЖ Схемы расположения фундаментов и фундаментных балок
ТП 902-1-104.86-КЖ РСм1. Армирование
ТП 902-1-104.86-КЖ РСм2-РСм4. Армирование
ТП 902-1-104.86-КЖ РКм1. Опалубочный чертеж
ТП 902-1-104.86-КЖ РКм1. Балки 0Бм1-0Бм5. Армирование
ТП 902-1-104.86-КЖ РКм1. Плиты Пм1. Балки Бм1-Бм6. Армирование
ТП 902-1-104.86-КЖ РКм1. Ведомость деталей. Спецификация (начало)
ТП 902-1-104.86-КЖ РКм1. Спецификация (окончание). Ведомость расхода стали на элемент
ТП 902-1-104.86-КЖ Схемы расположения элементов каркаса
ТП 902-1-104.86-КЖ Схемы расположения плит покрытия и перекрытия
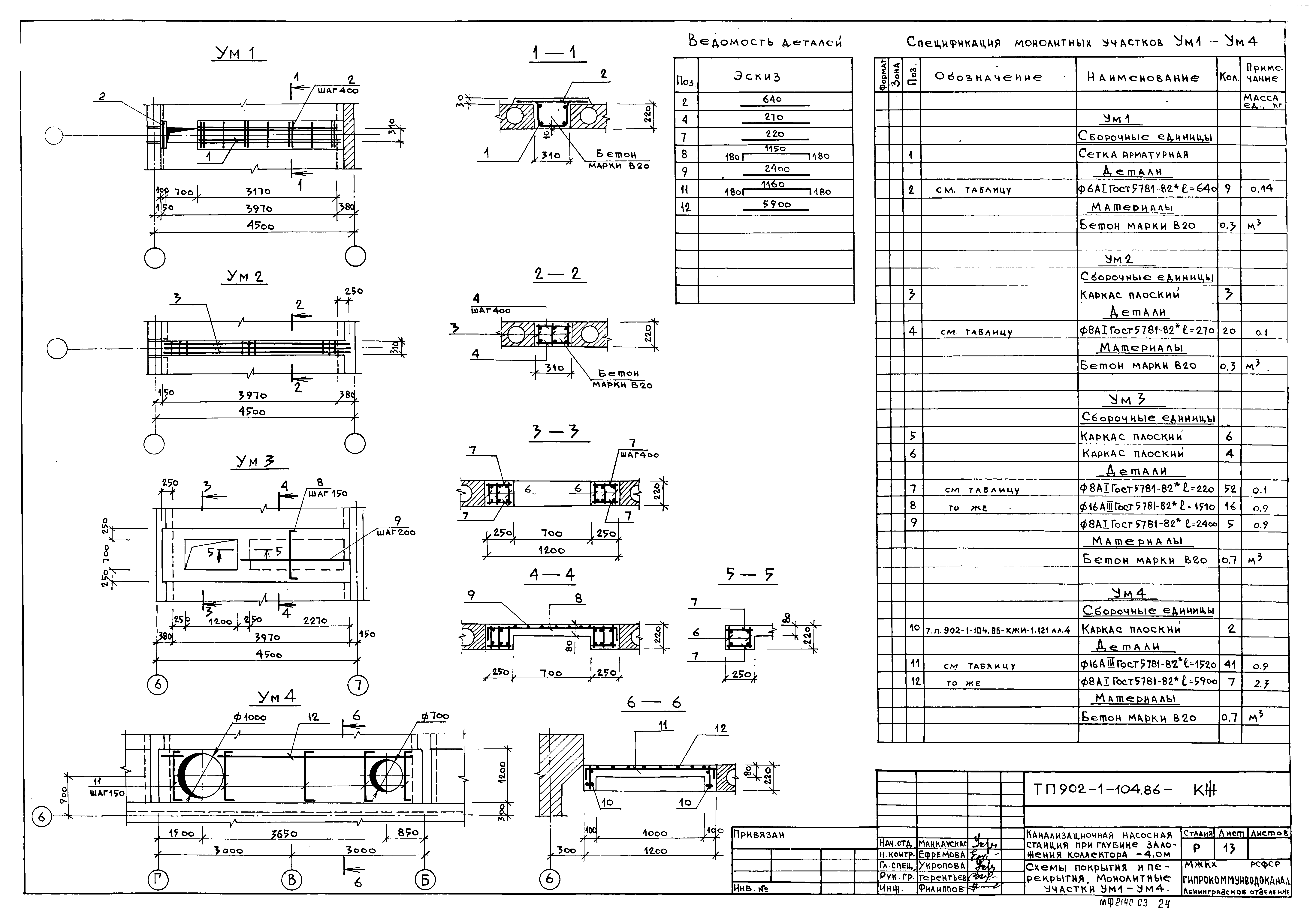
ТП 902-1-104.86-КЖ Схемы покрытия и перекрытия. Монолитные участки Ум1-Ум4
ТП 902-1-104.86-КЖ Схемы расположения стеновых панелей по осям А;Д;3;6
ТП 902-1-104.86-КЖ Схемы расположения стеновых панелей по осям 1;8;Д;А
ТП 902-1-104.86-КЖ Операторская РУ-6кВ. ПСУ. Камеры трансформаторов. Схемы расположения элементов на отм. 0.000 и каналов
ТП 902-1-104.86-КЖ Операторская РУ-6кВ. ПСУ камеры трансформаторов. Разрезы 1-1÷4-4
ТП 902-1-104.86-КЖ РУ-6кВ. Камеры трансформаторов Пм1,Пм2,Бм1,Бм2,Ум1. Армирование. Горизонтальная диафрагма
ТП 902-1-104.86-КМ Основной комплект марки КМ
ТП 902-1-104.86-КМ Общие данные
ТП 902-1-104.86-КМ Техническая спецификация металла
ТП 902-1-104.86-КМ Схема расположения подкрановых путей
ТП 902-1-104.86-КМ Подкрановые пути. Узлы. Детали
ТП 902-1-104.86-КМ Схема расположения монорельса. Площадки обслуживания
ТП 902-1-104.86-КМ Электропомещения. Сетчатые ограждения
ТП 902-1-104.86-КМ Лестницы
Разработан: Ленинградское отделение Гипрокоммунводоканала
Утверждён:27.10.1986 МЖКХ РСФСР (462)
Расположен в:Техническая документация Строительство Справочные документы Типовые строительные конструкции, изделия и узлы Общероссийский строительный каталог Промышленные предприятия, здания и сооружения Здания и сооружения санитарно-технические Канализация Станции насосные Станции насосные для перекачки бытовых сточных вод
Типовой проект 902-1-106.86Типовой проект 902-1-106.86Типовой проект 902-1-106.86Типовой проект 902-1-106.86Типовой проект 902-1-106.86Типовой проект 902-1-106.86Типовой проект 902-1-106.86Типовой проект 902-1-106.86Типовой проект 902-1-106.86Типовой проект 902-1-106.86Типовой проект 902-1-106.86Типовой проект 902-1-106.86Типовой проект 902-1-106.86Типовой проект 902-1-106.86Типовой проект 902-1-106.86Типовой проект 902-1-106.86Типовой проект 902-1-106.86Типовой проект 902-1-106.86Типовой проект 902-1-106.86Типовой проект 902-1-106.86Типовой проект 902-1-106.86Типовой проект 902-1-106.86Типовой проект 902-1-106.86Типовой проект 902-1-106.86Типовой проект 902-1-106.86Типовой проект 902-1-106.86Типовой проект 902-1-106.86Типовой проект 902-1-106.86Типовой проект 902-1-106.86Типовой проект 902-1-106.86Типовой проект 902-1-106.86Типовой проект 902-1-106.86Типовой проект 902-1-106.86Типовой проект 902-1-106.86Типовой проект 902-1-106.86Типовой проект 902-1-106.86Типовой проект 902-1-106.86

© 2013 Ёшкин Кот :-) Карта сайта