Информационная система
«Ёшкин Кот»

Скачать базу одним архивом
Скачать обновления
История создания базы
Карта сайта

Скачать Типовой проект 902-1-105.86 Альбом 4. Архитектурно-строительные решения. Надземная часть. Изделия (из ТП 902-1-104.86)

Дата актуализации: 10.08.2017

Типовой проект 902-1-105.86

Альбом 4. Архитектурно-строительные решения. Надземная часть. Изделия (из ТП 902-1-104.86)

Обозначение: Типовой проект 902-1-105.86
Обозначение англ: 902-1-105.86
Статус:не определен законодательством
Название рус.:Альбом 4. Архитектурно-строительные решения. Надземная часть. Изделия (из ТП 902-1-104.86)
Дата добавления в базу:01.09.2013
Дата актуализации:05.05.2017
Дата введения:04.12.1986
Оглавление:ТП 902-1-104.86 Содержание альбома
ТП 902-1-104.86-КЖИ-ТТ Технические требования
ТП 902-1-104.86-КЖИ-1.100 Каркас
ТП 902-1-104.86-КЖИ-1.101 Каркас
ТП 902-1-104.86-КЖИ-1.102 Каркас
ТП 902-1-104.86-КЖИ-1.103 Каркас
ТП 902-1-104.86-КЖИ-1.104 Каркас
ТП 902-1-104.86-КЖИ-1.105 Каркас
ТП 902-1-104.86-КЖИ-1.106 Каркас
ТП 902-1-104.86-КЖИ-1.107 Каркас
ТП 902-1-104.86-КЖИ-1.108 Каркас
ТП 902-1-104.86-КЖИ-1.109 Каркас
ТП 902-1-104.86-КЖИ-1.110 Каркас
ТП 902-1-104.86-КЖИ-1.111 Каркас
ТП 902-1-104.86-КЖИ-1.112 Каркас
ТП 902-1-104.86-КЖИ-1.113 Каркас
ТП 902-1-104.86-КЖИ-1.114 Каркас
ТП 902-1-104.86-КЖИ-1.115 Каркас
ТП 902-1-104.86-КЖИ-1.116 Каркас
ТП 902-1-104.86-КЖИ-1.117 Каркас
ТП 902-1-104.86-КЖИ-1.118 Каркас
ТП 902-1-104.86-КЖИ-1.119 Каркас
ТП 902-1-104.86-КЖИ-1.120 Каркас
ТП 902-1-104.86-КЖИ-1.121 Каркас
ТП 902-1-104.86-КЖИ-1.122 Каркас
ТП 902-1-104.86-КЖИ-1.123 Каркас
ТП 902-1-104.86-КЖИ-1.124 Сетка
ТП 902-1-104.86-КЖИ-1.125 Анкер А-1
ТП 902-1-104.86-КЖИ-1.126 Анкер А-2
ТП 902-1-104.86-КЖИ-1.127 Анкер А-3
ТП 902-1-104.86-КЖИ-2.100 Колонны
ТП 902-1-104.86-КЖИ-2.101 Колонны
ТП 902-1-104.86-КЖИ-2.102 Колонны
ТП 902-1-104.86-КЖИ-2.103 Колонны
ТП 902-1-104.86-КЖИ-2.104 Колонны
ТП 902-1-104.86-КЖИ-2.105 Колонны
ТП 902-1-104.86-КЖИ-2.106 Колонны
ТП 902-1-104.86-КЖИ-2.107 Колонны
ТП 902-1-104.86-КЖИ-2.108 Колонны
ТП 902-1-104.86-КЖИ-2.109 Колонны
ТП 902-1-104.86-КЖИ-2.110 Колонны
ТП 902-1-104.86-КЖИ-2.200 Балка
ТП 902-1-104.86-КЖИ-3.100 Плиты покрытия
ТП 902-1-104.86-КЖИ-3.101 Плиты покрытия
ТП 902-1-104.86-КЖИ-3.102 Плиты покрытия
ТП 902-1-104.86-КЖИ-3.103 Плиты покрытия
ТП 902-1-104.86-КЖИ-3.104 Плиты покрытия
ТП 902-1-104.86-КЖИ-3.105 Плиты покрытия
ТП 902-1-104.86-КЖИ-3.106 Плита покрытия
ТП 902-1-104.86-КЖИ-3.200 Плита перекрытия
ТП 902-1-104.86-КЖИ-4.100 Панель стеновая
ТП 902-1-104.86-КЖИ-4.101 Панель стеновая
ТП 902-1-104.86-КЖИ-5.100 Изделие закладное
ТП 902-1-104.86-КЖИ-5.101 Изделие закладное
ТП 902-1-104.86-КЖИ-5.102 Изделие закладное
ТП 902-1-104.86-КЖИ-5.103 Изделие закладное
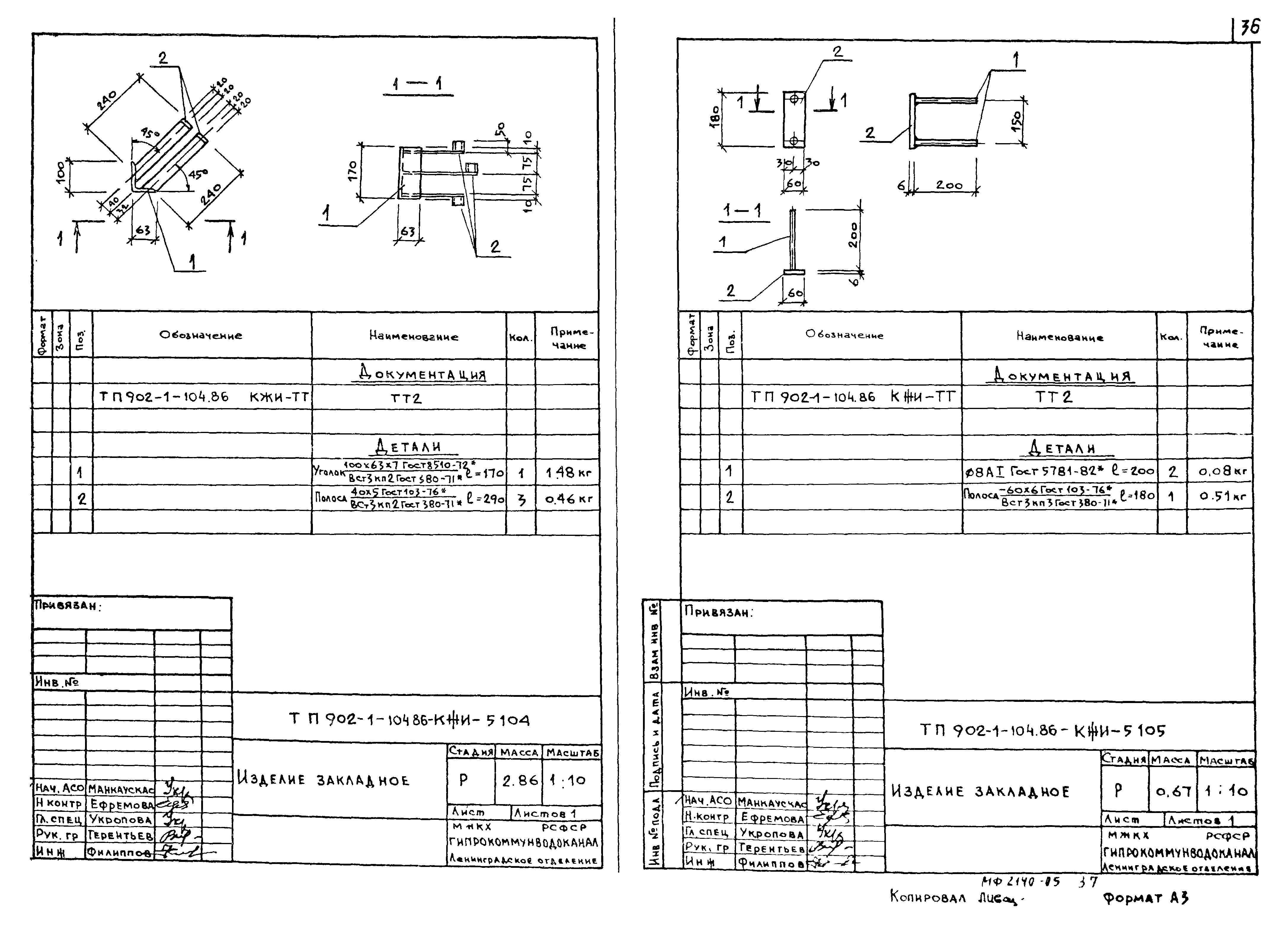
ТП 902-1-104.86-КЖИ-5.104 Изделие закладное
ТП 902-1-104.86-КЖИ-5.105 Изделие закладное
ТП 902-1-104.86-КЖИ-4.106 Закладной элемент
ТП 902-1-104.86-КЖИ-5.200 Щит перекрытия
ТП 902-1-104.86-КЖИ-5.201 Щит перекрытия
ТП 902-1-104.86-КЖИ-5.202 Щит перекрытия
ТП 902-1-104.86-КЖИ-5.203 Щит перекрытия
ТП 902-1-104.86-КЖИ-5.204 Щит перекрытия
Разработан: Ленинградское отделение Гипрокоммунводоканала
Утверждён:27.10.1986 МЖКХ РСФСР (462)
Расположен в:Техническая документация Строительство Справочные документы Типовые строительные конструкции, изделия и узлы Общероссийский строительный каталог Промышленные предприятия, здания и сооружения Здания и сооружения санитарно-технические Канализация Станции насосные Станции насосные для перекачки бытовых сточных вод
Заменяет собой:
Типовой проект 902-1-105.86Типовой проект 902-1-105.86Типовой проект 902-1-105.86Типовой проект 902-1-105.86Типовой проект 902-1-105.86Типовой проект 902-1-105.86Типовой проект 902-1-105.86Типовой проект 902-1-105.86Типовой проект 902-1-105.86Типовой проект 902-1-105.86Типовой проект 902-1-105.86Типовой проект 902-1-105.86Типовой проект 902-1-105.86Типовой проект 902-1-105.86Типовой проект 902-1-105.86Типовой проект 902-1-105.86Типовой проект 902-1-105.86Типовой проект 902-1-105.86Типовой проект 902-1-105.86Типовой проект 902-1-105.86Типовой проект 902-1-105.86Типовой проект 902-1-105.86Типовой проект 902-1-105.86Типовой проект 902-1-105.86Типовой проект 902-1-105.86Типовой проект 902-1-105.86Типовой проект 902-1-105.86Типовой проект 902-1-105.86Типовой проект 902-1-105.86Типовой проект 902-1-105.86Типовой проект 902-1-105.86Типовой проект 902-1-105.86Типовой проект 902-1-105.86Типовой проект 902-1-105.86Типовой проект 902-1-105.86Типовой проект 902-1-105.86Типовой проект 902-1-105.86Типовой проект 902-1-105.86Типовой проект 902-1-105.86Типовой проект 902-1-105.86Типовой проект 902-1-105.86Типовой проект 902-1-105.86

© 2013 Ёшкин Кот :-) Карта сайта