Информационная система
«Ёшкин Кот»

Скачать базу одним архивом
Скачать обновления
История создания базы
Карта сайта

Скачать Типовой проект 902-2-372.83 Альбом II. Технологическая, строительная и электротехническая части

Дата актуализации: 10.08.2017

Типовой проект 902-2-372.83

Альбом II. Технологическая, строительная и электротехническая части

Обозначение: Типовой проект 902-2-372.83
Обозначение англ: 902-2-372.83
Статус:не определен законодательством
Название рус.:Альбом II. Технологическая, строительная и электротехническая части
Дата добавления в базу:01.09.2013
Дата актуализации:05.05.2017
Дата введения:17.05.1992
Оглавление:ТП 902-2-372.83 Содержание альбома
ТП 902-2-372.83 ТХ Технологическая часть
ТП 902-2-372.83 ТХ-1 Общие данные
ТП 902-2-372.83 ТХ-2 План. Разрезы 1-1;2-2. Детали
ТП 902-2-372.83 ТХ-3 Схемы систем: 1В9;И1;2В9;АО;И2
ТП 902-2-372.83 ТХ-4 Спецификация систем;1В9;И1;2В9;АО;И2
ТП 902-2-372.83 ТХ-5 Спецификация систем:1В9;И1;2В9;АО;И2 (продолжение)
ТП 902-2-372.83 КЖ Строительная часть. Конструкции железобетонные
ТП 902-2-372.83 КЖ-1 Общие данные
ТП 902-2-372.83 КЖ-2 Схема расположения стеновых панелей, лотков и кодовых мостиков
ТП 902-2-372.83 КЖ-3 Разрезы 1-1÷4-4. Вид 5-5. Узлы 1-5
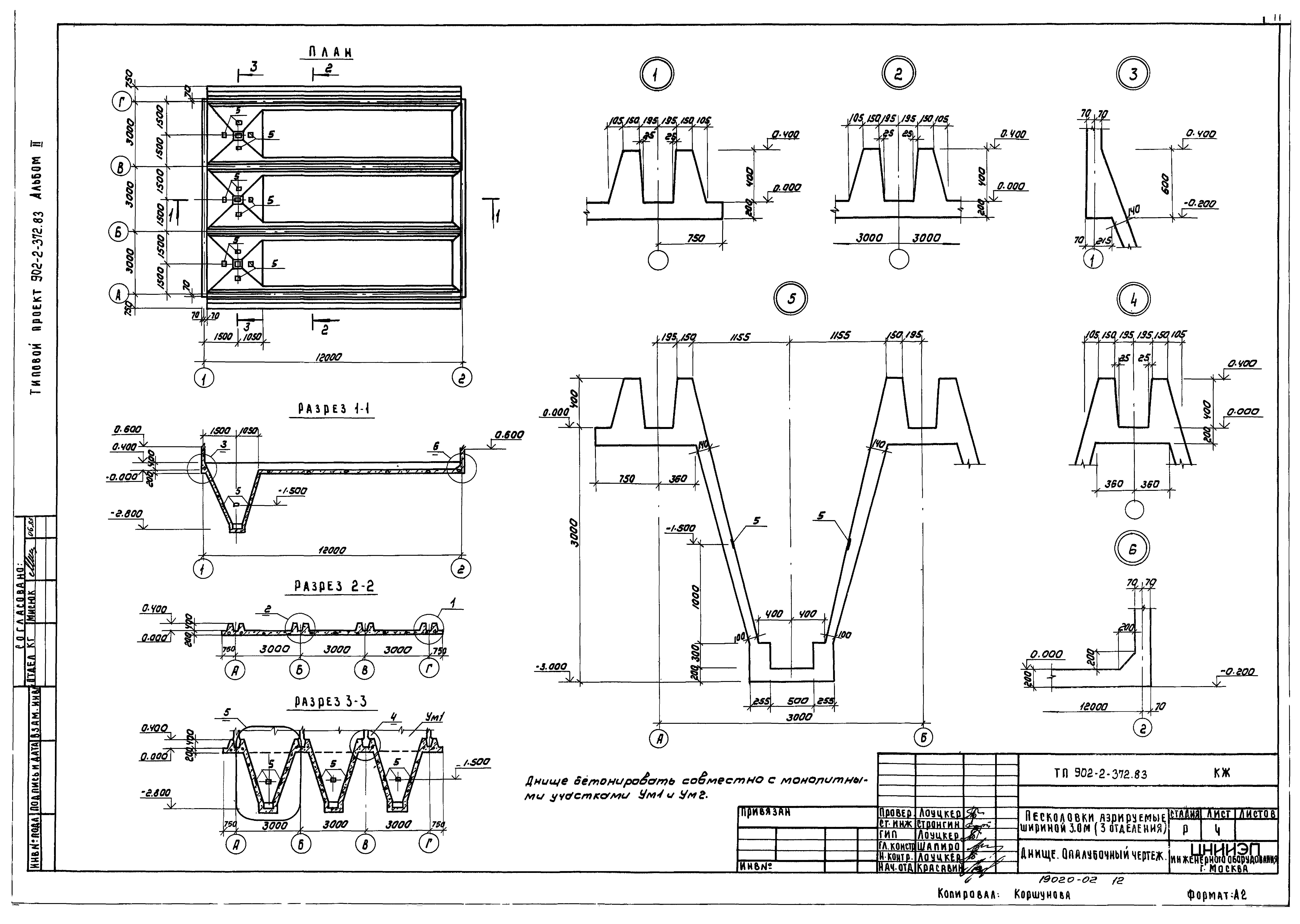
ТП 902-2-372.83 КЖ-4 Днище. Опалубочный чертеж
ТП 902-2-372.83 КЖ-5 Днище. Армирование. Схемы расположения нижних и верхних сеток
ТП 902-2-372.83 КЖ-6 Днище. Армирование. Схемы расположения каркасов. Разрезы. Узлы
ТП 902-2-372.83 КЖ-7 Монолитные участки стен Ум1;Ум2
ТП 902-2-372.83 КЖ-8 Монолитные участки стен Ум1;Ум2. Спецификации
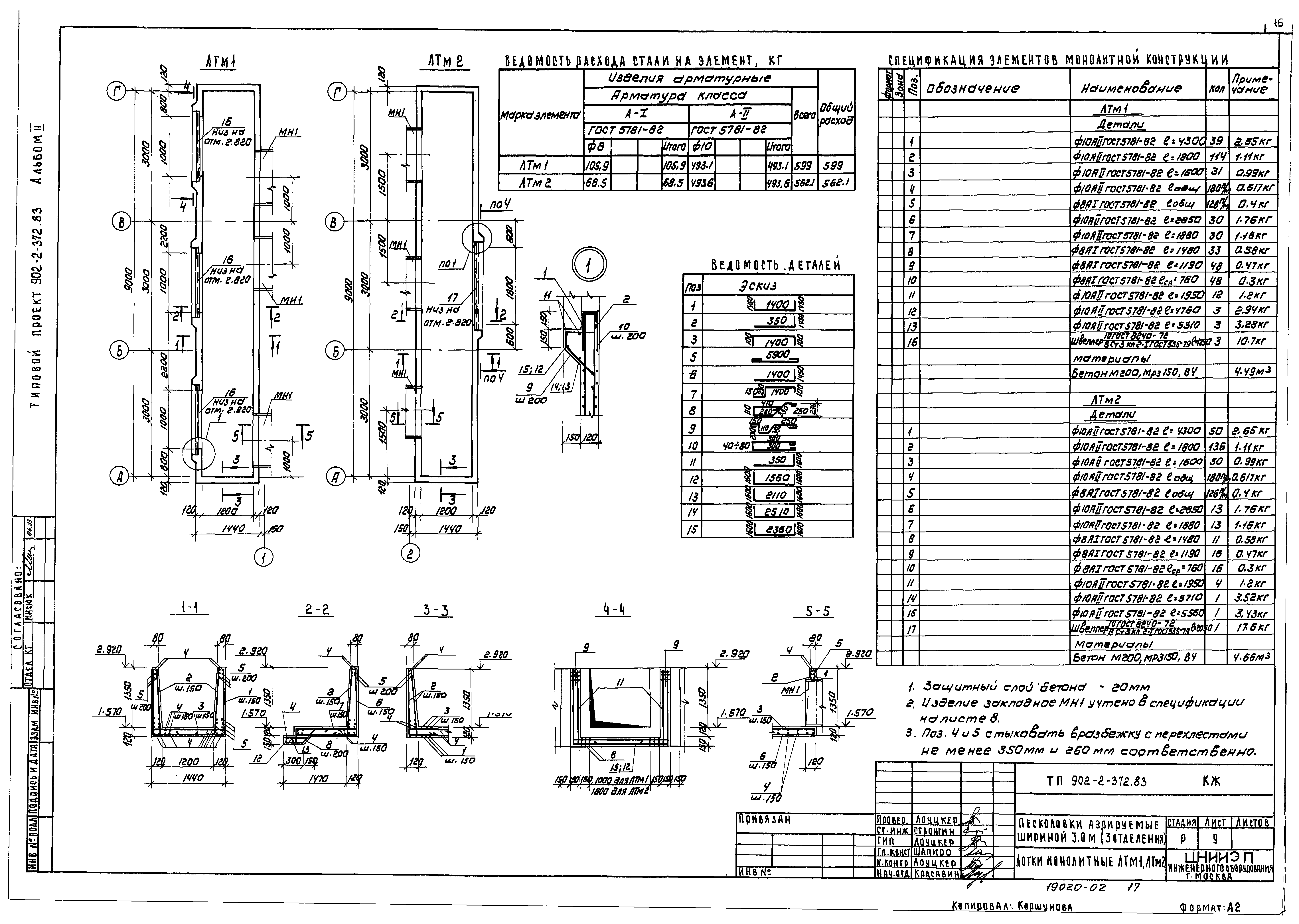
ТП 902-2-372.83 КЖ-9 Лотки монолитные ЛТм1;ЛТм2
ТП 902-2-372.83 КЖ-10 Вставка длиной 3м
ТП 902-2-372.83 ЭМ Электротехническая часть
ТП 902-2-372.83 ЭМ-1 Общие данные. Схема электрическая принципиальная электрооборудования
ТП 902-2-372.83 ЭМ-2 Схемы электрические принципиальные управления задвижками и насосами. Лист 1
ТП 902-2-372.83 ЭМ-3 Схемы электрические принципиальные управления задвижками и насосами. Лист 2
ТП 902-2-372.83 ЭМ-4 Схема подключения электрооборудования
ТП 902-2-372.83 ЭМ-5 Кабельный журнал
ТП 902-2-372.83 ЭМ-6 Расположение электрооборудования и прокладка кабеля
Разработан: ЦНИИЭП иженерного оборудования
Утверждён:22.07.1974 Госгражданстрой (Gosgrazhdanstroy 164)
Расположен в:Техническая документация Строительство Справочные документы Типовые строительные конструкции, изделия и узлы Общероссийский строительный каталог Промышленные предприятия, здания и сооружения Здания и сооружения санитарно-технические Канализация Сооружения механической очистки Песколовки
Типовой проект 902-2-372.83Типовой проект 902-2-372.83Типовой проект 902-2-372.83Типовой проект 902-2-372.83Типовой проект 902-2-372.83Типовой проект 902-2-372.83Типовой проект 902-2-372.83Типовой проект 902-2-372.83Типовой проект 902-2-372.83Типовой проект 902-2-372.83Типовой проект 902-2-372.83Типовой проект 902-2-372.83Типовой проект 902-2-372.83Типовой проект 902-2-372.83Типовой проект 902-2-372.83Типовой проект 902-2-372.83Типовой проект 902-2-372.83Типовой проект 902-2-372.83Типовой проект 902-2-372.83Типовой проект 902-2-372.83Типовой проект 902-2-372.83Типовой проект 902-2-372.83Типовой проект 902-2-372.83Типовой проект 902-2-372.83Типовой проект 902-2-372.83

© 2013 Ёшкин Кот :-) Карта сайта