Информационная система
«Ёшкин Кот»

Скачать базу одним архивом
Скачать обновления
История создания базы
Карта сайта

Скачать Типовой проект 703-1-6.86 Альбом 4. Конструкции металлические

Дата актуализации: 10.08.2017

Типовой проект 703-1-6.86

Альбом 4. Конструкции металлические

Обозначение: Типовой проект 703-1-6.86
Обозначение англ: 703-1-6.86
Статус:не определен законодательством
Название рус.:Альбом 4. Конструкции металлические
Дата добавления в базу:01.09.2013
Дата актуализации:05.05.2017
Дата введения:23.05.1986
Оглавление:ТП 703-1-6.86 Титульный лист
ТП 703-1-6.86 Содержание альбома
ТП 703-1-6.86 КМ-1 Общие данные (начало)
ТП 703-1-6.86 КМ-2 Общие данные (продолжение)
ТП 703-1-6.86 КМ-3 Общие данные (окончание)
ТП 703-1-6.86 КМ-4 Техническая спецификация металла (начало)
ТП 703-1-6.86 КМ-5 Техническая спецификация металла (продолжение)
ТП 703-1-6.86 КМ-6 Техническая спецификация металла (продолжение)
ТП 703-1-6.86 КМ-7 Техническая спецификация металла (окончание)
ТП 703-1-6.86 КМ-8 Ведомость металлоконструкций по видам профилей
ТП 703-1-6.86 КМ-9 Схема расчетных нагрузок на фундаменты ОП1-ОП5
ТП 703-1-6.86 КМ-10 Таблица нагрузок на фундаменты (начало)
ТП 703-1-6.86 КМ-11 Таблица нагрузок на фундаменты (продолжение)
ТП 703-1-6.86 КМ-12 Таблица нагрузок на фундаменты (окончание)
ТП 703-1-6.86 КМ-13 Схема расположения баз колонн. Фрагменты 1-7
ТП 703-1-6.86 КМ-14 Типы баз колонн. Сечения 1-1÷6-6
ТП 703-1-6.86 КМ-15 Схема расположения колонн и связей
ТП 703-1-6.86 КМ-16 Разрезы 1-1;2-2;3-3;4-4
ТП 703-1-6.86 КМ-17 Разрезы 5-5;6-6;7-7;8-8;9-9;10-10
ТП 703-1-6.86 КМ-18 Схема расположения элементов покрытия
ТП 703-1-6.86 КМ-19 Разрезы 11-11÷15-15
ТП 703-1-6.86 КМ-20 Схема раскладки настила каркаса и навесов. Стык постов. Фрагмент1
ТП 703-1-6.86 КМ-21 Схема расположения элементов подвесного перекрытия
ТП 703-1-6.86 КМ-22 Схема расположения ригелей фахверка по осям А;И;16
ТП 703-1-6.86 КМ-23 Схема расположения ригелей фахверка по осям 2;Б/1,Г,Д и между осями 6-7
ТП 703-1-6.86 КМ-24 Схема расположения крепления коммуникаций
ТП 703-1-6.86 КМ-25 Опоры ОП1-ОП3. Сечения 1-1÷8-8
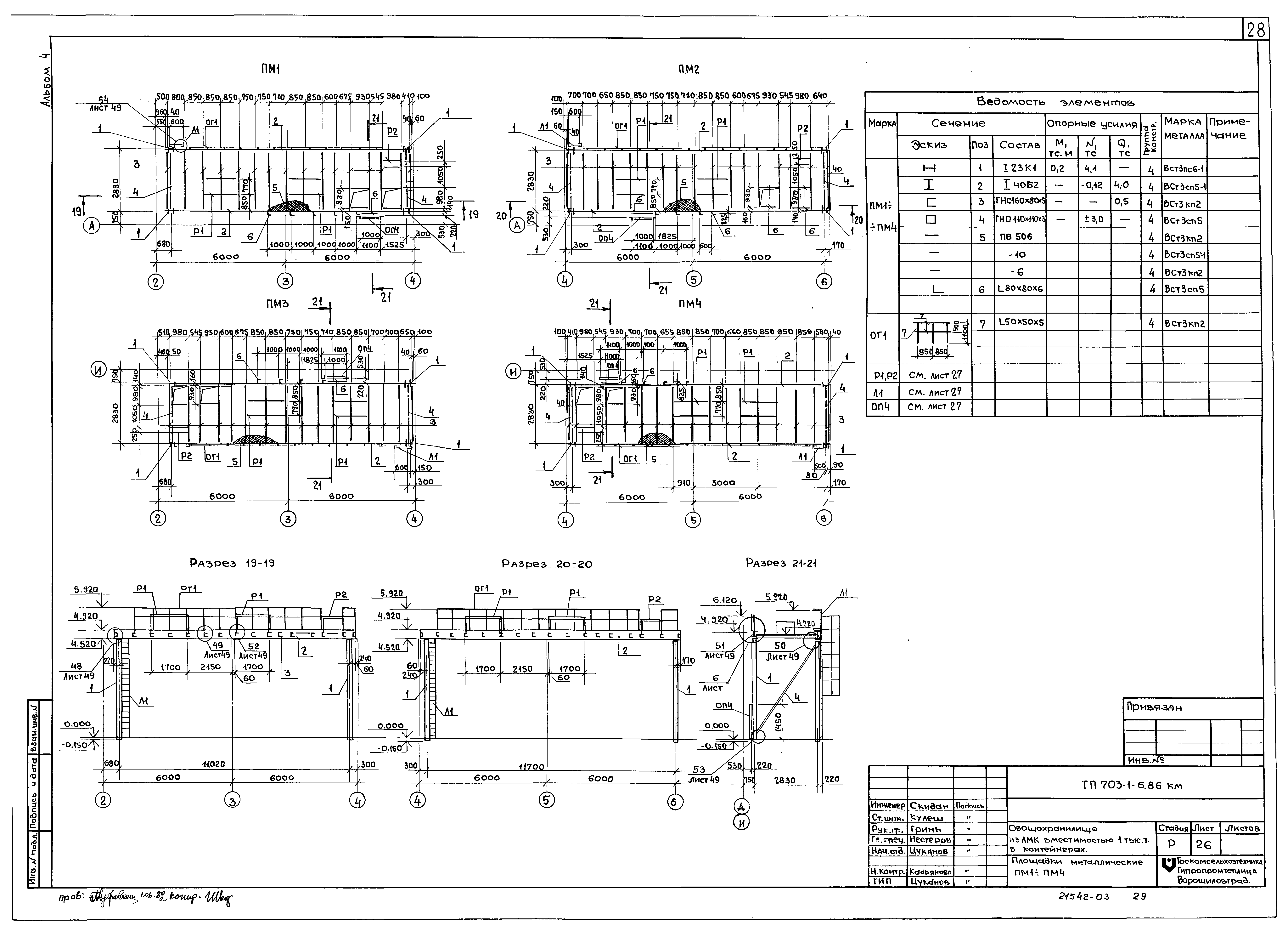
ТП 703-1-6.86 КМ-26 Площадки металлические ПМ1-ПМ4
ТП 703-1-6.86 КМ-27 Рамы Р1,Р2. Лестница Л1. Опора ОП4
ТП 703-1-6.86 КМ-28 Схемы расположения лестниц Л2-Л5 и площадки ПМ5
ТП 703-1-6.86 КМ-29 Узлы 1,2
ТП 703-1-6.86 КМ-30 Узлы 3,4,5
ТП 703-1-6.86 КМ-31 Узлы 6,7
ТП 703-1-6.86 КМ-32 Узлы 8,9
ТП 703-1-6.86 КМ-33 Узлы 10,11
ТП 703-1-6.86 КМ-34 Узлы 12,13
ТП 703-1-6.86 КМ-35 Узлы 14,15,16
ТП 703-1-6.86 КМ-36 Узлы 17,18,19
ТП 703-1-6.86 КМ-37 Узлы 20,21
ТП 703-1-6.86 КМ-38 Узлы 22,23
ТП 703-1-6.86 КМ-39 Узлы 24,25
ТП 703-1-6.86 КМ-40 Узлы 26,27
ТП 703-1-6.86 КМ-41 Узлы 28,29
ТП 703-1-6.86 КМ-42 Узлы 30,31
ТП 703-1-6.86 КМ-43 Узлы 32,33,34
ТП 703-1-6.86 КМ-44 Узлы 35,36,37
ТП 703-1-6.86 КМ-45 Узлы 38
ТП 703-1-6.86 КМ-46 Узлы 39,40,41
ТП 703-1-6.86 КМ-47 Узлы 42,43,44,45
ТП 703-1-6.86 КМ-48 Узлы 46,47
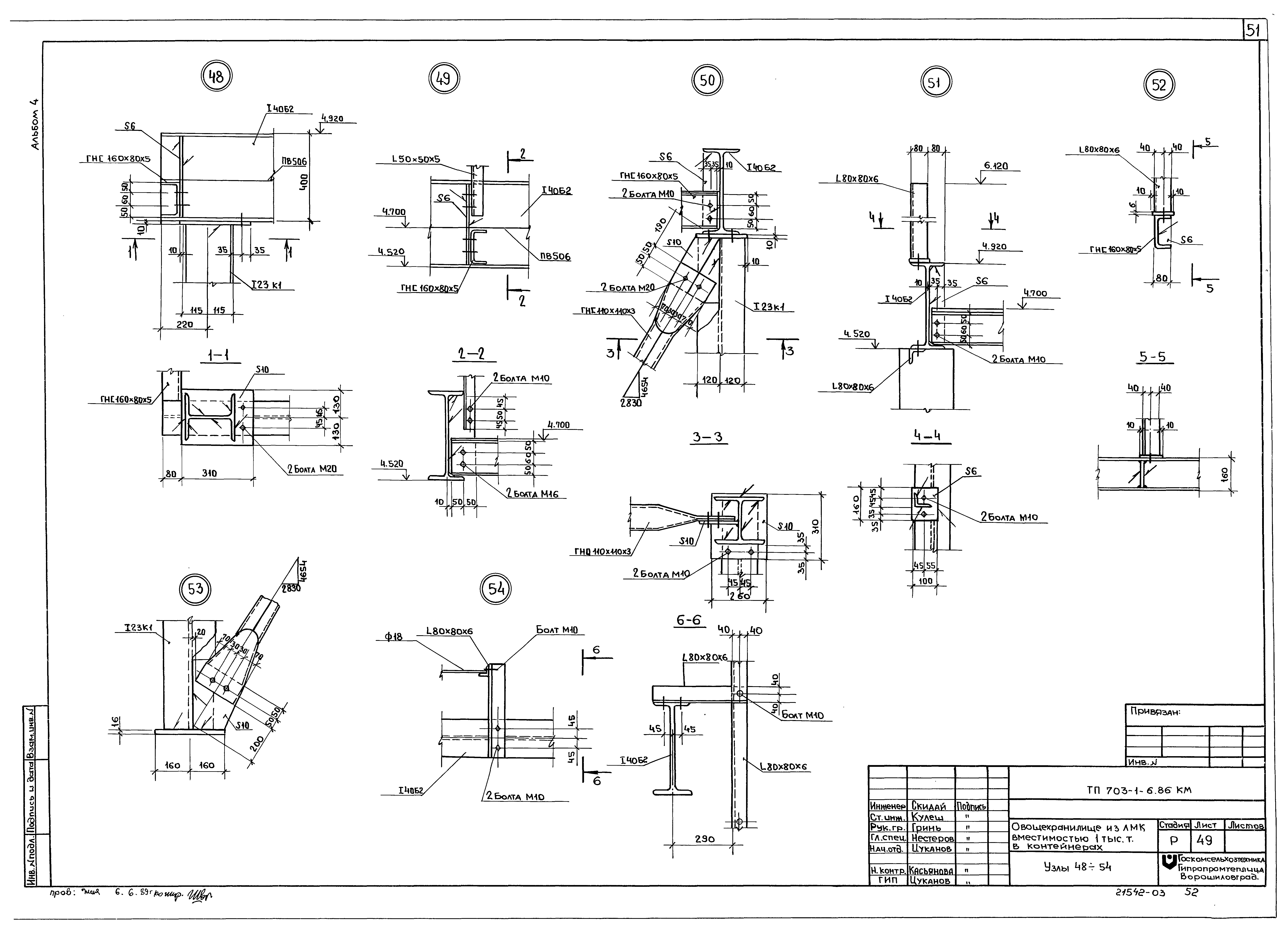
ТП 703-1-6.86 КМ-49 Узлы 48-54
ТП 703-1-6.86 КМ-50 Фермы ФС1 и ФС2. Узлы 55-62
ТП 703-1-6.86 КМ-51 Схема расположения ворот. Узлы 63,64,65
Разработан: Гипропромтеплица
Утверждён:17.02.1986 Министерство торговли СССР (USSR Ministry of Commerce 31/П-3)
Расположен в:Техническая документация Строительство Справочные документы Типовые строительные конструкции, изделия и узлы Общероссийский строительный каталог Промышленные предприятия, здания и сооружения Предприятия, здания и сооружения складские Овощехранилища и фруктохранилища Овощехранилища
Типовой проект 703-1-6.86Типовой проект 703-1-6.86Типовой проект 703-1-6.86Типовой проект 703-1-6.86Типовой проект 703-1-6.86Типовой проект 703-1-6.86Типовой проект 703-1-6.86Типовой проект 703-1-6.86Типовой проект 703-1-6.86Типовой проект 703-1-6.86Типовой проект 703-1-6.86Типовой проект 703-1-6.86Типовой проект 703-1-6.86Типовой проект 703-1-6.86Типовой проект 703-1-6.86Типовой проект 703-1-6.86Типовой проект 703-1-6.86Типовой проект 703-1-6.86Типовой проект 703-1-6.86Типовой проект 703-1-6.86Типовой проект 703-1-6.86Типовой проект 703-1-6.86Типовой проект 703-1-6.86Типовой проект 703-1-6.86Типовой проект 703-1-6.86Типовой проект 703-1-6.86Типовой проект 703-1-6.86Типовой проект 703-1-6.86Типовой проект 703-1-6.86Типовой проект 703-1-6.86Типовой проект 703-1-6.86Типовой проект 703-1-6.86Типовой проект 703-1-6.86Типовой проект 703-1-6.86Типовой проект 703-1-6.86Типовой проект 703-1-6.86Типовой проект 703-1-6.86Типовой проект 703-1-6.86Типовой проект 703-1-6.86Типовой проект 703-1-6.86Типовой проект 703-1-6.86Типовой проект 703-1-6.86Типовой проект 703-1-6.86Типовой проект 703-1-6.86Типовой проект 703-1-6.86Типовой проект 703-1-6.86Типовой проект 703-1-6.86Типовой проект 703-1-6.86Типовой проект 703-1-6.86Типовой проект 703-1-6.86Типовой проект 703-1-6.86Типовой проект 703-1-6.86Типовой проект 703-1-6.86Типовой проект 703-1-6.86

© 2013 Ёшкин Кот :-) Карта сайта