Информационная система
«Ёшкин Кот»

Скачать базу одним архивом
Скачать обновления
История создания базы
Карта сайта

Скачать Типовой проект 703-1-5.86 Альбом 2. Архитектурные решения. Конструкции железобетонные

Дата актуализации: 10.08.2017

Типовой проект 703-1-5.86

Альбом 2. Архитектурные решения. Конструкции железобетонные

Обозначение: Типовой проект 703-1-5.86
Обозначение англ: 703-1-5.86
Статус:не определен законодательством
Название рус.:Альбом 2. Архитектурные решения. Конструкции железобетонные
Дата добавления в базу:01.09.2013
Дата актуализации:05.05.2017
Дата введения:23.05.1986
Оглавление:ТП 703-1-5.86 АР1 Общие данные (начало)
ТП 703-1-5.86 АР2 Общие данные (окончание)
ТП 703-1-5.86 АР3 План на отм. 0.000
ТП 703-1-5.86 АР4 Фрагмент 1,план на отм 7.32
ТП 703-1-5.86 АР5 Разрезы 1-1;2-2;3-3
ТП 703-1-5.86 АР6 Фасады 1-16;16--1;И-А
ТП 703-1-5.86 АР7 Фасад А-И. Спецификация к схема. Заполнения оконных проемов
ТП 703-1-5.86 АР8 Схемы расположения элементов стальных щитовых перегородок и асбестоцементных листов защитной стенки
ТП 703-1-5.86 АР9 План полов, план кровли. Фрагмент 2
ТП 703-1-5.86 АР10 Спецификация элементов к узлам заполнения проемов ворот и дверей
ТП 703-1-5.86 АР11 Схемы расположения стеновых панелей в осях 2...11;А;11...2,4
ТП 703-1-5.86 АР12 Схемы расположения стеновых панелей в осях И...А;2;В...И;16
ТП 703-1-5.86 АР13 Схемы расположения стеновых панелей в осях 12...16;В/1;16...12;И
ТП 703-1-5.86 АР14 Схемы расположения панелей перегородок в осях 2...11;Г;11...2;Д
ТП 703-1-5.86 АР15 Схемы расположения панелей перегородок в осях И...16;Ж...И
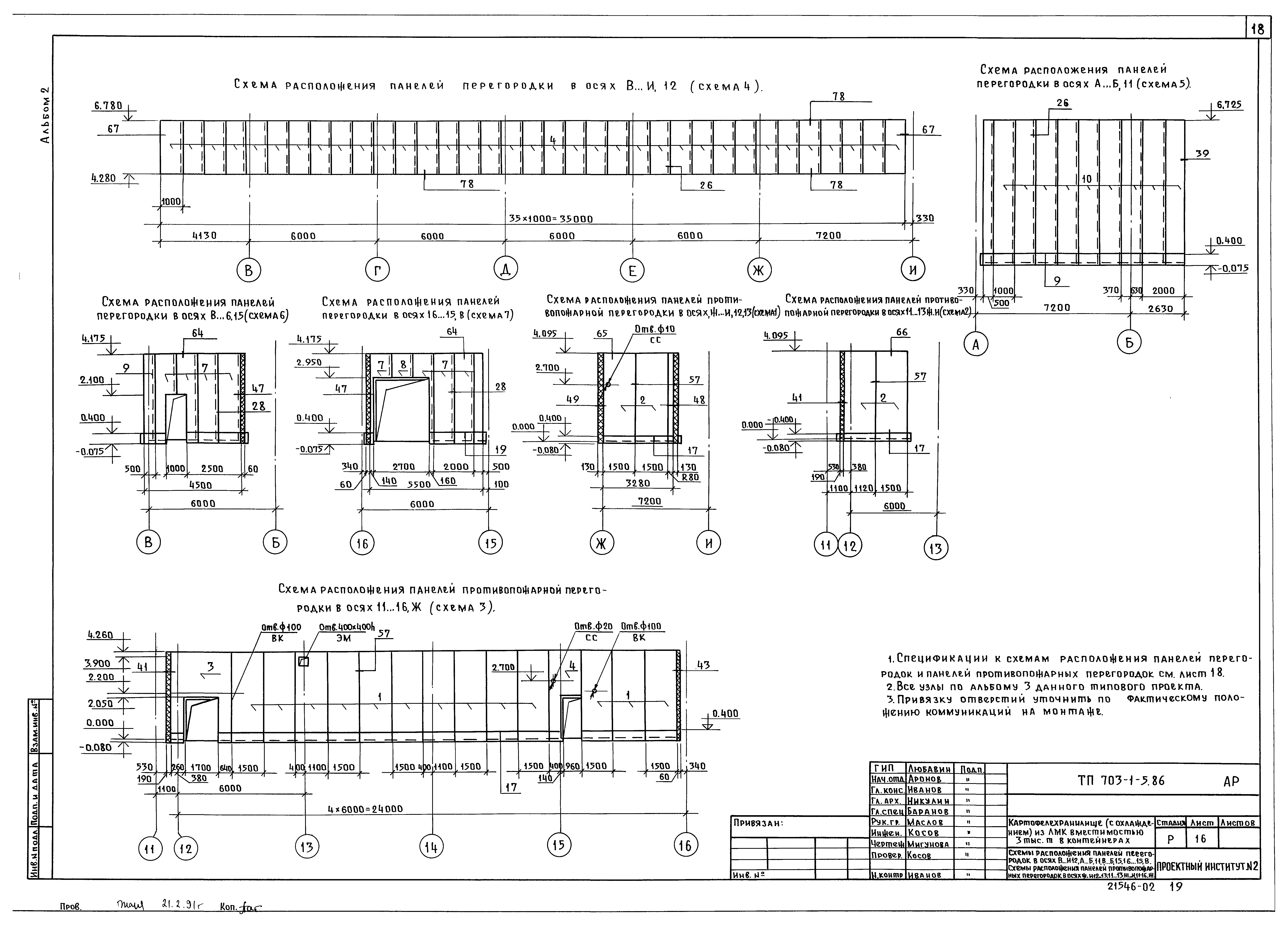
ТП 703-1-5.86 АР16 Схемы расположения панелей перегородок в осях В...И;12;А...Б;11;В...6;15;16...15;В. Схемы расположения панелей противопожарных перегородок в осях Ж...И;12...13;11...13;Ж...И;1...16;Ж
ТП 703-1-5.86 АР17 Схемы расположения противопожарных перегородок в осях А...И;6...7;А...И;11...12
ТП 703-1-5.86 АР18 Спецификация к схемам расположения панелей перегородок. Спецификация к схемам расположения противопожарных перегородок
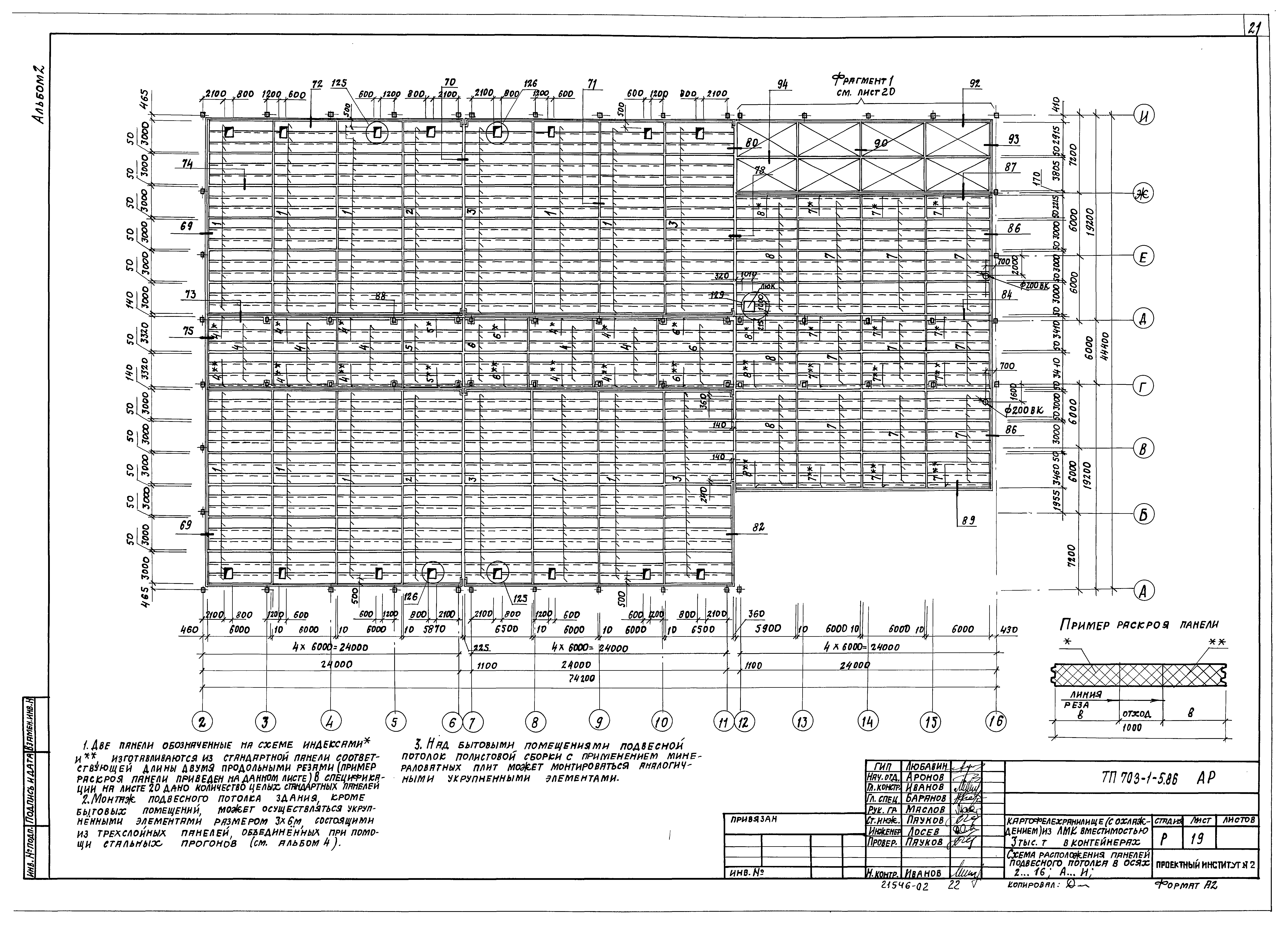
ТП 703-1-5.86 АР19 Схемы расположения панелей подвесного потолка в осях 2...16,А...И
ТП 703-1-5.86 АР20 Схемы расположения панелей подвесного потолка. Спецификация. Фрагмент 1
ТП 703-1-5.86 КЖ1 Общие данные
ТП 703-1-5.86 КЖ2 Схема расположения подземного хозяйства в осях 1...12. Лестницы Л1,Л2. Узел 1
ТП 703-1-5.86 КЖ3 Схема расположения подземного хозяйства в осях 12...16. Узел 2
ТП 703-1-5.86 КЖ4 Схема расположения подземного хозяйства. Схемы нагрузок на фундаменты
ТП 703-1-5.86 КЖ5 Схема расположения подземного хозяйства. Схемы нагрузок на фундаменты
ТП 703-1-5.86 КЖ6 Схема расположения подземного хозяйства. Схемы нагрузок на фундаменты
ТП 703-1-5.86 КЖ7 Схема расположения подземного хозяйства. Фундаменты ФМ1,ФМ4
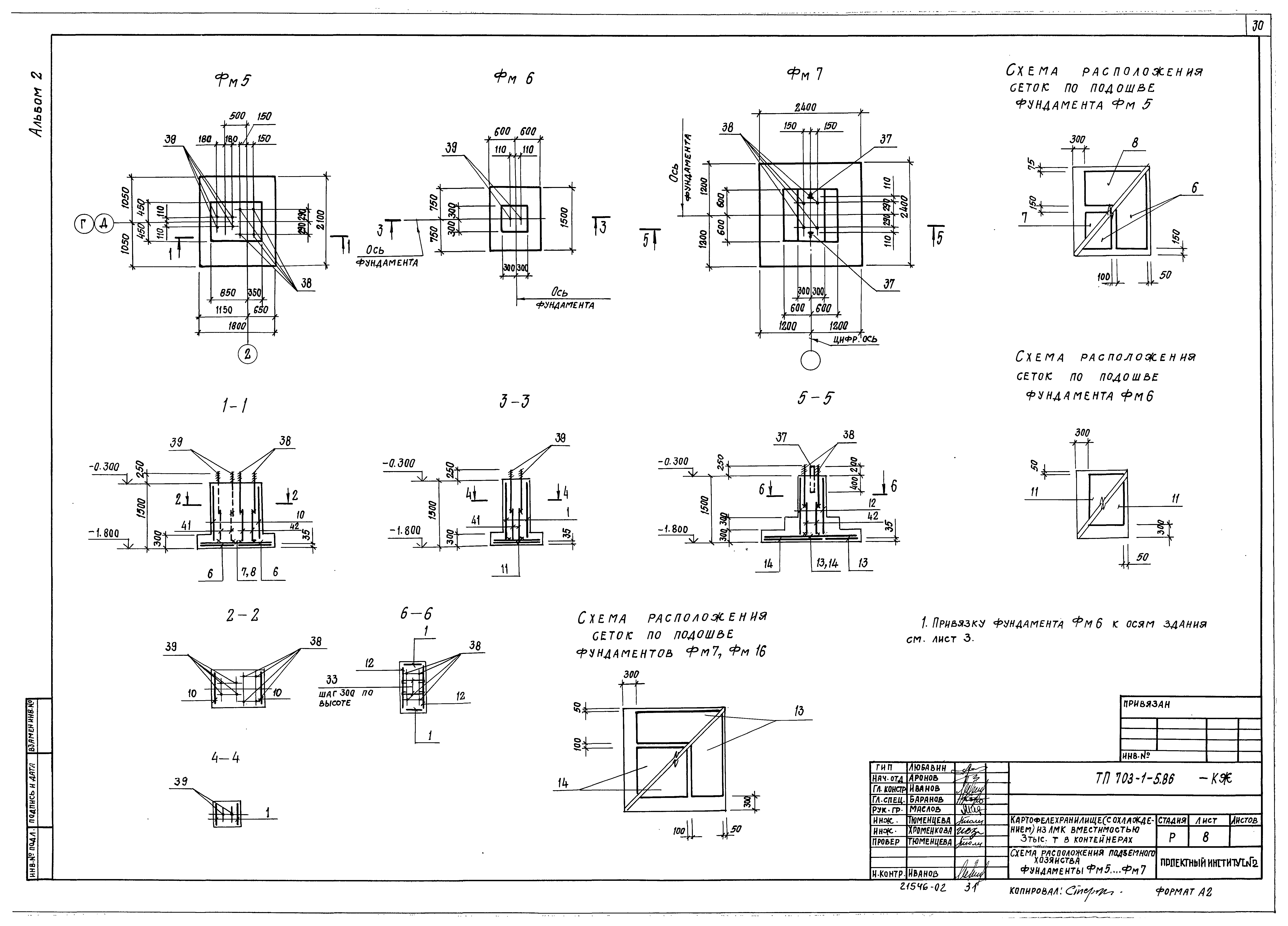
ТП 703-1-5.86 КЖ8 Схема расположения подземного хозяйства. Фундаменты ФМ5...ФМ7
ТП 703-1-5.86 КЖ9 Схема расположения подземного хозяйства. Фундаменты ФМ8...ФМ11
ТП 703-1-5.86 КЖ10 Схема расположения подземного хозяйства. Фундаменты ФМ12...ФМ15
ТП 703-1-5.86 КЖ11 Схема расположения подземного хозяйства. Фундаменты ФМ16...ФМ19
ТП 703-1-5.86 КЖ12 Схема расположения подземного хозяйства. Выборка арматурных и закладных изделий (начало)
ТП 703-1-5.86 КЖ13 Схема расположения подземного хозяйства. Выборка арматурных и закладных изделий (окончание)
ТП 703-1-5.86 КЖ14 Схема расположения подземного хозяйства. Ведомость расхода стали на элемент
ТП 703-1-5.86 КЖ15 Схема расположения подземного хозяйства. Ведомость расхода стали на элемент
ТП 703-1-5.86 КЖ16 Схема расположения подземного хозяйства. Приямок ПР1. Канал К1. Фундамент ФОМ1. Фрагменты 4...6
ТП 703-1-5.86 КЖ17 Схема расположения подземного хозяйства. Фрагмент 7. Фундаменты ФОМ2...ФОМ7
ТП 703-1-5.86 КЖИ-ТУ1 Технические условия на изготовление сборных железобетонных конструкций
ТП 703-1-5.86 КЖИ-ТУ2 Технические условия на изготовление арматурных и закладных изделий
ТП 703-1-5.86 КЖИ-1 Изделие закладное
ТП 703-1-5.86 КЖИ-2 Плита фундаментная ПФ1-1А
ТП 703-1-5.86 КЖИ-2СБ Плита фундаментная ПФ1-1А. Сборочный чертеж
ТП 703-1-5.86 КЖИ-2.1 Сетка С1
ТП 703-1-5.86 КЖИ-2.2 Сетка С2
ТП 703-1-5.86 КЖИ-2.3 Сетка С3
ТП 703-1-5.86 КЖИ-2.4 Сетка С4
ТП 703-1-5.86 КЖИ-2.5 Сетка С5
ТП 703-1-5.86 КЖИ-2.6 Каркас КР1
ТП 703-1-5.86 КЖИ-3 Шпилька горизонтальная (ШП1...ШП1)
ТП 703-1-5.86 КЖИ-4 Анкер (А1...А4)
ТП 703-1-5.86 КЖИ-5 Щит Щ1
Разработан: Проектный институт №2
Утверждён:17.02.1986 Министерство торговли СССР (USSR Ministry of Commerce 31/П-3)
Расположен в:Техническая документация Строительство Справочные документы Типовые строительные конструкции, изделия и узлы Общероссийский строительный каталог Промышленные предприятия, здания и сооружения Предприятия, здания и сооружения складские Овощехранилища и фруктохранилища Овощехранилища
Типовой проект 703-1-5.86Типовой проект 703-1-5.86Типовой проект 703-1-5.86Типовой проект 703-1-5.86Типовой проект 703-1-5.86Типовой проект 703-1-5.86Типовой проект 703-1-5.86Типовой проект 703-1-5.86Типовой проект 703-1-5.86Типовой проект 703-1-5.86Типовой проект 703-1-5.86Типовой проект 703-1-5.86Типовой проект 703-1-5.86Типовой проект 703-1-5.86Типовой проект 703-1-5.86Типовой проект 703-1-5.86Типовой проект 703-1-5.86Типовой проект 703-1-5.86Типовой проект 703-1-5.86Типовой проект 703-1-5.86Типовой проект 703-1-5.86Типовой проект 703-1-5.86Типовой проект 703-1-5.86Типовой проект 703-1-5.86Типовой проект 703-1-5.86Типовой проект 703-1-5.86Типовой проект 703-1-5.86Типовой проект 703-1-5.86Типовой проект 703-1-5.86Типовой проект 703-1-5.86Типовой проект 703-1-5.86Типовой проект 703-1-5.86Типовой проект 703-1-5.86Типовой проект 703-1-5.86Типовой проект 703-1-5.86Типовой проект 703-1-5.86Типовой проект 703-1-5.86Типовой проект 703-1-5.86Типовой проект 703-1-5.86Типовой проект 703-1-5.86Типовой проект 703-1-5.86Типовой проект 703-1-5.86Типовой проект 703-1-5.86Типовой проект 703-1-5.86

© 2013 Ёшкин Кот :-) Карта сайта