Информационная система
«Ёшкин Кот»

Скачать базу одним архивом
Скачать обновления
История создания базы
Карта сайта

Скачать Типовой проект 902-4-8м.83 Альбом V. Электротехническая часть. Чертежи монтажной зоны и заготовительного участка (из ТП 902-4-7.83)

Дата актуализации: 10.08.2017

Типовой проект 902-4-8м.83

Альбом V. Электротехническая часть. Чертежи монтажной зоны и заготовительного участка (из ТП 902-4-7.83)

Обозначение: Типовой проект 902-4-8м.83
Обозначение англ: 902-4-8м.83
Статус:не определен законодательством
Название рус.:Альбом V. Электротехническая часть. Чертежи монтажной зоны и заготовительного участка (из ТП 902-4-7.83)
Дата добавления в базу:01.09.2013
Дата актуализации:05.05.2017
Дата введения:27.06.1983
Оглавление:ТП 902-4-7.83 ЭМ-1 Общие данные
ТП 902-4-7.83 ЭМ-2 Схема питания электрооборудования. Лист 1
ТП 902-4-7.83 ЭМ-3 Схема питания электрооборудования. Лист 2
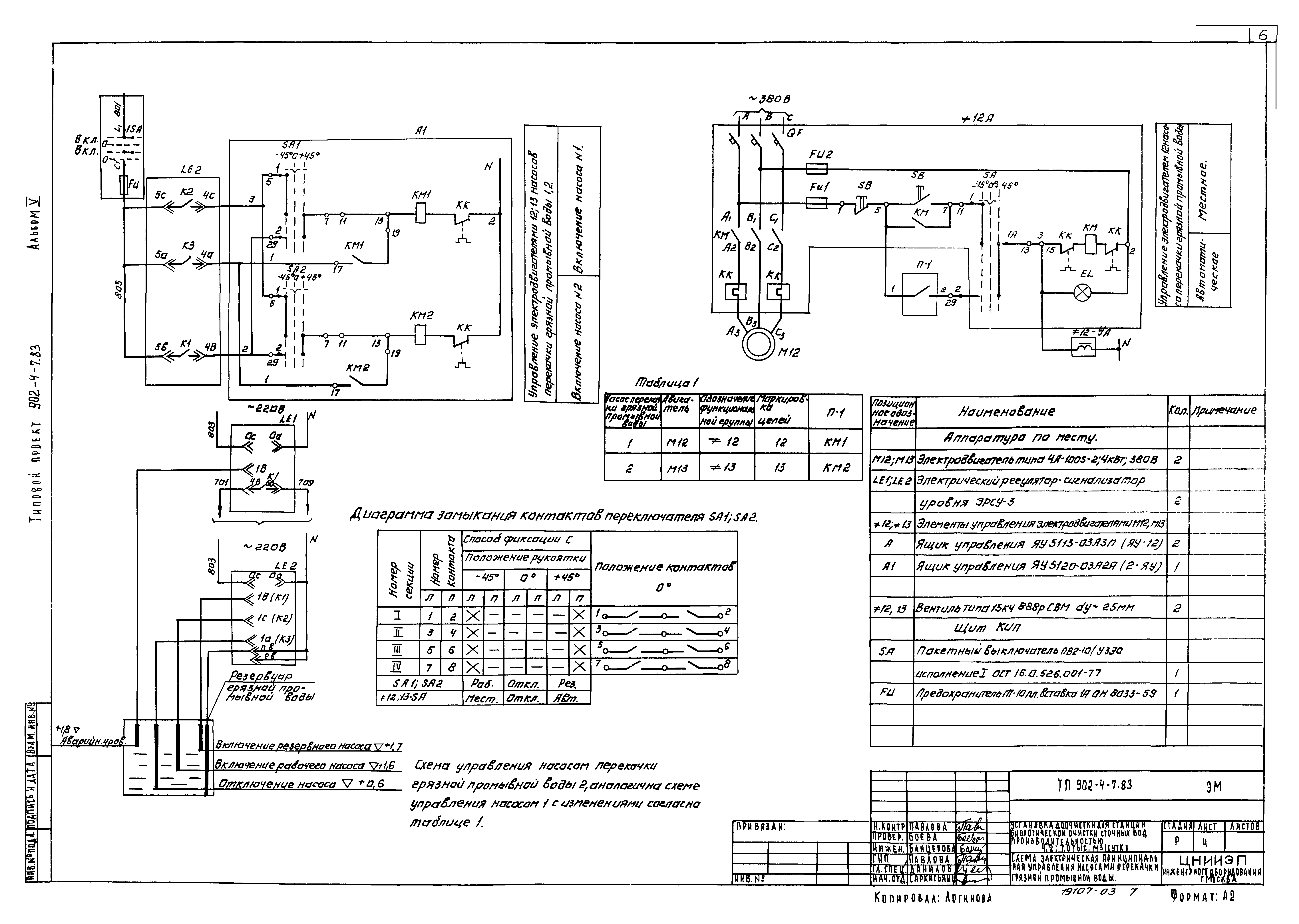
ТП 902-4-7.83 ЭМ-4 Схема электрическая принципиальная управления насосами перекачки грязной промывной воды
ТП 902-4-7.83 ЭМ-5 Схема электрическая принципиальная управления насосами подачи воды на фильтрацию
ТП 902-4-7.83 ЭМ-6 Схема электрическая принципиальная управления дренажными насосами
ТП 902-4-7.83 ЭМ-7 Схемы электрические принципиальные управления барабанной сеткой и насосом подачи технической воды на промывку барабанных сеток
ТП 902-4-7.83 ЭМ-8 Схема электрическая принципиальная управления приточной системой. Лист 1
ТП 902-4-7.83 ЭМ-9 Схема электрическая принципиальная управления приточной системой. Лист 2
ТП 902-4-7.83 ЭМ-10 Схема электрическая принципиальная аварийной сигнализации
ТП 902-4-7.83 ЭМ-11 Схема подключения электрооборудования. Лист 1
ТП 902-4-7.83 ЭМ-12 Схема подключения электрооборудования. Лист 2
ТП 902-4-7.83 ЭМ-13 Схема подключения электрооборудования. Лист 3
ТП 902-4-7.83 ЭМ-14 Схема подключения электрооборудования. Лист 4
ТП 902-4-7.83 ЭМ-15 Кабельный журнал. Лист 1
ТП 902-4-7.83 ЭМ-16 Кабельный журнал. Лист 2
ТП 902-4-7.83 ЭМ-17 Кабельный журнал. Лист 3
ТП 902-4-7.83 ЭМ-18 Размещение электрооборудования и прокладка кабеля. План на отм. 0.000
ТП 902-4-7.83 ЭМ-19 Размещение электрооборудования и прокладка кабеля. План на отм. 3.600. Спецификация
ТП 902-4-7.83 ЭО-1 Общие данные
ТП 902-4-7.83 ЭО-2 Электрическое освещение. План на отм. 0.000 и 3.600
ТП 902-4-7.83 ЭО-3 Спецификация
ТП 902-4-7.83 АТХ-1 Общие данные
ТП 902-4-7.83 АТХ-2 Схема функциональная. Лист 1. Схема питания приборов
ТП 902-4-7.83 АТХ-3 Схема функциональная. Лист 2
ТП 902-4-7.83 АТХ-4 Схема подключения приборов технологического контроля
ТП 902-4-7.83 АТХ-5 Схема подключения приборов технологического контроля
ТП 902-4-7.83 АТХ-6 Размещение приборов технологического контроля и раскладка кабеля. План на отм. 0.000 и 3.600. Спецификация
ТП 902-4-7.83 СС-1 Общие данные. План на отм. 0.000 с сетями связи. План на отм. 3.600 с сетями связи
Разработан: ЦНИИЭП иженерного оборудования
Утверждён:14.02.1983 Госгражданстрой (Gosgrazhdanstroy 49)
Расположен в:Техническая документация Строительство Справочные документы Типовые строительные конструкции, изделия и узлы Общероссийский строительный каталог Промышленные предприятия, здания и сооружения Здания и сооружения санитарно-технические Канализация Сооружения доочистки Сооружения доочистки сточных вод для трассы БАМ
Типовой проект 902-4-8м.83Типовой проект 902-4-8м.83Типовой проект 902-4-8м.83Типовой проект 902-4-8м.83Типовой проект 902-4-8м.83Типовой проект 902-4-8м.83Типовой проект 902-4-8м.83Типовой проект 902-4-8м.83Типовой проект 902-4-8м.83Типовой проект 902-4-8м.83Типовой проект 902-4-8м.83Типовой проект 902-4-8м.83Типовой проект 902-4-8м.83Типовой проект 902-4-8м.83Типовой проект 902-4-8м.83Типовой проект 902-4-8м.83Типовой проект 902-4-8м.83Типовой проект 902-4-8м.83Типовой проект 902-4-8м.83Типовой проект 902-4-8м.83Типовой проект 902-4-8м.83Типовой проект 902-4-8м.83Типовой проект 902-4-8м.83Типовой проект 902-4-8м.83Типовой проект 902-4-8м.83Типовой проект 902-4-8м.83Типовой проект 902-4-8м.83Типовой проект 902-4-8м.83Типовой проект 902-4-8м.83Типовой проект 902-4-8м.83Типовой проект 902-4-8м.83Типовой проект 902-4-8м.83Типовой проект 902-4-8м.83

© 2013 Ёшкин Кот :-) Карта сайта