Информационная система
«Ёшкин Кот»

Скачать базу одним архивом
Скачать обновления
История создания базы
Карта сайта

Скачать Типовой проект 902-4-8м.83 Альбом IV. Строительная часть. Изделия (из ТП 902-4-5.83)

Дата актуализации: 10.08.2017

Типовой проект 902-4-8м.83

Альбом IV. Строительная часть. Изделия (из ТП 902-4-5.83)

Обозначение: Типовой проект 902-4-8м.83
Обозначение англ: 902-4-8м.83
Статус:не определен законодательством
Название рус.:Альбом IV. Строительная часть. Изделия (из ТП 902-4-5.83)
Дата добавления в базу:01.09.2013
Дата актуализации:05.05.2017
Дата введения:27.06.1983
Оглавление:ТП 902-4-5.83-КЖИ.Б1 Балка покрытия
ТП 902-4-5.83-КЖИ.Б2 Балка покрытия
ТП 902-4-5.83-КЖИ.К1 Колонна
ТП 902-4-5.83-КЖИ.К2 Колонна
ТП 902-4-5.83-КЖИ.К3 Колонна (К3,К5)
ТП 902-4-5.83-КЖИ.К4 Колонна
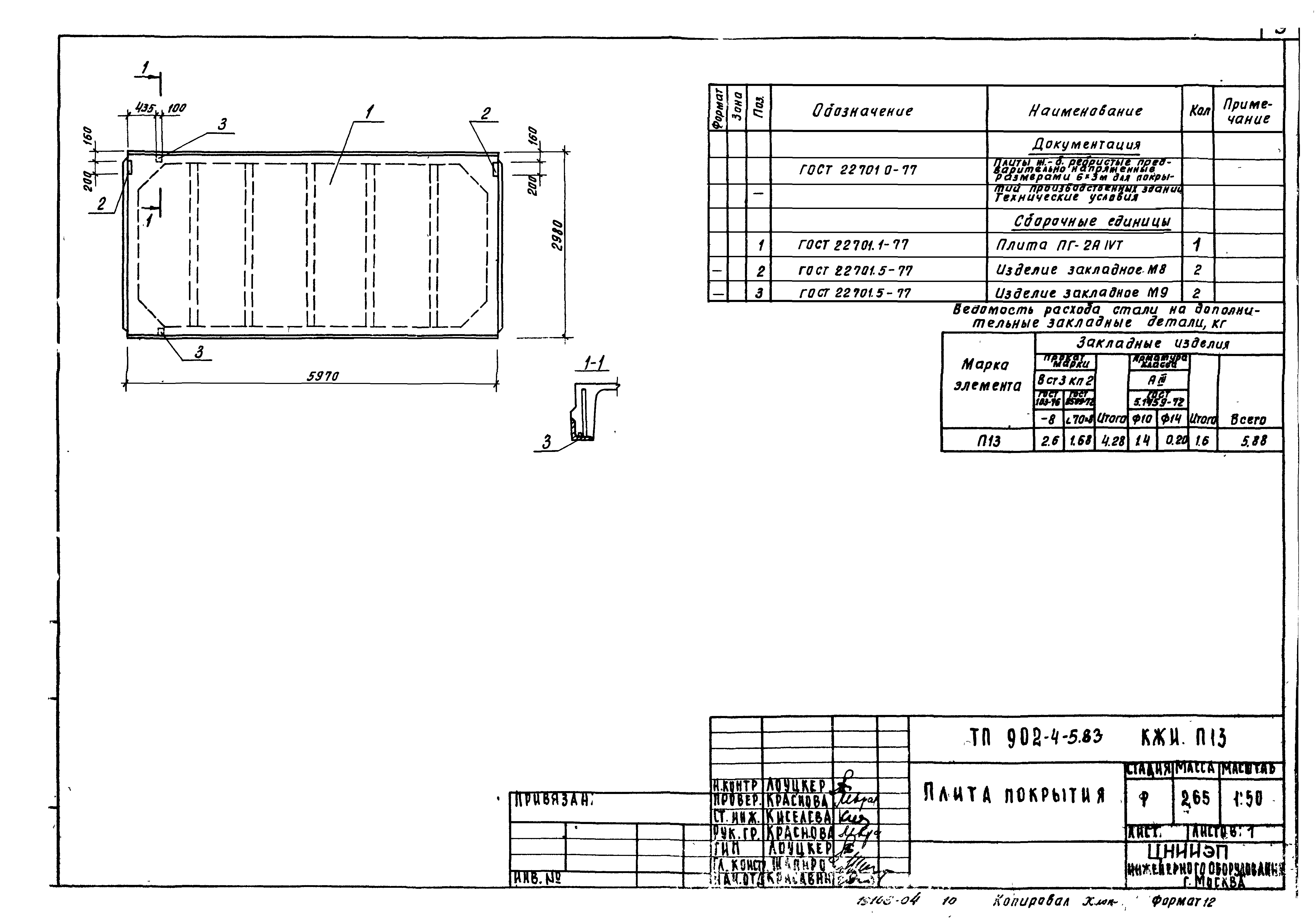
ТП 902-4-5.83-КЖИ.П13 Плита покрытия
ТП 902-4-5.83-КЖИ.П14 Плита покрытия
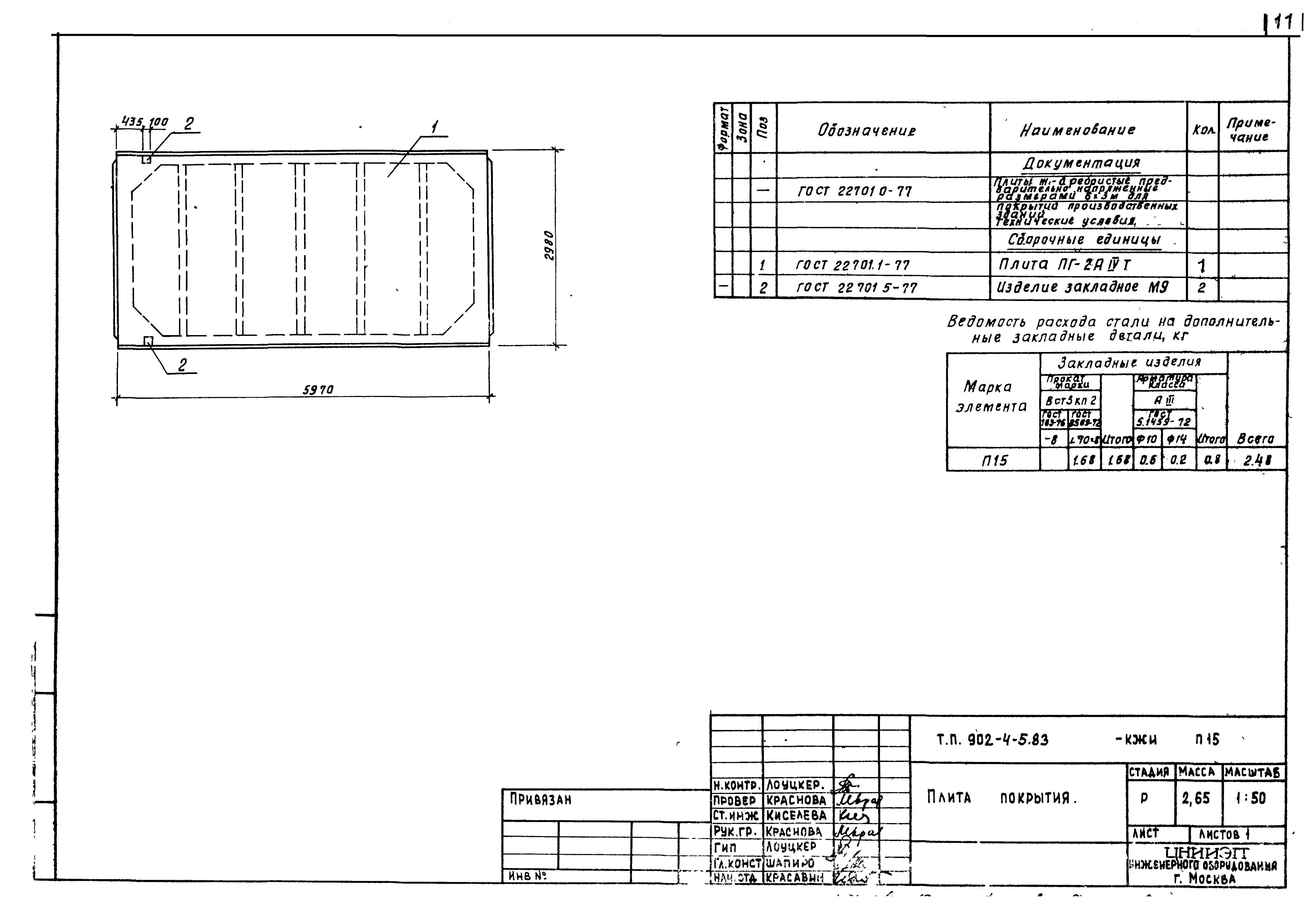
ТП 902-4-5.83-КЖИ.П15 Плита покрытия
ТП 902-4-5.83-КЖИ.П16 Плита покрытия
ТП 902-4-5.83-КЖИ.П17 Плита покрытия
ТП 902-4-5.83-КЖИ.ПС8 Плита
ТП 902-4-5.83-КЖИ.ПС9 Плита (ПС9,ПС10)
ТП 902-4-5.83-КЖИ.ПС11 Панель (ПС11,ПС12)
ТП 902-4-5.83-КЖИ.ПС13 Панель (ПС13,ПС14,ПС15,ПС16,ПС17,ПС18)
ТП 902-4-5.83-КЖИ.СП1 Сетка арматурная
ТП 902-4-5.83-КЖИ.СП2 Сетка арматурная
ТП 902-4-5.83-КЖИ.КП1 Каркас пространственный
ТП 902-4-5.83-КЖИ.КР1 Каркас плоский
ТП 902-4-5.83-КЖИ.КП2 Каркас пространственный
ТП 902-4-5.83-КЖИ.КП3 Каркас пространственный
ТП 902-4-5.83-КЖИ.КП4 Каркас пространственный
ТП 902-4-5.83-КЖИ.КР2 Каркас плоский
ТП 902-4-5.83-КЖИ.КП5 Каркас пространственный
ТП 902-4-5.83-КЖИ.КР3 Каркас плоский
ТП 902-4-5.83-КЖИ.П1 Петля для подъема
ТП 902-4-5.83-КЖИ.П2 Петля для подъема
ТП 902-4-5.83-КЖИ.ПС19 Панель (ПС19,ПС20,ПС21,ПС22)
ТП 902-4-5.83-КЖИ.ПС23 Панель стеновая
ТП 902-4-5.83-КЖИ.ПС24 Панель стеновая
ТП 902-4-5.83-КЖИ.ЛТ1 Лоток
ТП 902-4-5.83-КЖИ.П10 Плита
ТП 902-4-5.83-КЖИ.МН1 Изделие закладное
ТП 902-4-5.83-КЖИ.РМ2 Изделие закладное
ТП 902-4-5.83-КЖИ.РМ1 СБ Изделие закладное (РМ1,РМ3)
ТП 902-4-5.83-КЖИ.РМ Изделие закладное (РМ1,РМ3)
ТП 902-4-5.83-КЖИ.МС1 Изделие закладное
ТП 902-4-5.83-КЖИ.МН2 Изделие закладное
ТП 902-4-5.83-КЖИ.С2 Сетка арматурная
ТП 902-4-5.83-КЖИ.С1 Сетка арматурная
ТП 902-4-5.83-КЖИ.КП6 Каркас пространственный
ТП 902-4-5.83-КЖИ.КП6.С3 Сетка арматурная
ТП 902-4-5.83-КЖИ.КП6.С4 Сетка арматурная
ТП 902-4-5.83-КЖИ.СП5 Сетка арматурная
ТП 902-4-5.83-КЖИ.СП3 Сетка арматурная
ТП 902-4-5.83-КЖИ.СП4 Сетка арматурная
ТП 902-4-5.83-КЖИ.МС2 Изделие закладное (МС2,МС3,МС4)
Разработан: ЦНИИЭП иженерного оборудования
Утверждён:14.02.1983 Госгражданстрой (Gosgrazhdanstroy 49)
Расположен в:Техническая документация Строительство Справочные документы Типовые строительные конструкции, изделия и узлы Общероссийский строительный каталог Промышленные предприятия, здания и сооружения Здания и сооружения санитарно-технические Канализация Сооружения доочистки Сооружения доочистки сточных вод для трассы БАМ
Типовой проект 902-4-8м.83Типовой проект 902-4-8м.83Типовой проект 902-4-8м.83Типовой проект 902-4-8м.83Типовой проект 902-4-8м.83Типовой проект 902-4-8м.83Типовой проект 902-4-8м.83Типовой проект 902-4-8м.83Типовой проект 902-4-8м.83Типовой проект 902-4-8м.83Типовой проект 902-4-8м.83Типовой проект 902-4-8м.83Типовой проект 902-4-8м.83Типовой проект 902-4-8м.83Типовой проект 902-4-8м.83Типовой проект 902-4-8м.83Типовой проект 902-4-8м.83Типовой проект 902-4-8м.83Типовой проект 902-4-8м.83Типовой проект 902-4-8м.83Типовой проект 902-4-8м.83Типовой проект 902-4-8м.83Типовой проект 902-4-8м.83Типовой проект 902-4-8м.83Типовой проект 902-4-8м.83Типовой проект 902-4-8м.83Типовой проект 902-4-8м.83Типовой проект 902-4-8м.83Типовой проект 902-4-8м.83Типовой проект 902-4-8м.83Типовой проект 902-4-8м.83Типовой проект 902-4-8м.83Типовой проект 902-4-8м.83Типовой проект 902-4-8м.83Типовой проект 902-4-8м.83Типовой проект 902-4-8м.83Типовой проект 902-4-8м.83

© 2013 Ёшкин Кот :-) Карта сайта