Информационная система
«Ёшкин Кот»

Скачать базу одним архивом
Скачать обновления
История создания базы
Карта сайта

Скачать Типовой проект 902-2-396.86 Альбом II. Технологическая и электротехническая части (из ТП 902-2-394.86)

Дата актуализации: 10.08.2017

Типовой проект 902-2-396.86

Альбом II. Технологическая и электротехническая части (из ТП 902-2-394.86)

Обозначение: Типовой проект 902-2-396.86
Обозначение англ: 902-2-396.86
Статус:не определен законодательством
Название рус.:Альбом II. Технологическая и электротехническая части (из ТП 902-2-394.86)
Дата добавления в базу:01.09.2013
Дата актуализации:05.05.2017
Дата введения:09.01.1986
Оглавление:ТП 902-2-394.86 Содержание альбома
ТП 902-2-394.86 НК Технологическая часть
ТП 902-2-394.86 НК-1 Общие данные
ТП 902-2-394.86 НК-2 Монтажный чертеж. Указания по привязке монтажных чертежей. Спецификация
ТП 902-2-394.86 НК-3 Монтажный чертеж. Спецификация
ТП 902-2-394.86 НК-4 Монтажный чертеж. Спецификация
ТП 902-2-394.86 НК-5 Монтажный чертеж. План одной секции аэротенка. Разрезы
ТП 902-2-394.86 НК-6 Монтажный чертеж. Разрезы
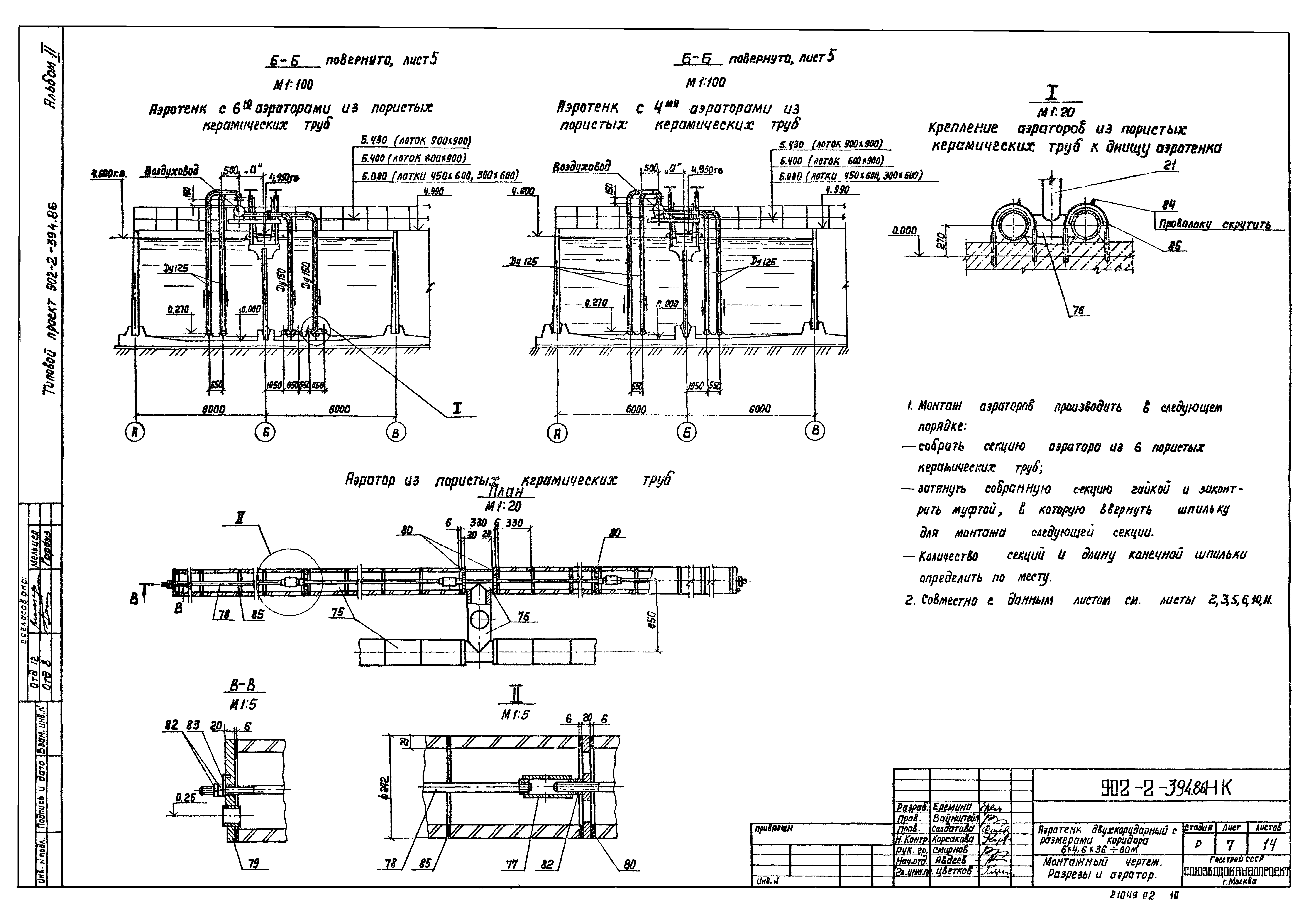
ТП 902-2-394.86 НК-7 Монтажный чертеж. Разрезы и аэратор
ТП 902-2-394.86 НК-8 Аксонометрическая схема воздуховодов и аэраторов из пористых керамических пластин. 4 ряда аэраторов
ТП 902-2-394.86 НК-9 Аксонометрическая схема воздуховодов и аэраторов из пористых керамических пластин. 6 рядов аэраторов
ТП 902-2-394.86 НК-10 Аксонометрическая схема воздуховодов и аэраторов из пористых керамических труб. 4 ряда аэраторов
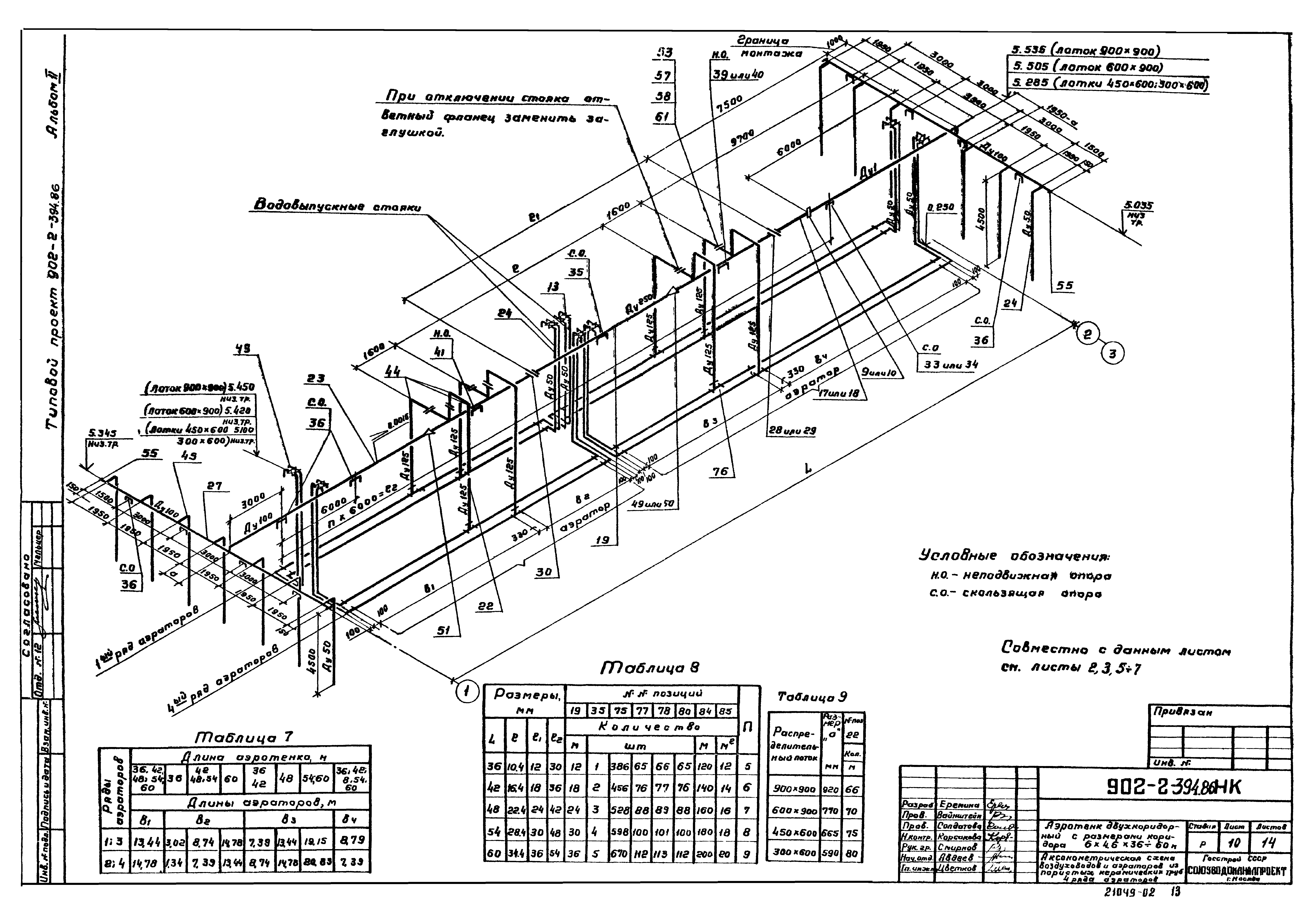
ТП 902-2-394.86 НК-11 Аксонометрическая схема воздуховодов и аэраторов из пористых керамических труб. 6 рядов аэраторов
ТП 902-2-394.86 НК-12 Монтажный чертеж. Камера распределения ила с помощью эрлифтов. План. Разрезы
ТП 902-2-394.86 НК-13 Монтажный чертеж. Камера распределения ила с помощью насосов. План. Разрезы
ТП 902-2-394.86 НК-14 Отопление шкафов КИП сжатым воздухом. План. Детали и узлы
ТП 902-2-394.86 ЭК Электротехническая часть
ТП 902-2-394.86 ЭК-1 Общие данные
ТП 902-2-394.86 ЭК-2 Спецификация
ТП 902-2-394.86 ЭК-3 Схема принципиальная технологического контроля
ТП 902-2-394.86 ЭК-4 Камеры распределения активного ила. Схема принципиальная технологического контроля
ТП 902-2-394.86 ЭК-5 Схема электрических проводок
ТП 902-2-394.86 ЭК-6 Схема электрических и трубных проводок
ТП 902-2-394.86 ЭК-7 Камеры распределения активного ила №№ 1,2,7,8(3,6,9,12). Схема электрических и трубных проводок
ТП 902-2-394.86 ЭК-8 Камеры распределения активного ила №№ 4,10(5,11) Схема электрических и трубных проводок
ТП 902-2-394.86 ЭК-9 Расположение оборудования КИП и прокладка кабелей и труб
ТП 902-2-394.86 ЭК-10 Расположение оборудования КИП и прокладка кабелей и труб в камерах распределения ила
ТП 902-2-394.86 ЭК-11 Шкаф обогреваемый 1-Ш2(Ш5)...□-Ш2(Ш5). Схема соединений
ТП 902-2-394.86 ЭК-12 Шкаф обогреваемый Ш3(Ш4). Схема соединений
ТП 902-2-394.86 ЭК-13 Установка преобразователя К-215 и блока управления БУ-1 в обогреваемом шкафу
ТП 902-2-394.86 ЭК-14 Установка дифманометра ДТНМП-100 в обогреваемом шкафу
Разработан: Союзводоканалпроект
Утверждён:20.09.1984 Союзводоканалпроект (Soyuzvodokanalproject 46)
Расположен в:Техническая документация Строительство Справочные документы Типовые строительные конструкции, изделия и узлы Общероссийский строительный каталог Промышленные предприятия, здания и сооружения Здания и сооружения санитарно-технические Канализация Сооружения биологической (биохимической) очистки Аэротенки, аэрируемые биопруды, аэроакселаторы
Заменяет собой:
Типовой проект 902-2-396.86Типовой проект 902-2-396.86Типовой проект 902-2-396.86Типовой проект 902-2-396.86Типовой проект 902-2-396.86Типовой проект 902-2-396.86Типовой проект 902-2-396.86Типовой проект 902-2-396.86Типовой проект 902-2-396.86Типовой проект 902-2-396.86Типовой проект 902-2-396.86Типовой проект 902-2-396.86Типовой проект 902-2-396.86Типовой проект 902-2-396.86Типовой проект 902-2-396.86Типовой проект 902-2-396.86Типовой проект 902-2-396.86Типовой проект 902-2-396.86Типовой проект 902-2-396.86Типовой проект 902-2-396.86Типовой проект 902-2-396.86Типовой проект 902-2-396.86Типовой проект 902-2-396.86Типовой проект 902-2-396.86Типовой проект 902-2-396.86Типовой проект 902-2-396.86Типовой проект 902-2-396.86Типовой проект 902-2-396.86Типовой проект 902-2-396.86Типовой проект 902-2-396.86Типовой проект 902-2-396.86Типовой проект 902-2-396.86

© 2013 Ёшкин Кот :-) Карта сайта