Информационная система
«Ёшкин Кот»

Скачать базу одним архивом
Скачать обновления
История создания базы
Карта сайта

Скачать Типовой проект 902-1-104.86 Альбом 2. Технологические решения. Внутренний водопровод и канализация. Отопление и вентиляция

Дата актуализации: 10.08.2017

Типовой проект 902-1-104.86

Альбом 2. Технологические решения. Внутренний водопровод и канализация. Отопление и вентиляция

Обозначение: Типовой проект 902-1-104.86
Обозначение англ: 902-1-104.86
Статус:не определен законодательством
Название рус.:Альбом 2. Технологические решения. Внутренний водопровод и канализация. Отопление и вентиляция
Дата добавления в базу:01.09.2013
Дата актуализации:05.05.2017
Дата введения:27.10.1986
Оглавление:ТП 902-1-104.86 Содержание альбома
ТП 902-1-104.86-ТХ Основной комплект марки ТХ
ТП 902-1-104.86-ТХ Общие данные
ТП 902-1-104.86-ТХ План на отм. 0.000
ТП 902-1-104.86-ТХ Система технологических трубопроводов. Планы на отм. -1.600 и -5.600
ТП 902-1-104.86-ТХ Система технологических трубопроводов. План на отм. -7.150. Установка дренажного насоса
ТП 902-1-104.86-ТХ Система технологических трубопроводов. Разрез 1-1
ТП 902-1-104.86-ТХ Система технологических трубопроводов. Разрез 2-2
ТП 902-1-104.86-ТХ Система технологических трубопроводов. Разрез 3-3
ТП 902-1-104.86-ТХ Система технологических трубопроводов. Аксонометрическая схема. Узлы 1,2
ТП 902-1-104.86-ТХ Система трубопроводов технической воды. Планы на отм. - 1.600 и -5.600
ТП 902-1-104.86-ТХ Система трубопроводов технической воды. Планы на отм. - 8.050
ТП 902-1-104.86-ТХ Система трубопроводов технической воды. Аксонометрическая схема
ТП 902-1-104.86-ТХ Система трубопроводов масла. Аксонометрическая схема и схема установки
ТП 902-1-104.86-ТХ Система трубопроводов опорожнения и дренажных вод. Аксонометрические схемы
ТП 902-1-104.86-ТХ Экспликация оборудования, арматуры и трубопроводов (начало)
ТП 902-1-104.86-ТХ Экспликация оборудования, арматуры и трубопроводов (окончание)
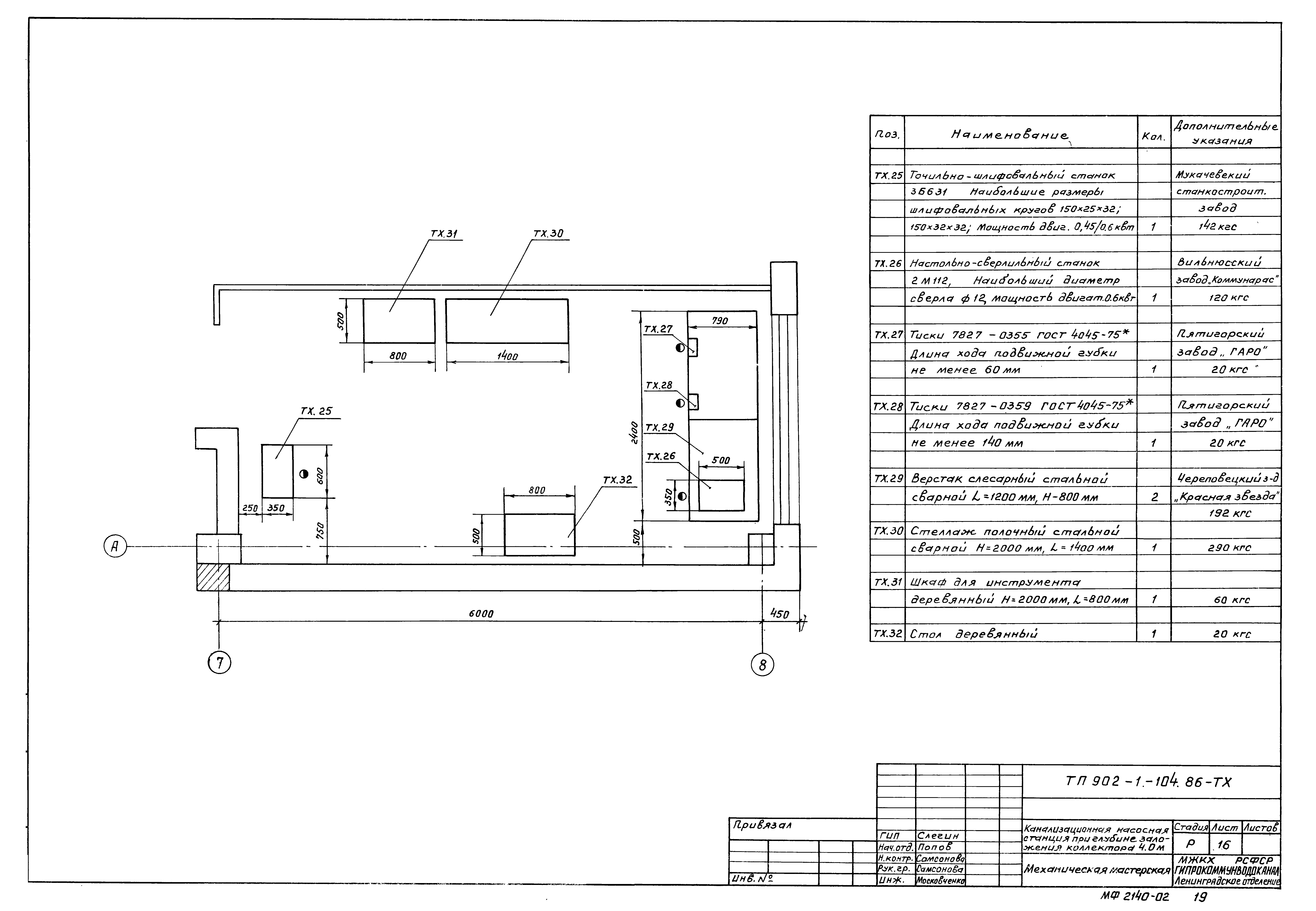
ТП 902-1-104.86-ТХ Механическая мастерская
ТП 902-1-104.86-ТХ Установка транспортера скребкового ТСН-160А
ТП 902-1-104.86-ТХ Установка насоса СДВ 2700/26,5 (ФВ2700/16.5) с электродвигателем ВАН 116/23-ВУЗ
ТП 902-1-104.86-ТХН Основной комплект марки ТХН
ТП 902-1-104.86-ТХН Щит шандора. Эскизный чертеж общего вида
ТП 902-1-104.86-ТХН Затвор щитовой 2000х2000. Эскизный чертеж общего вида
ТП 902-1-104.86-ТХН Рама направляющая для затвора щитового 2000х2000. Эскизный чертеж общего вида
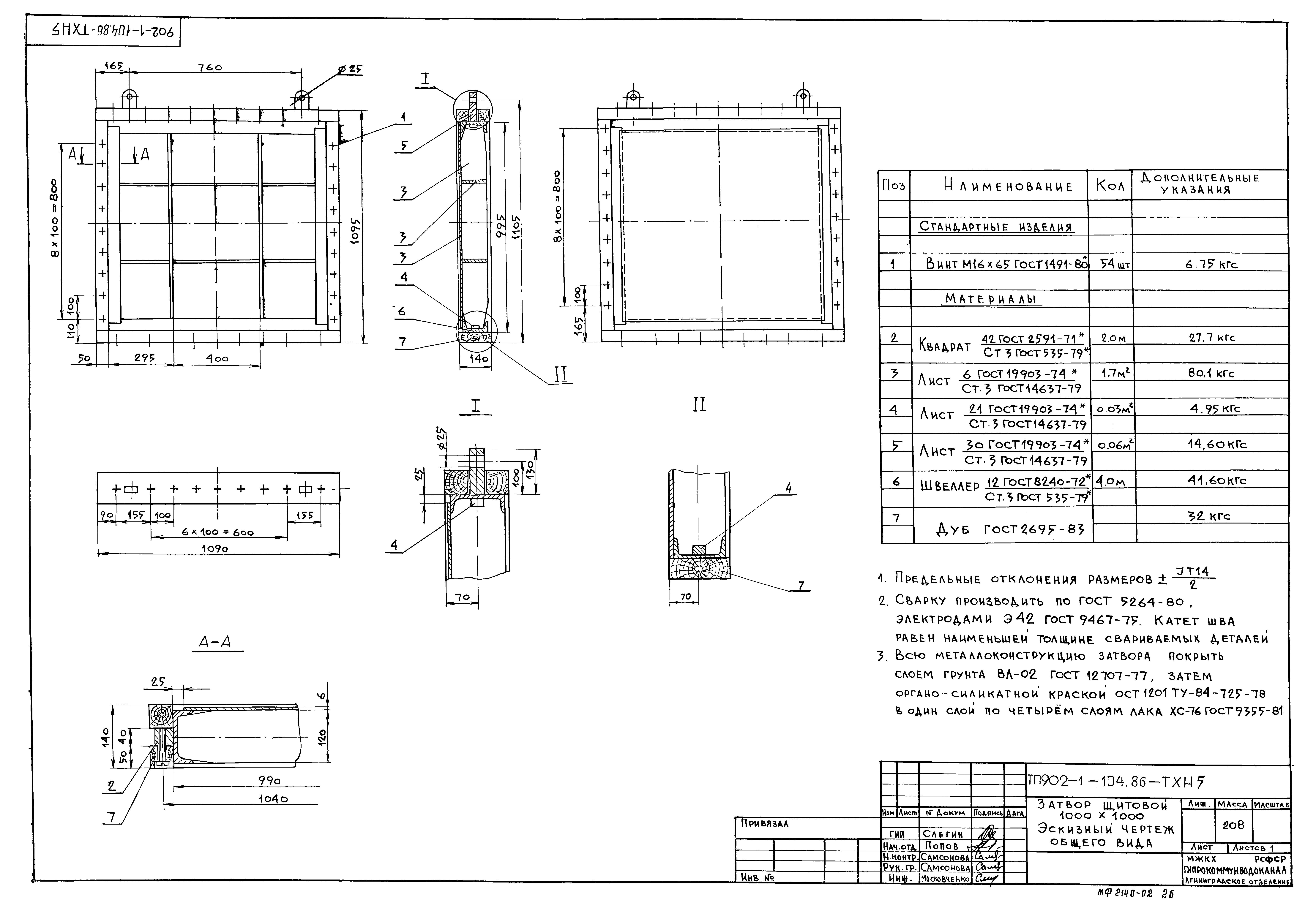
ТП 902-1-104.86-ТХН Затвор щитовой 1000х1000. Эскизный чертеж общего вида
ТП 902-1-104.86-ТХН Рама направляющая для затвора щитового 1000х1000. Эскизный чертеж общего вида
ТП 902-1-104.86-ТХН Установка бака для масла. Эскизный чертеж общего вида
ТП 902-1-104.86-ТХН Фильтр масла. Эскизный чертеж общего вида
ТП 902-1-104.86-ТХН Сортировочный стол. Эскизный чертеж общего вида
ТП 902-1-104.86-ВК Основной комплект марки ВК
ТП 902-1-104.86-ВК Общие данные
ТП 902-1-104.86-ВК План на отм. 0.000. План подземной части. Схемы сетей В1;73;К1. Водомерный узел
ТП 902-1-104.86-ВК Водоводяной подогреватель
ТП 902-1-104.86-ОВ Основной комплект марки ОВ
ТП 902-1-104.86-ОВ Общие данные (начало)
ТП 902-1-104.86-ОВ Общие данные (окончание)
ТП 902-1-104.86-ОВ Отопление. План на отм. 0.000
ТП 902-1-104.86-ОВ Схемы систем отопления
ТП 902-1-104.86-ОВ Тепловой пункт. План, разрез 1-1
ТП 902-1-104.86-ОВ Тепловой пункт. Спецификация
ТП 902-1-104.86-ОВ Вентиляция. План на отм. 0.000
ТП 902-1-104.86-ОВ Вентиляция. План на отм. - 5.600;-7.100;-8.600
ТП 902-1-104.86-ОВ Вентиляция. Разрез 1-1. Схемы систем В5;В8;В12
ТП 902-1-104.86-ОВ Вентиляция. Разрез 2-2
ТП 902-1-104.86-ОВ Вентиляция. Схемы систем П1,П2,П3,В1,В2,В3,В4,В9,В11
ТП 902-1-104.86-ОВ Вентиляция. Приточные установки П1,П3. План. Разрез 1-1
ТП 902-1-104.86-ОВ Вентиляция. Приточные установки П1,П3. Разрез 2-2. Схема системы теплоснабжения установок П1,П3
ТП 902-1-104.86-ОВ Вентиляция. Вытяжные установки В5,В8,В9,В12
ТП 902-1-104.86-ОВ Лючок с заглушкой. Чертеж общего вида
ТП 902-1-104.86-ОВ Короб воздухосборный. Чертеж общего вида
ТП 902-1-104.86-ОВ Зонт. Чертеж общего вида
Разработан: Ленинградское отделение Гипрокоммунводоканала
Утверждён:27.10.1986 МЖКХ РСФСР (462)
Расположен в:Техническая документация Строительство Справочные документы Типовые строительные конструкции, изделия и узлы Общероссийский строительный каталог Промышленные предприятия, здания и сооружения Здания и сооружения санитарно-технические Канализация Станции насосные Станции насосные для перекачки бытовых сточных вод
Типовой проект 902-1-104.86Типовой проект 902-1-104.86Типовой проект 902-1-104.86Типовой проект 902-1-104.86Типовой проект 902-1-104.86Типовой проект 902-1-104.86Типовой проект 902-1-104.86Типовой проект 902-1-104.86Типовой проект 902-1-104.86Типовой проект 902-1-104.86Типовой проект 902-1-104.86Типовой проект 902-1-104.86Типовой проект 902-1-104.86Типовой проект 902-1-104.86Типовой проект 902-1-104.86Типовой проект 902-1-104.86Типовой проект 902-1-104.86Типовой проект 902-1-104.86Типовой проект 902-1-104.86Типовой проект 902-1-104.86Типовой проект 902-1-104.86Типовой проект 902-1-104.86Типовой проект 902-1-104.86Типовой проект 902-1-104.86Типовой проект 902-1-104.86Типовой проект 902-1-104.86Типовой проект 902-1-104.86Типовой проект 902-1-104.86Типовой проект 902-1-104.86Типовой проект 902-1-104.86Типовой проект 902-1-104.86Типовой проект 902-1-104.86Типовой проект 902-1-104.86Типовой проект 902-1-104.86Типовой проект 902-1-104.86Типовой проект 902-1-104.86Типовой проект 902-1-104.86Типовой проект 902-1-104.86Типовой проект 902-1-104.86Типовой проект 902-1-104.86Типовой проект 902-1-104.86Типовой проект 902-1-104.86Типовой проект 902-1-104.86Типовой проект 902-1-104.86Типовой проект 902-1-104.86Типовой проект 902-1-104.86Типовой проект 902-1-104.86Типовой проект 902-1-104.86Типовой проект 902-1-104.86Типовой проект 902-1-104.86Типовой проект 902-1-104.86

© 2013 Ёшкин Кот :-) Карта сайта