Информационная система
«Ёшкин Кот»

Скачать базу одним архивом
Скачать обновления
История создания базы
Карта сайта

Скачать Типовой проект 903-1-199 Альбом 5.2. Котельная. Архитектурно-строительная часть. Общие чертежи (вариант закрытой установки дымососов)

Дата актуализации: 10.08.2017

Типовой проект 903-1-199

Альбом 5.2. Котельная. Архитектурно-строительная часть. Общие чертежи (вариант закрытой установки дымососов)

Обозначение: Типовой проект 903-1-199
Обозначение англ: 903-1-199
Статус:действует
Название рус.:Альбом 5.2. Котельная. Архитектурно-строительная часть. Общие чертежи (вариант закрытой установки дымососов)
Дата добавления в базу:01.09.2013
Дата актуализации:05.05.2017
Оглавление:ТП 903-1-199 Содержание альбома
ТП 903-1-199 АР Архитектурно-строительные решения
ТП 903-1-199 АР-1 Общие данные (начало)
ТП 903-1-199 АР-2 Общие данные (продолжение)
ТП 903-1-199 АР-3 Общие данные (окончание)
ТП 903-1-199 АР-4 План кровли. Планы полов на отм. 0.000 и 3.600
ТП 903-1-199 АР-5 Планы на отм. 0.000 и 3.600
ТП 903-1-199 АР-6 Разрезы 1-1,2-2. Узлы 1-4
ТП 903-1-199 АР-7 Фрагмент 1. Узел 5
ТП 903-1-199 АР-8 Фасад 1-10;А-Д;Д-А. Схемы заполнения оконных проемов ОК-1÷ОК-6
ТП 903-1-199 АР-9 Фасад 10-1. Схема заполнения оконного проема ОК-7. Фрагмент 2
ТП 903-1-199 АР-10 Фрагменты 3,4,5. Узлы 6-10
ТП 903-1-199 КЖ Конструкции железобетонные
ТП 903-1-199 КЖ-1 Общие данные (начало)
ТП 903-1-199 КЖ-2 Общие данные (продолжение)
ТП 903-1-199 КЖ-3 Общие данные (окончание)
ТП 903-1-199 КЖ-4 Схема расположения фундаментов и фундаментных балок
ТП 903-1-199 КЖ-5 Таблица нагрузок на фундаменты. Фрагменты 6-8
ТП 903-1-199 КЖ-6 Схема расположения фундаментов и фундаментных балок. Фрагменты 1-5
ТП 903-1-199 КЖ-7 ФМ1;ФМ2. Опалубка и армирование
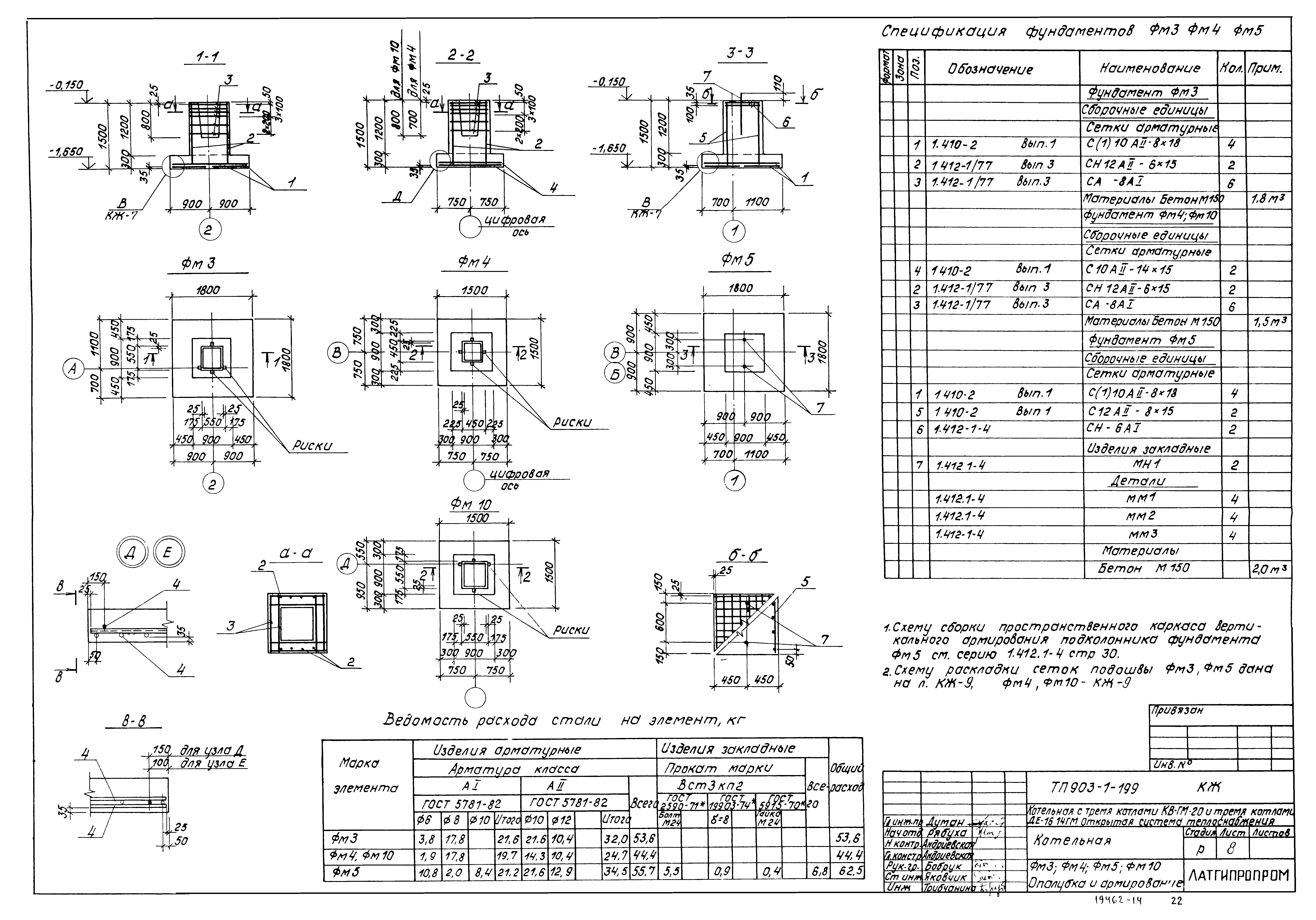
ТП 903-1-199 КЖ-8 ФМ3;ФМ4;ФМ5;ФМ10. Опалубка и армирование
ТП 903-1-199 КЖ-9 ФМ6;ФМ7;ФМ8;ФМ9. Опалубка и армирование
ТП 903-1-199 КЖ-10 Схема расположения фундаментов по осям 1,10 при строительстве по очередям ФМ11,ФМ12,ФМ13. Опалубка и армирование
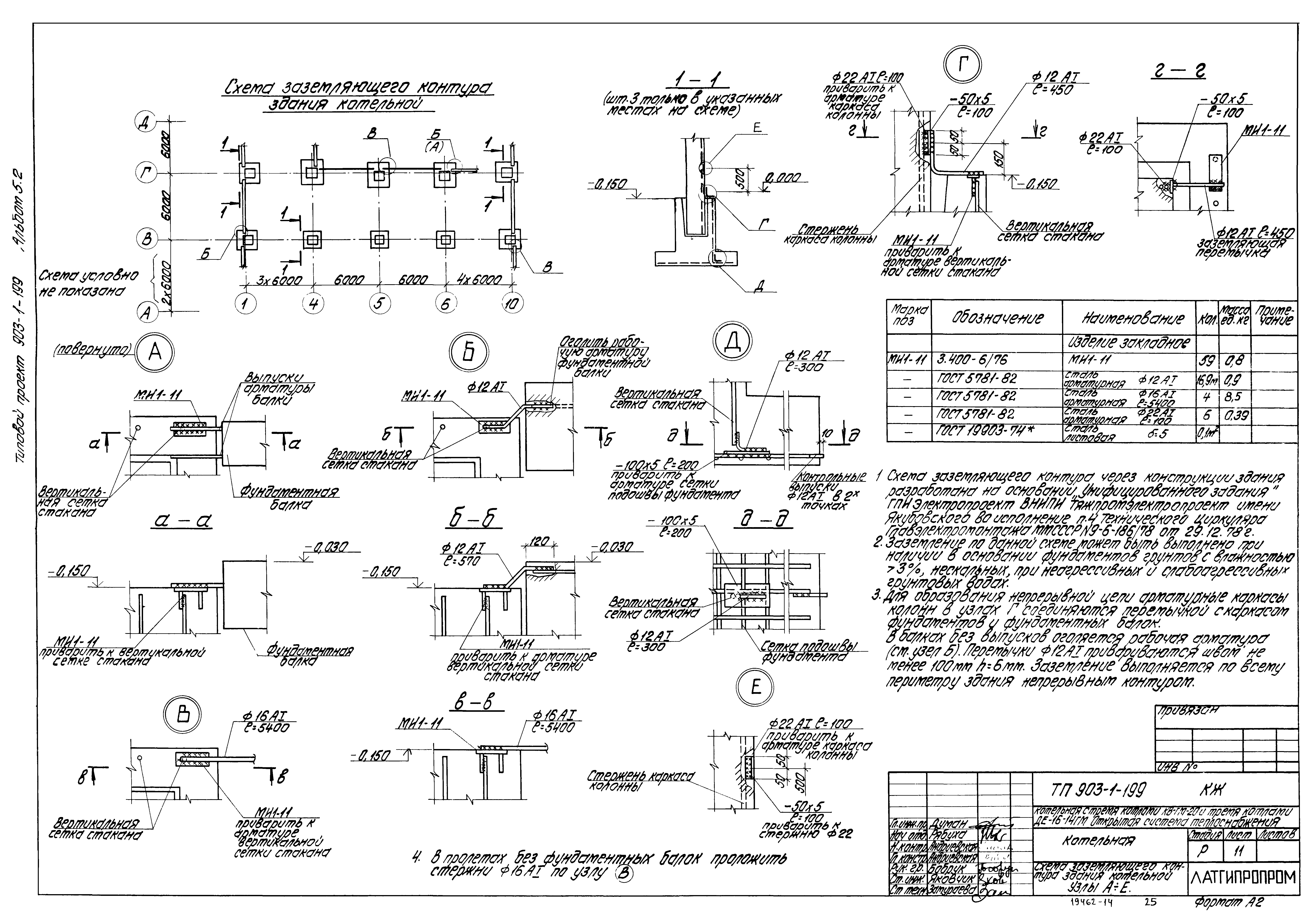
ТП 903-1-199 КЖ-11 Схема заземляющего контура здания котельной. Узлы А-Е
ТП 903-1-199 КЖ-12 Схема расположения колонн и ригелей
ТП 903-1-199 КЖ-13 Схема расположения балок покрытия и плит площадок на отм. 3.600 в осях В-Г, 4-7 и А-Б, 3-6
ТП 903-1-199 КЖ-14 Схема расположения плит покрытия. Элемент плана 1 (для ТП 903-1-199, ТП 903-1-200)
ТП 903-1-199 КЖ-15 Схема расположения плит покрытия. Элемент плана № 1 (для ТП 903-1-201, ТП 903-1-202)
ТП 903-1-199 КЖ-16 Схема расположения плит покрытия. Элемент плана №1 (для ТП 903-1-203, ТП 903-1-204)
ТП 903-1-199 КЖ-17 Разрезы 1-1÷3-3. Узлы 1-4. Сечение А-А
ТП 903-1-199 КЖ-18 Узлы 5-11
ТП 903-1-199 КЖ-19 Схемы расположения стеновых панелей по оси А;Д;4;7
ТП 903-1-199 КЖ-19 Схемы расположения стеновых панелей по осям 10;1 и стальных стоек и насадок торцевого фахверка по осям 1 и 10,7,4
ТП 903-1-199 КЖ-20 Фрагменты 1-9
ТП 903-1-199 КЖ-20 Фрагменты 10-15. Узлы 12-14
ТП 903-1-199 КЖ-23 Схемы расположения перегородок на отм. 0.000 по осям В,4,6 и на отм. 3.600 в осях А-Б
ТП 903-1-199 КЖ-24 Каркасно-обшивной вкладыш В1. Узлы 15-20
ТП 903-1-199 КЖ-25 Схема расположения закладных изделий на отм. 3.600 по оси А
ТП 903-1-199 КЖ-26 Схема расположения закладных изделий на отм. 3.600 в осях В-Г;4-7
ТП 903-1-199 КЖ-27 Монолитные участки Ум1,УМ1-1,УМ2-УМ4
ТП 903-1-199 КЖ-28 УМ5. Спецификация монолитных участков УМ1,УМ1-1,УМ2-УМ5
ТП 903-1-199 КМ Конструкции металлические
ТП 903-1-199 КМ-1 Общие данные. Ведомость металлоконструкций по видам профилей
ТП 903-1-199 КМ-2 Техническая спецификация металла
ТП 903-1-199 КМ-3 Техническая спецификация металла для специализированных заводов
ТП 903-1-199 КМ-4 Площадки МП1,МП2. Лестница МЛ1. Узел 1
ТП 903-1-199 КМ-5 Лестницы МЛ2,МЛ3. Площадка МП3. Узлы 2,3
ТП 903-1-199 КМ-6 Площадка МП4. Узлы 4,5
ТП 903-1-199 КМ-7 Схема расположения опор под трубопроводы. Элемент плана №1. Узел 34
ТП 903-1-199 КМ-8 Схема расположения подвесных путей в осях 7-10. Узлы 6-9
ТП 903-1-199 КМ-9 Узлы 10-19
ТП 903-1-199 КМ-10 Узлы 20-25
ТП 903-1-199 КМ-11 Узлы 26-31
ТП 903-1-199 КМ-12 Схема расположения опор ГРУ на отм. 3.600. Узлы 32,33
ТП 903-1-199 КМ-13 Схема расположения подвесных путей в осях 1-43,7-10
ТП 903-1-199 КМ-14 Трансформаторные утепленные ворота ВТУ-1 и двери ДТ-1
ТП 903-1-199 КМ-15 Ворота ВТУ-1 и двери ДТ-1. Узлы 34-43
ТП 903-1-199 КМ-16 Ворота ВТУ-1 и двери ДТ-1. Узлы 44-48
ТП 903-1-199 КМ-17 Ворота ВТУ-1 и двери ДТ-1. Уел 49. Клапаны КУ-1÷КУ-3. Детали А-И
Разработан: Латгипропром
Утверждён:10.11.1983 Госстрой СССР (Государственный комитет Совета Министров СССР по делам строительства) (USSR Gosstroy 41)
Расположен в:Техническая документация Строительство Справочные документы Типовые строительные конструкции, изделия и узлы Общероссийский строительный каталог Промышленные предприятия, здания и сооружения Здания и сооружения санитарно-технические Теплоснабжение Котельные установки Открытые системы теплоснабжения Топливо - газ и мазут
Типовой проект 903-1-199Типовой проект 903-1-199Типовой проект 903-1-199Типовой проект 903-1-199Типовой проект 903-1-199Типовой проект 903-1-199Типовой проект 903-1-199Типовой проект 903-1-199Типовой проект 903-1-199Типовой проект 903-1-199Типовой проект 903-1-199Типовой проект 903-1-199Типовой проект 903-1-199Типовой проект 903-1-199Типовой проект 903-1-199Типовой проект 903-1-199Типовой проект 903-1-199Типовой проект 903-1-199Типовой проект 903-1-199Типовой проект 903-1-199Типовой проект 903-1-199Типовой проект 903-1-199Типовой проект 903-1-199Типовой проект 903-1-199Типовой проект 903-1-199Типовой проект 903-1-199Типовой проект 903-1-199Типовой проект 903-1-199Типовой проект 903-1-199Типовой проект 903-1-199Типовой проект 903-1-199Типовой проект 903-1-199Типовой проект 903-1-199Типовой проект 903-1-199Типовой проект 903-1-199Типовой проект 903-1-199Типовой проект 903-1-199Типовой проект 903-1-199Типовой проект 903-1-199Типовой проект 903-1-199Типовой проект 903-1-199Типовой проект 903-1-199Типовой проект 903-1-199Типовой проект 903-1-199Типовой проект 903-1-199Типовой проект 903-1-199Типовой проект 903-1-199Типовой проект 903-1-199Типовой проект 903-1-199Типовой проект 903-1-199Типовой проект 903-1-199Типовой проект 903-1-199Типовой проект 903-1-199Типовой проект 903-1-199Типовой проект 903-1-199Типовой проект 903-1-199Типовой проект 903-1-199Типовой проект 903-1-199Типовой проект 903-1-199Типовой проект 903-1-199

© 2013 Ёшкин Кот :-) Карта сайта