Информационная система
«Ёшкин Кот»

Скачать базу одним архивом
Скачать обновления
История создания базы
Карта сайта

Скачать Типовой проект 902-2-152 Альбом I. Пояснительная записка и чертежи

Дата актуализации: 10.08.2017

Типовой проект 902-2-152

Альбом I. Пояснительная записка и чертежи

Обозначение: Типовой проект 902-2-152
Обозначение англ: 902-2-152
Статус:не действует
Название рус.:Альбом I. Пояснительная записка и чертежи
Дата добавления в базу:01.09.2013
Дата актуализации:05.05.2017
Оглавление:ТП 902-2-152 ПЗ-1 Содержание альбома
ТП 902-2-152 ПЗ-2 Заглавный лист
ТП 902-2-152 ПЗ-3÷ПЗ-9 Пояснительная записка
ТП 902-2-152 АС Архитектурно-строительные чертежи
ТП 902-2-152 АС-1 Компоновка из 2-х осветителей. Свободная выборка материалов
ТП 902-2-152 АС-2 Компоновка из 4-х осветителей. Свободная выборка материалов
ТП 902-2-152 АС-3 Компоновка из 2-х осветителей. Спецификация железобетонных и стальных элементов
ТП 902-2-152 АС-4 Компоновка из 4-х осветителей. Спецификация железобетонных и стальных элементов
ТП 902-2-152 АС-5 Общий вид. План. Разрез
ТП 902-2-152 АС-6 Узлы №№1,2,3
ТП 902-2-152 АС-7 Узлы №№4,5 и разрез 3-3
ТП 902-2-152 АС-8 Узлы №№6,7 и разрез 4-4
ТП 902-2-152 АС-9 Днище. План раскладки арматуры. Разрез. Узлы и сечения
ТП 902-2-152 АС-10 Стенка. Армирование
ТП 902-2-152 АС-11 Днище, стенка. Общая спецификация арматуры
ТП 902-2-152 АС-12 Балка Б-1. Армирование, спецификация арматуры
ТП 902-2-152 АС-13 Флокуляционная камера. Балка БМ-1Площадка для обслуживания. Спецификация пиломатериалов
ТП 902-2-152 АС-14 Лестница М-4. Ограждение. Спецификация и выборка стали
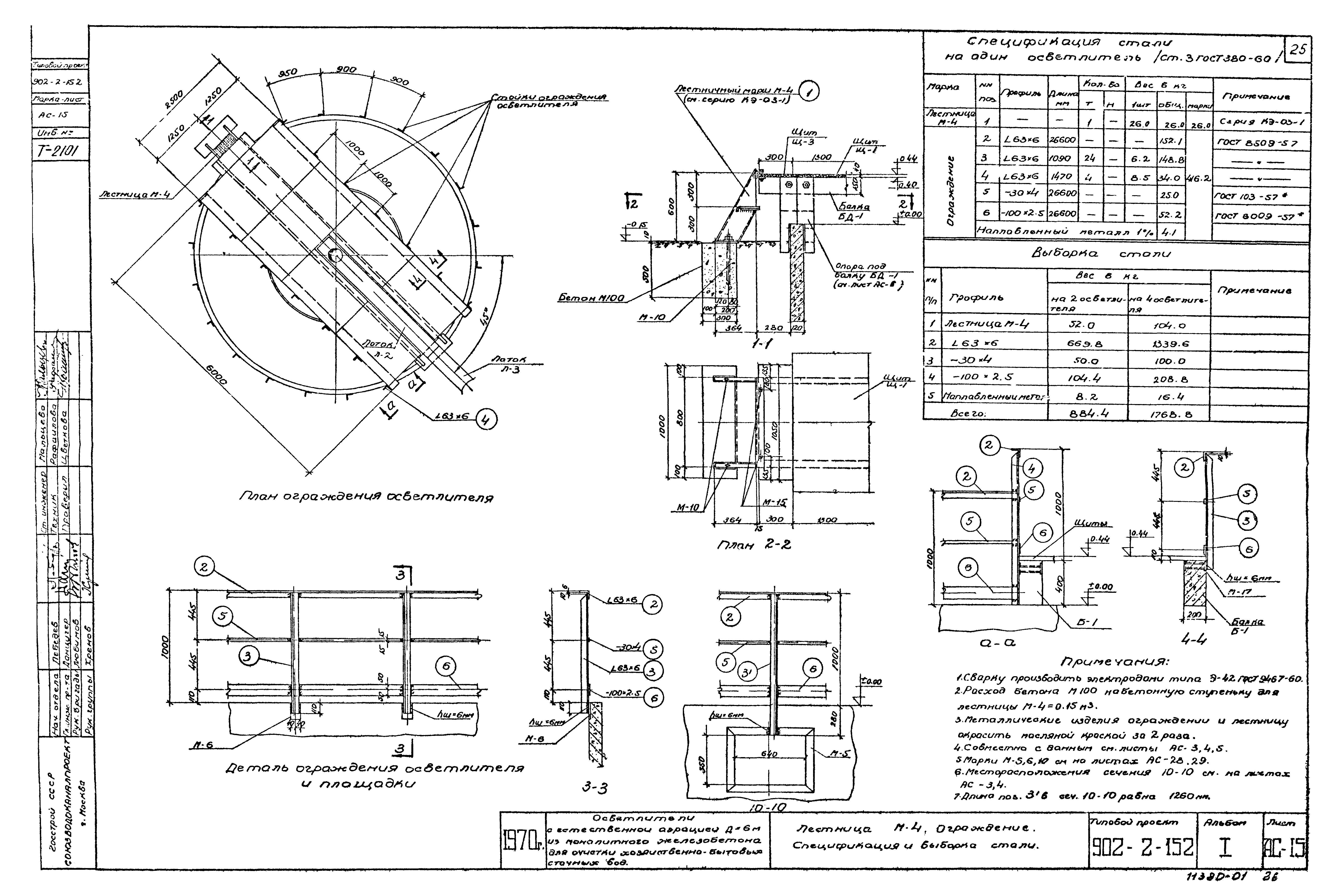
ТП 902-2-152 АС-15 Лестница М-4. Ограждение. Спецификация и выборка стали
ТП 902-2-152 АС-16 Лотки Л-1,Л-2,Л-3,Л-4,Л-5,Л-6. Общие виды. Армирование
ТП 902-2-152 АС-17 Лотки Л-1,Л-2,Л-3,Л-4,Л-5,Л-6. Сетки
ТП 902-2-152 АС-18 Лотки Л-1,Л-2,Л-3,Л-4,Л-5,Л-6. Спецификация арматуры
ТП 902-2-152 АС-19 Лоток Л-1А. Армирование
ТП 902-2-152 АС-20 Распределительная камера. Общий вид
ТП 902-2-152 АС-21 Распределительная камера. Армирование
ТП 902-2-152 АС-22 Распределительная камера. Сетки, спецификация арматуры
ТП 902-2-152 АС-23 Лоток ЛМ-1. Общий вид. План. Разрез
ТП 902-2-152 АС-24 Лоток ЛМ-1. Опалубочный чертеж. Сечения
ТП 902-2-152 АС-25 Лоток ЛМ-1. Армирование
ТП 902-2-152 АС-26 Лоток ЛМ-1. Сечения. Спецификация арматуры
ТП 902-2-152 АС-27 Иловые колодцы №1 и №2
ТП 902-2-152 АС-28 Закладные элементы и металлоизделия марок М-1÷М-12
ТП 902-2-152 АС-29 Закладные элементы и металлоизделия марок М-1÷М-18. Спецификация и таблица отправочных марок М-1÷М-18
ТП 902-2-152 АС-30 Устройство дренажа конусной части осветлителя
ТП 902-2-152 ТК Технологические чертежи
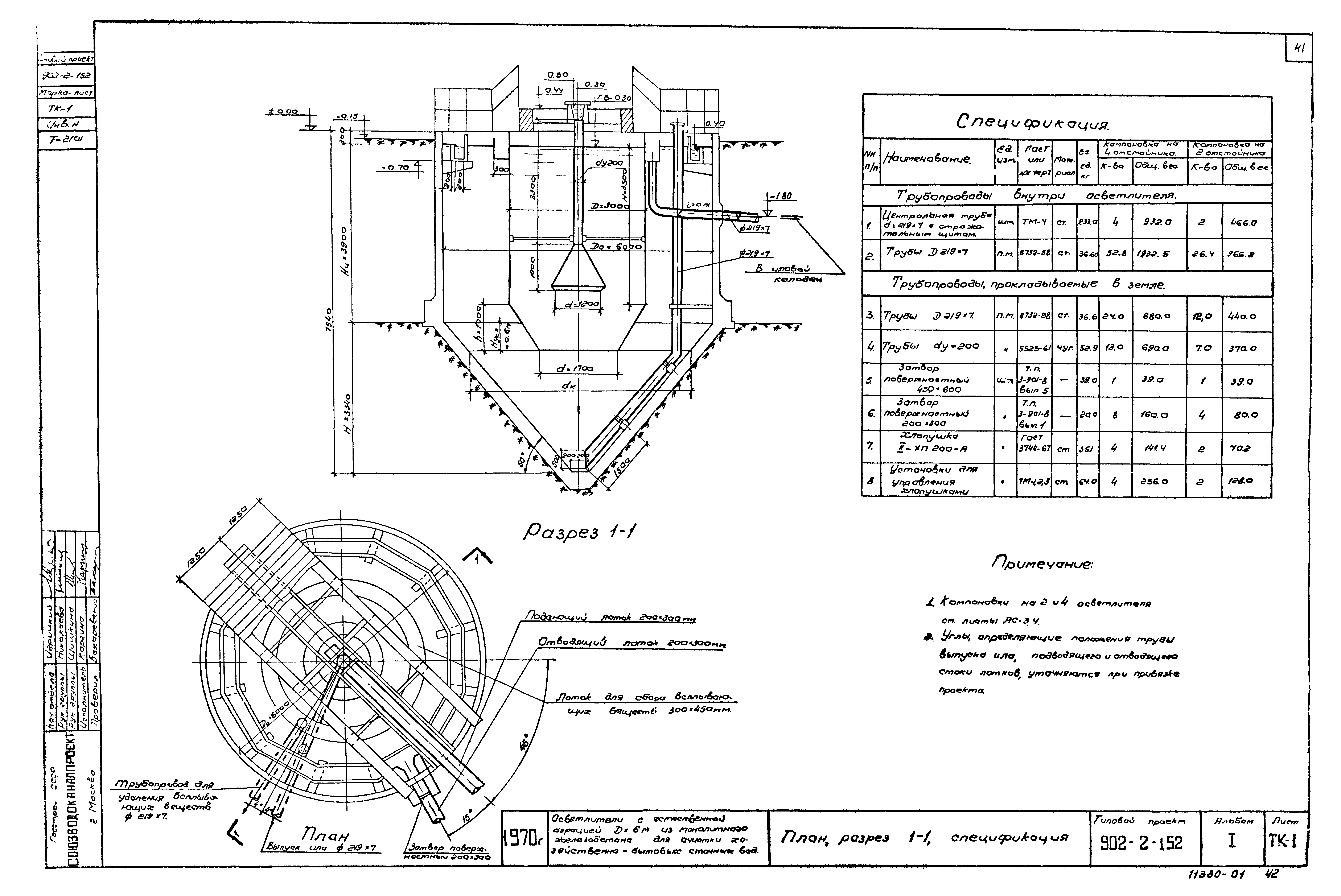
ТП 902-2-152 ТК-1 План, разрез 1-1, спецификация
ТП 902-2-152 ТК-2 Иловые колодцы №1 и №2. Планы и разрезы
ТП 902-2-152 ТК-3, ТК-4 Заказные спецификации
ТП 902-2-152 ТМ Чертежи нестандартизированного оборудования
ТП 902-2-152 ТМ-1 Установка управления хлопушкой dу200. Общий вид
ТП 902-2-152 ТМ-2 Установка управления хлопушкой dу200. Узел, детали
ТП 902-2-152 ТМ-3 Установка управления хлопушкой dу200. Узел, детали
ТП 902-2-152 ТМ-4 Отражатель. Общий вид. Деталь
Разработан: Союзводоканалпроект
Утверждён:15.11.1971 Госстрой СССР (Государственный комитет Совета Министров СССР по делам строительства) (USSR Gosstroy )
Расположен в:Техническая документация Строительство Справочные документы Типовые строительные конструкции, изделия и узлы Общероссийский строительный каталог Промышленные предприятия, здания и сооружения Здания и сооружения санитарно-технические Канализация Сооружения биологической (биохимической) очистки Станции биологической очистки сточных вод
Типовой проект 902-2-152Типовой проект 902-2-152Типовой проект 902-2-152Типовой проект 902-2-152Типовой проект 902-2-152Типовой проект 902-2-152Типовой проект 902-2-152Типовой проект 902-2-152Типовой проект 902-2-152Типовой проект 902-2-152Типовой проект 902-2-152Типовой проект 902-2-152Типовой проект 902-2-152Типовой проект 902-2-152Типовой проект 902-2-152Типовой проект 902-2-152Типовой проект 902-2-152Типовой проект 902-2-152Типовой проект 902-2-152Типовой проект 902-2-152Типовой проект 902-2-152Типовой проект 902-2-152Типовой проект 902-2-152Типовой проект 902-2-152Типовой проект 902-2-152Типовой проект 902-2-152Типовой проект 902-2-152Типовой проект 902-2-152Типовой проект 902-2-152Типовой проект 902-2-152Типовой проект 902-2-152Типовой проект 902-2-152Типовой проект 902-2-152Типовой проект 902-2-152Типовой проект 902-2-152Типовой проект 902-2-152Типовой проект 902-2-152Типовой проект 902-2-152Типовой проект 902-2-152Типовой проект 902-2-152Типовой проект 902-2-152Типовой проект 902-2-152Типовой проект 902-2-152Типовой проект 902-2-152Типовой проект 902-2-152Типовой проект 902-2-152Типовой проект 902-2-152Типовой проект 902-2-152

© 2013 Ёшкин Кот :-) Карта сайта