Информационная система
«Ёшкин Кот»

Скачать базу одним архивом
Скачать обновления
История создания базы
Карта сайта

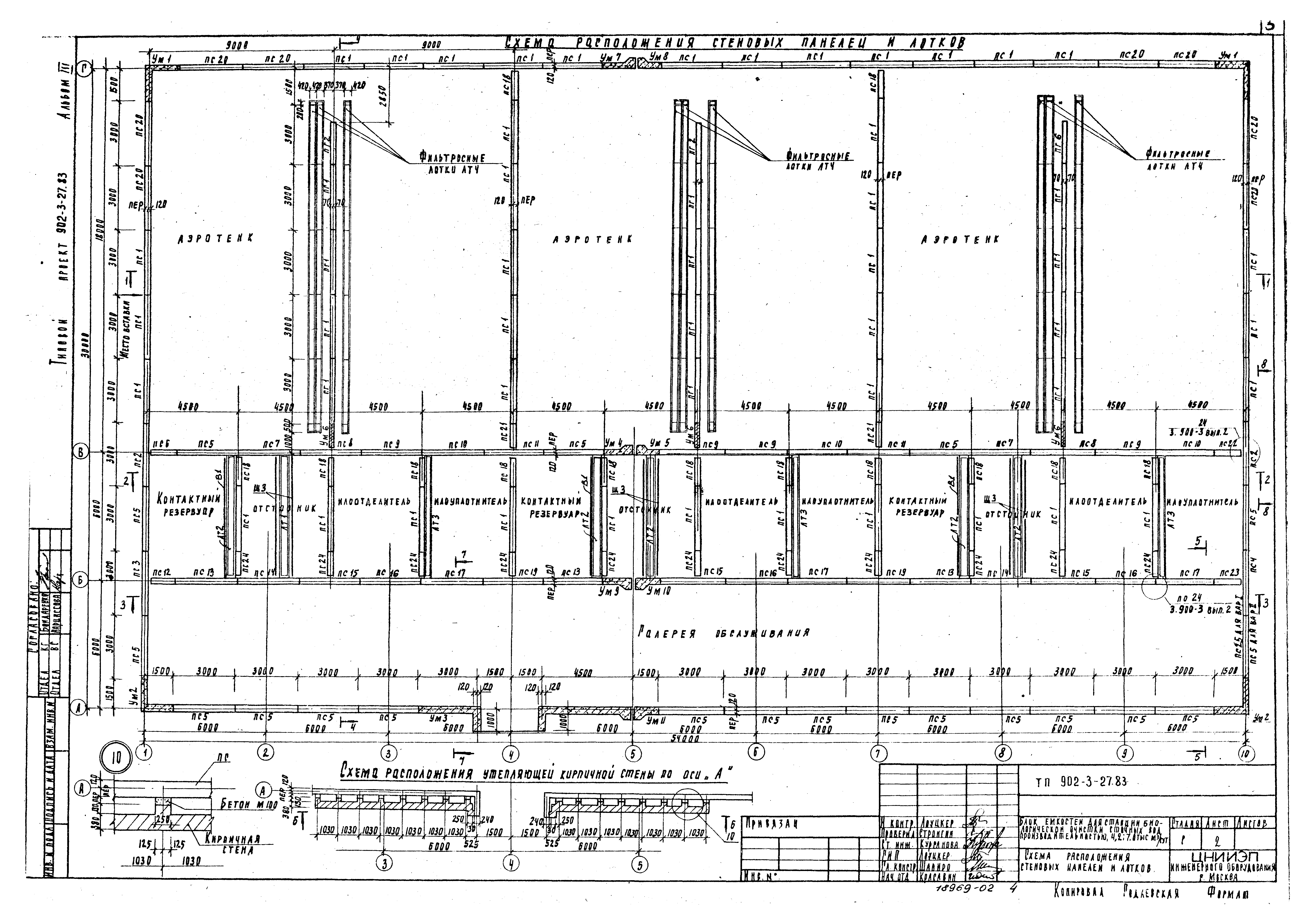
Скачать Типовой проект 902-3-27.83 Альбом III. Строительная часть. Конструкции железобетонные

Дата актуализации: 10.08.2017

Типовой проект 902-3-27.83

Альбом III. Строительная часть. Конструкции железобетонные

Обозначение: Типовой проект 902-3-27.83
Обозначение англ: 902-3-27.83
Статус:не определен законодательством
Название рус.:Альбом III. Строительная часть. Конструкции железобетонные
Дата добавления в базу:01.09.2013
Дата актуализации:05.05.2017
Дата введения:11.05.1983
Разработан: ЦНИИЭП иженерного оборудования
Утверждён:14.02.1983 Госгражданстрой (Gosgrazhdanstroy 49)
Расположен в:Техническая документация Строительство Справочные документы Типовые строительные конструкции, изделия и узлы Общероссийский строительный каталог Промышленные предприятия, здания и сооружения Здания и сооружения санитарно-технические Канализация Сооружения доочистки Сооружения биологической очистки сточных вод для трассы БАМ
Типовой проект 902-3-27.83Типовой проект 902-3-27.83Типовой проект 902-3-27.83Типовой проект 902-3-27.83Типовой проект 902-3-27.83Типовой проект 902-3-27.83Типовой проект 902-3-27.83Типовой проект 902-3-27.83Типовой проект 902-3-27.83Типовой проект 902-3-27.83Типовой проект 902-3-27.83Типовой проект 902-3-27.83Типовой проект 902-3-27.83Типовой проект 902-3-27.83Типовой проект 902-3-27.83Типовой проект 902-3-27.83Типовой проект 902-3-27.83Типовой проект 902-3-27.83Типовой проект 902-3-27.83Типовой проект 902-3-27.83Типовой проект 902-3-27.83Типовой проект 902-3-27.83Типовой проект 902-3-27.83Типовой проект 902-3-27.83Типовой проект 902-3-27.83Типовой проект 902-3-27.83Типовой проект 902-3-27.83Типовой проект 902-3-27.83Типовой проект 902-3-27.83Типовой проект 902-3-27.83

© 2013 Ёшкин Кот :-) Карта сайта