Информационная система
«Ёшкин Кот»

Скачать базу одним архивом
Скачать обновления
История создания базы
Карта сайта

Скачать Типовой проект 902-5-13.86 Альбом IV. Строительные изделия

Дата актуализации: 10.08.2017

Типовой проект 902-5-13.86

Альбом IV. Строительные изделия

Обозначение: Типовой проект 902-5-13.86
Обозначение англ: 902-5-13.86
Статус:не определен законодательством
Название рус.:Альбом IV. Строительные изделия
Дата добавления в базу:01.09.2013
Дата актуализации:05.05.2017
Дата введения:26.02.1986
Оглавление:ТП 902-5-13.86 Содержание альбома
ТП 902-5-13.86 КИ01.00.00 Колонна К42-4а, К42-4б(К-1,К-2)
ТП 902-5-13.86 КИ01.01.00 Колонна 1КФ49-1а(К-3)
ТП 902-5-13.86 КИ01.02.00 Колонна (К-4÷К-9) (см. таблицу исполнений)
ТП 902-5-13.86 КИ01.03.00 Колонна БКФ79-1а;БКФ79-1б (К-10,К-11)
ТП 902-5-13.86 КИ01.04.00 Колонна (К12-К16;К18;К24;К25) (см. таблицу исполнений)
ТП 902-5-13.86 КИ01.05.00 Колонна 2К 3.36-1а(К17)
ТП 902-5-13.86 КИ01.06.00 Колонна 1К03.36а, 1К03, 36б (К20,К21)
ТП 902-5-13.86 КИ01.07.00 Колонна (К-22;К-23;К-19) (см. таблицу исполнений)
ТП 902-5-13.86 КИ02.00.00 Панель стеновая (ПС-15, ПС-16) (см. таблицу исполнений)
ТП 902-5-13.86 КИ03.00.00 Плита ПРС56.15-4АIVт-а(ПП15)
ТП 902-5-13.86 КИ03.01.00 Плита ПРС56.15-6АIVт-а(ПП2)
ТП 902-5-13.86 КИ03.02.00 Плита покрытия (П-1÷П-9) (см. таблицу исполнений)
ТП 902-5-13.86 КИ04.00.00 Балка 1БСП12-2АтV-н-а(Б1)
ТП 902-5-13.86 КИ04.01.00 Балка 1БСП12-6АтV-н-а(Б-2)
ТП 902-5-13.86 КИ04.02.00 Балка 1БСП12-5АтV-н-а(Б-3)
ТП 902-5-13.86 КИ05.00.00 Ригель РЛП 4.57-30-а(Р10)
ТП 902-5-13.86 КИ06.00.00 Изделие закладное (РМ-1)
ТП 902-5-13.86 КИ07.00.00 Решетка (Р1)
ТП 902-5-13.86 КИ08.00.00 Изделие закладное (РМ2)
ТП 902-5-13.86 КИ09.00.00 Решетка (Р2)
ТП 902-5-13.86 КИ10.00.00 Изделие закладное (РМ-3)
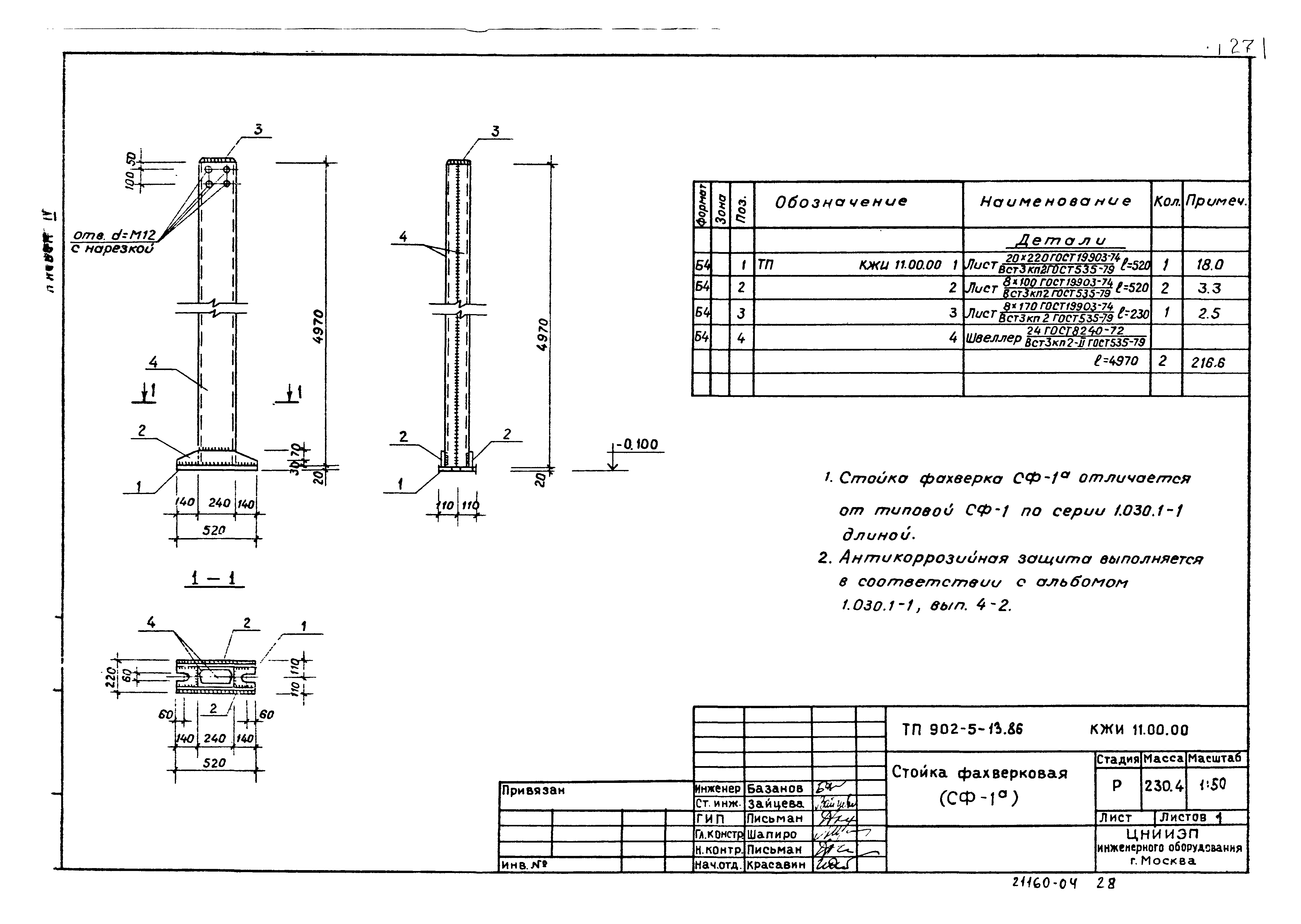
ТП 902-5-13.86 КИ11.00.00 Стойка фахверковая (СФ-1ª)
ТП 902-5-13.86 КИ12.00.00 Металлический щит (Щ-1)
ТП 902-5-13.86 КИ13.00.00 Металлическая балка (БМ-1)
ТП 902-5-13.86 КИ14.00.00 Закладная деталь (3Д-3)
ТП 902-5-13.86 КИ15.00.00 Анкер (А-1)
ТП 902-5-13.86 КИ16.00.00 Металлический щит (Щ-3)
ТП 902-5-13.86 КИ16.01.00 Металлический щит (Щ-2)
ТП 902-5-13.86 КИ17.00.00 Закладная деталь (3Д-1)
ТП 902-5-13.86 КИ17.01.00 Закладная деталь (3Д-2)
ТП 902-5-13.86 КИ18.00.00 Элемент соединительный (МС-1)
ТП 902-5-13.86 КИ18.01.00 Элемент соединительный (МС-2)
ТП 902-5-13.86 КИ19.00.00 Элемент соединительный (МС-3)
ТП 902-5-13.86 КИ20.00.00 Анкер (А2)
ТП 902-5-13.86 КИ21.00.00 Изделие закладное (МН1)
ТП 902-5-13.86 КИ22.00.00 Изделие закладное (МН2)
ТП 902-5-13.86 КИ23.00.00 Анкер (А3)
Разработан: ЦНИИЭП иженерного оборудования
Утверждён:04.12.1985 Госгражданстрой (Gosgrazhdanstroy 386)
Расположен в:Техническая документация Строительство Справочные документы Типовые строительные конструкции, изделия и узлы Общероссийский строительный каталог Промышленные предприятия, здания и сооружения Здания и сооружения санитарно-технические Канализация Сооружения для очистки производственных сточных вод Сооружения для обработки осадка
Заменяет собой:
Типовой проект 902-5-13.86Типовой проект 902-5-13.86Типовой проект 902-5-13.86Типовой проект 902-5-13.86Типовой проект 902-5-13.86Типовой проект 902-5-13.86Типовой проект 902-5-13.86Типовой проект 902-5-13.86Типовой проект 902-5-13.86Типовой проект 902-5-13.86Типовой проект 902-5-13.86Типовой проект 902-5-13.86Типовой проект 902-5-13.86Типовой проект 902-5-13.86Типовой проект 902-5-13.86Типовой проект 902-5-13.86Типовой проект 902-5-13.86Типовой проект 902-5-13.86Типовой проект 902-5-13.86Типовой проект 902-5-13.86Типовой проект 902-5-13.86Типовой проект 902-5-13.86Типовой проект 902-5-13.86Типовой проект 902-5-13.86Типовой проект 902-5-13.86Типовой проект 902-5-13.86Типовой проект 902-5-13.86Типовой проект 902-5-13.86Типовой проект 902-5-13.86Типовой проект 902-5-13.86Типовой проект 902-5-13.86Типовой проект 902-5-13.86Типовой проект 902-5-13.86Типовой проект 902-5-13.86Типовой проект 902-5-13.86Типовой проект 902-5-13.86Типовой проект 902-5-13.86

© 2013 Ёшкин Кот :-) Карта сайта