Информационная система
«Ёшкин Кот»

Скачать базу одним архивом
Скачать обновления
История создания базы
Карта сайта

Скачать Типовой проект 903-1-250.87 Альбом 30. Конструкции металлические

Дата актуализации: 10.08.2017

Типовой проект 903-1-250.87

Альбом 30. Конструкции металлические

Обозначение: Типовой проект 903-1-250.87
Обозначение англ: 903-1-250.87
Статус:не определен законодательством
Название рус.:Альбом 30. Конструкции металлические
Дата добавления в базу:01.09.2013
Дата актуализации:05.05.2017
Дата введения:29.09.1987
Оглавление:ТП 903-1-250.87-КМ Общие данные (начало)
ТП 903-1-250.87-КМ Общие данные (продолжение). Ведомость металлоконструкций по видам профилей
ТП 903-1-250.87-КМ Общие данные (продолжение). Приемное устройство. Техническая спецификация металла
ТП 903-1-250.87-КМ Общие данные (продолжение). Галереи №1;2. Техническая спецификация металла
ТП 903-1-250.87-КМ Общие данные (продолжение). Дробильное устройство. Техническая спецификация металла
ТП 903-1-250.87-КМ Общие данные (окончание). Техническая спецификация металла на лестницы и ограждения
ТП 903-1-250.87-КМ Приемное устройство. Схемы расположения колонн на отм. 0.000; балок покрытия
ТП 903-1-250.87-КМ Приемное устройство. Схемы расположения балок и прогонов в осях 2-4. Опора К2. Узлы 18-20
ТП 903-1-250.87-КМ Приемное устройство. Схемы расположения фахверка
ТП 903-1-250.87-КМ Приемное устройство. Схемы расположения подвесного оборудования
ТП 903-1-250.87-КМ Приемное устройство. Схемы расположения бункера, подвесных путей
ТП 903-1-250.87-КМ Приемное устройство. Схемы расположения бункеров на отм. -0.030
ТП 903-1-250.87-КМ Приемное устройство. Схема расположения решеток бункеров
ТП 903-1-250.87-КМ Приемное устройство. Схемы расположения рабочих площадок
ТП 903-1-250.87-КМ Приемное устройство. Схемы расположения ограждений и лестниц рабочих площадок
ТП 903-1-250.87-КМ Приемное устройство. Схемы расположения балок на отм. -8.100;-7.937
ТП 903-1-250.87-КМ Приемное устройство. Схемы расположения внутренних лестниц
ТП 903-1-250.87-КМ Приемное устройство. Схемы расположения прогонов для крепления кабелей
ТП 903-1-250.87-КМ Приемное устройство. Узлы 1-5
ТП 903-1-250.87-КМ Приемное устройство. Узлы 6-11
ТП 903-1-250.87-КМ Приемное устройство. Узлы 12-17
ТП 903-1-250.87-КМ Дробильное устройство. Схемы расположения балок перекрытия на отм. 6.000; 11.400
ТП 903-1-250.87-КМ Дробильное устройство. Схемы расположения подвесных путей РМ1;РМ2
ТП 903-1-250.87-КМ Дробильное устройство. Схемы расположения подвесных путей
ТП 903-1-250.87-КМ Дробильное устройство. Схемы расположения площадки под конвейер. Узлы 25,26,27
ТП 903-1-250.87-КМ Дробильное устройство. Схемы расположения лестниц и стремянок
ТП 903-1-250.87-КМ Галерея первого подъема. Схема расположения металлических конструкций
ТП 903-1-250.87-КМ Галерея первого подъема. Опоры ОП1-ОП5
ТП 903-1-250.87-КМ Галерея второго подъема. Схема расположения металлических конструкций
ТП 903-1-250.87-КМ Галерея второго подъема. Опоры ОП1-ОП4
ТП 903-1-250.87-КМ Галерея первого подъема. Узлы 28-29
ТП 903-1-250.87-КМ Галерея первого подъема. Узлы 30,31
ТП 903-1-250.87-КМ Галерея первого и второго подъема. Узлы 32,33
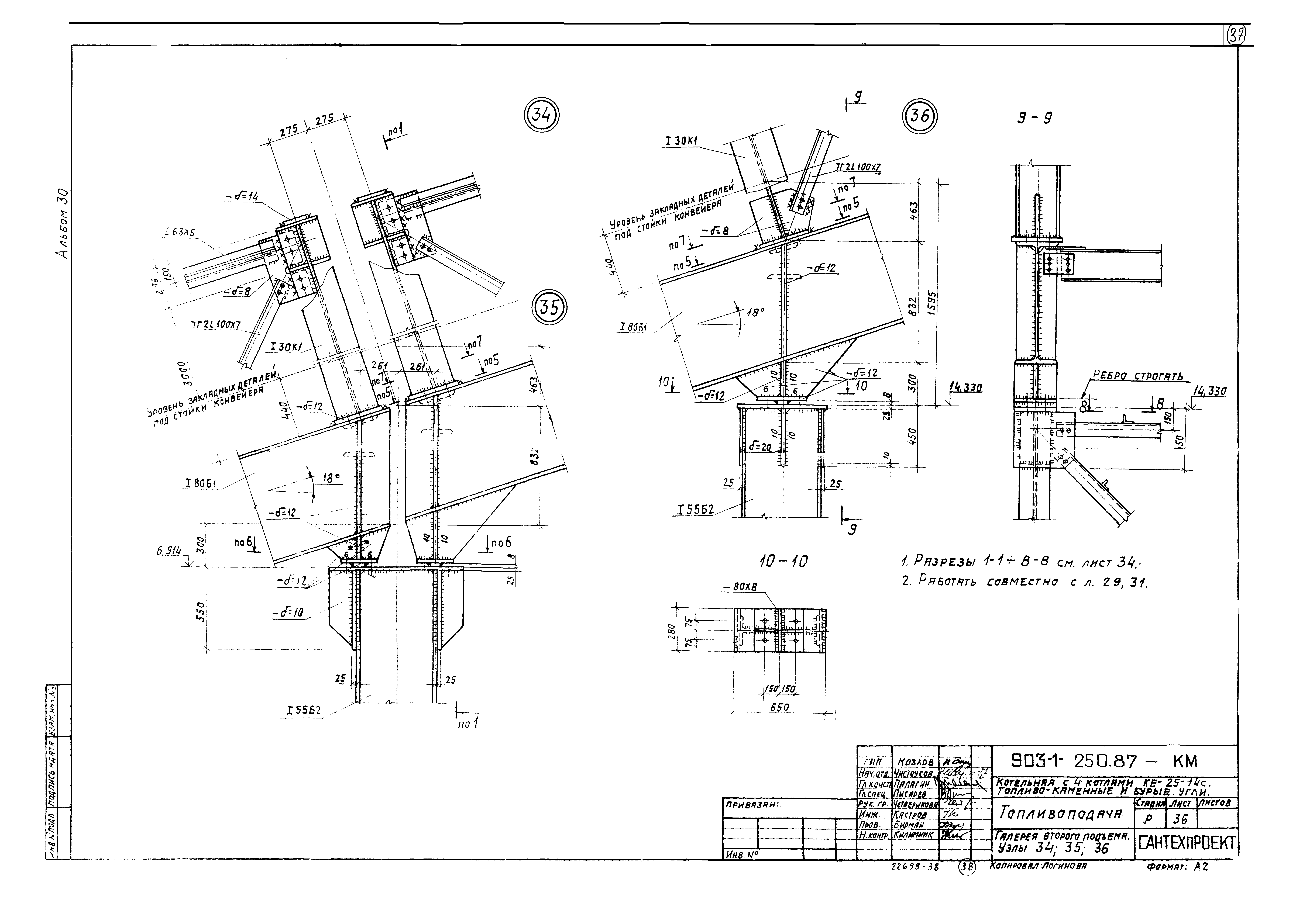
ТП 903-1-250.87-КМ Галерея второго подъема. Узлы 34,35,36
Разработан: ГПИ Сантехпроект Госстроя СССР
Утверждён:29.09.1987 Госстрой СССР (Государственный комитет Совета Министров СССР по делам строительства) (USSR Gosstroy 78)
Расположен в:Техническая документация Строительство Справочные документы Типовые строительные конструкции, изделия и узлы Общероссийский строительный каталог Промышленные предприятия, здания и сооружения Здания и сооружения санитарно-технические Теплоснабжение Котельные установки Открытые системы теплоснабжения Топливо - каменные и бурые угли
Заменяет собой:
Типовой проект 903-1-250.87Типовой проект 903-1-250.87Типовой проект 903-1-250.87Типовой проект 903-1-250.87Типовой проект 903-1-250.87Типовой проект 903-1-250.87Типовой проект 903-1-250.87Типовой проект 903-1-250.87Типовой проект 903-1-250.87Типовой проект 903-1-250.87Типовой проект 903-1-250.87Типовой проект 903-1-250.87Типовой проект 903-1-250.87Типовой проект 903-1-250.87Типовой проект 903-1-250.87Типовой проект 903-1-250.87Типовой проект 903-1-250.87Типовой проект 903-1-250.87Типовой проект 903-1-250.87Типовой проект 903-1-250.87Типовой проект 903-1-250.87Типовой проект 903-1-250.87Типовой проект 903-1-250.87Типовой проект 903-1-250.87Типовой проект 903-1-250.87Типовой проект 903-1-250.87Типовой проект 903-1-250.87Типовой проект 903-1-250.87Типовой проект 903-1-250.87Типовой проект 903-1-250.87Типовой проект 903-1-250.87Типовой проект 903-1-250.87Типовой проект 903-1-250.87Типовой проект 903-1-250.87Типовой проект 903-1-250.87Типовой проект 903-1-250.87Типовой проект 903-1-250.87Типовой проект 903-1-250.87

© 2013 Ёшкин Кот :-) Карта сайта