Информационная система
«Ёшкин Кот»

Скачать базу одним архивом
Скачать обновления
История создания базы
Карта сайта

Скачать Типовой проект 903-1-250.87 Альбом 26. Силовое электрооборудование. Электрическое освещение. Связь и сигнализация. Автоматизация

Дата актуализации: 10.08.2017

Типовой проект 903-1-250.87

Альбом 26. Силовое электрооборудование. Электрическое освещение. Связь и сигнализация. Автоматизация

Обозначение: Типовой проект 903-1-250.87
Обозначение англ: 903-1-250.87
Статус:не определен законодательством
Название рус.:Альбом 26. Силовое электрооборудование. Электрическое освещение. Связь и сигнализация. Автоматизация
Дата добавления в базу:01.09.2013
Дата актуализации:05.05.2017
Дата введения:29.09.1987
Оглавление:ТП 903-1-250.87 Содержание альбома
Силовое электрооборудование
ТП 903-1-250.87 ЭМ3-1 Силовое электрооборудование. Общие данные
ТП 903-1-250.87 ЭМ3-2 5Щ. Схема принципиальная
ТП 903-1-250.87 ЭМ3-3 6Щ. Схема принципиальная
ТП 903-1-250.87 ЭМ3-4 7Щ. Схема принципиальная. Начало
ТП 903-1-250.87 ЭМ3-5 7Щ. Схема принципиальная. Окончание
ТП 903-1-250.87 ЭМ3-6 5ЩУ8,4ЩУ8. Схема принципиальная
ТП 903-1-250.87 ЭМ3-7 Схема функциональная
ТП 903-1-250.87 ЭМ3-8 Схема принципиальная автоматического управления
ТП 903-1-250.87 ЭМ3-9 Схема принципиальная предупредительной и аварийной звуковой сигнализации
ТП 903-1-250.87 ЭМ3-10 Схема принципиальная световой сигнализации
ТП 903-1-250.87 ЭМ3-11 Питатель качающийся 1,2,3,4. Вибратор накладной. Схема принципиальная управления
ТП 903-1-250.87 ЭМ3-12 Конвейер №1. Схема принципиальная управления и подключения
ТП 903-1-250.87 ЭМ3-13 Питатель качающийся 6,7. Схема принципиальная управления и подключения
ТП 903-1-250.87 ЭМ3-14 Конвейер №2. Схема принципиальная управления и подключения
ТП 903-1-250.87 ЭМ3-15 Выпрямительное устройство для питания электромагнитного шкива. Схема принципиальная управления
ТП 903-1-250.87 ЭМ3-16 Дробилка №1(2). Схема принципиальная управления
ТП 903-1-250.87 ЭМ3-17 Конвейер №3. Схема принципиальная управления и подключения
ТП 903-1-250.87 ЭМ3-18 Плужковый сбрасыватель. Схема принципиальная управления и подключения
ТП 903-1-250.87 ЭМ3-19 Вытяжной вентилятор В1(В2). Схема принципиальная управления и подключения
ТП 903-1-250.87 ЭМ3-20 Вытяжной вентилятор В3(В4). Схема принципиальная управления
ТП 903-1-250.87 ЭМ3-21 Вытяжной вентилятор В5(В6,В8). Схема принципиальная управления
ТП 903-1-250.87 ЭМ3-22 Дреичерная завеса. Схема принципиальная управления и подключения
ТП 903-1-250.87 ЭМ3-23 Насос перекачки шламовых вод №1(№2). Схема принципиальная управления и подключения
ТП 903-1-250.87 ЭМ3-24 Вентилятор П2(П4). Насос дренажный. Схема принципиальная управления и подключения
ТП 903-1-250.87 ЭМ3-25 Кабельный журнал. Начало
ТП 903-1-250.87 ЭМ3-26 Кабельный журнал. Продолжение
ТП 903-1-250.87 ЭМ3-27 Кабельный журнал. Продолжение
ТП 903-1-250.87 ЭМ3-28 Кабельный журнал. Окончание
ТП 903-1-250.87 ЭМ3-29 План силовой сети приемного устройства. Начало
ТП 903-1-250.87 ЭМ3-30 План силовой сети приемного устройства. Окончание
ТП 903-1-250.87 ЭМ3-31 План силовой сети дробильного устройства
ТП 903-1-250.87 ЭМ3-32 Планы силовой сети надбункерного отделения
ТП 903-1-250.87 ЭМ3-33 Спецификация. Разрезы
ТП 903-1-250.87 ЭМ3-34 Трубозаготовительная ведомость. Начало
ТП 903-1-250.87 ЭМ3-35 Трубозаготовительная ведомость. Окончание
ТП 903-1-250.87 ЭМ3-36 Таблица заполнения труб кабелями
ТП 903-1-250.87 ЭМ3-37 Планы трубной раскладки
ТП 903-1-250.87 ЭМ3-38 Молниезащита и заземление
ТП 903-1-250.87 ЭМ3-39 План наружных силовых кабельных сетей
Электроосвещение
ТП 903-1-250.87 ЭО2-1 Электроосвещение. Общие данные
ТП 903-1-250.87 ЭО2-2 План расположения и схема питающей сети электроосвещения
ТП 903-1-250.87 ЭО2-3 План расположения сети электроосвещения приемного устройства на отм. 1.700;3.000;5.400;9.200
ТП 903-1-250.87 ЭО2-4 План расположения сети электроосвещения приемного устройства на отм. 5.700;-3.200
ТП 903-1-250.87 ЭО2-5 План расположения сети электроосвещения приемного устройства на отм. -8.100;-8.500;-10.600
ТП 903-1-250.87 ЭО2-6 План расположения сети электроосвещения дробильного устройства на отм.0.000;6.000;11.400
ТП 903-1-250.87 ЭО2-7 План расположения сети электроосвещения галереи конвейера №1
ТП 903-1-250.87 ЭО2-8 План расположения сети электроосвещения галереи конвейера №2 и закрытого склада угля
ТП 903-1-250.87 ЭО2-9 Схема управления электроосвещением галерей конвейеров №1,№2
Связь и сигнализация
ТП 903-1-250.87 СС2-1 Связь и сигнализация. Общие данные
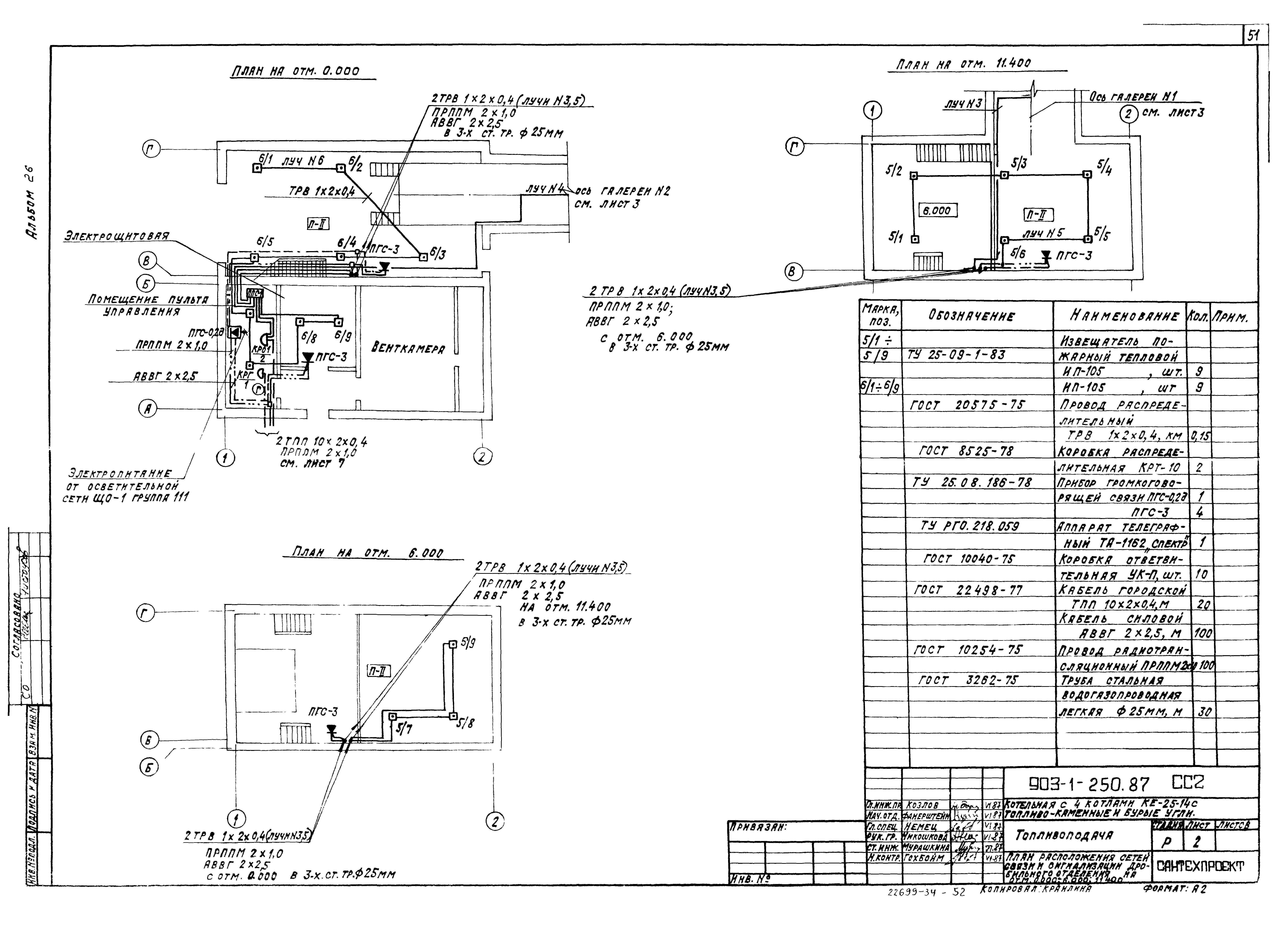
ТП 903-1-250.87 СС2-2 План расположения сетей связи и сигнализации дробильного отделения на отм. 0.000;6.000;11.400
ТП 903-1-250.87 СС2-3 План расположения сетей связи и сигнализации галерей конвейеров №1 и №2
ТП 903-1-250.87 СС2-4 План расположения сетей связи и сигнализации приемного устройства на отм. 0.000;-8.100;-8.500;-10.600
ТП 903-1-250.87 СС2-5 План расположения сетей связи и сигнализации приемного устройства на отм. -5.700
ТП 903-1-250.87 СС2-6 План расположения сетей связи и сигнализации на отм. 16.800
ТП 903-1-250.87 СС2-7 Схемы расположения сетей связи и сигнализации
ТП 903-1-250.87 СС2-8 План и схема внутриплощадочных сетей связи и сигнализации
Автоматизация
ТП 903-1-250.87 А1-1 Общие данные
ТП 903-1-250.87 А1-2 Схема контроля
ТП 903-1-250.87 А1-3 Тепловой узел. Схемы контроля, соединения внешних проводок. Начало
ТП 903-1-250.87 А1-4 Тепловой узел. Схемы контроля, соединения внешних проводок. Окончание
ТП 903-1-250.87 А1-5 Схема соединения внешних проводок. Начало
ТП 903-1-250.87 А1-6 Схема соединения внешних проводок. Окончание
ТП 903-1-250.87 А1-7 Планы расположения. Начало
ТП 903-1-250.87 А1-8 Планы расположения. Окончание
Разработан: ГПИ Сантехпроект Госстроя СССР
Утверждён:29.09.1987 Госстрой СССР (Государственный комитет Совета Министров СССР по делам строительства) (USSR Gosstroy 78)
Расположен в:Техническая документация Строительство Справочные документы Типовые строительные конструкции, изделия и узлы Общероссийский строительный каталог Промышленные предприятия, здания и сооружения Здания и сооружения санитарно-технические Теплоснабжение Котельные установки Открытые системы теплоснабжения Топливо - каменные и бурые угли
Заменяет собой:
Типовой проект 903-1-250.87Типовой проект 903-1-250.87Типовой проект 903-1-250.87Типовой проект 903-1-250.87Типовой проект 903-1-250.87Типовой проект 903-1-250.87Типовой проект 903-1-250.87Типовой проект 903-1-250.87Типовой проект 903-1-250.87Типовой проект 903-1-250.87Типовой проект 903-1-250.87Типовой проект 903-1-250.87Типовой проект 903-1-250.87Типовой проект 903-1-250.87Типовой проект 903-1-250.87Типовой проект 903-1-250.87Типовой проект 903-1-250.87Типовой проект 903-1-250.87Типовой проект 903-1-250.87Типовой проект 903-1-250.87Типовой проект 903-1-250.87Типовой проект 903-1-250.87Типовой проект 903-1-250.87Типовой проект 903-1-250.87Типовой проект 903-1-250.87Типовой проект 903-1-250.87Типовой проект 903-1-250.87Типовой проект 903-1-250.87Типовой проект 903-1-250.87Типовой проект 903-1-250.87Типовой проект 903-1-250.87Типовой проект 903-1-250.87Типовой проект 903-1-250.87Типовой проект 903-1-250.87Типовой проект 903-1-250.87Типовой проект 903-1-250.87Типовой проект 903-1-250.87Типовой проект 903-1-250.87Типовой проект 903-1-250.87Типовой проект 903-1-250.87Типовой проект 903-1-250.87Типовой проект 903-1-250.87Типовой проект 903-1-250.87Типовой проект 903-1-250.87Типовой проект 903-1-250.87Типовой проект 903-1-250.87Типовой проект 903-1-250.87Типовой проект 903-1-250.87Типовой проект 903-1-250.87Типовой проект 903-1-250.87Типовой проект 903-1-250.87Типовой проект 903-1-250.87Типовой проект 903-1-250.87Типовой проект 903-1-250.87Типовой проект 903-1-250.87Типовой проект 903-1-250.87Типовой проект 903-1-250.87Типовой проект 903-1-250.87Типовой проект 903-1-250.87Типовой проект 903-1-250.87Типовой проект 903-1-250.87Типовой проект 903-1-250.87Типовой проект 903-1-250.87Типовой проект 903-1-250.87Типовой проект 903-1-250.87Типовой проект 903-1-250.87

© 2013 Ёшкин Кот :-) Карта сайта