Информационная система
«Ёшкин Кот»

Скачать базу одним архивом
Скачать обновления
История создания базы
Карта сайта

Скачать Типовой проект 903-1-250.87 Альбом 17. Отопление и вентиляция. Водопровод и канализация

Дата актуализации: 10.08.2017

Типовой проект 903-1-250.87

Альбом 17. Отопление и вентиляция. Водопровод и канализация

Обозначение: Типовой проект 903-1-250.87
Обозначение англ: 903-1-250.87
Статус:не определен законодательством
Название рус.:Альбом 17. Отопление и вентиляция. Водопровод и канализация
Дата добавления в базу:01.09.2013
Дата актуализации:05.05.2017
Дата введения:29.09.1987
Оглавление:Содержание
Чертежи основного комплекта марки ОВ
   Общие данные
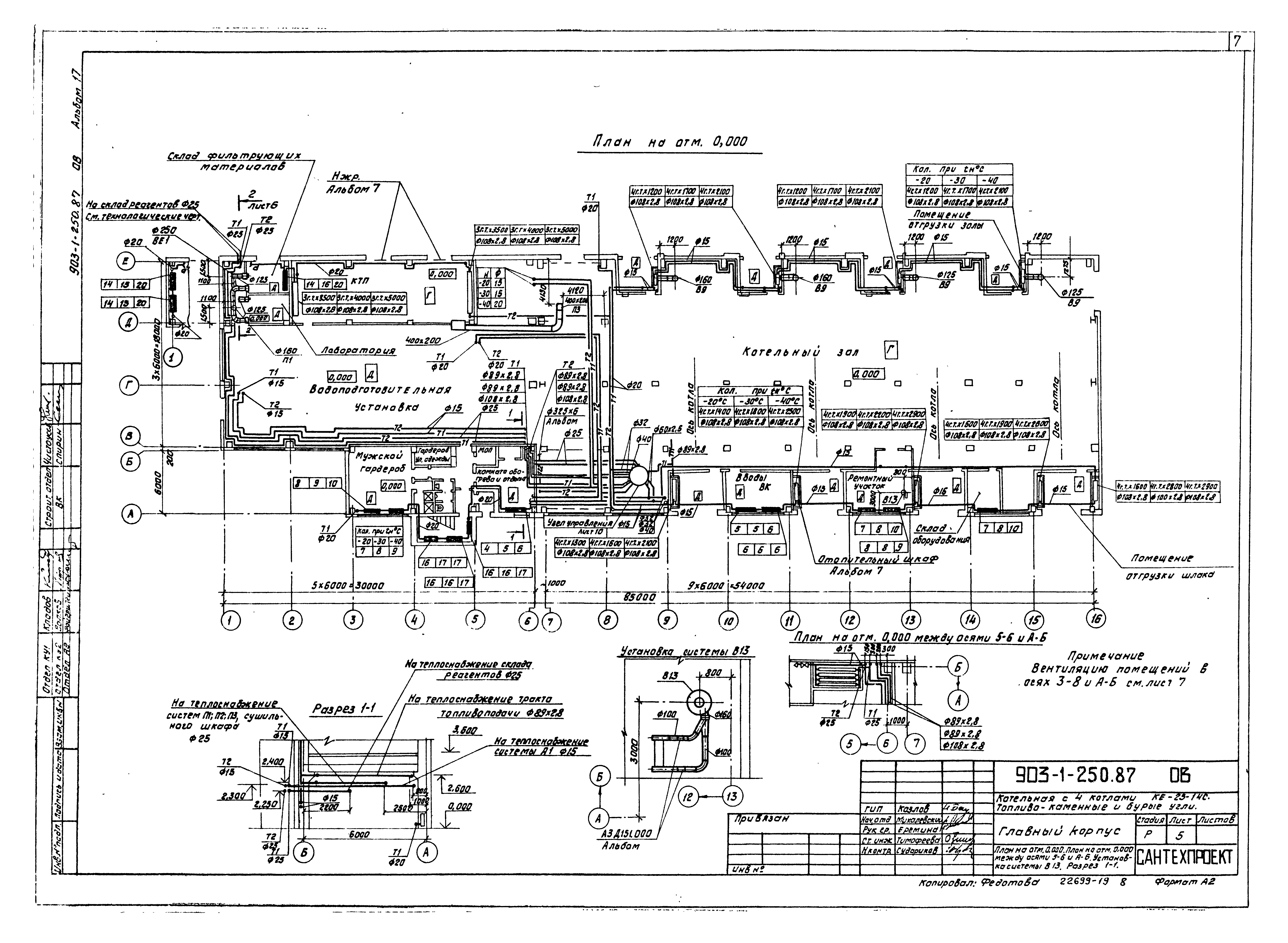
   План на отм. 0.000. План на отм. 0.000 между осями 5 - 6 и А - Б. Установка системы В13. Разрез 1-1
   Планы на отм. 0.000; 3.600; 7.200; 13.200. Разрезы 2-2, 3-3
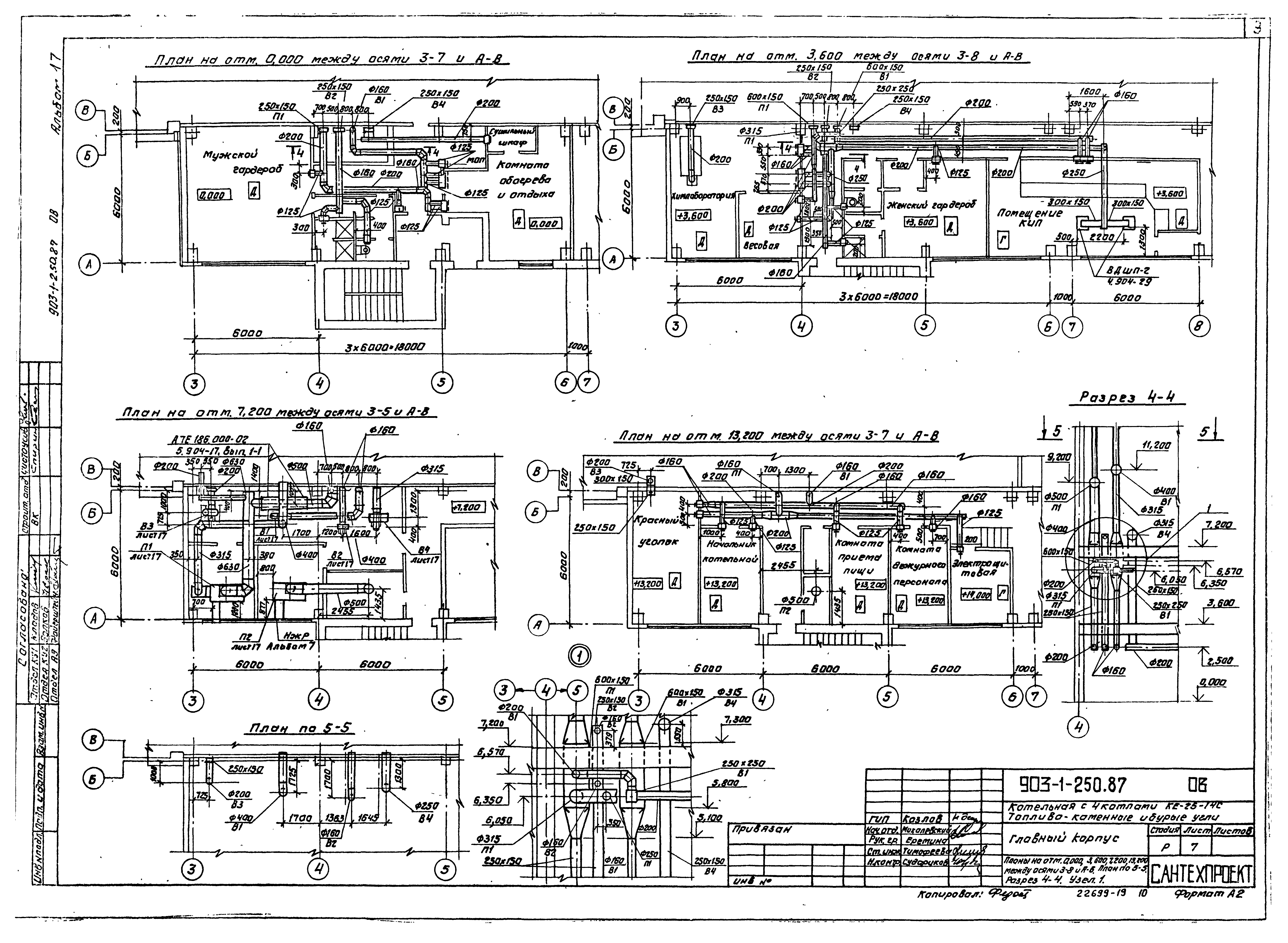
   Планы на отм. 0.000; 3.600; 7.200; 13.200 между осями 3 - 8 и А - Б. План по 5-5. Разрез 4-4. Узел 1
   План надбункерной галереи. Разрез В - Б
   Схема системы отопления №1
   Схема системы отопления №2. Узел управления №1
   Схема системы теплоснабжения топливоподачи. Узел управления №2
   Схемы систем отопления надбункерной галереи
   Схема системы теплоснабжения А1 - А6, узла управления №1, склада реагентов. Узел 2
   Схема системы теплоснабжения П1, П2, П3 сушильного шкафа. Узлы 3 - 7
   Схемы систем П1, П3, В1 - В4, В9, ВЕ1
   Схемы систем П2, В5 - В8. Установки систем В5 - В8
   Установки систем П1, П2, П3, В1 - В4
   Установка системы В9
   Задание электроотделу на привязку приточных вентсистем П1, П2, П3
Чертежи основного комплекта марки ВК
   Общие данные
   План на отм. 0.000
   План на отм. 0.000 между осями 3 - 7, А - В. План на отм. 3.600 между осями 3 - 7, А - В. План на отм. 3.600 между осями 8 - 15, А - Е
   Планы на отм. 7.200; 13.200; 16.800 между осями 3 - 16; А -В
   Схема системы В1. Водомерный узел 1
   Схемы систем В5, В4
   Схемы систем К6, Т3, К3
   План кровли. Схемы систем К2, К1, К7
   Установка систем 1В4, 1В5, 1К3
Разработан: Сантехпроект
Утверждён:29.09.1987 Госстрой СССР (Государственный комитет Совета Министров СССР по делам строительства) (USSR Gosstroy 78)
Расположен в:Техническая документация Строительство Справочные документы Типовые строительные конструкции, изделия и узлы Общероссийский строительный каталог Промышленные предприятия, здания и сооружения Здания и сооружения санитарно-технические Теплоснабжение Котельные установки Открытые системы теплоснабжения Топливо - каменные и бурые угли
Заменяет собой:
Типовой проект 903-1-250.87Типовой проект 903-1-250.87Типовой проект 903-1-250.87Типовой проект 903-1-250.87Типовой проект 903-1-250.87Типовой проект 903-1-250.87Типовой проект 903-1-250.87Типовой проект 903-1-250.87Типовой проект 903-1-250.87Типовой проект 903-1-250.87Типовой проект 903-1-250.87Типовой проект 903-1-250.87Типовой проект 903-1-250.87Типовой проект 903-1-250.87Типовой проект 903-1-250.87Типовой проект 903-1-250.87Типовой проект 903-1-250.87Типовой проект 903-1-250.87Типовой проект 903-1-250.87Типовой проект 903-1-250.87Типовой проект 903-1-250.87Типовой проект 903-1-250.87Типовой проект 903-1-250.87Типовой проект 903-1-250.87Типовой проект 903-1-250.87Типовой проект 903-1-250.87Типовой проект 903-1-250.87Типовой проект 903-1-250.87Типовой проект 903-1-250.87Типовой проект 903-1-250.87Типовой проект 903-1-250.87Типовой проект 903-1-250.87Типовой проект 903-1-250.87

© 2013 Ёшкин Кот :-) Карта сайта