Информационная система
«Ёшкин Кот»

Скачать базу одним архивом
Скачать обновления
История создания базы
Карта сайта

Скачать Типовой проект 903-1-250.87 Альбом 9. Конструкции металлические

Дата актуализации: 10.08.2017

Типовой проект 903-1-250.87

Альбом 9. Конструкции металлические

Обозначение: Типовой проект 903-1-250.87
Обозначение англ: 903-1-250.87
Статус:не определен законодательством
Название рус.:Альбом 9. Конструкции металлические
Дата добавления в базу:01.09.2013
Дата актуализации:05.05.2017
Дата введения:29.09.1987
Оглавление:Общие данные
Ведомость металлоконструкций по видам профилей
Техническая спецификация металла
Техническая спецификация металла на лестницы
Схема расположения балок на отм. 3.600 и 4.500
Схема расположения балок перекрытия на отм. 3.600
Перекрытие на отм. 3.600. Разрезы 1-1 - 12-12
Схема расположения балок на отм. 7.200 для опор под технологическое оборудование
Схема расположения балок покрытия и перекрытия на отм. 13.200, стремянок на отм. 9.300 и 15.900
Схема расположения балок перекрытия на отм. 16.900. Бункер БМ-1
Схема расположения стоек и балок на отм. 4.500
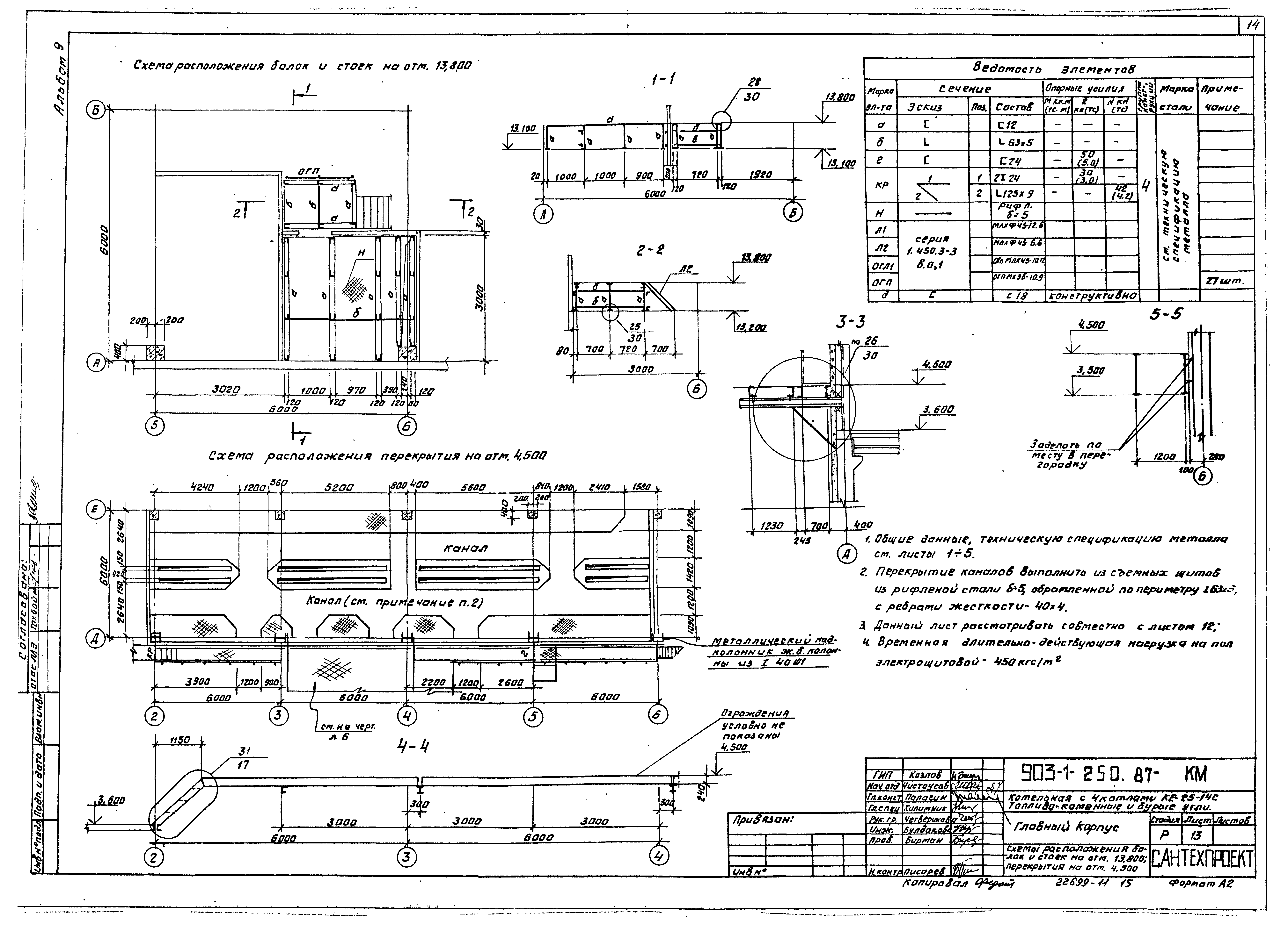
Схема расположения стоек и балок на отм. 13.800 и отм. 4.500
Схема расположения подвесных путей
Схема расположения опорных конструкций под циклоны
Схемы расположения площадок и лестниц циклонов
Схема расположения площадок на отм. 14.200. Узел 31
Схема расположения площадок под технологическое оборудование
Схема расположения прогонов для подвесных кабелей
Схема расположения наружной лестницы на отм. 20.700. Узел 34
Схема расположения балок для подвески технологического оборудования
Схема расположения кронштейнов под технологические трубопроводы
Схема расположения балок площадок и ограждений газоходов
Бункер БМ3. Узлы 1, 2
Узлы 3 - 6
Узлы 7 - 9, 30
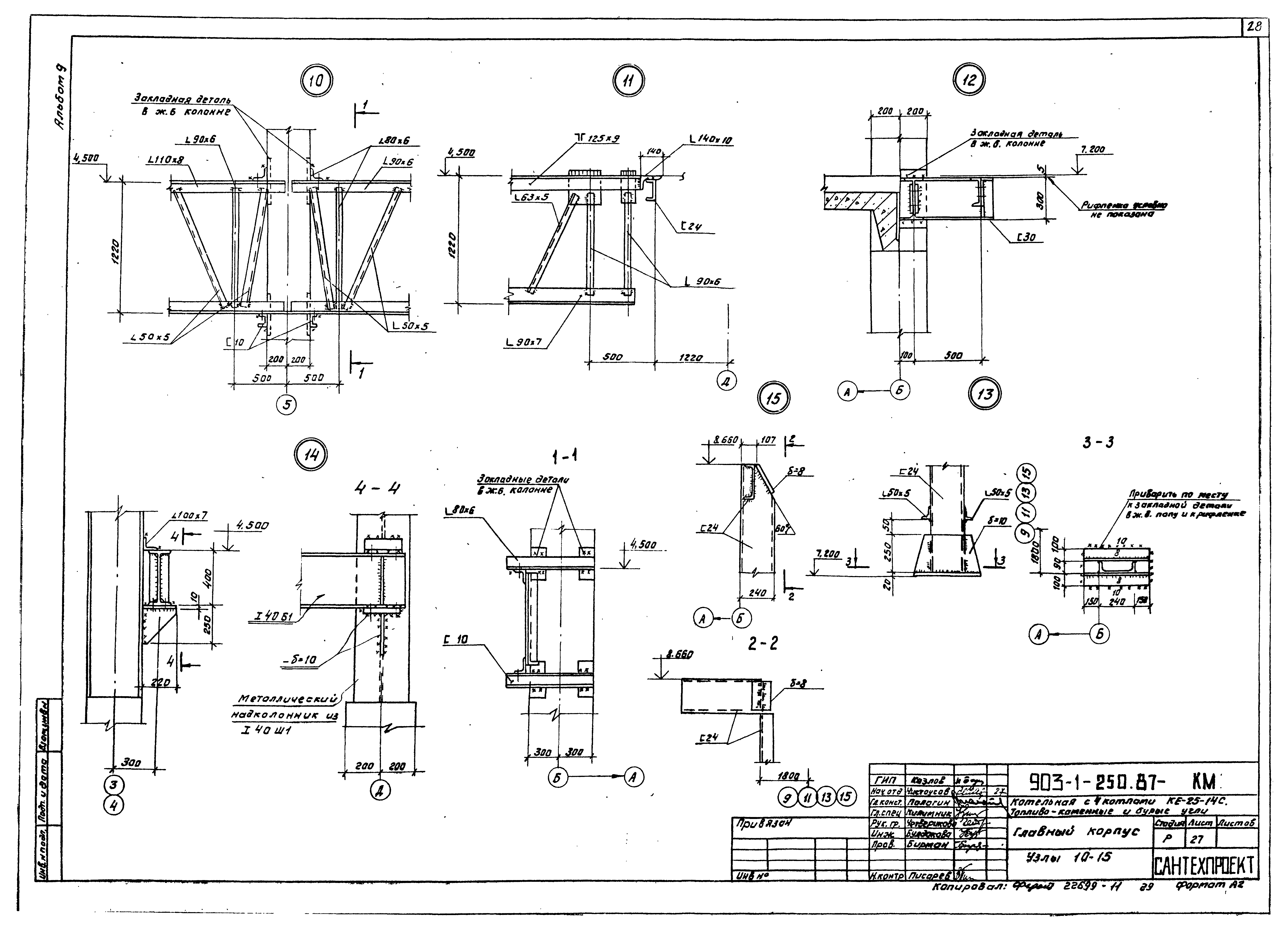
Узлы 10 - 15
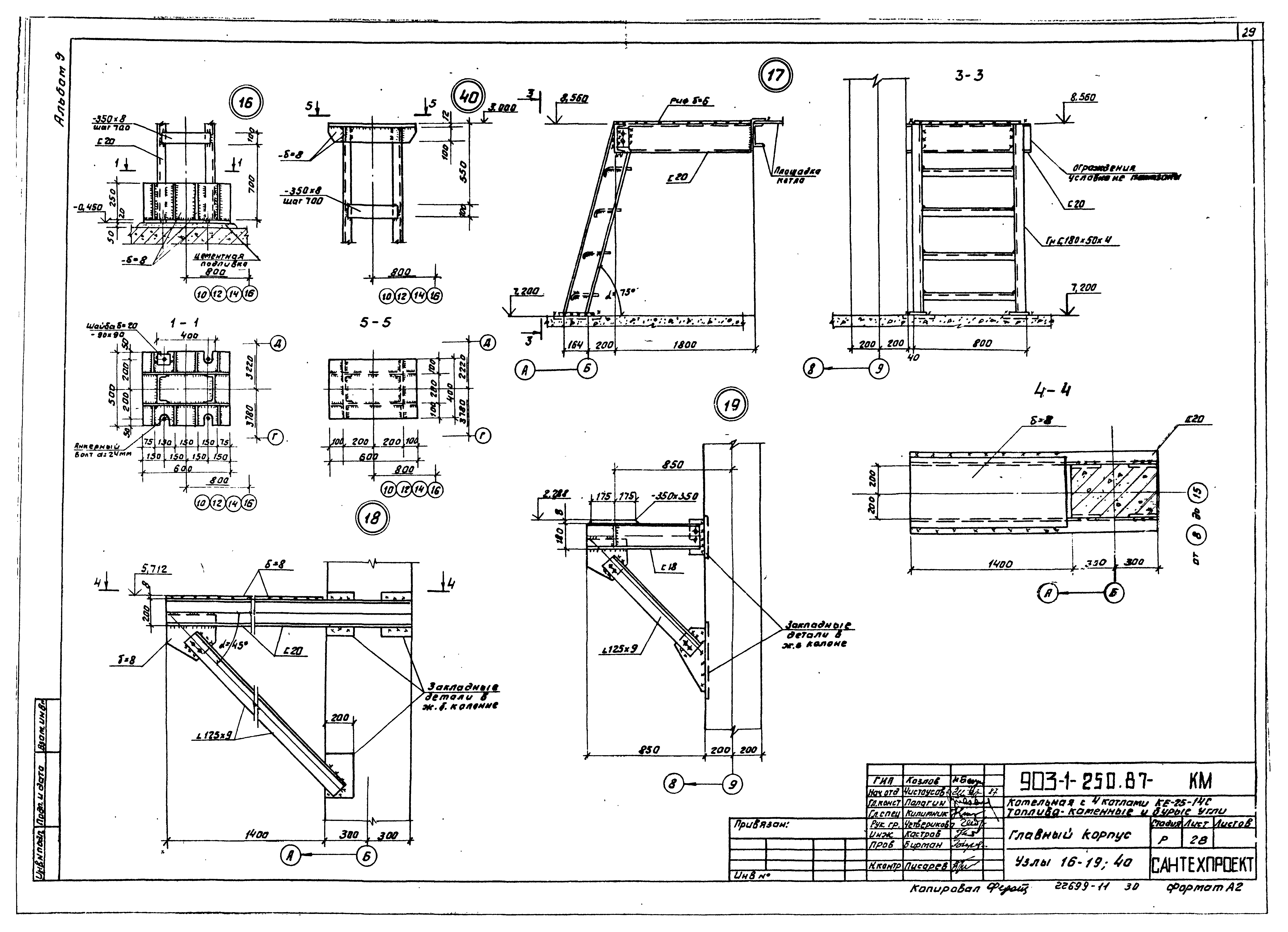
Узлы 16 - 19, 40
Узлы 20 - 24
Узлы 25 - 29
Узлы 32, 36, 37, 39, 44
Бункер БМ2
Узлы 41 - 43
Аккумуляторные баки. Схема расположения лестницы и площадки на отм. 8.500
Разработан: Сантехпроект
Утверждён:29.09.1987 Госстрой СССР (Государственный комитет Совета Министров СССР по делам строительства) (USSR Gosstroy 78)
Расположен в:Техническая документация Строительство Справочные документы Типовые строительные конструкции, изделия и узлы Общероссийский строительный каталог Промышленные предприятия, здания и сооружения Здания и сооружения санитарно-технические Теплоснабжение Котельные установки Открытые системы теплоснабжения Топливо - каменные и бурые угли
Заменяет собой:
Типовой проект 903-1-250.87Типовой проект 903-1-250.87Типовой проект 903-1-250.87Типовой проект 903-1-250.87Типовой проект 903-1-250.87Типовой проект 903-1-250.87Типовой проект 903-1-250.87Типовой проект 903-1-250.87Типовой проект 903-1-250.87Типовой проект 903-1-250.87Типовой проект 903-1-250.87Типовой проект 903-1-250.87Типовой проект 903-1-250.87Типовой проект 903-1-250.87Типовой проект 903-1-250.87Типовой проект 903-1-250.87Типовой проект 903-1-250.87Типовой проект 903-1-250.87Типовой проект 903-1-250.87Типовой проект 903-1-250.87Типовой проект 903-1-250.87Типовой проект 903-1-250.87Типовой проект 903-1-250.87Типовой проект 903-1-250.87Типовой проект 903-1-250.87Типовой проект 903-1-250.87Типовой проект 903-1-250.87Типовой проект 903-1-250.87Типовой проект 903-1-250.87Типовой проект 903-1-250.87Типовой проект 903-1-250.87Типовой проект 903-1-250.87Типовой проект 903-1-250.87Типовой проект 903-1-250.87Типовой проект 903-1-250.87Типовой проект 903-1-250.87

© 2013 Ёшкин Кот :-) Карта сайта