Информационная система
«Ёшкин Кот»

Скачать базу одним архивом
Скачать обновления
История создания базы
Карта сайта

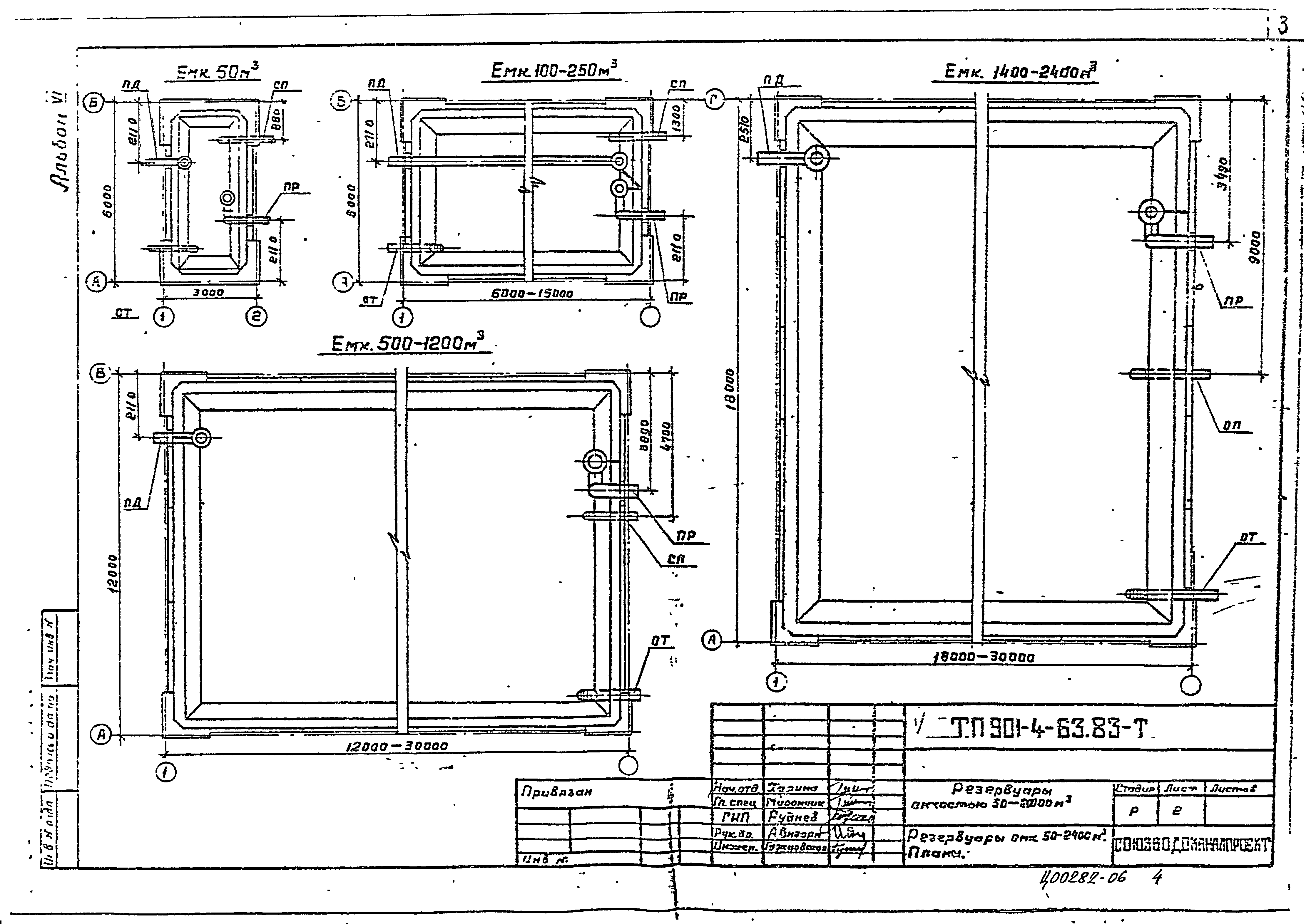
Скачать Типовой проект 901-4-60.83 Альбом VI. Технологические трубопроводы и сигнализация для резервуаров емкостью 50 - 20000 куб. м (из ТП 901-4-63.83)

Дата актуализации: 10.08.2017

Типовой проект 901-4-60.83

Альбом VI. Технологические трубопроводы и сигнализация для резервуаров емкостью 50 - 20000 куб. м (из ТП 901-4-63.83)

Обозначение: Типовой проект 901-4-60.83
Обозначение англ: 901-4-60.83
Статус:не определен законодательством
Название рус.:Альбом VI. Технологические трубопроводы и сигнализация для резервуаров емкостью 50 - 20000 куб. м (из ТП 901-4-63.83)
Дата добавления в базу:01.09.2013
Дата актуализации:05.05.2017
Дата введения:23.06.1983
Разработан: Союзводоканалпроект
Утверждён:17.11.1978 Госстрой СССР (Государственный комитет Совета Министров СССР по делам строительства) (USSR Gosstroy 2/3-409)
Расположен в:Техническая документация Строительство Справочные документы Типовые строительные конструкции, изделия и узлы Общероссийский строительный каталог Промышленные предприятия, здания и сооружения Здания и сооружения санитарно-технические Водоснабжение Резервуары для воды
Типовой проект 901-4-60.83Типовой проект 901-4-60.83Типовой проект 901-4-60.83Типовой проект 901-4-60.83Типовой проект 901-4-60.83Типовой проект 901-4-60.83Типовой проект 901-4-60.83Типовой проект 901-4-60.83Типовой проект 901-4-60.83Типовой проект 901-4-60.83Типовой проект 901-4-60.83Типовой проект 901-4-60.83Типовой проект 901-4-60.83Типовой проект 901-4-60.83Типовой проект 901-4-60.83

© 2013 Ёшкин Кот :-) Карта сайта