Информационная система
«Ёшкин Кот»

Скачать базу одним архивом
Скачать обновления
История создания базы
Карта сайта

Скачать Типовой проект 503-6-15.95 Альбом 5. Строительные изделия

Дата актуализации: 10.08.2017

Типовой проект 503-6-15.95

Альбом 5. Строительные изделия

Обозначение: Типовой проект 503-6-15.95
Обозначение англ: 503-6-15.95
Статус:не определен законодательством
Название рус.:Альбом 5. Строительные изделия
Дата добавления в базу:01.09.2013
Дата актуализации:05.05.2017
Дата введения:30.08.1995
Оглавление:Содержание альбома
ТП 503-6-15.95-АС.И-ТУ Технические условия
ТП 503-6-15.95-АС.И-П1 Плита П1
ТП 503-6-15.95-АС.И-ПУ1…ПУ4 Панели угловые 5ПТУ 2980.188.288; 5ПТУ 2980.348.148; 5ПТУ 2980.168.348; 5ПТУ 2980.548.188
ТП 503-6-15.95-АС.И-ПКУ1 Панель карнизная угловая 5ПТУ 1000.388.388
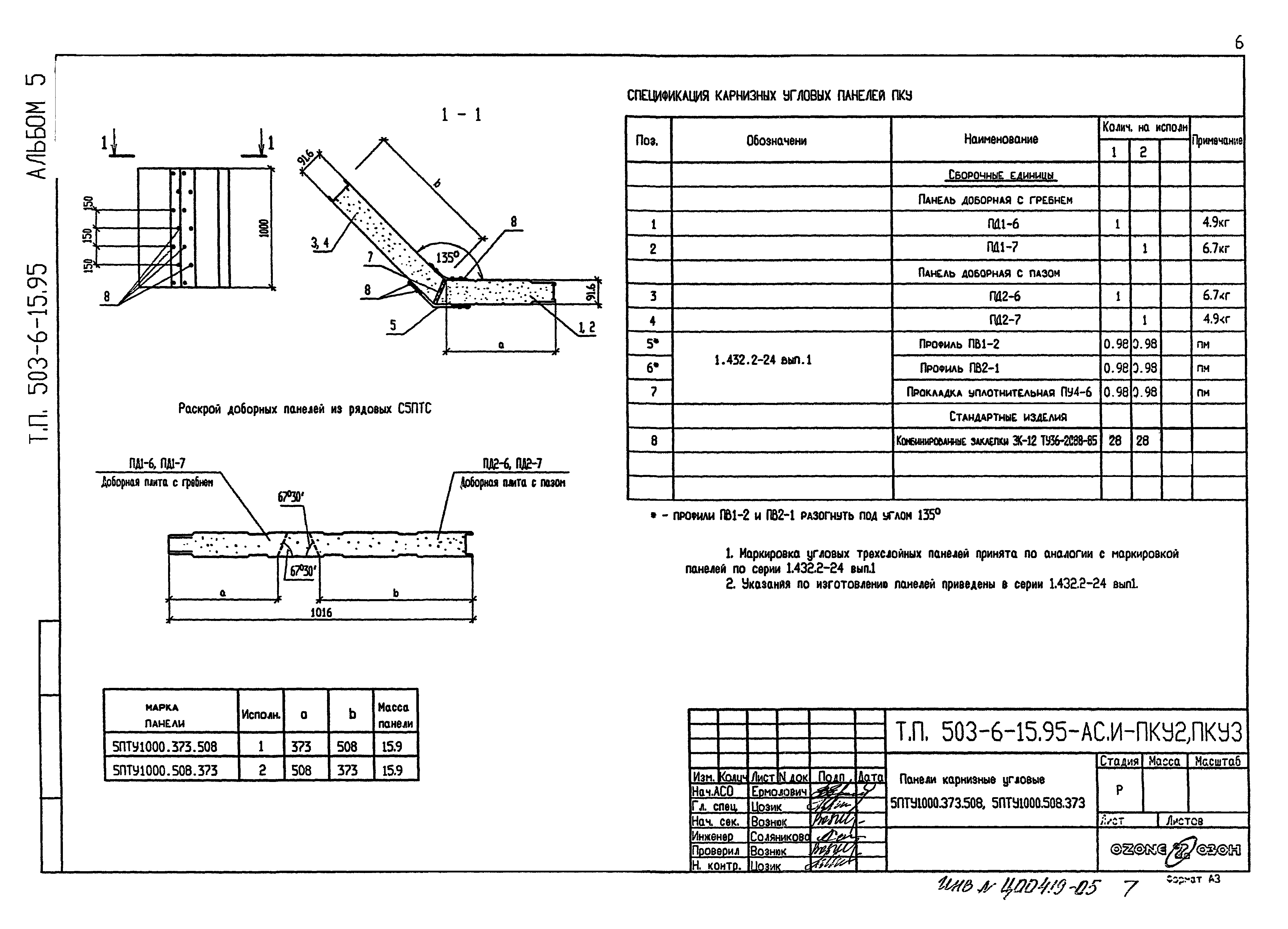
ТП 503-6-15.95-АС.И-ПКУ2, ПКУ3 Панели карнизные угловые 5ПТУ 1000.373.508; 5ПТУ 1000.508.373
ТП 503-6-15.95-АС.И-ПК2…ПК4 Панели карнизные С5 ПТС 600.1016.91-СО.6а; С5 ПТС 600.1016.91-СО.6б; С5 ПТС 600.1016.91-СО.6в
ТП 503-6-15.95-АС.И-ПК5…ПК7, ПК10 Панели карнизные С5 ПТС 600.1016.91-СО.6г; С5 ПТС 3520.1016.91-СО.6; С5 ПТС 2520.1016.91-СО.6; С5 ПТС 1520.1016.91-СО.6
ТП 503-6-15.95-АС.И-ПК8, ПК9, ПК11 Панели карнизные С5 ПТС 1520.1016.91-СО.6а; С5 ПТС 920.1016.91-СО.6; С5 ПТС 520.1016.91-СО.6
ТП 503-6-15.95-АС.И-ПП3…ПП8 Панели перегородок С5 ПТС 3580.1016.61-СО-6а; С5 ПТС 3580.1016.61-СО-6б; С5 ПТС 3580.1016.61-СО-6в; С5 ПТС 3580.1016.61-СО-6г; С5 ПТС 3580.1016.61-СО-6д; С5 ПТС 3580.1016.61-СО-6е
ТП 503-6-15.95-АС.И-ПП9…ПП12 Панели перегородок С5 ПТС 3580.1016.61-СО-6ж; С5 ПТС 3580.1016.61-СО-6и; С5 ПТС 3580.1016.61-СО-6к; С5 ПТС 3580.1016.61-СО-6л
ТП 503-6-15.95-АС.И-ПНУ1, ПНУ2 Панели навеса угловые 5 ПТУ 780.628.508; 5 ПТУ 780.508.628
ТП 503-6-15.95-АС.И-ПНУ3, ПНУ4 Панели навеса угловые 5 ПТУ 1000.628.508; 5 ПТУ 1000.508.628
ТП 503-6-15.95-АС.И-МС1 Патрубок МС1
ТП 503-6-15.95-АС.И-МС2 Накладка МС2
ТП 503-6-15.95-АС.И-Н1 Нащельник Н1
ТП 503-6-15.95-АС.И-Н2…Н4 Нащельники Н2…Н4
ТП 503-6-15.95-АС.И-Ф1 Фрамуга Ф1
ТП 503-6-15.95-АС.И-Р1 Ригель Р1
ТП 503-6-15.95-АС.И-Р3 Ригель Р3
ТП 503-6-15.95-АС.И-Р2 Ригель Р2
ТП 503-6-15.95-АС.И-Р4 Ригель Р4
ТП 503-6-15.95-АС.И-С1 Стойка С1
ТП 503-6-15.95-АС.И-С2 Стойка С2
ТП 503-6-15.95-АС.И-ГР1 Гребенка ГР1
ТП 503-6-15.95-АС.И-МК1 Металлическая площадка МК1
ТП 503-6-15.95-АС.И-ПМ1, СМ1 Панель СМ1. Стойка СМ1
Разработан: АО ОЗОН
Утверждён:30.08.1995 Комитет РФ по химической и нефтехимической промышленности (ЕР1877-19/09)
Расположен в:Техническая документация Строительство Справочные документы Типовые строительные конструкции, изделия и узлы Общероссийский строительный каталог Промышленные предприятия, здания и сооружения Предприятия, здания и сооружения транспорта Транспорт автомобильный Станции и пункты автозаправочные
Типовой проект 503-6-15.95Типовой проект 503-6-15.95Типовой проект 503-6-15.95Типовой проект 503-6-15.95Типовой проект 503-6-15.95Типовой проект 503-6-15.95Типовой проект 503-6-15.95Типовой проект 503-6-15.95Типовой проект 503-6-15.95Типовой проект 503-6-15.95Типовой проект 503-6-15.95Типовой проект 503-6-15.95Типовой проект 503-6-15.95Типовой проект 503-6-15.95Типовой проект 503-6-15.95Типовой проект 503-6-15.95Типовой проект 503-6-15.95Типовой проект 503-6-15.95Типовой проект 503-6-15.95Типовой проект 503-6-15.95Типовой проект 503-6-15.95Типовой проект 503-6-15.95Типовой проект 503-6-15.95Типовой проект 503-6-15.95

© 2013 Ёшкин Кот :-) Карта сайта