Скачать Типовой проект 901-3-175 Альбом V. Архитектурно-строительная, технологическая, санитарно-техническая, электротехническая части отделения микрофильтровДата актуализации: 10.08.2017 Типовой проект 901-3-175
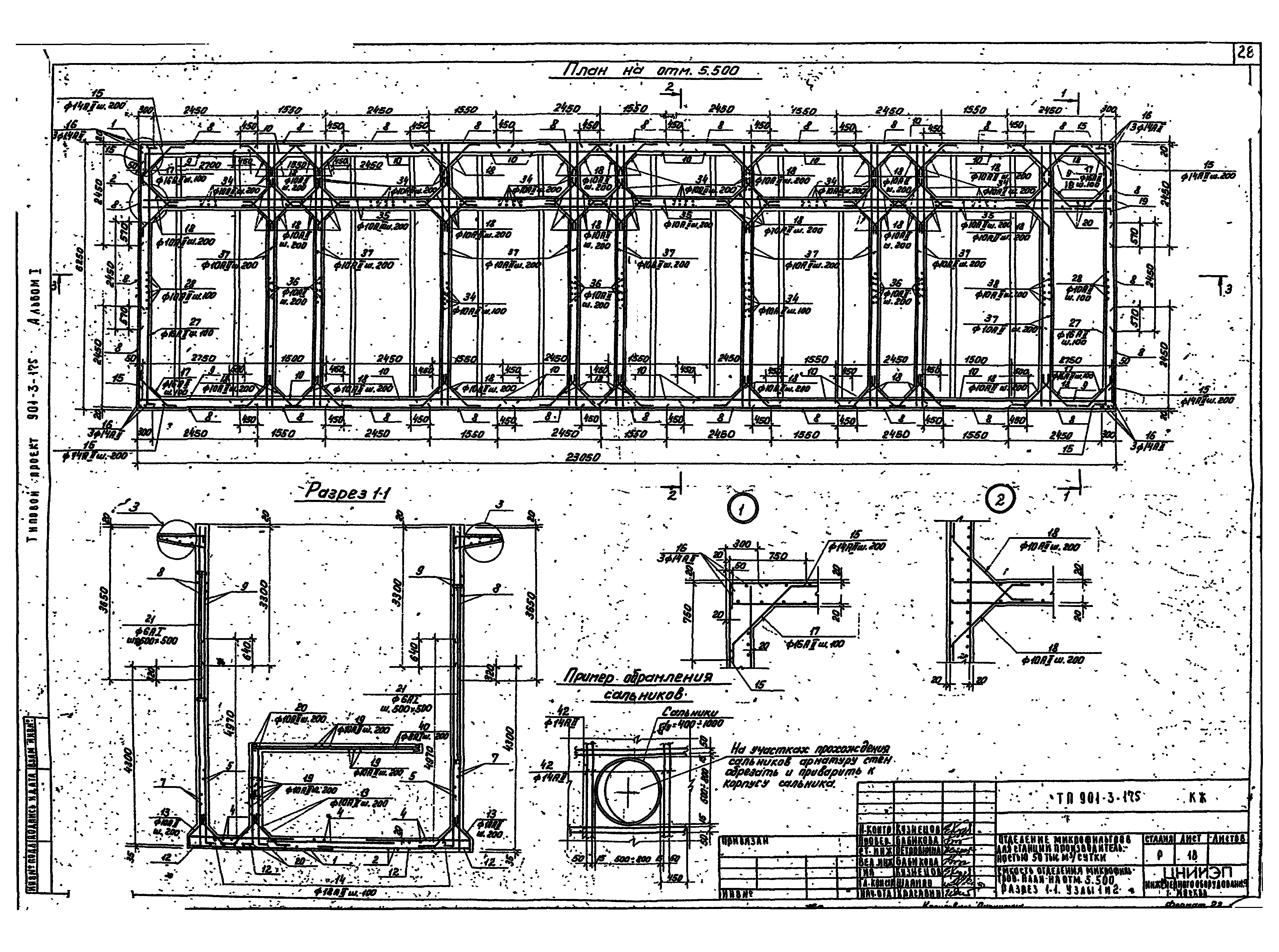
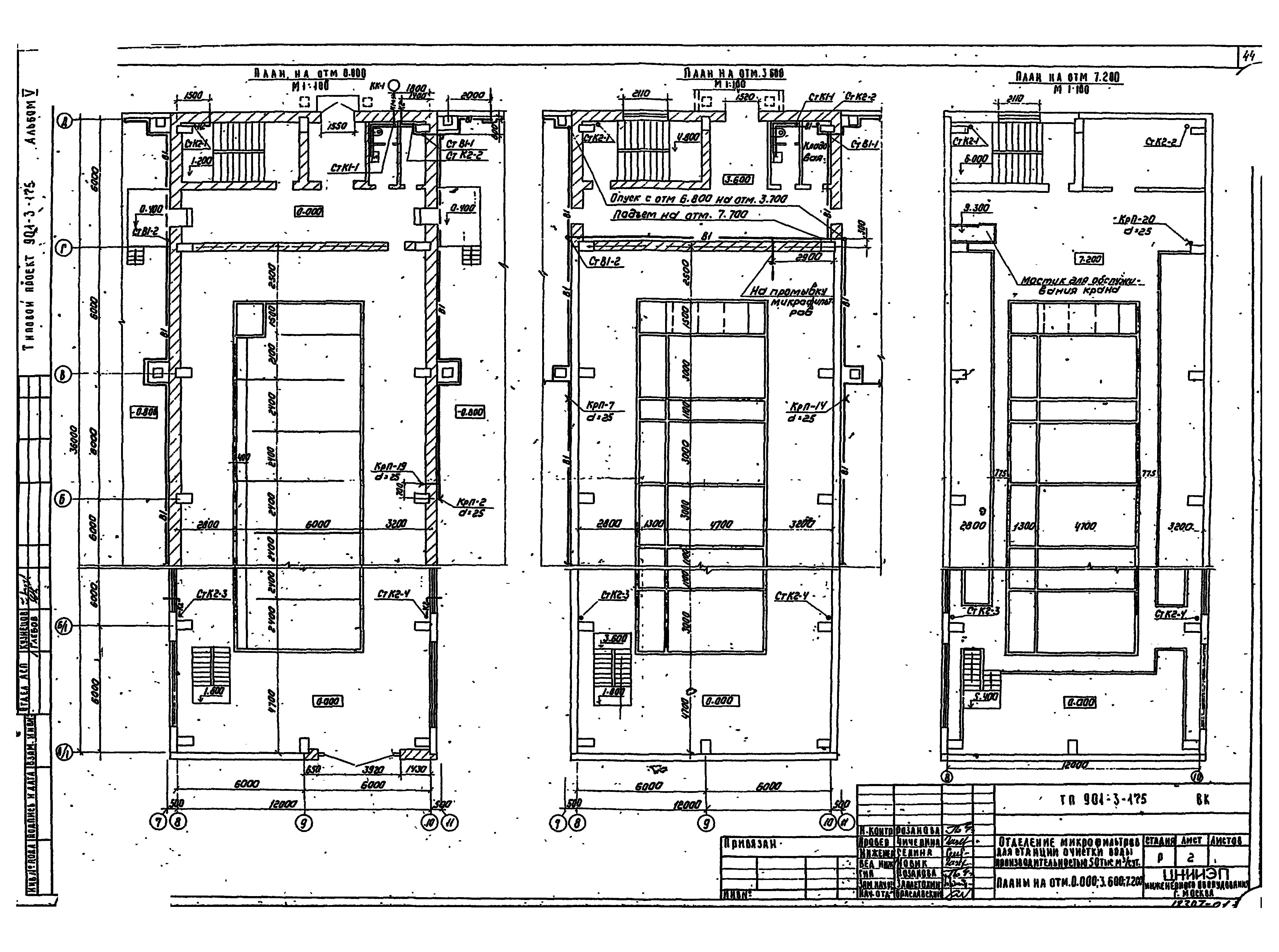
Альбом V. Архитектурно-строительная, технологическая, санитарно-техническая, электротехническая части отделения микрофильтровОбозначение: | Типовой проект 901-3-175 | Обозначение англ: | 901-3-175 | Статус: | не определен законодательством | Название рус.: | Альбом V. Архитектурно-строительная, технологическая, санитарно-техническая, электротехническая части отделения микрофильтров | Дата добавления в базу: | 01.09.2013 | Дата актуализации: | 05.05.2017 | Дата введения: | 25.06.1982 | Разработан: | ЦНИИЭП инженерного оборудования Госгражданстроя
| Утверждён: | 31.10.1981 Госгражданстрой (Gosgrazhdanstroy 297)
| Расположен в: |
|
                                                          
|