Информационная система
«Ёшкин Кот»

Скачать базу одним архивом
Скачать обновления
История создания базы
Карта сайта

Скачать Типовой проект 903-9-32.90 Альбом 2. Тепломеханические решения. Электрическое освещение. Конструкции железобетонные. Конструкции металлические

Дата актуализации: 10.08.2017

Типовой проект 903-9-32.90

Альбом 2. Тепломеханические решения. Электрическое освещение. Конструкции железобетонные. Конструкции металлические

Обозначение: Типовой проект 903-9-32.90
Обозначение англ: 903-9-32.90
Статус:не определен законодательством
Название рус.:Альбом 2. Тепломеханические решения. Электрическое освещение. Конструкции железобетонные. Конструкции металлические
Дата добавления в базу:01.09.2013
Дата актуализации:05.05.2017
Дата введения:01.04.1991
Оглавление:ТП 903-9-32.90 МС Мазутоснабжение МС
ТП 903-9-32.90 МС Общие данные (начало)
ТП 903-9-32.90 МС Общие данные (продолжение)
ТП 903-9-32.90 МС Общие данные (окончание)
ТП 903-9-32.90 МС Трубопроводы мазутослива. План. Разрез А-А
ТП 903-9-32.90 МС Трубопроводы мазутослива. Разрезы Б-Б;В-В. Узлы Г,Д
ТП 903-9-32.90 МС Разогревательное устройство
ТП 903-9-32.90 МС Рукав с наконечником
ТП 903-9-32.90 ЭО Внутреннее электроосвещение ЭО
ТП 903-9-32.90 ЭО Общие данные
ТП 903-9-32.90 ЭО План расположение осветительного электрооборудования и прокладки электрических сетей
ТП 903-9-32.90 КЖ Конструкции железобетонные КЖ
ТП 903-9-32.90 КЖ Общие данные
ТП 903-9-32.90 КЖ Схема расположения сооружений слива и приема мазута
ТП 903-9-32.90 КЖ Узел 1. Разрезы 2-2;3-3. Деталь гидроизоляции и деталь решения температурных швов
ТП 903-9-32.90 КЖ Схема расположения элементов канала мазутослива КН1
ТП 903-9-32.90 КЖ Разрезы 4-4;5-5. Фрагмент 2
ТП 903-9-32.90 КЖ Схема расположения фундаментов и колонн эстакады мазутослива ФМ1,ФМ1-1. Опалубка и армирование
ТП 903-9-32.90 КЖ ПРм1,УМ1. Опалубка и армирование
ТП 903-9-32.90 КЖ Схемы расположения фундаментов, колонн и ферм навеса
ТП 903-9-32.90 КЖ Технические условия. Каркас КП-1. Колонна 1К30-1М2-А
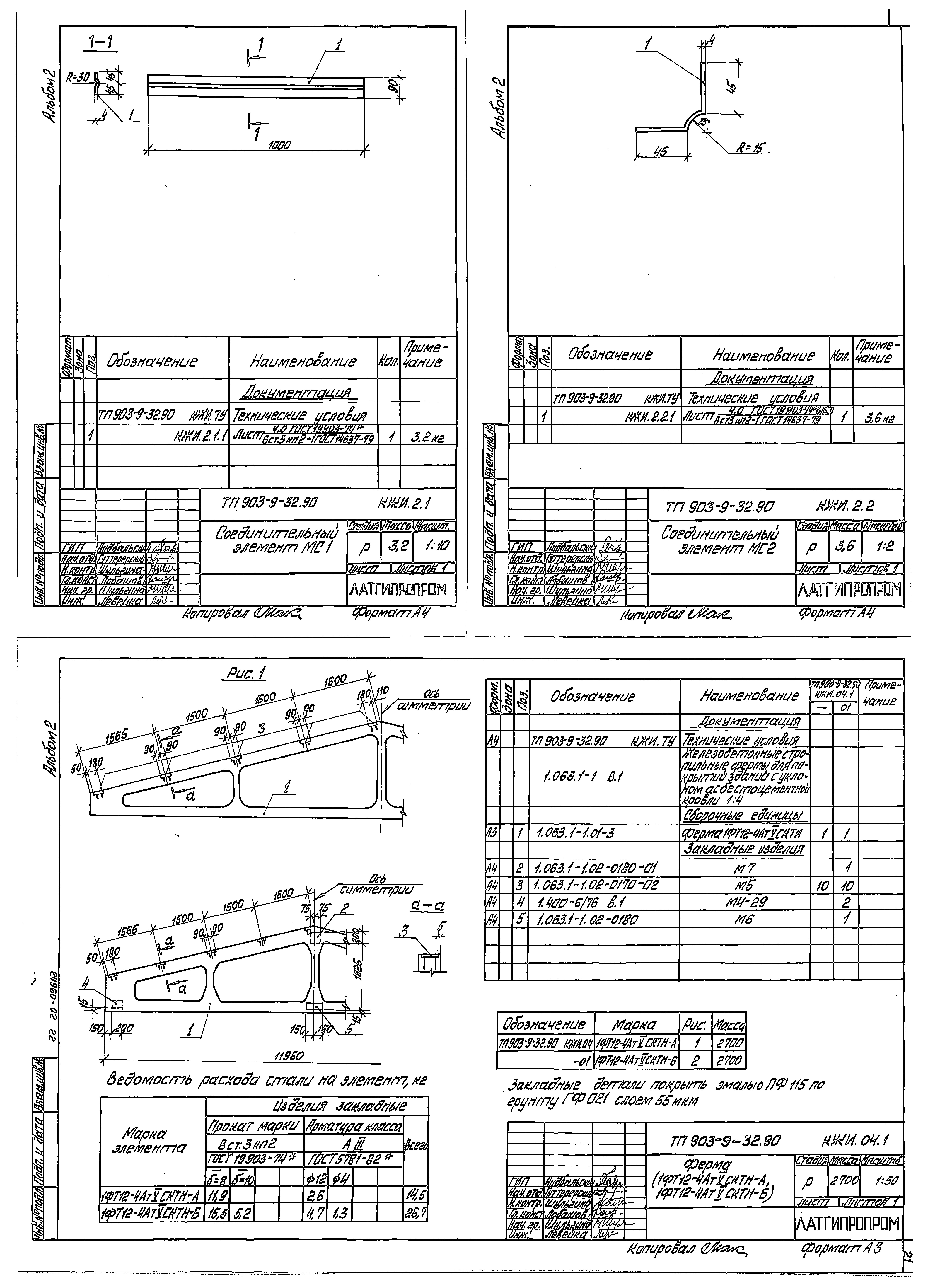
ТП 903-9-32.90 КЖ Соединительный элемент МС1. Соединительный элемент МС2. Ферма (1ФТ12-4АтVСКТИ-А;1ФТ12-4АтVСКТИ-Б)
ТП 903-9-32.90 КЖ Закладное изделие 1. Закладное изделие 2. Закладное изделие 3. Каркас Кр1
ТП 903-9-32.90 КМ Конструкции металлические КМ
ТП 903-9-32.90 КМ Общие данные (начало)
ТП 903-9-32.90 КМ Общие данные (продолжение)
ТП 903-9-32.90 КМ Общие данные (окончание)
ТП 903-9-32.90 КМ Схемы расположения площадки на отм. 2.850 и опор под трубопровод
ТП 903-9-32.90 КМ Узлы "1"..."5". Решетка Р1
ТП 903-9-32.90 КМ Рама МР1. Крышка МКР1
ТП 903-9-32.90 КМ Техническая спецификация металла для специализированных заводов
Разработан: Латгипропром
Утверждён:01.04.1991 Сантехниипроект (22)
Расположен в:Техническая документация Строительство Справочные документы Типовые строительные конструкции, изделия и узлы Общероссийский строительный каталог Промышленные предприятия, здания и сооружения Здания и сооружения санитарно-технические Теплоснабжение Установка для снабжения котельных жидким топливом
Типовой проект 903-9-32.90Типовой проект 903-9-32.90Типовой проект 903-9-32.90Типовой проект 903-9-32.90Типовой проект 903-9-32.90Типовой проект 903-9-32.90Типовой проект 903-9-32.90Типовой проект 903-9-32.90Типовой проект 903-9-32.90Типовой проект 903-9-32.90Типовой проект 903-9-32.90Типовой проект 903-9-32.90Типовой проект 903-9-32.90Типовой проект 903-9-32.90Типовой проект 903-9-32.90Типовой проект 903-9-32.90Типовой проект 903-9-32.90Типовой проект 903-9-32.90Типовой проект 903-9-32.90Типовой проект 903-9-32.90Типовой проект 903-9-32.90Типовой проект 903-9-32.90Типовой проект 903-9-32.90Типовой проект 903-9-32.90Типовой проект 903-9-32.90Типовой проект 903-9-32.90Типовой проект 903-9-32.90Типовой проект 903-9-32.90Типовой проект 903-9-32.90Типовой проект 903-9-32.90

© 2013 Ёшкин Кот :-) Карта сайта