| ||||||||||||||||||||||||||
Скачать Типовые материалы для проектирования 407-03-498.88 Альбом 1. Пояснительная записка. Электротехнические чертежиДата актуализации: 10.08.2017
|
| Обозначение: | Типовые материалы для проектирования 407-03-498.88 |
| Обозначение англ: | 407-03-498.88 |
| Статус: | cправочные материалы, мп, тпр |
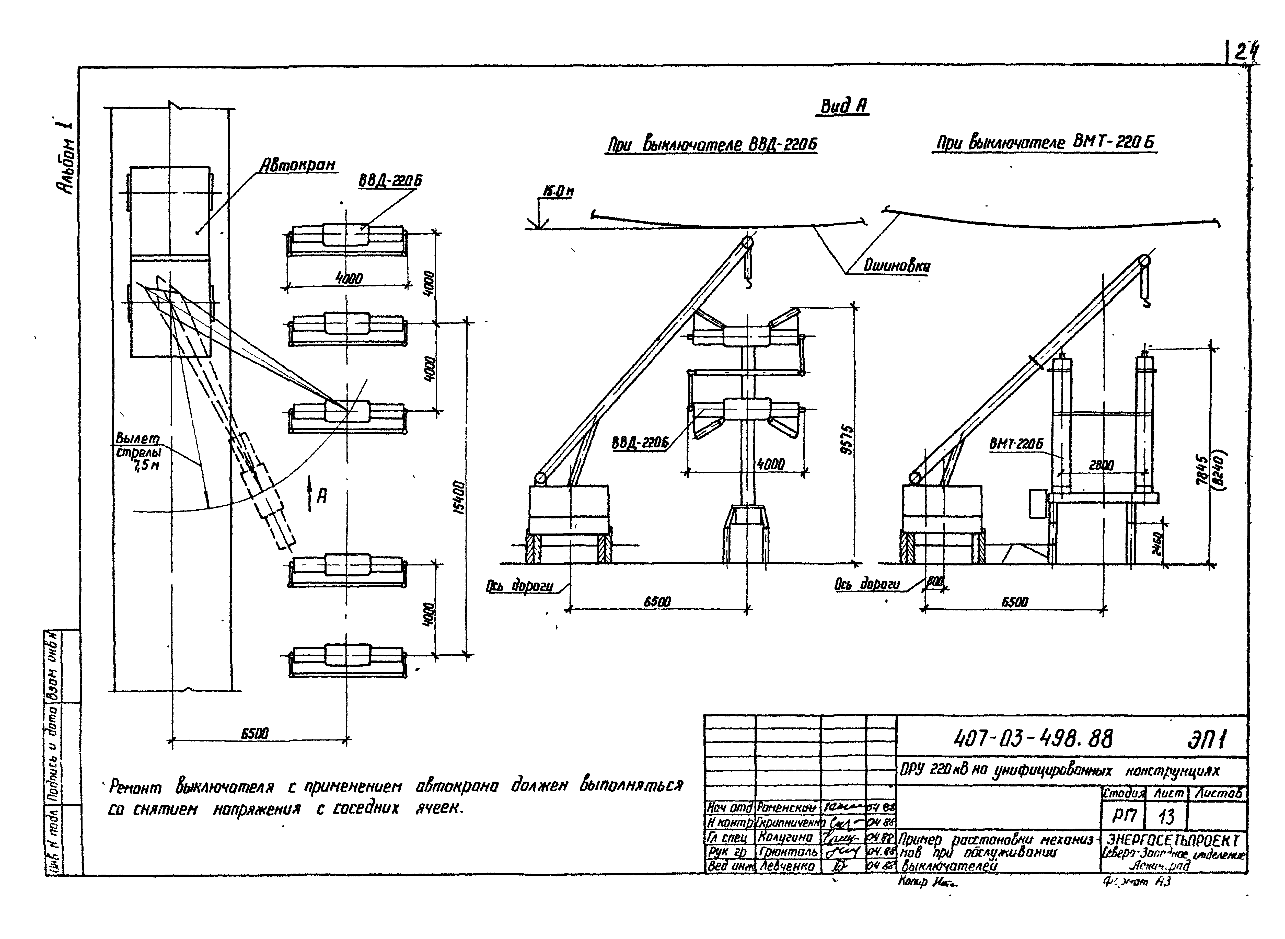
| Название рус.: | Альбом 1. Пояснительная записка. Электротехнические чертежи |
| Дата добавления в базу: | 01.09.2013 |
| Дата актуализации: | 05.05.2017 |
| Дата введения: | 11.04.1988 |
| Разработан: | Северо-западное отделение института Энергосетьпроект |
| Утверждён: | 11.04.1988 Севзапэнергосетьпроект (29) |
| Издан: | ЦИТП Госстроя СССР (CITP, Gosstroy (USSR) 1988 г. ) |
| Расположен в: |




























