Информационная система
«Ёшкин Кот»

Скачать базу одним архивом
Скачать обновления
История создания базы
Карта сайта

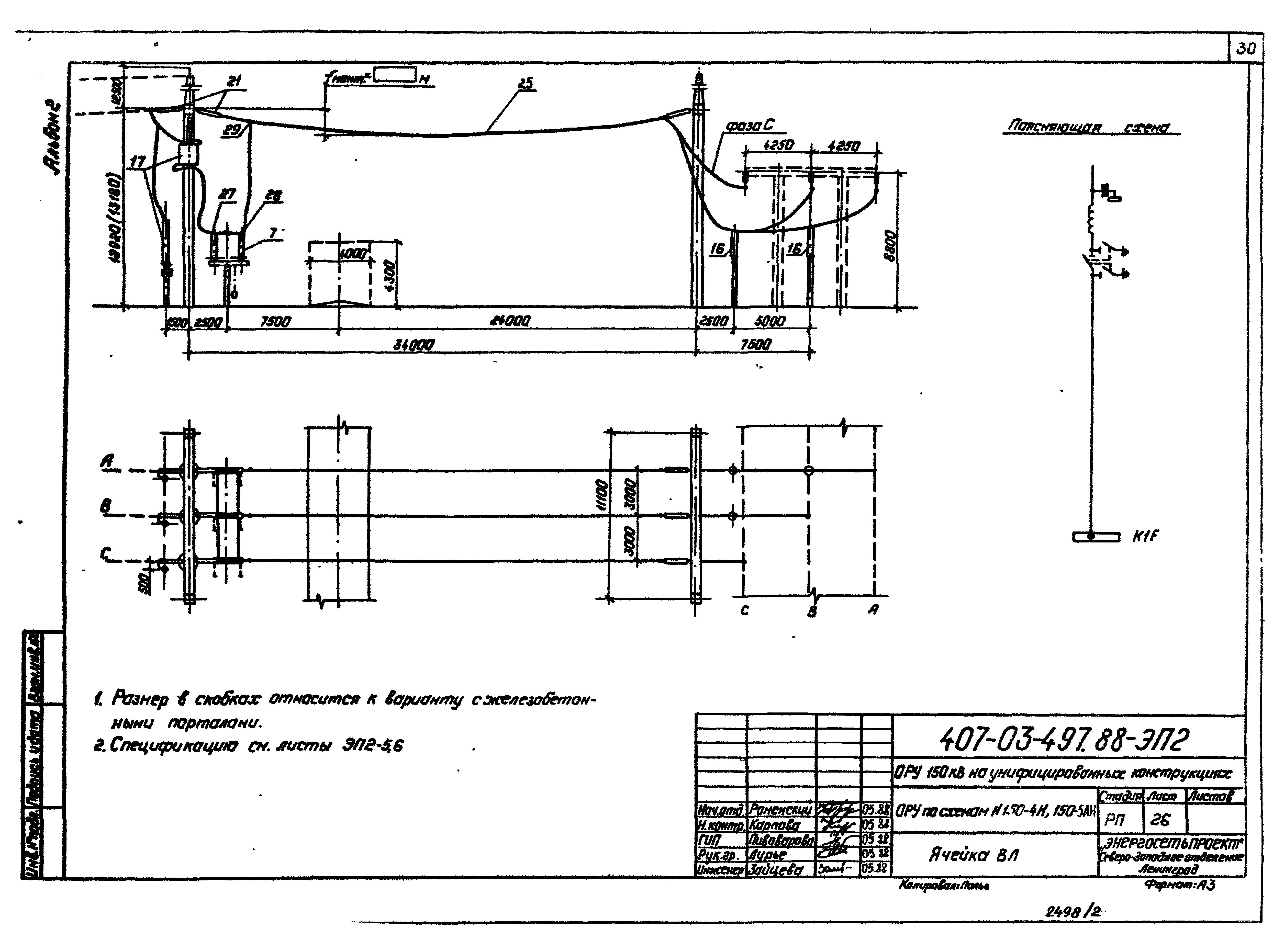
Скачать Типовые материалы для проектирования 407-03-497.88 Альбом 2. План ОРУ, ячейки и узлы

Дата актуализации: 10.08.2017

Типовые материалы для проектирования 407-03-497.88

Альбом 2. План ОРУ, ячейки и узлы

Обозначение: Типовые материалы для проектирования 407-03-497.88
Обозначение англ: 407-03-497.88
Статус:cправочные материалы, мп, тпр
Название рус.:Альбом 2. План ОРУ, ячейки и узлы
Дата добавления в базу:01.09.2013
Дата актуализации:05.05.2017
Дата введения:26.05.1988
Разработан: Северо-западное отделение института Энергосетьпроект
Утверждён:26.05.1988 Севзапэнергосетьпроект (4)
Издан: ЦИТП Госстроя СССР (CITP, Gosstroy (USSR) 1988 г. )
Расположен в:Техническая документация Строительство Справочные документы Типовые строительные конструкции, изделия и узлы Общероссийский строительный каталог Промышленные предприятия, здания и сооружения Предприятия, здания и сооружения промышленности и электроэнергетики Электроэнергетика Устройства и подстанции распределительные
Заменяет собой:
  • Типовые проектные решения 407-03-319 «Открытое распределительное устройство (ОРУ) 150 кВ на унифицированных конструкциях»
Типовые материалы для проектирования 407-03-497.88Типовые материалы для проектирования 407-03-497.88Типовые материалы для проектирования 407-03-497.88Типовые материалы для проектирования 407-03-497.88Типовые материалы для проектирования 407-03-497.88Типовые материалы для проектирования 407-03-497.88Типовые материалы для проектирования 407-03-497.88Типовые материалы для проектирования 407-03-497.88Типовые материалы для проектирования 407-03-497.88Типовые материалы для проектирования 407-03-497.88Типовые материалы для проектирования 407-03-497.88Типовые материалы для проектирования 407-03-497.88Типовые материалы для проектирования 407-03-497.88Типовые материалы для проектирования 407-03-497.88Типовые материалы для проектирования 407-03-497.88Типовые материалы для проектирования 407-03-497.88Типовые материалы для проектирования 407-03-497.88Типовые материалы для проектирования 407-03-497.88Типовые материалы для проектирования 407-03-497.88Типовые материалы для проектирования 407-03-497.88Типовые материалы для проектирования 407-03-497.88Типовые материалы для проектирования 407-03-497.88Типовые материалы для проектирования 407-03-497.88Типовые материалы для проектирования 407-03-497.88Типовые материалы для проектирования 407-03-497.88Типовые материалы для проектирования 407-03-497.88Типовые материалы для проектирования 407-03-497.88Типовые материалы для проектирования 407-03-497.88Типовые материалы для проектирования 407-03-497.88Типовые материалы для проектирования 407-03-497.88Типовые материалы для проектирования 407-03-497.88Типовые материалы для проектирования 407-03-497.88Типовые материалы для проектирования 407-03-497.88Типовые материалы для проектирования 407-03-497.88Типовые материалы для проектирования 407-03-497.88Типовые материалы для проектирования 407-03-497.88Типовые материалы для проектирования 407-03-497.88Типовые материалы для проектирования 407-03-497.88Типовые материалы для проектирования 407-03-497.88Типовые материалы для проектирования 407-03-497.88Типовые материалы для проектирования 407-03-497.88Типовые материалы для проектирования 407-03-497.88Типовые материалы для проектирования 407-03-497.88Типовые материалы для проектирования 407-03-497.88Типовые материалы для проектирования 407-03-497.88Типовые материалы для проектирования 407-03-497.88Типовые материалы для проектирования 407-03-497.88Типовые материалы для проектирования 407-03-497.88Типовые материалы для проектирования 407-03-497.88Типовые материалы для проектирования 407-03-497.88Типовые материалы для проектирования 407-03-497.88Типовые материалы для проектирования 407-03-497.88Типовые материалы для проектирования 407-03-497.88Типовые материалы для проектирования 407-03-497.88Типовые материалы для проектирования 407-03-497.88Типовые материалы для проектирования 407-03-497.88Типовые материалы для проектирования 407-03-497.88Типовые материалы для проектирования 407-03-497.88Типовые материалы для проектирования 407-03-497.88Типовые материалы для проектирования 407-03-497.88Типовые материалы для проектирования 407-03-497.88Типовые материалы для проектирования 407-03-497.88Типовые материалы для проектирования 407-03-497.88Типовые материалы для проектирования 407-03-497.88Типовые материалы для проектирования 407-03-497.88Типовые материалы для проектирования 407-03-497.88Типовые материалы для проектирования 407-03-497.88Типовые материалы для проектирования 407-03-497.88Типовые материалы для проектирования 407-03-497.88Типовые материалы для проектирования 407-03-497.88Типовые материалы для проектирования 407-03-497.88Типовые материалы для проектирования 407-03-497.88Типовые материалы для проектирования 407-03-497.88Типовые материалы для проектирования 407-03-497.88Типовые материалы для проектирования 407-03-497.88Типовые материалы для проектирования 407-03-497.88Типовые материалы для проектирования 407-03-497.88Типовые материалы для проектирования 407-03-497.88Типовые материалы для проектирования 407-03-497.88Типовые материалы для проектирования 407-03-497.88Типовые материалы для проектирования 407-03-497.88Типовые материалы для проектирования 407-03-497.88Типовые материалы для проектирования 407-03-497.88Типовые материалы для проектирования 407-03-497.88Типовые материалы для проектирования 407-03-497.88Типовые материалы для проектирования 407-03-497.88Типовые материалы для проектирования 407-03-497.88Типовые материалы для проектирования 407-03-497.88Типовые материалы для проектирования 407-03-497.88Типовые материалы для проектирования 407-03-497.88Типовые материалы для проектирования 407-03-497.88Типовые материалы для проектирования 407-03-497.88Типовые материалы для проектирования 407-03-497.88Типовые материалы для проектирования 407-03-497.88Типовые материалы для проектирования 407-03-497.88

© 2013 Ёшкин Кот :-) Карта сайта