Информационная система
«Ёшкин Кот»

Скачать базу одним архивом
Скачать обновления
История создания базы
Карта сайта

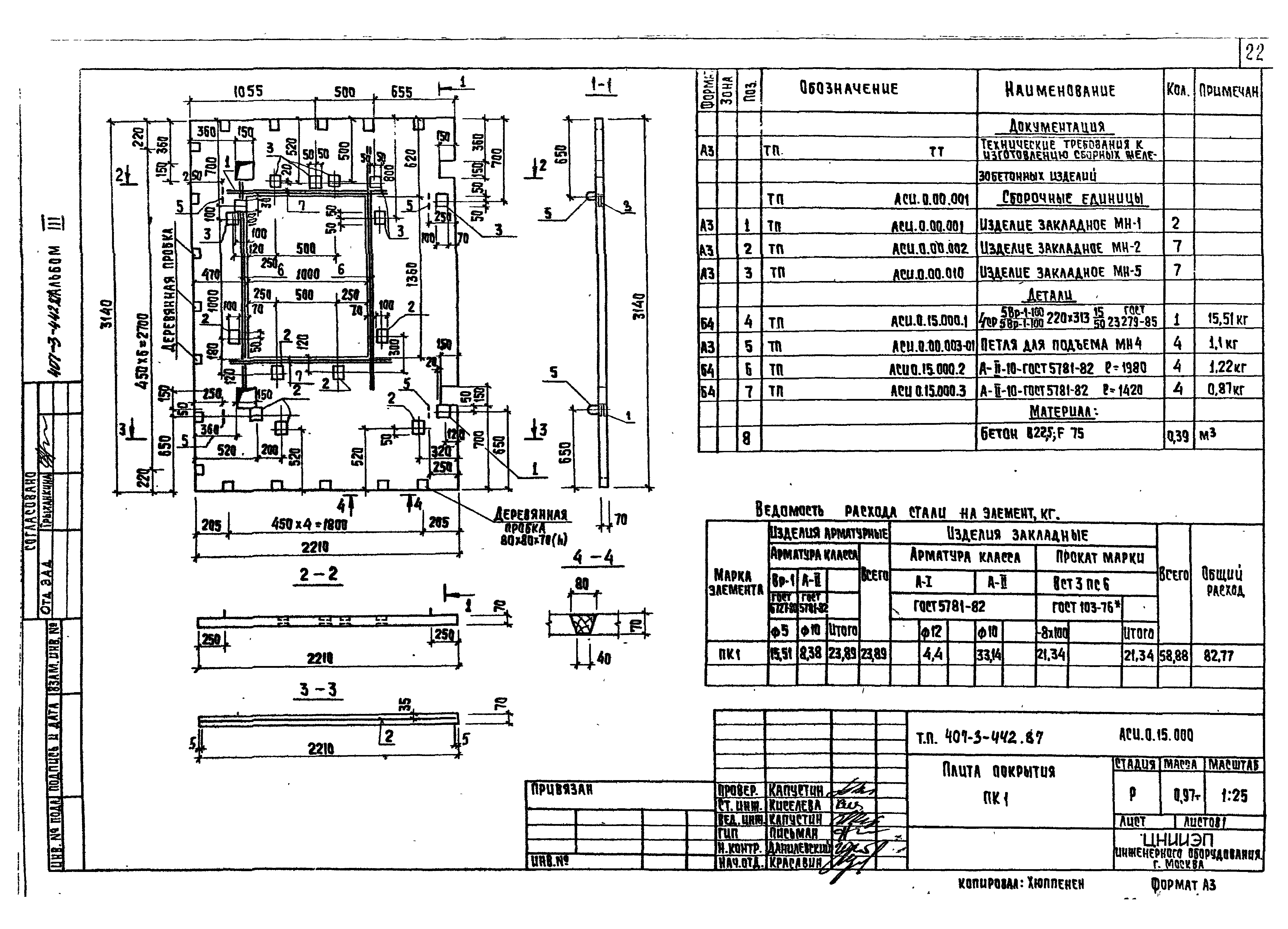
Скачать Типовой проект 407-3-442.87 Альбом III. Конструкторская документация строительных изделий из уголковых элементов. Ведомости потребности в материалах

Дата актуализации: 10.08.2017

Типовой проект 407-3-442.87

Альбом III. Конструкторская документация строительных изделий из уголковых элементов. Ведомости потребности в материалах

Обозначение: Типовой проект 407-3-442.87
Обозначение англ: 407-3-442.87
Статус:не определен законодательством
Название рус.:Альбом III. Конструкторская документация строительных изделий из уголковых элементов. Ведомости потребности в материалах
Дата добавления в базу:01.09.2013
Дата актуализации:05.05.2017
Дата введения:27.05.1985
Разработан: ЦНИИЭП инженерного оборудования
Утверждён:27.05.1985 Госгражданстрой (Gosgrazhdanstroy 168)
Расположен в:Техническая документация Строительство Справочные документы Типовые строительные конструкции, изделия и узлы Общероссийский строительный каталог Промышленные предприятия, здания и сооружения Предприятия, здания и сооружения промышленности и электроэнергетики Электроэнергетика Устройства и подстанции распределительные
Типовой проект 407-3-442.87Типовой проект 407-3-442.87Типовой проект 407-3-442.87Типовой проект 407-3-442.87Типовой проект 407-3-442.87Типовой проект 407-3-442.87Типовой проект 407-3-442.87Типовой проект 407-3-442.87Типовой проект 407-3-442.87Типовой проект 407-3-442.87Типовой проект 407-3-442.87Типовой проект 407-3-442.87Типовой проект 407-3-442.87Типовой проект 407-3-442.87Типовой проект 407-3-442.87Типовой проект 407-3-442.87Типовой проект 407-3-442.87Типовой проект 407-3-442.87Типовой проект 407-3-442.87Типовой проект 407-3-442.87Типовой проект 407-3-442.87Типовой проект 407-3-442.87Типовой проект 407-3-442.87Типовой проект 407-3-442.87Типовой проект 407-3-442.87Типовой проект 407-3-442.87Типовой проект 407-3-442.87Типовой проект 407-3-442.87Типовой проект 407-3-442.87Типовой проект 407-3-442.87Типовой проект 407-3-442.87Типовой проект 407-3-442.87Типовой проект 407-3-442.87Типовой проект 407-3-442.87Типовой проект 407-3-442.87Типовой проект 407-3-442.87Типовой проект 407-3-442.87Типовой проект 407-3-442.87Типовой проект 407-3-442.87Типовой проект 407-3-442.87Типовой проект 407-3-442.87Типовой проект 407-3-442.87Типовой проект 407-3-442.87

© 2013 Ёшкин Кот :-) Карта сайта