Информационная система
«Ёшкин Кот»

Скачать базу одним архивом
Скачать обновления
История создания базы
Карта сайта

Скачать Типовой проект 810-1-30.88 Альбом 6. Электрическое освещение. Силовое электрооборудование. Электродосвечивание. Связь и сигнализация

Дата актуализации: 10.08.2017

Типовой проект 810-1-30.88

Альбом 6. Электрическое освещение. Силовое электрооборудование. Электродосвечивание. Связь и сигнализация

Обозначение: Типовой проект 810-1-30.88
Обозначение англ: 810-1-30.88
Статус:не определен законодательством
Название рус.:Альбом 6. Электрическое освещение. Силовое электрооборудование. Электродосвечивание. Связь и сигнализация
Дата добавления в базу:01.09.2013
Дата актуализации:05.05.2017
Дата введения:07.12.1988
Оглавление:ТП 810-1-30.88 Содержание альбома
ТП 810-1-30.88 ЭО1 Электрическое освещение ЭО1
ТП 810-1-30.88 ЭО1 Общие данные
ТП 810-1-30.88 ЭО1 План сети электрического освещения между осями К1...К28,1...59
ТП 810-1-30.88 ЭО1 План сети электрического освещения между осями И1...И28,1...59
ТП 810-1-30.88 ЭО1 План сети электрического освещения между осями Ж1...Ж28,1...59
ТП 810-1-30.88 ЭО1 План сети электрического освещения между осями 30...33,Д...К28
ТП 810-1-30.88 ЭО1 Принципиальная схема питающий сети. Разрезы 1-1,2-2
ТП 810-1-30.88 ЭОИ Эскизные чертежи общих видов нетиповых конструкций электрического освещения ЭОИ.1
ТП 810-1-30.88 ЭО2 Электрическое освещение ЭО2
ТП 810-1-30.88 ЭО2 Общие данные
ТП 810-1-30.88 ЭО2 План сети электрического освещения между осями А...Д,18...32
ТП 810-1-30.88 ЭО2 План сети электрического освещения между осями А...Д,32...40. Принципиальная схема питающей сети
ТП 810-1-30.88 ЭО2 Экспликация помещений
ТП 810-1-30.88 ЭМ1 Силовое электрооборудование ЭМ1
ТП 810-1-30.88 ЭМ1 Общие данные
ТП 810-1-30.88 ЭМ1 План расположения электрооборудования и прокладки электрических сетей между осями К1...К28,1...59
ТП 810-1-30.88 ЭМ1 План расположения электрооборудования и прокладки электрических сетей между осями И1...И28,1...59
ТП 810-1-30.88 ЭМ1 План расположения электрооборудования и прокладки электрических сетей между осями Ж1...Ж28,1...59
ТП 810-1-30.88 ЭМ1 План расположения электрооборудования и прокладки электрических сетей между осями 30...33,Д...К28
ТП 810-1-30.88 ЭМ1 План прокладки лотков. Разрезы 1-1,2-2
ТП 810-1-30.88 ЭМ1 Спецификация к планам расположения электрооборудования и прокладки электрических сетей
ТП 810-1-30.88 ЭМИ1 Эскизные чертежи общих видов нетиповых конструкций силового электрооборудования ЭМИ1
ТП 810-1-30.88 ЭМ2 Силовое электрооборудование ЭМ2
ТП 810-1-30.88 ЭМ2 Общие данные (начало)
ТП 810-1-30.88 ЭМ2 Общие данные (окончание)
ТП 810-1-30.88 ЭМ2 Расчетная схема силовых распределительных шкафов 1ШР,2ШР
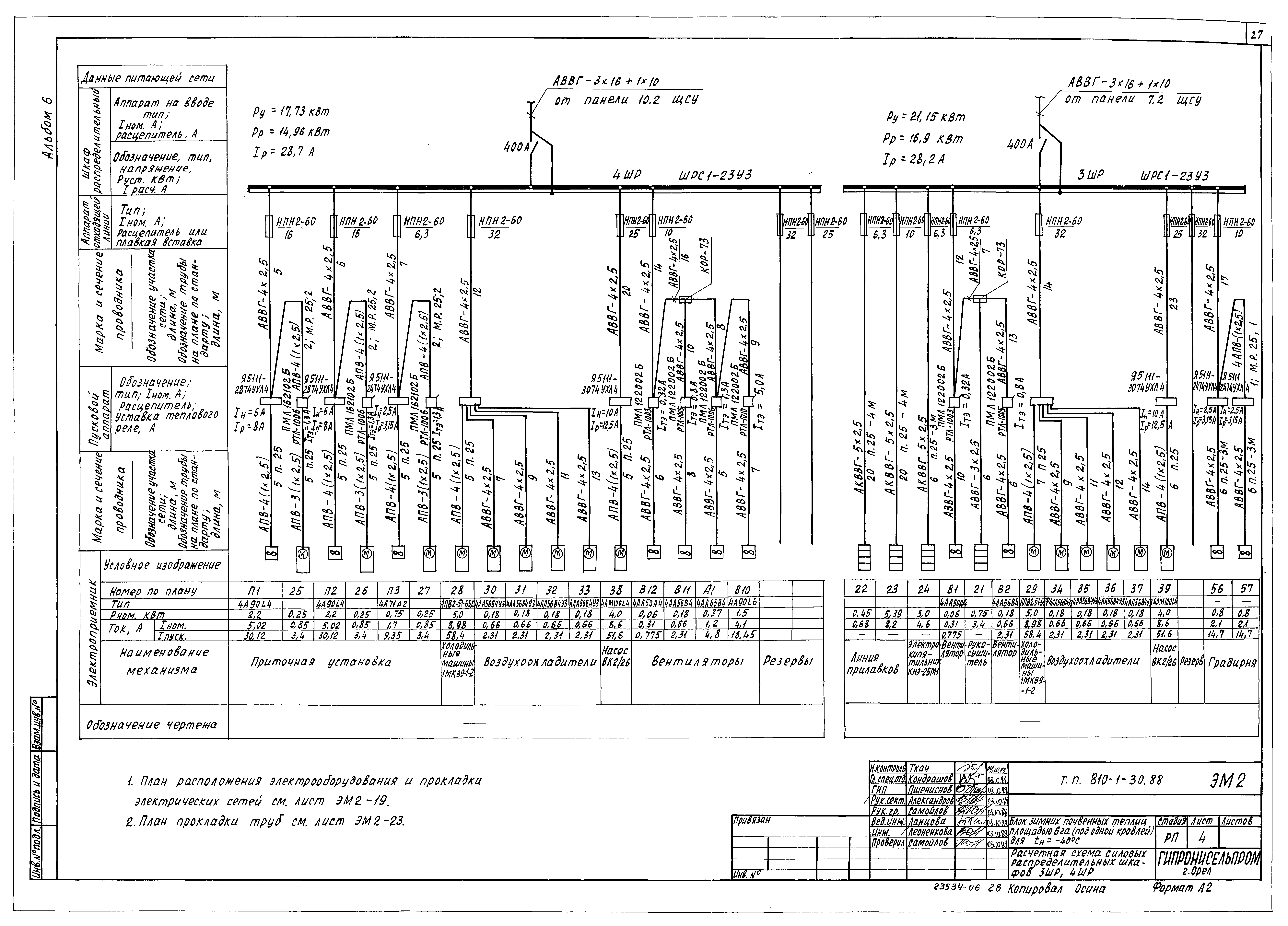
ТП 810-1-30.88 ЭМ2 Расчетная схема силовых распределительных шкафов 3ШР,4ШР
ТП 810-1-30.88 ЭМ2 Щит станций управления ЩСУ. Принципиальная однолинейная схема панелей 1.1,1.2
ТП 810-1-30.88 ЭМ2 Щит станций управления ЩСУ. Принципиальная однолинейная схема панелей 1.2,2.1,3.1,4.1,5.1
ТП 810-1-30.88 ЭМ2 Щит станций управления ЩСУ. Принципиальная однолинейная схема панелей 5.1,3.2
ТП 810-1-30.88 ЭМ2 Щит станций управления ЩСУ. Принципиальная однолинейная схема панелей 4.2,5.2
ТП 810-1-30.88 ЭМ2 Щит станций управления ЩСУ. Принципиальная однолинейная схема панелей 5.2,6.1,6.2
ТП 810-1-30.88 ЭМ2 Щит станций управления ЩСУ. Принципиальная однолинейная схема панелей 7.2,7.1,8.1,9.1
ТП 810-1-30.88 ЭМ2 Щит станций управления ЩСУ. Принципиальная однолинейная схема панелей 10.1,8.2
ТП 810-1-30.88 ЭМ2 Щит станций управления ЩСУ. Принципиальная однолинейная схема панелей 9.2,10.2
ТП 810-1-30.88 ЭМ2 Щит станций управления ЩСУ. Принципиальная однолинейная схема панелей 10.2
ТП 810-1-30.88 ЭМ2 Щит станций управления ЩСУ. Схемы соединения панелей 1.1,1.2,2.1,4.1
ТП 810-1-30.88 ЭМ2 Щит станций управления ЩСУ. Схемы соединения панелей 5.1,5.2
ТП 810-1-30.88 ЭМ2 Щит станций управления ЩСУ. Схемы соединения панелей 6.1,6.2
ТП 810-1-30.88 ЭМ2 Щит станций управления ЩСУ. Схемы соединения панелей 7.2,8.2,9.2,10.1
ТП 810-1-30.88 ЭМ2 2КТП-630-10/04-84УЗ. Принципиальная схема электроснабжения
ТП 810-1-30.88 ЭМ2 План расположения электрооборудования и прокладки электрических сетей между осями А...Д,18...32
ТП 810-1-30.88 ЭМ2 План расположения электрооборудования и прокладки электрических сетей между осями А...Д,32...40. План расположения щитов в щитовой
ТП 810-1-30.88 ЭМ2 План расположения электрооборудования на кровле
ТП 810-1-30.88 ЭМ2 Фрагмент 1
ТП 810-1-30.88 ЭМ2 План прокладки труб
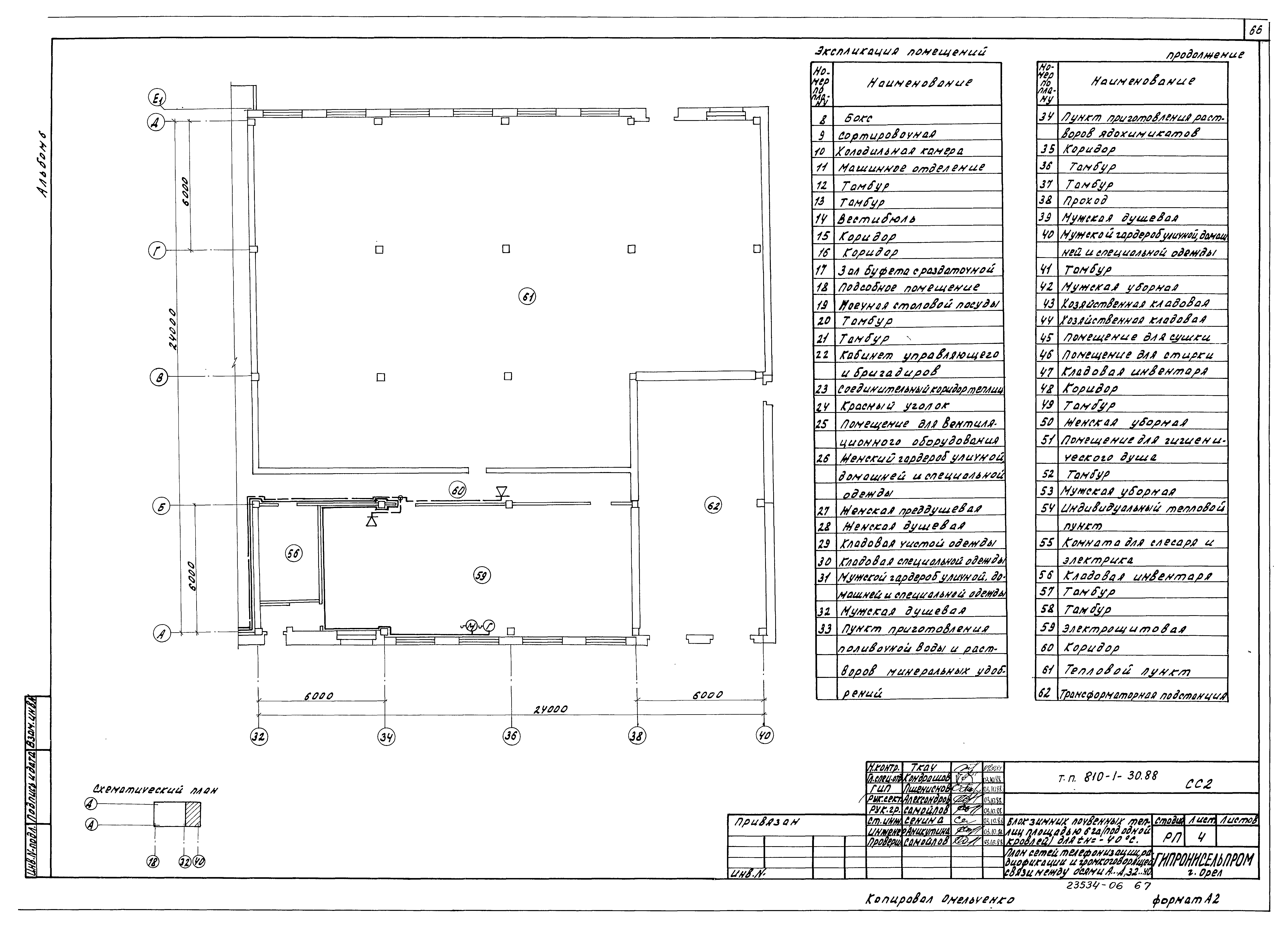
ТП 810-1-30.88 ЭМ2 Экспликация помещений
ТП 810-1-30.88 ЭМ2 Спецификация к планам расположения электрооборудования и прокладки труб
ТП 810-1-30.88 ЭМ2.Л01 Опросный лист на 2КТП-630-10/0.4-84УЗ ЭМ2.Л01
ТП 810-1-30.88 ЭМ2.Л02 Опросный лист на ЩОТО-1-96УЗ ЭМ2.Л02
ТП 810-1-30.88 ЭД Электродосвечивание ЭД
ТП 810-1-30.88 ЭД Общие данные
ТП 810-1-30.88 ЭД План сети электродосвечивания между осями Ж1...Ж14,48...59
ТП 810-1-30.88 ЭД План сети электродосвечивания между осями Ж15...Ж28,48...59
ТП 810-1-30.88 ЭД Расчетная схема силового шкафа 1ШР
ТП 810-1-30.88 ЭД Расчетная схема силового шкафа 3ШР
ТП 810-1-30.88 ЭД Установка облучения растений тепличная УОРТУ2-3000-1. Схема электрическая принципиальная
ТП 810-1-30.88 ЭД План прокладки лотков. Разрезы 1-1,2-2,3-3
ТП 810-1-30.88 ЭДИ1 Эскизные чертежи общих видов нетиповых конструкций электродосвечивания ЭДИ1
ТП 810-1-30.88 СС1 Связь и сигнализация СС1
ТП 810-1-30.88 СС1 Общие данные
ТП 810-1-30.88 СС1 План сетей громкоговорящей связи и радиофикации
ТП 810-1-30.88 ССИ1 Эскизные чертежи общих видов нетиповых конструкций связи и сигнализации ССИ1
ТП 810-1-30.88 СС2 Связь и сигнализация СС2
ТП 810-1-30.88 СС2 Общие данные (начало)
ТП 810-1-30.88 СС2 Общие данные (окончание)
ТП 810-1-30.88 СС2 План сетей телефонизации, радиофикации и громкоговорящей связи между осями А...Д,18...32
ТП 810-1-30.88 СС2 План сетей телефонизации, радиофикации и громкоговорящей связи между осями А...Д,32...40
ТП 810-1-30.88 СС2 План сетей пожарной сигнализации и автоматического отключения вентсистем между осями А...Д,18...32
ТП 810-1-30.88 СС2 План сетей пожарной сигнализации и автоматического отключения вентсистем между осями А...Д,32...40
ТП 810-1-30.88 СС2 Схема блокировки вентсистем
Разработан: Гипронисельпром Госагропрома СССР
Утверждён:06.12.1988 Госагропром СССР (USSR Gosagroprom 805-42/153)
Расположен в:Техническая документация Строительство Справочные документы Типовые строительные конструкции, изделия и узлы Общероссийский строительный каталог Сельскохозяйственные предприятия, здания и сооружения Тепличные комбинаты, теплицы и парники Тепличные комбинаты и теплицы
Типовой проект 810-1-30.88Типовой проект 810-1-30.88Типовой проект 810-1-30.88Типовой проект 810-1-30.88Типовой проект 810-1-30.88Типовой проект 810-1-30.88Типовой проект 810-1-30.88Типовой проект 810-1-30.88Типовой проект 810-1-30.88Типовой проект 810-1-30.88Типовой проект 810-1-30.88Типовой проект 810-1-30.88Типовой проект 810-1-30.88Типовой проект 810-1-30.88Типовой проект 810-1-30.88Типовой проект 810-1-30.88Типовой проект 810-1-30.88Типовой проект 810-1-30.88Типовой проект 810-1-30.88Типовой проект 810-1-30.88Типовой проект 810-1-30.88Типовой проект 810-1-30.88Типовой проект 810-1-30.88Типовой проект 810-1-30.88Типовой проект 810-1-30.88Типовой проект 810-1-30.88Типовой проект 810-1-30.88Типовой проект 810-1-30.88Типовой проект 810-1-30.88Типовой проект 810-1-30.88Типовой проект 810-1-30.88Типовой проект 810-1-30.88Типовой проект 810-1-30.88Типовой проект 810-1-30.88Типовой проект 810-1-30.88Типовой проект 810-1-30.88Типовой проект 810-1-30.88Типовой проект 810-1-30.88Типовой проект 810-1-30.88Типовой проект 810-1-30.88Типовой проект 810-1-30.88Типовой проект 810-1-30.88Типовой проект 810-1-30.88Типовой проект 810-1-30.88Типовой проект 810-1-30.88Типовой проект 810-1-30.88Типовой проект 810-1-30.88Типовой проект 810-1-30.88Типовой проект 810-1-30.88Типовой проект 810-1-30.88Типовой проект 810-1-30.88Типовой проект 810-1-30.88Типовой проект 810-1-30.88Типовой проект 810-1-30.88Типовой проект 810-1-30.88Типовой проект 810-1-30.88Типовой проект 810-1-30.88Типовой проект 810-1-30.88Типовой проект 810-1-30.88Типовой проект 810-1-30.88Типовой проект 810-1-30.88Типовой проект 810-1-30.88Типовой проект 810-1-30.88Типовой проект 810-1-30.88Типовой проект 810-1-30.88Типовой проект 810-1-30.88Типовой проект 810-1-30.88Типовой проект 810-1-30.88Типовой проект 810-1-30.88Типовой проект 810-1-30.88

© 2013 Ёшкин Кот :-) Карта сайта